Работаем по всей России

Специфика проектирования доступной среды в больницах и поликлиниках: безопасность, комфорт и равный доступ

Медицинские учреждения – объекты особой социальной значимости, посещаемые людьми, включая тех, кто временно или постоянно имеет ограничения по здоровью. Именно здесь грамотное проектирование выходит за рамки формального соответствия нормативам и становится вопросом безопасности, достоинства и эффективности лечения.

Нормативная база

Основу проектирования составляют три ключевых документа:

  • СП 59.13330.2020 «Доступность зданий и сооружений для маломобильных групп населения», регламентирующий архитектурные и планировочные параметры объектов;
  • Приказ Министерства здравоохранения РФ от 12 ноября 2015 г. № 802н, устанавливающий специфические требования к медицинским организациям, включая порядок обеспечения доступности услуг и помещений;
  • ГОСТ Р 52875-2018 – обязательный при проектировании тактильных напольных индикаторов для незрячих;

Дополнительно применяются положения Федерального закона № 181-ФЗ «О социальной защите инвалидов» и нормы ГОСТ Р 51261, регулирующие параметры опорных устройств.

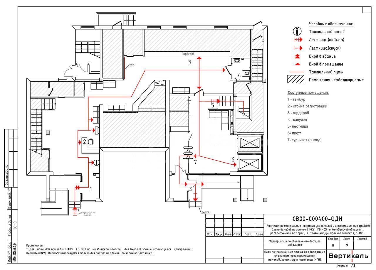
Входная группа

На парковке выделяется не менее 10% мест для инвалидов, расположенных в пределах 50 м. от входа, с разметкой и дорожным знаком. Пешеходные пути должны иметь ширину не менее 1,5 м. и уклон не более 5%.

Входная группа должна быть в одной плоскости с тротуаром или оснащена пандусом. Уклон пандуса – не круче 1:12,5. Ширина – 0,9-1,0 м. (одностороннее движение) или 1,8 м. (двустороннее). Обязательны двойные поручни на высоте 0,7 м. и 0,9 м., бортики 5 см. и площадка разворота 1,5×1,5 м.

Внутренние пути движения и вертикальные коммуникации

Коридоры должны обеспечивать свободное разъездное движение колясок – ширина не менее 1,8 м. Вдоль стен устанавливаются двухуровневые поручни, соответствующие ГОСТ Р 51261: на высоте 0,7 м. и 0,9 м., с закругленным сечением 30–40 мм. Это одновременно и опора для пациентов, и защита стен от повреждений каталками.

Лестницы дублируются пандусами или подъемными платформами. При невозможности – основные кабинеты размещаются на первом этаже.

Лифты, предназначенные для МГН, имеют кабину минимум 1,1×1,4 м., дверной проем не уже 0,9 м. и должны быть спроектированы специально под тактильное восприятие:

  • кнопки размещаются строго по вертикали, а не в горизонтальном ряду – это позволяет незрячему последовательно ощупать их;
  • кнопка первого этажа имеет отличительный тактильный признак – например, удвоенную точку в Брайле или рельефное кольцо;
  • голосовая озвучка этажа происходит до открытия дверей, чтобы пациент успел сориентироваться;
  • в кабине – зеркало, наклонённое на 15° или установленное так, чтобы его нижний край находился на высоте не выше 0,9 м.

Лестницы в обязательном порядке дублируются тактильно-контрастной маркировкой краевой ступени и предупреждающими индикаторами за 0,3 м. до марша. Высота подступенка – 0,15 м. (допускается 0,13-0,17 м.), глубина проступи – 0,3 м. (допускается 0,28-0,35 м.).

Ребро ступени должно быть закруглено радиусом не более 0,05 м.

Адаптация кабинетов и зон ожидания

Дверные проемы – минимум 0,9 м., без порогов или с перепадом не более 1,4 см. Прозрачные двери маркируются контрастной полосой на двух уровнях: 0,9-1,0 м. и 1,3-1,4 м.

У входов в кабинеты устанавливаются информационные таблички с дублированием шрифтом Брайля. Для вызова пациента применяются комплексные устройства с визуальной, звуковой и тактильной индикацией, обеспечивающие информирование всех категорий пациентов.

Санитарно-гигиенические помещения

Универсальный санузел для МГН должен иметь минимальные габариты 1,7х2,2 м. (с расположением унитаза у стены), 2,2х2,25 м. (с центральным расположением унитаза).

Обязательны:

  • унитаз высотой 45–50 см. с откидными поручнями;
  • подвесная раковина с пространством для заезда;
  • противоскользящее покрытие;
  • кнопка вызова помощи;
  • зона разворота коляски диаметром 1,4 м.

В стационарах также оборудуются закрытые раздевалки и душевые с откидными сиденьями, поручнями и системами экстренного оповещения.

Контрастность и матовость

Для пожилых пациентов и слабовидящих основной категории в поликлиниках критична контрастность по яркости:

  • между тактильным индикатором и полом — ≥70 %;
  • между текстом и фоном на табличках — ≥30 %;
  • между краевой ступенью и ступенями — ≥45 %.

Все поверхности — матовые, без бликов. Глянцевые ламинаты, полированный гранит, стеклянные перегородки без маркировки — грубые нарушения, не подлежащие компенсации другими средствами.

Инженерные решения и реабилитационное оборудование

Особая роль отводится техническому оснащению палат и реабилитационных зон:

  • функциональные кровати с возможностью регулировки положения тела, вспомогательными дугами и механизмами вертикализации;
  • вертикализаторы для поэтапного перевода пациента в вертикальное положение;
  • мобильные и потолочные подъемники для безопасного перемещения лежачих пациентов;
  • устройства для пересаживания, перекладывания и гигиенического ухода.

Это оборудование снижает физическую нагрузку на персонал, предотвращает травмы и способствует ранней реабилитации пациентов.

Информационная поддержка и ориентация

Вся навигация строится по принципу многоканального дублирования: визуальная информация (контрастные указатели), тактильная (шрифт Брайля, напольные тактильные полосы) и аудиоинформация (звуковые маяки, индукционные петли в зонах для слабослышащих).

Системы оповещения при ЧС дублируются световыми строб-вспышками и вибрационными сигналами.

Подготовка персонала как ключевой элемент доступности

Нормативы подчеркивают необходимость обучения медицинского персонала основам взаимодействия с пациентами с инвалидностью. Это включает:

  • знание маршрутов и оборудования для МГН;
  • умение оказывать помощь при передвижении;
  • этические нормы общения;
  • владение реабилитационными технологиями.

Заключение

Проектирование доступной среды в медицинском учреждении – это не просто реализация архитектурных решений, а создание системы, ориентированной на безопасность, комфорт и эффективность как для пациентов, так и для персонала. Такой подход, основанный на требованиях СП 59.13330.2020 и Приказа № 802н, превращает больницу или поликлинику из формально «доступного» объекта в по-настоящему инклюзивное пространство, где каждый человек, независимо от состояния здоровья, может получить медицинскую помощь с сохранением своего достоинства и права на самостоятельность.

Реклама. ООО «Вертикаль», erid: 2VtzqxJm7SA

Заказать проект

Выделите опечатку и нажмите Ctrl + Enter, чтобы отправить сообщение об ошибке.