Работаем по всей России

Проектирование доступной среды в детских садах

Создание детских садов, доступных для детей с инвалидностью и ограниченными возможностями здоровья (ОВЗ), – это сложная и многогранная задача, выходящая далеко за рамки простого устранения физических барьеров.

Это проектирование особой образовательной экосистемы, где архитектурные решения, развивающее оборудование и педагогические подходы объединяются, чтобы обеспечить каждому ребенку безопасность, комфорт и возможности для полноценного развития.

Грамотно спроектированное пространство становится ключом к успешной социализации и ранней интеграции детей с ОВЗ в общество.

Нормативная база: правовые основы инклюзивного детства

Проектирование начинается с безусловного соблюдения нормативных требований. Фундаментом являются:

  • Федеральный закон от 24.11.1995 N 181-ФЗ «О социальной защите инвалидов в Российской Федерации».Закон закрепляет право инвалидов на образование и устанавливает обязанность создания условий для получения качественного образования всех уровней. С 1 марта 2025 года инвалиды и дети-инвалиды официально отнесены к категории обучающихся, для которых должны создаваться специальные условия в соответствии с индивидуальной программой реабилитации и абилитации (ИПРА) и рекомендациями психолого-медико-педагогической комиссии (ПМПК).
  • СП 59.13330.2020 «Доступность зданий и сооружений для маломобильных групп населения». Этот свод правил является основным документом, детально регламентирующим параметры безбарьерной среды – от ширины дверных проемов и уклонов пандусов до зон маневрирования и установки поручней. Его требования обязательны к применению.

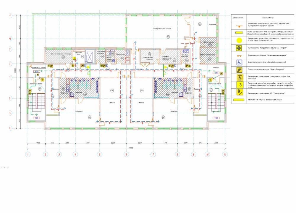
Безбарьерная территория

Доступность начинается с момента приближения к детскому саду. Пешеходные пути на участке должны иметь ширину не менее 2,0 м и уклон не более 5%, с обязательным оборудованием тактильной напольной плиткой для ориентации незрячих и слабовидящих детей.

Все входы оснащаются пандусами с уклоном не круче 1:20 или низконаклонными подъемными платформами, а ширина дверных проемов должна составлять не менее 0,9 м.

Инженерные системы и средства ориентации

Для создания полноценной доступной среды необходимаинтеграция специализированных инженерных решений. Все указатели и таблички дублируются информацией, выполненной рельефно-точечным шрифтом Брайля и имеющей контрастное цветовое исполнение. Для ориентации незрячих детей в ключевых узлах устанавливаются звуковые маяки, а группы для слабослышащих детей оснащаются индукционными петлями.

Помимо средств ориентации, не менее важными являются вопросы безопасности для МГН. Система пожарной сигнализации и оповещения должна дублироваться не только звуковыми, но и световыми строб-вспышками для детей с нарушениями слуха, а также вибрационными сигналами.

Особенностью проектирования доступности в дошкольных организациях является установка визуально-звуковых устройств «Сурдоцентр»с возможностью работы во всех помещениях здания. Система подключается к единому пульту управления и включает нескольких табло, а также передает прямую речь.

Оборудование соответствует ГОСТ Р 51671 «Средства связи и информации, доступные для инвалидов» и служит для информирования и ориентирования всех воспитанников, включая тех, у кого есть нарушения слуха или зрения, позволяя сразу среагировать в случае возникновения непредвиденных ситуаций.

Пути эвакуации, в свою очередь, должны быть спроектированы и оборудованы таким образом, чтобы обеспечить быстрый и безопасный выход всех воспитанников и персонала.

Специализированные помещения и их оснащение

Планировка внутреннего пространства требует тщательного функционального зонирования. На каждом этаже оборудуется как минимум один универсальный санузел площадью не менее 4 м², оснащенный откидными поручнями, штангой-держателем, раковиной с пространством для заезда коляски и кнопкой вызова помощи.

Особое значение имеют специализированные помещения – сенсорные комнатыи кабинеты специалистов, оснащенные интерактивным, тактильным и фибероптическим оборудованием для коррекции и развития сенсомоторных функций.

Инклюзивное образование дошкольников

Инклюзивное образование –это система обучения, обеспечивающая равный доступ к знаниям и развитию для всех детей, независимо от их физических, сенсорных или ментальных особенностей.

Его цель – создать единую образовательную среду, где каждый ребенок, включая детей с ограниченными возможностями здоровья, может учиться, играть и взаимодействовать со сверстниками, получая при этом необходимую педагогическую и психологическую поддержку.

Эта практика основана на принципах равенства, доступности и индивидуального подхода, что позволяет учитывать уникальные потребности каждого воспитанника.

Тифлоцентр «Вертикаль» вносит значительный вклад в развитие инклюзивной среды, разрабатывая специализированное оборудование для детских садов и образовательных учреждений.

Одним из ключевых направлений являются тактильно-звуковые стенды, такие как «Цвета, формы и фигуры», «Времена года»и «Веселое время». Эти интерактивные панели оснащены рельефными изображениями, шрифтом Брайля, звуковым описанием, а некоторые модели – интегрированной индукционной системой для слабослышащих детей.

Они позволяют детям с разными особенностями восприятия, включая незрячих и слабовидящих, в игровой форме изучать окружающий мир, развивая мелкую моторику, мышление и познавательный интерес.

Еще одним примером инклюзивного подхода компании является оборудование для физического развития, например, многофункциональный игровой комплекс «Город Джунглей» Максимум. Он предназначен для активного развития крупной моторики, координации и социального взаимодействия у детей от 3 до 12 лет, включая тех, кто нуждается в реабилитации или адаптивной физкультуре.

Комплекс легко монтируется и представляет собой готовое решение для создания безопасной и стимулирующей среды в спортивных залах, коррекционных школах, реабилитационных центрах и, разумеется, детских садах.

Кроме того, «Вертикаль» предлагает компактные и портативные обучающие устройства, такие как электронный брайлевский самоучитель «БРАЙЛЬБУКА». Этот интерактивный мини-планшет помогает слабовидящим и незрячим детям и взрослым осваивать шрифт Брайля в удобной и современной форме.

Вся продукция компании отличается продуманной эргономикой, безопасностью, использованием гипоаллергенных материалов и антивандальным исполнением, что делает ее надежным инструментом для реализации принципов инклюзивного образования на практике.

Заключение

Проектирование детского сада для детей с инвалидностью – это комплексная работа, требующая не только глубокого знания нормативной базы, но и понимания особенностей развития и потребностей детей с различными нозологиями. Результатом такого подхода становится по-настоящему инклюзивное образовательное пространство, где каждый ребенок, независимо от своих физических возможностей, чувствует себя защищенным и получает равные стартовые условия для будущего развития.

Реклама. ООО «Вертикаль», erid:2VtzquZkJKm

Заказать проект

Выделите опечатку и нажмите Ctrl + Enter, чтобы отправить сообщение об ошибке.