Работаем по всей России

Особенности проектирования доступных торговых центров

Торговый центр – это не просто ритейловое пространство, а важный элемент городской инфраструктуры и социального досуга. Для миллионов людей, включая маломобильные группы населения (МГН), он становится местом встреч, покупок и отдыха. Однако подлинная доступность возможна лишь тогда, когда проектирование торгового центра основывается на принципах универсального дизайна и строгом соблюдении нормативных требований, а не ограничивается установкой пандуса «для галочки».

Нормативная база

Проектирование доступной среды в торговых центрах регламентируется, прежде всего, СП 59.13330.2020 «Доступность зданий и сооружений для маломобильных групп населения», который применяется ко всем общественным зданиям открытого доступа. Дополнительно существуют требования ГОСТ Р 52875-2018 к тактильным наземным указателям и ГОСТ Р 55966-2014 к лифтам, предназначенным для эвакуации и транспортировки МГН.

Соблюдение этих документов – не формальность, а необходимое условие обеспечения безопасности, самостоятельности и равного доступа всех посетителей к товарам и услугам.

Безбарьерная территория и входная группа

Доступность начинается c прилегающей территории. Согласно СП 59.13330.2020, на парковке должно быть выделено не менее 10% машино-мест для инвалидов, расположенных в непосредственной близости от входа. Подъездные пути и пешеходные дорожки должны иметь уклон не более 5% и быть оборудованы тактильной плиткой для ориентации незрячих и слабовидящих посетителей.

Хотя идеальным решением является вход в одной плоскости с тротуаром, на практике часто требуется устройство пандуса. Его уклон не должен превышать 1:20 (5%), расстояние между поручнями – от 0,9 до 1,0 м. при одностороннем движении и 1,8 м. – при двустороннем движении. Обязательны двойные поручни на высоте 0,7 м. и 0,9 м., боковые бортики и зона разворота диаметром 1,5 м. перед входом и за ним.

Вертикальные коммуникации и лифты

В многоэтажных торговых центрах ключевую роль играют лифты. Для обеспечения доступности их кабины должны иметь ширину дверного проема не менее 900 мм., а точность остановки – в пределах ±10 мм. для безопасного заезда на коляске. Внутри кабины обязательны крупные тактильные кнопки с дублированием шрифтом Брайля, зеркало на задней стене и голосовое информирование о номере этажа. Согласно ГОСТ Р 55966-2014, лифты в ТЦ должны быть пригодны для эвакуации маломобильных посетителей.

Пути движения и навигация внутри здания. Проходы должны быть достаточно широкими и безопасными для всех посетителей, включая людей на инвалидных колясках и с другими ограничениями подвижности.

Ширина проходов. Рекомендуемая ширина – не менее 1,8 метра. Это позволяет двум людям, в том числе с коляской, разминуться комфортно и безопасно. Отметим, что по нормативам минимально допустимая ширина для проезда одного колясочника может составлять 1,5 метра, но 1,8 метра является более предпочтительным вариантом для общих зон.

Безопасность пристенного пространства. На стенах и опорах, в зоне от 70 см до 2,1 м от пола, необходимо соблюдать следующие правила:

  • Любые элементы, кроме пожарного оборудования (розетки, полки, декор и т.п.), не должны выступать более чем на 10 см.
  • Выступающие элементы должны иметь скругленные края во избежание травм.
  • Пожарное оборудование (например, огнетушитель в нише) может выступать до 20 см.

Отдельно стоящие объекты. Стойки, информационные киоски и другие подобные объекты не должны выступать более чем на 30 см., чтобы не создавать помех для движения.

Защита от нависающих конструкций. Под лестницами, балконами и другими элементами, где высота до головы составляет менее 2,1 м, необходимо устанавливать ограждения или барьеры. Это предотвратит столкновение и травмы людей на колясках, с тростью или с ослабленным зрением.

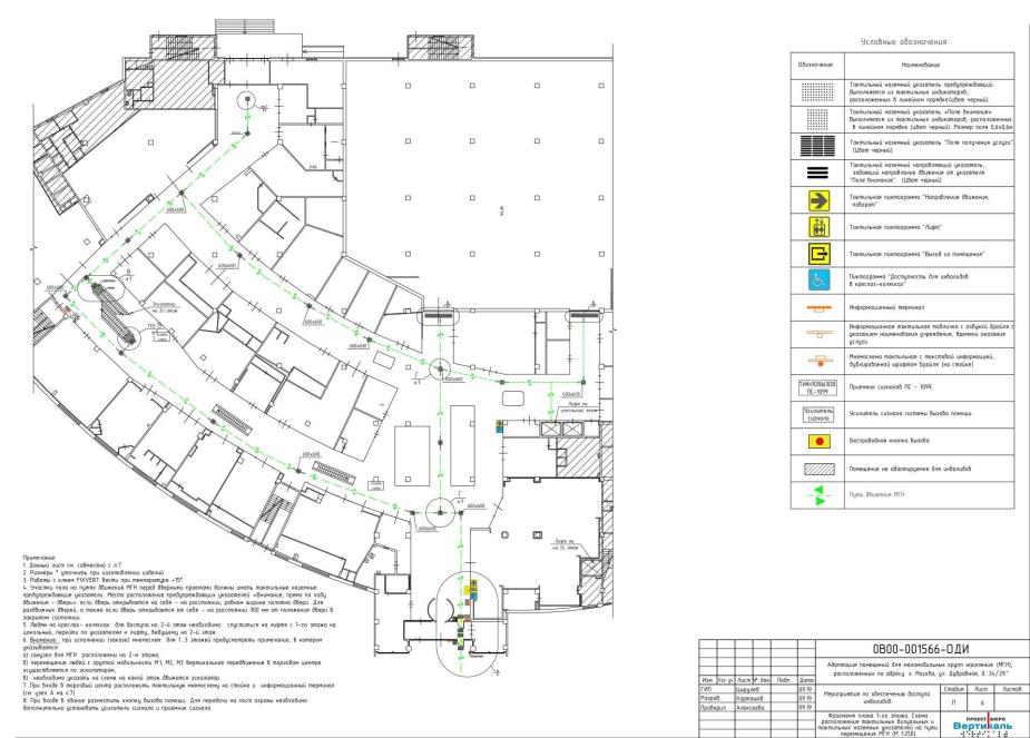
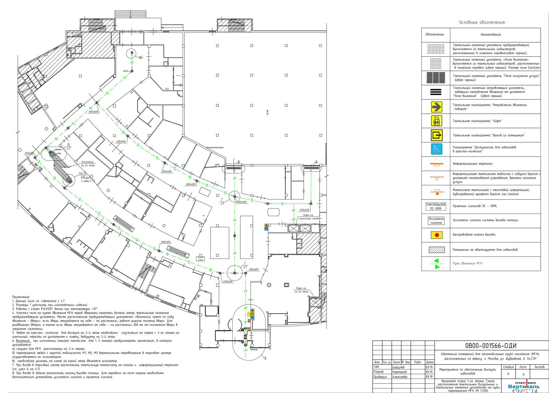
Особое внимание уделяется навигации, соответствующей требованиям СП 59.13330 и ГОСТ Р 52875-2018.

Тактильно-звуковые мнемосхемы (ТЗМ) и информационные терминалы должны размещаться с правой стороны по ходу движения на расстоянии до 4 метров от ключевых точек. Они обязаны быть адаптированы для незрячих и слабовидящих людей. Такие схемы устанавливаются на каждом этаже, а в крупных торговых центрах – дополнительно для каждой зоны.

Тактильные наземные указатели используются для ориентации в залах. Они должны быть уложены таким образом, чтобы не мешать уборке и передвижению на колясках.

Информационные табло («бегущая строка») также являются важной частью системы, дублируя информацию в доступном формате.

Доступность торговых зон и мест обслуживания

Создание беспрепятственного пути движения – это лишь половина задачи. Подлинная инклюзия означает, что каждый посетитель должен иметь равный доступ ко всем услугам и возможностям торгового центра, включая примерку одежды, покупку кофе или оплату товаров.

  • Примерочные кабины. Согласно СП 59.13330.2020, в торговых зонах должна быть предусмотрена как минимум одна универсальная примерочная кабина. Ее минимальная площадь – 6 м², что обеспечивает пространство для разворота кресла-коляски диаметром 1,5 м. Дверной проем должен быть не менее 900 мм., а порог – отсутствовать или быть не выше 1,4 см. Внутри обязательны: откидные сиденья с поручнем, поручни для пересадки из коляски, вешалки на разной высоте, зеркала, установленные с наклоном или в полный рост, с нижним краем на высоте не более 1 м. от пола.
  • Торговые прилавки и кассы. Как минимум одна касса в каждом кластере или на каждом этаже должна быть низкой – с высотой стойки не более 850 мм. и свободным пространством для заезда коляски глубиной не менее 300 мм. и высотой 700 мм. от пола. Аналогичные требования предъявляются к стойкам информации, администратора и фуд-корта: часть стойки длиной не менее 1,5 м. должна быть доступной для посетителя в коляске.
  • Зоны общественного питания (фуд-корты и кафе). Не менее 5% столов в обеденной зоне, но не менее одного, должны быть универсальными. Они характеризуются высотой столешницы 750-800 мм., свободным пространством под столом для заезда коляски (высота не менее 650 мм, глубина – 450 мм., ширина – 700 мм.) и расположением в легкодоступных местах, не в конце ряда.

Обеспечение безопасности для МГН при эвакуации

  • Зоны безопасности. На путях эвакуации, в тупиковых коридорах или перед эвакуационными лифтами должны быть организованы зоны безопасности (или «зоны ожидания спасения»). Это пожаробезопасные участки, где люди, не способные самостоятельно покинуть здание, могут дождаться помощи. Они должны быть отделены от путей эвакуации противопожарными преградами (стенами, дверями) с пределом огнестойкости не менее EI 45. В зоне должен быть установлен телефон прямой связи с диспетчерской или постом охраны и система оповещения, дублирующая общие сигналы (световая строб-вспышка).
  • Дублирование информации для слабослышащих. Помимо световых стробоскопов, в зонах повышенного риска и на путях эвакуации целесообразно устанавливать информационные табло с бегущей строкой, дублирующей голосовые сообщения системы оповещения. Это позволяет посетителям с нарушениями слуха оперативно получать инструкции.

Санитарно-гигиенические помещения

На каждом этаже торгового центра должен быть предусмотрен универсальный санузел, доступный для маломобильных групп населения.

Основные параметры и оснащение:

  • Площадь. Минимальный размер помещения – 2,2 x 2,25 м.
  • Зона для разворота. Необходимо обеспечить свободное пространство для разворота кресла-коляски диаметромне менее 1,5 м.
  • Оборудование:
    • Подвесная раковина должна быть установлена с компенсацией высоты для обеспечения возможности подъезда кресла-коляски.
    • Унитаз высотой 45-50 см. от пола.
    • Откидные поручни с обеих сторон.
    • Кнопка вызова помощи.
    • Противоскользящее покрытие пола.

Инженерные системы и безопасность

Система оповещения при пожаре должна дублироваться световыми строб-вспышками для посетителей с нарушениями слуха. Все информационные таблички и указатели выполняются в контрастном цветовом решении с тактильным дублированием. Эвакуационные пути проектируются с учетом времени и маршрута безопасного выхода для маломобильных посетителей, включая использование защищенных лифтов или тамбур-шлюзов.

Заключение

Проектирование доступного торгового центра – задача, сочетающая архитектурные, инженерные и сервисные решения. Результатом становится пространство, где каждый посетитель, независимо от физических возможностей, может свободно передвигаться, выбирать товары и получать удовольствие от пребывания. Такой подход не только соответствует требованиям программы «Доступная среда», но и формирует лояльность широкой аудитории, укрепляя социальную и экономическую устойчивость торгового центра.

Реклама. ООО «Вертикаль», erid: 2VtzqvchW6M

Заказать проект

Выделите опечатку и нажмите Ctrl + Enter, чтобы отправить сообщение об ошибке.