Работаем по всей России

Обеспечение доступности для инвалидов в ГБПОУ ЯКСТ г. Якутск

Цель данного проекта заключается в обеспечении легкого доступа к помещениям ГБПОУ РС (Я) «Якутский коммунально-строительный техникум», далее именуемому "Объект", для лиц с ограниченными возможностями и представителей маломобильных групп населения (МГН) с использованием принципа "разумной адаптации". Это касается улучшения инфраструктуры передвижения внутри Объекта для МГН. Расположение Объекта: Республика Саха (Якутия), г. Якутск, ул. Очиченко, д. 6.

Проектная документация основывается на следующих источниках: технического задания на проектирование, предоставленных заказчиком исходных данных, результатов проведенного обследования, соблюдении действующих строительных норм и правил.

Проект включает в себя ряд мероприятий для улучшения архитектурной среды с соблюдением следующих принципов:

  1. Обеспечение доступности целевых мест кратчайшим путем и легкость передвижения внутри помещений Объекта;
  2. Обеспечение безопасности маршрутов движения и обслуживаемых областей;
  3. Предоставление МГН своевременной и полноценной информации для ориентации в пространстве, использования оборудования (включая самообслуживание), получения услуг и т.д.

Принятые проектные решения не воздействуют на условия жизни других групп населения, пребывающих в помещениях Объекта. После реализации запланированных мероприятий инвалиды групп мобильности М1-М4 смогут свободно передвигаться от центрального входа к необходимым внутренним помещениям Объекта:

  • Корпус А2: помещение 26,25 – компьютерный класс (с адаптацией для глухонемых);
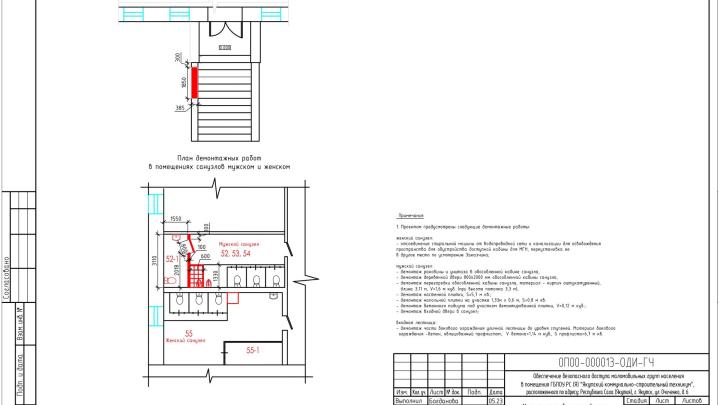
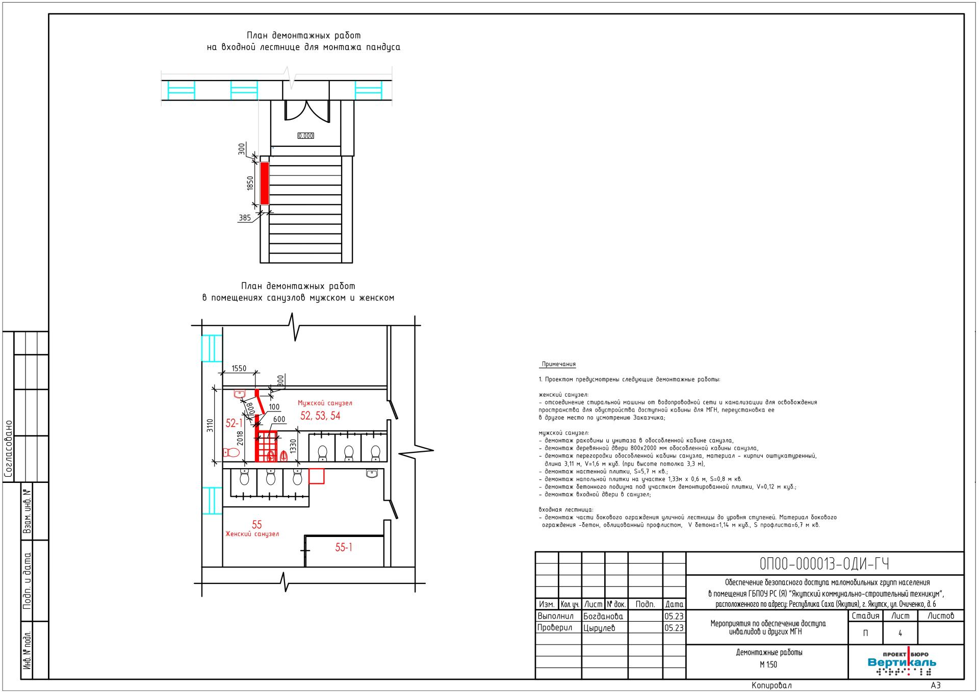
  • Корпус А4: помещения 50, 51 – малярская мастерская, 46, 47, 48 - мастерская плиточников-штукатуров, электромонтажная мастерская, санузел.

Мероприятия по адаптации для людей с нарушением зрения

В рамках проекта предусмотрен самостоятельный маршрут для передвижения лиц с ограниченными возможностями (МГН) групп М1–М4 от центрального входа к необходимым внутренним помещениям Объекта. Доступ МГН групп М1-М4 осуществляется через центральную входную дверь.

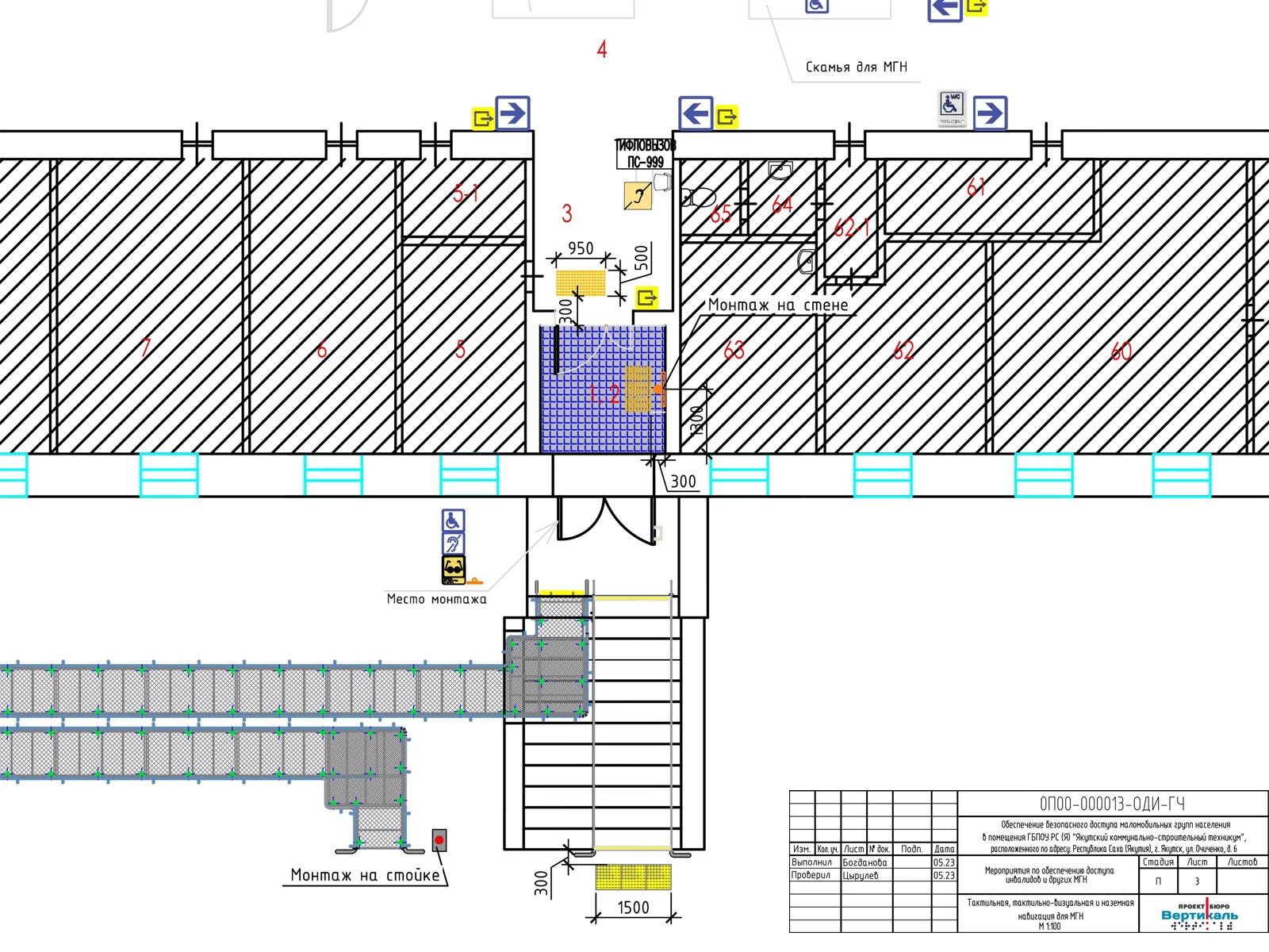
В соответствии с требованиями СП 59.13330.2020 по техническим средствам информирования, ориентирования и сигнализации в местах массового посещения, необходимо обеспечить посетителям возможность однозначного получения информации об объектах и местах посещения, а также о размещении и функциональном назначении элементов, ассортименте и характере предоставляемых услуг, обеспечивая надежную ориентацию в пространстве.

Для этого предусмотрено размещение таблички с названием объекта, выполненной шрифтом Брайля, на высоте 1,2–1,6 м от уровня крыльца. Табличка размещается на нерабочей створке двери на расстоянии 0,1 м от края нерабочей створки со стороны ручки рабочей створки.

В соответствии с требованиями СП 59.13330.2020 по техническим средствам информирования, ориентирования и сигнализации в местах массового посещения, необходимо обеспечить посетителям возможность однозначного получения информации об объектах и местах посещения, а также о размещении и функциональном назначении элементов, ассортименте и характере предоставляемых услуг, обеспечивая надежную ориентацию в пространстве.

Высота размещения тактильных и тактильно-визуальных указателей должна быть одинаковой для всего объекта, согласно вышеуказанному интервалу высот. 

Мероприятия по обеспечению доступной среды для инвалидов колясочников.

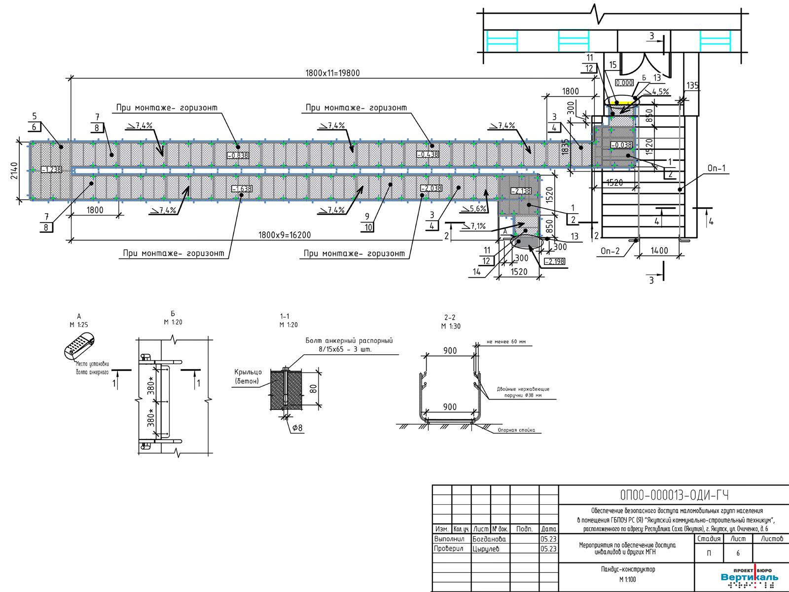
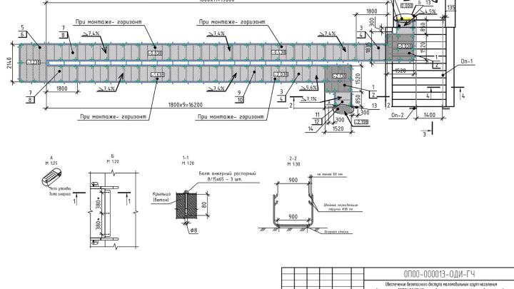
Для обеспечения доступа лиц с ограниченными возможностями проект рекомендует установку пандуса с уклоном, соответствующим значениям из Таблицы 5.1, пункт 5.1.14 в соответствии с СП 59.13330.2020. Также предусмотрены поручни на лестнице, соответствующие стандартам ГОСТ Р 51261-2022, и дополнительные узлы управления на пандусе.

Вблизи входа на пандус предусмотрено размещение кнопки вызова персонала, а приемное устройство сигнала устанавливается на столе в зоне постоянного пребывания персонала.

Поверхность покрытия (входная группа) должна обладать низким коэффициентом скольжения, не менее 0,4, даже в условиях сырой погоды и низких температур.

В соответствии с п.6.2.4 СП 59.13330.2020, дверные проемы не должны иметь порогов или перепадов пола, либо их высота не должна превышать 0,014 м. На объекте имеются пороги, не соответствующие данным требованиям.

Поэтому входная группа, где высота порога составляет 130 мм, рекомендуется оснастить подставным индивидуальным пандусом высотой 130 мм, который может использоваться по необходимости и затем убираться в подсобное помещение.

Для корпуса А4, где есть порог в женский санузел (100 мм) и в мужской санузел (190 мм), предлагается использовать подъем пола перед дверьми на ширину 1400 мм с плавным заездом и съездом. Поскольку объект ориентирован на обучение лиц с ограниченными возможностями групп М1-М2, обеспечение доступа инвалидов-колясочников в другие помещения, такие как мастерские и компьютерные классы, не является обязательным.

Заполните данные и мы свяжемся с вами для обсуждения деталей будущего проекта для учебного заведения!

Выделите опечатку и нажмите Ctrl + Enter, чтобы отправить сообщение об ошибке.