Работаем по всей России

Техническое заключение по результату обследования входной группы подъезда №1 многоквартирного жилого дома в г. Оганер

Настоящее техническое заключение составлено с целью оценки возможности обеспечения беспрепятственного доступа в здание для людей группы мобильности М4 (инвалиды, передвигающиеся на креслах-колясках). Обследование выполнено на основании заявки Заказчика, с проведением осмотра, обмеров, фотофиксации и в соответствии с требованиями СП 59.13330.2020 и других нормативных документов.

Результаты обследования и выявленные несоответствия

В ходе визуального и инструментального обследования установлены следующие параметры и нарушения:

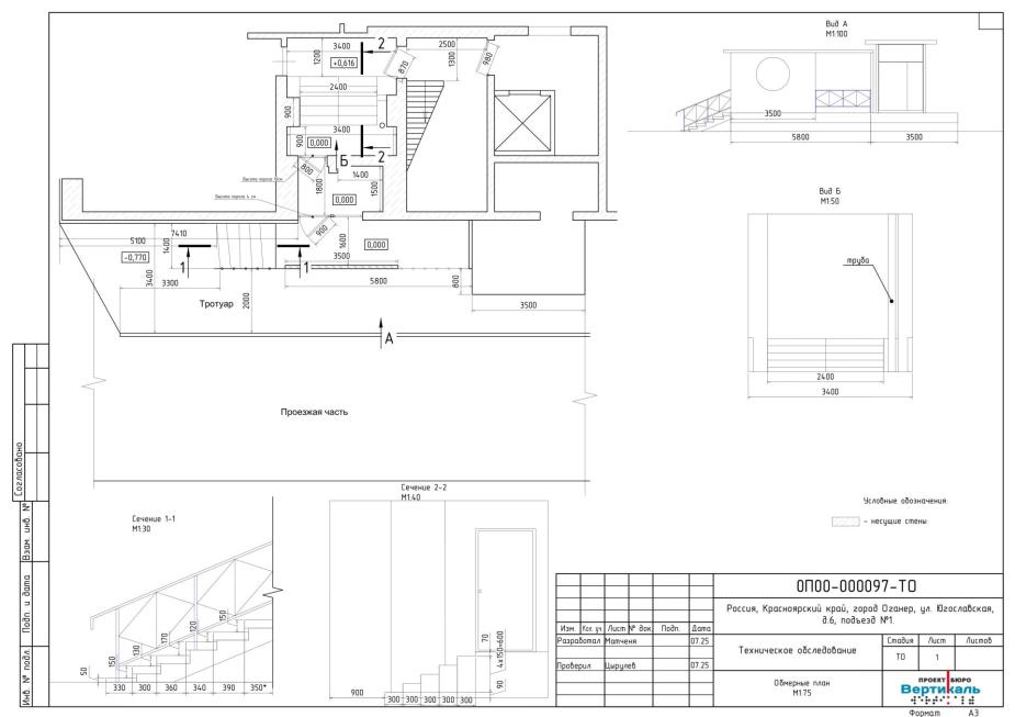
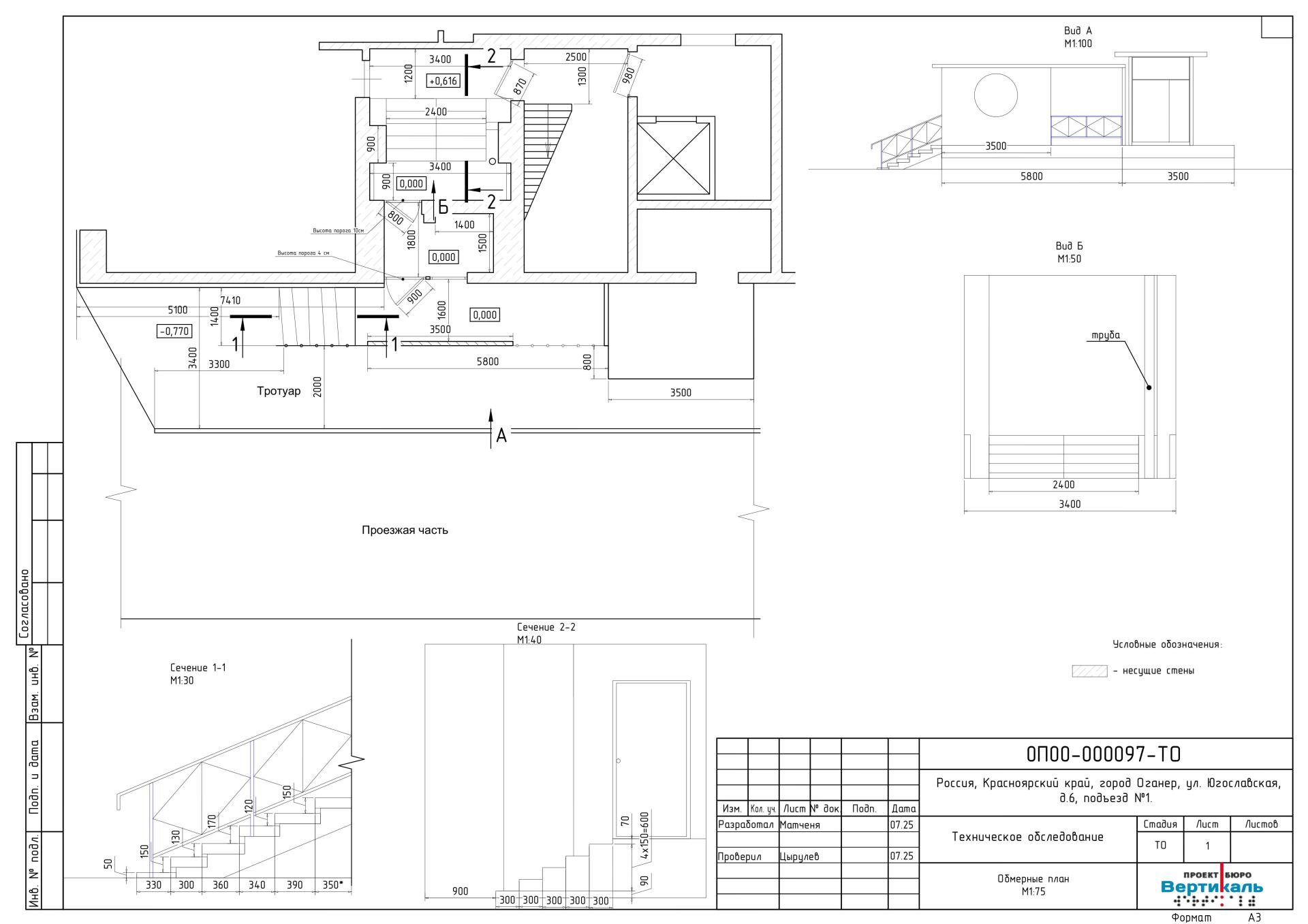
1.  Входная группа и лестница:

  • Высота лестницы при входе в здание составляет 0,77 м.
  • Расчетная длина пандуса с уклоном 1:12 должна составлять 9,24 м, а с учетом обязательной горизонтальной площадки – 10,74 м.
  • Устройство пандуса такой длины признано невозможным due to стесненных условий: наклонная часть выходит на проезжую часть на 5,64 м, что нарушает п. 6.1.2 СП 59.13330.2020.

2.  Входная площадка и тамбур:

  • Размер существующей входной площадки (1,6 x 5,8 м) не соответствует требованию п. 6.1.4 СП 59.13330.2020 (не менее 2,2 x 2,2 м).
  • Глубина тамбура (1,8 м) и его ширина (1,2 м) не соответствуют нормам (п. 6.1.8 СП 59.13330.2020).
  • Глубина пространства для маневрирования кресла-коляски (0,9 м) не обеспечивает минимально требуемый диаметр разворота 1,4 м (п. 6.2.2 СП 59.13330.2020).

3.  Дверные проемы и пороги:

  • Ширина дверных полотен в свету (0,8–0,9 м) соответствует минимуму, однако высота порогов (0,04–0,1 м) превышает допустимые значения по п. 6.2.4 СП 59.13330.2020.

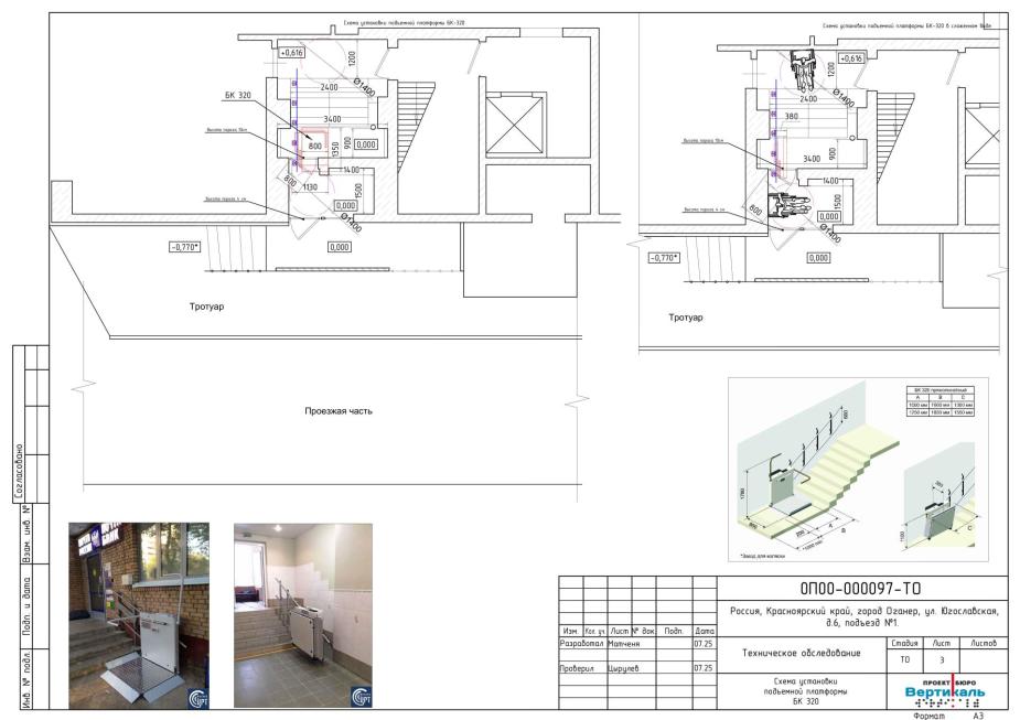
4.  Оценка установки подъемной платформы:

  • Рассмотрена возможность монтажа наклонных подъемных платформ прямой траектории (модели «ЛИФТРОН 3000» и «БК 320»).
  • Установка признана невозможной по причине недостаточного пространства для маневрирования (менее 2,3 м) и наличия несущих стен, исключающих перепланировку.
  • Существующая горизонтальная площадка глубиной 1,2 м не позволяет безопасно совершить поворот кресла-коляски после подъемника, создавая риск опрокидывания на лестничный марш.

Заключение

На основании проведенного обследования установлено, что обеспечение беспрепятственного и безопасного доступа в подъезд №1 для людей группы мобильности М4 не представляется возможным.

Существующие планировочные параметры входной группы, тамбура и лестничных клеток не соответствуют нормативным требованиям, а стесненные условия и наличие несущих конструкций исключают возможность устройства как стандартного пандуса, так и подъемной платформы без проведения капитальной перепланировки, которая в данном случае нецелесообразна или невозможна.

Перечень использованных нормативных и регламентирующих документов

СП 59.13330.2020 «Доступность зданий и сооружений для маломобильных групп населения».

СП 136.13330.2012 «Здания и сооружения. Общие положения проектирования с учетом доступности для маломобильных групп населения».

СП 138.13330.2012 «Общественные здания и сооружения, доступные маломобильным группам населения. Правила проектирования».

ГОСТ Р 50602-93 «Кресла-Коляски. Максимальные габаритные размеры».

ГОСТ Р 51261-2022 «Устройства опорные стационарные для маломобильных групп населения. Типы и общие технические требования».

СП 13-102-2003 «Правила обследования несущих строительных конструкций зданий и сооружений».

Оставьте свои контакты в полях ниже, и мы с вами свяжемся для обсуждения вашего проекта.

Выделите опечатку и нажмите Ctrl + Enter, чтобы отправить сообщение об ошибке.