Работаем по всей России

Создание доступной среды для МГН в дворце культуры «Моторостроитель»

Настоящий проект разработан компанией «Вертикаль» в целях обеспечения доступа к помещениям дворца культуры для людей с ограниченными возможностями и маломобильных групп населения (МГН). Адаптируются эксплуатируемые помещения дворца культуры «Моторостроитель», расположенные по адресу: Республика Башкортостан, г. Уфа, ул. Машиностроителей, д. 10.

Документация по проекту разработана на основании: технического задания на проектирование; данных, предоставленных заказчиком; действующих строительных норм и правил.

В проекте предусматривается комплекс мероприятий по повышению качества архитектурной среды с учетом следующих пунктов: досягаемость мест целевого посещения кратчайшим путем и беспрепятственного перемещения внутри помещений дворца культуры; безопасность путей движения, безопасть зон обслуживания; своевременного получения МГН полноценной и качественной информации, позволяющей ориентироваться в пространстве, использовать оборудование (в том числе для самообслуживания), получать услуги, и т.д..

После реализации мероприятий, предусмотренных проектом, будет обеспечена возможность безбарьерного следования инвалидов групп мобильности М1-М4 от входа здания к внутренним помещениям дворца культуры. Реализованные проектные решения не ограничит не ущемят возможности других групп населения.

Входная группа

В проекте предусмотрен самостоятельный путь движения МГН групп М1-М2 от центрального входа к внутренним помещениям Объекта. Для инвалидов категорий мобильности М3-М4 преодоление лестницы не возможно, так как отсутствуют пандусы или пологие спуски. Входная группа имеет три входа, проектом предусматривается адаптация левого входа. 

В соответствии с СП 59.13330.2020, отсутствуют технические средства информирования, ориентирования и сигнализации в местах массового посещения, которые должны обеспечивать посетителям объекта возможность однозначной информации объектов и мест посещения, получения информации о размещении и назначении функциональных элементов, об ассортименте и характере предоставляемых услуг, надежной ориентации в пространстве.

Проектом предусмотрены:

а) тактильные настенные указатели на путях перемещения МГН групп М1-М4: тактильная пиктограмма «Доступность объектов для инвалидов по зрению и по слуху, а также в креслах-колясках» (219х466 мм). Крепить перед входной дверью; тактильные пиктограммы «Выход из помещения» (150х150мм). Крепить перед выходами из фойе в тамбур, из тамбура в тамбур и из тамбура на улицу со стороны дверных ручек (рабочих створок); тактильные таблички на композитной основе, 300x400 мм (с указанием наименования учреждения и режимом работы, на двух языках, дублированная шрифтом Брайля). Крепить перед входом с улицы в тамбур с обеих сторон дверного проема; мнемосхема тактильная 630x800 мм с планом и назначением помещений (первый этаж). Мнемосхему разместить на отдельностоящей стойке с левой стороны при входе из тамбура в фойе; контрастная маркировка в форме круга диаметром 0,2 м стеклянных полотен дверей. Маркировку нанести на одном уровне (от 1,3 до 1,4 м до центра) с обеих сторон дверных полотен тамбурных дверей; маркировка дверных проемов тамбуров контрастной лентой.

б) тактильные наземные указатели на путях перемещения МГН групп М1-М2: на проступях краевых ступеней лестницы нанести полосы, контрастные с поверхностью ступени, имеющие общую ширину в пределах 0,08 – 0,1 м. Расстояние между контрастной полосой и краем проступи – от 0,03 до 0,04 м. Цвет желтый. Монтаж вести через присверливание, с использованием бура и дюбель-гвоздей. Диаметр высверливаемых отверстий 6 мм, глубина 40 мм.

Предупреждающий тактильный указатель  «Внимание, прямо по ходу движения – лестница» глубиной от 500 до 600 мм, шириной, равной ширине участка лестницы, разрешенного для движения инвалидов.

Рифы типа усеченных конусов, усеченных куполов, цилиндров, расположенных в линейном порядке. Расположить на расстоянии 300 мм от кромки проступи нижней и верхней ступеней лестничных маршей. Выполняется тактильной контрастной плиткой со сменными рифами.

Направляющий указатель для прямолинейного движения - эффективная ширина указателя от 130 до 150мм, длина отрезка от 300 до 600 мм, три параллельных продольных рифа.

Предупреждающий тактильный указатель «Внимание, прямо по ходу движения – дверь» глубиной от 500 до 600 мм, шириной, равной ширине рабочей створки.

Рифы типа усеченных конусов, усеченных куполов, цилиндров, расположенных в линейном порядке. Если дверь открывается на себя - на расстоянии, равном ширине полотна двери. Для раздвижных дверей, а также если дверь открывается от себя - на расстоянии 300 мм от положения двери в закрытом состоянии. Перед дверью с улицы в тамбур выполняется тактильной контрастной плиткой со сменными рифами через присверливание, с использованием бура и дюбель-гвоздей.

Также проектом предусмотрены следующие мероприятия: для инвалидов категорий мобильности М3 и М4 для преодоления лестницы - поставить пандус конструктора, а для преодоления крыльца произвести монтаж усиленного металлического пандуса с жестким креплением к крыльцу. Также предполагается монтаж лестничных ограждений с нанесением тактильных наклеек с внутренней стороны поручней; монтаж антивандальных кнопок вызова помощи перед лестницей на отдельно-стоящей стойке и перед пандусом крыльца. Сигнал с кнопок вызова подается через приемное устройство «ТИФЛОВЫЗОВ» в место постоянного пребывания персонала. В проекте заложена установка тактильно-визуального табла над центральным входом в здание, а для беспрепятственного пользования входных дверей и дверей из тамбура в холл предусмотрены доводчики для двери автоматические, применяются совместно с интеллектуальной системой и датчиком открытия/закрытия дверей. Для категорий М3-М4 отбойники для дверей тамбура из нержавеющей стали (устанавливаются с двух сторон дверного полотна).

Пути движения МГН внутри дворца культуры


Для обозначения направления движения МГН отсутствуют средства информирования и ориентирования, а также места отдыха для МГН.

Проектом предусмотрены:
а) тактильные настенные указатели на путях перемещения МГН групп М1-М4:
- тактильные пиктограммы «Выход из помещения». Крепить перед выходами из помещений со стороны дверных ручек (рабочих створок);
- тактильные пиктограммы «Место кратковременного отдыха или ожидания для инвалидов». Расположить в непосредственной близости с местами отдыха МГН;
- тактильные пиктограммы «Туалет для инвалидов». Крепить совместно с пиктограммами «Направление движения» на пути следования МГН к санузлу, а также перед входом в санузе для МГН;
- тактильная пиктограмма «Гардероб». Расположить в непосредст- венной близости от гардероба;
- тактильные пиктограммы «Помещение с индукционной петлей». Расположить в месте нахождения портативной индукционной петли «Volna-1» на первом этаже и перед входами из холла в зрительный зал на втором этаже со стороны дверных ручек (рабочих створок);
- тактильные пиктограммы «Доступность объекта для инвалидов на креслах- колясках». Расположить перед входной дверью для инвалидов-колясочников в зрительный зал со стороны дверной ручки (рабочей створки);
- мнемосхема тактильная с планом и назначением помещений (второй этаж).

Тактильные пиктограммы «Направление к эвакуационному выходу направо», «Направление к эвакуационному выходу налево», «Направление к эвакуационному выходу направо вверх», «Направление к эвакуационному выходу налево вверх» крепить на пути эвакуации МГН.

б) тактильные наземные указатели на путях перемещения МГН групп М1-М2:
- предупреждающий указатель «Поле внимания». Рифы типа усеченных конусов, усеченных куполов, цилиндров, расположенных в линейном порядке. Выполняются тактильными индикаторами с монтажным штифтом через сверление и приклеивание. Монтаж вести с использованием трафарета, клея FIXVERT-SL и комплекта для нанесения клея, сверление отверстий для тактильных индикаторов осуществить посредством алмазных коронок для сухого высверливания отверстий в керамограните диаметром 6 мм и глубиной 20 мм.
- направляющий указатель для прямолинейного движения - эффективная ширина указателя от 130 до 150 мм, длина отрезка от 300 до 600 мм, три параллельных продольных рифа;
- предупреждающий указатель «Внимание, прямо по ходу движения – дверь». Тактильный указатель глубиной от 500 до 600 мм, шириной, равной ширине рабочей створки. Рифы типа усеченных конусов, усеченных куполов, цилиндров, расположенных в линейном порядке. Если дверь открывается на себя - на расстоянии, равном ширине полотна двери. Для раздвижных дверей, а также если дверь открывается от себя - на расстоянии 300 мм от положения двери в закрытом состоянии. Выполняются тактильными индикаторами с монтажным штифтом через сверление и приклеивание;
- указатель «Поле получения услуги». Эффективная глубина указателя - от 420 до 510 мм. Тип рифления - девять параллельных продольных рифов. Поля выполняются индикаторами с монтажным штифтом через сверление и приклеивание. Монтаж вести с использованием трафарета, клея FIXVERT-SL и комплекта для нанесения клея, сверление отверстий для тактильных индикаторов осуществить посредством алмазных коронок для сухого высверливания отверстий в керамограните диаметром 6 мм и глубиной 20 мм. Место расположения – перед мнемосхемой на втором этаже и окном (стойки) приема одежды в гардеробной, индикаторы монтировать на расстоянии 300 мм от проекции на пол максимально выступающих элементов мнемосхемы и стойки для приема одежды;
- предупреждающий указатель "Внимание, по ходу движения - непреодолимое препятствие или зона, закрытая для движения".

Рифы типа усеченных конусов, усеченных куполов, цилиндров, расположенных в шахматном порядке. Используются для идентификации «Места ожидания для МГН». Выполняются тактильными индикаторами с монтажным штифтом через сверление и приклеивание, индикаторы монтировать на расстоянии 300 мм от проекции на пол максимально выступающих элементов места отдыха.

Санитарно-бытовое помещение

В женский и мужской санузлы рабочие полотна дверей в «свету» имеют недостаточную ширину. Дверной проем из фойе в тамбур женского санузла находится в несущей стене, что не дает возможность увеличения дверного проема до ширины. В мужском санузле недостаточно места для выделения универсальной кабины для МГН. Таким образом, отсутствует место под санузел для МГН.

Таким образом, имеются женский и мужской санузлы и отсутствует санитарно- бытовое помещение, которое возможно адаптировать для МГН.

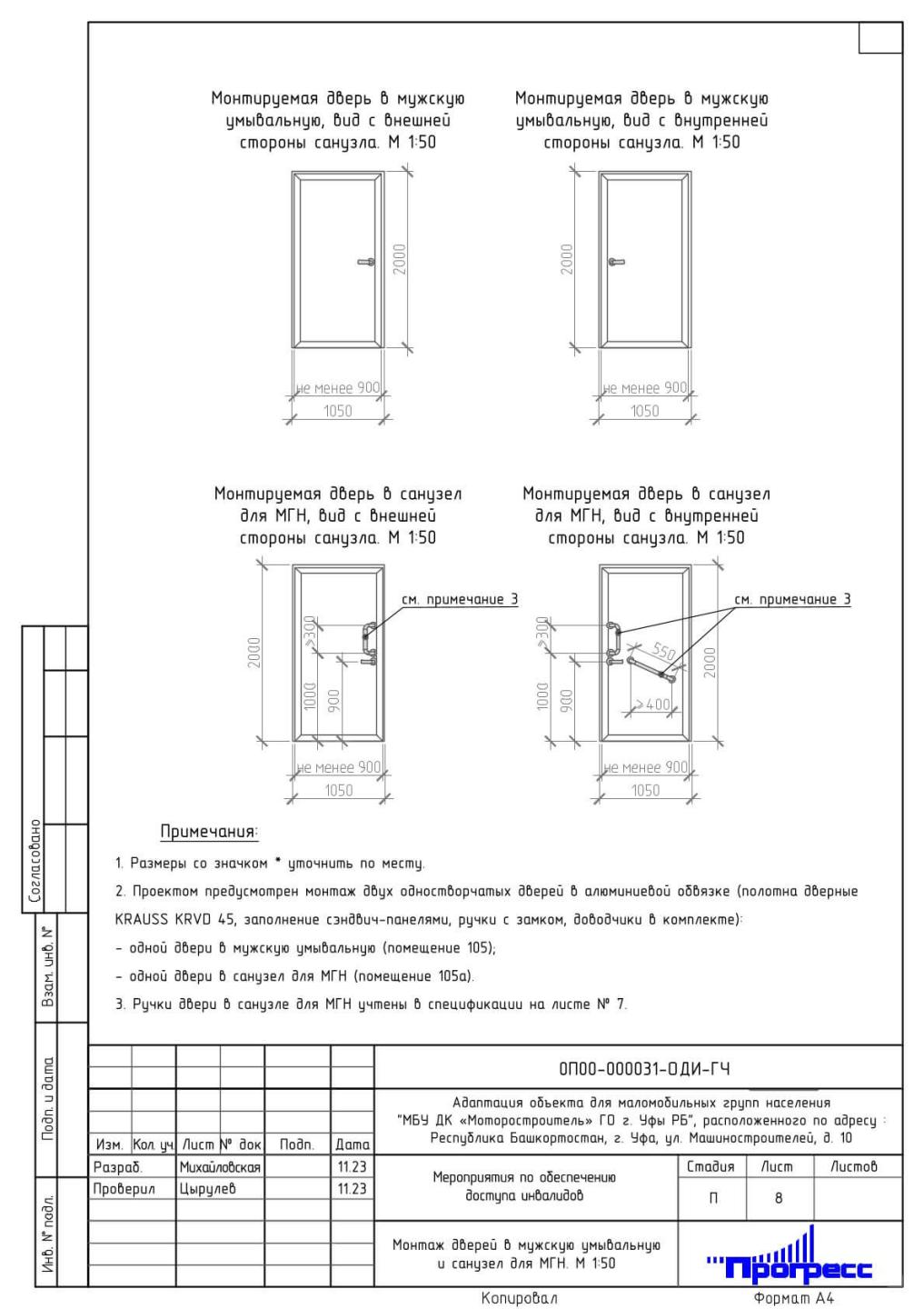
Проектом предусмотрен демонтаж перегородки между фойе и умывальной в мужском санузле с дальнейшим выделением пространства под универсальную кабину для МГН с отдельным входом из фойе.

Размер кабины составит: 1,75х2,355м, что соответствует условиям п.п. 6.3.7 СП 59.13330.2020: универсальные кабины уборных с правым или левым расположением унитаза должны иметь размеры не менее 1.7х2,2 м.

По обеим сторонам от унитаза в мужском санузле установить опорные поручни, откидной и стационарный. Рядом с унитазами предусмотрены кнопку вызова персонала с вибрацией и дополнительным шнурком, сигнал с кнопок передается в место постоянного пребывания персонала. Также предусмотрен умывальник, крючок для трости для трости и костылей, зеркала, поручней для умывальников, дозатора, сенсорного смесителя, сушилки автоматической для рук.

На пути движения к кабине для МГН установить тактильно-визуальные таблички с указанием направления.

Рядом с входной дверью в кабинку произвести монтаж пиктограмы «Туалет для инвалидов на кресле-коляске». Табличка монтируются перед входной  дверью со стороны дверной ручки на расстоянии не более 0.1м от наличника.

Зрительный зал

В зрительном зале отсутствуют посадочные места для инвалидов-колясочников. В зрелищных учреждениях, согласно СП5913330.2020:

  1. Места для инвалидов в зальных помещениях следует располагать в доступной для них зоне зала, обеспечивающей: полноценное восприятие демонстрационных, зрелищных, информационных, музыкальных программ и материалов.
  2. Места для инвалидов в зрительных залах следует располагать в отдельных рядах, но не более трех в одном месте.
  3. Расчетное число людей, относящихся к группам мобильности М2–М4, определяется в соответствии с таблицей Б.2. СП5913330.2020 и составляет для зрительных залов: 3% общей вместимости зрительных залов и мест на трибунах спортивных сооружений плюс одно место на каждые 100 мест при вместимости свыше 1000 зрителей.

Проектом предусмотрен демонтаж части кресел для освобождения пространства для инвалидов-колясочников (не менее 0,80х1,25м на одного колясочника) с установкой пиктограмм «Доступность объекта для инвалидов на кресле-коляске» на отдельностоящей стойке и с креплением на стены.

Рекомендуемые мероприятия

В соответствии с п.п. 8.1.7 СП 59.13330.2020: поверхность столов индивидуального пользования, прилавков, низа окон касс, справочных и других мест обслуживания, используемых посетителями – инвалидами на креслах-колясках, должна находиться на высоте не более 0,80–0,85 м над уровнем пола. Ширина и высота проема для ног должны быть не менее 0,75 м, глубина – не менее 0,5 м. Часть стойки-барьера обслуживания, прилавка следует предусматривать высотой 0,85 м от уровня пола. Ширина рабочего фронта прилавка, стола, стойки, барьера и т. п. у места получения услуги должна быть не менее 1,0 м. Для категории инвалидов группы М4 проектом рекомендовано занижение стойки приема одежды в гардеробной. Согласно СП 59.13330.2020 п.п. 6.2.5 на каждом этаже, где ожидаются посетители, следует предусматривать зоны отдыха на два-три места, в том числе для инвалидов на креслах-колясках. При большой длине этажа зоны отдыха следует предусматривать через 25–30 м. В соответствии с п.п. 8.6.3 СП 59.13330.2020: в зонах ожидания и отдыха для инвалидов и других МГН следует предусматривать места, оборудованные креслами с подлокотниками и опорой для спины. Проектом рекомендовано приобретение кресел или диванов на 2-3 посадочных мест с установкой их в местах отдыха МГН, обозначенных в данном проекте напольной тактильной разметкой.

Перечень использованных нормативных и регламентирующих документов


1. СП 59.13330.2020 «Доступность зданий и сооружений для маломобильных групп населения». Актуализированная редакция СНиП 35-01-2001.
2. СП 136.13330.2012 «Здания и сооружения. Общие положения проектирования с учетом доступности для маломобильных групп населения» (с Изменениями №1).
3. СП 138.13330.2012 «Общественные здания и сооружения, доступные маломобильным группам населения. Правила проектирования» (с Изменениями №1).
4. ГОСТ Р 50602-93 «Кресла-Коляски. Максимальные габаритные размеры».
5. ГОСТ Р 51261-2022 «Устройства опорные стационарные для маломобильных групп населения. Типы и общие технические требования».
6. ГОСТ Р 52131-2019 «Средства отображения информации знаковые для инвалидов. Технические требования».
7. ГОСТ Р 52875-2018 «Указатели тактильные наземные для инвалидов по зрению. Технические требования».

Закажите проект доступного объекта культуры прямо сейчас.

Выделите опечатку и нажмите Ctrl + Enter, чтобы отправить сообщение об ошибке.