Работаем по всей России

Создание безбарьерной среды на территории пляжа «Бархатные сезоны» в г. Сочи

Настоящий проект разработан в целях обеспечения беспрепятственного и комфортного доступа к территории и функциональным зонам пляжа «Бархатные сезоны» для людей с ограниченными возможностями и маломобильных групп населения (МГН). Адаптации подлежит пляжная территория протяженностью 556 метров от ПК 64+74 до ПК 70+30 в границах объекта «Инженерная защита Имеретинской низменности» общей площадью 2,63 га.

Проектная документация разработана на основании технического задания, исходных данных Заказчика и в строгом соответствии с актуальными требованиями СП 59.13330.2020, ГОСТ Р 70502-2022 и других регламентирующих документов.

Мероприятия по адаптации входной зоны

Вход на территорию пляжа является критически важным узлом для обеспечения доступности. Проектом предусмотрен комплекс решений:

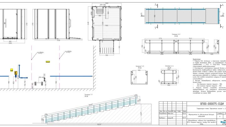
  • Тактильные указатели. Перед верхней и нижней ступенями лестницы на входе обустраивается предупреждающий тактильный наземный указатель типа «Внимание, прямо по ходу движения – лестница». Указатель глубиной от 500 до 600 мм и шириной, равной ширине участка лестницы, разрешенного для движения инвалидов. Используются рифы типа усеченных конусов, усеченных куполов, цилиндров, расположенных в линейном порядке, на расстоянии 300 мм от ступеней.
  • Лестничные марши и поручни. На проступах краевых ступеней наносятся противоскользящие полосы контрастного желтого цвета общей шириной 0,08–0,1 м. Установка непрерывных двухуровневых поручней из нержавеющей стали AISI 304 диаметром 38 мм регламентирована ГОСТ Р 51261-2022. Высота верхнего поручня – 900 мм, нижнего – 700 мм. Поручни должны выдерживать усилие не менее 500 Н, иметь травмобезопасную форму завершающих частей с плавным загибом вниз.
  • Система вызова помощи. На отдельностоящей стойке перед входом на пандус устанавливается антивандальная кнопка вызова совместно с пиктограммой «Кнопка вызова». Сигнал от кнопки, работающей от батареек, подается на приемник системы «Тифловызов ПС-999» на пост постоянного нахождения персонала (ресепшен или медпункт). Для усиления сигнала проектом предусмотрена установка ретранслятора ЧМ Z-09.
  • Навигация для инвалидов по зрению. На пути движения МГН категорий М1-М4 устанавливаются тактильно-визуальные указатели, включая знак доступности объекта и тактильную мнемосхему с планом функциональных зон, дублированную шрифтом Брайля. Размещение табличек «Назначение помещения (зоны)» производится на высоте 1,3 м от уровня пола.

Специализированные автостоянки и инфраструктура для собак-проводников 

С учетом расчетной вместимости пляжа 1200 человек, включая 36 инвалидов (3%), проектом определено:

  • Парковочные места для инвалидов. Количество специализированных машино-мест составляет 11 (36×30%). Габариты каждого места – 6,0×3,6 м, что обеспечивает безопасную зону сбоку и сзади транспортного средства. В случае расположения вдоль проезжей части длина места увеличивается до 6,8 м.
  • Площадка для выгула собак-проводников. В соответствии с ГОСТ Р 70502-2022, на территории пляжа или на расстоянии не более 50 м от входа оборудуется площадка минимальной площадью 8,5 м² (8 м² на собаку + 0,5 м² на человека). Покрытие части для выгула – газонное, песчаное или песчано-земляное, обеспечивающее дренаж и безопасность для животных. Подход и зона для владельца имеют твердое покрытие. Площадка ограждается металлической сеткой высотой 1,5-2,0 м и оснащается информационным стендом с правилами пользования.

 

Организация путей движения по территории пляжа 

Проектом предусмотрено создание безопасной и комфортной навигационной среды:

  • Дорожки и разъездные карманы. Все дорожки имеют твердое покрытие (например, машинно-уложенная плитка) с просветом между элементами не более 0,01 м. Ширина центральной дорожки – не менее 2,0 м, остальных – не менее 1,2 м. Через каждые 20 м предусмотрены «карманы» для разъезда инвалидов на креслах-колясках длиной не менее 2,5 м и шириной не менее 2,0 м.
  • Дорожка в воду. Для инвалидов ПОДА организуется спуск в море – дорожка с твердым покрытием шириной 1,0 м, уходящая на глубину до 0,7 м. Продольный угол не более 80%. Дорожка оборудуется двусторонними поручнями на высотах 0,9 м, 0,7 м и 0,5 м. В конце под водой обустраивается площадка для крепления пляжных колясок.
  • Зона купания для МГН. Ограничивается с использованием береговых сооружений и плавучих ограждений – канатов с поплавками.

Адаптация функциональных зон и оснащение специализированным оборудованием

На доступном пляже или на расстоянии не более 30 м от него размещаются следующие объекты:

  • Доступные пляжные кабинки. Универсальные кабинки туалетов, душевых и для переодевания, соответствующие разделу «Требования к помещениям» СП 59.13330.2020. Двери открываются наружу, имеют устройства запирания, доступные для людей со слабой моторикой рук, индикацию «занято-свободно» и кнопки вызова персонала, активирующие световой и звуковой сигналы.
  • Плавающие шезлонги для инвалидов ПОДА с индивидуальной нумерацией, выполненной рельефно-линейным и рельефно-точечным шрифтом Брайля.
  • Светозвуковое табло «Привод-5» для ориентации посетителей с нарушением зрения и слуха.
  • Портативная индукционная система VERT ALPHA для усиления восприятия информации слабослышащими.
  • Портативный цифровой увеличитель и лупы для слабовидящих.
  • Переносные наземные устройства для самоподнимания инвалидов с пляжных матрасов.

После выполнения полного комплекса запроектированных мероприятий территория пляжа «Бархатные сезоны» будет обеспечивать возможность безопасного и независимого передвижения, ориентирования и получения услуг для инвалидов всех категорий мобильности (М1-М4). Проект гарантирует не только формальное соответствие законодательным нормам, но и создание комфортной, инклюзивной среды, не ограничивающей условия жизнедеятельности других групп населения.

Оставьте свои контакты в полях ниже, и мы с вами свяжемся для обсуждения вашего проекта.

Выделите опечатку и нажмите Ctrl + Enter, чтобы отправить сообщение об ошибке.