Работаем по всей России

Реализованный проект МОДИ речного вокзала ПАО «Порт Тольятти»

Цель данного проекта заключается в обеспечении безпрепятственного доступа для людей с ограниченными возможностями и маломобильных групп населения к речному вокзалу. Мы стремимся создать комфортное пространство, применяя принцип «разумного приспособления». Проект адаптации охватывает здание порта, расположенное по адресу: ул. Коммунистическая, 94 в городе Тольятти.

Основы разработки проектной документации представлены следующими факторами:

  • техническое задание на проектирование;
  • предоставленные заказчиком исходные данные;
  • соблюдение действующих нормативов и строительных правил.

В рамках проекта предусмотрены различные действия, направленные на улучшение архитектурной среды с учетом следующих принципов:

  1. Обеспечение простого доступа к целевым точкам местообитания и свободного передвижения внутри помещений;
  2. Обеспечение безопасности путей и зон обслуживания;
  3. Предоставление МГН всей необходимой информации, чтобы легко ориентироваться в пространстве, пользоваться оборудованием (включая самообслуживание), получать услуги и т. д.

Наши предложения не ограничивают условия жизни и не ограничивают возможности других групп населения, которые пребывают в помещении.

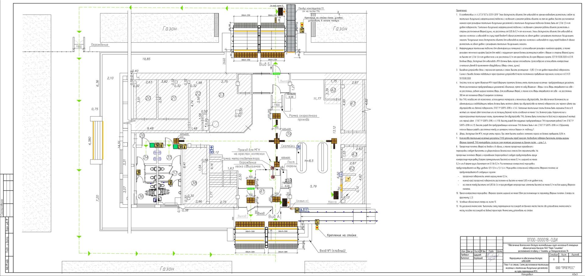
После реализации предусмотренных проектом мероприятий, данный речной вокзал будет предоставлять услуги для всех категорий людей с ограниченными возможностями. Проект предусматривает создание самостоятельного маршрута от входа до кассы, с возможностью сопровождения сотрудниками вокзала при необходимости. Люди на колясках смогут перемещаться к водному транспорту с помощью гусеничного лифта, который будет обслуживаться сотрудником вокзала.

Мероприятия по адаптации объекта

Проектом разработан комплекс мероприятий, направленных на создание безопасного, информативного и комфортного пути на объекте для получения услуг маломобильными группами населения.

Данный речной вокзал предоставляет услуги для всех групп мобильности. В проекте предусмотрен самостоятельный путь движения от входа к месту получения услуги при необходимости в сопровождение сотрудников речного вокзала. Также предусматривается устройство парковочных мест для МГН.

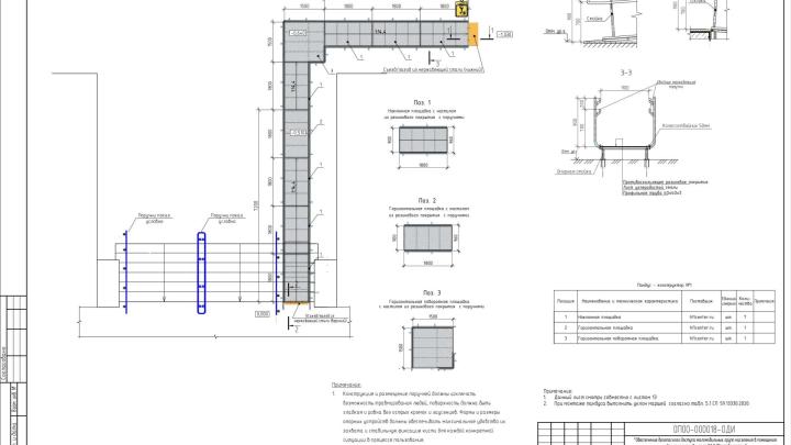
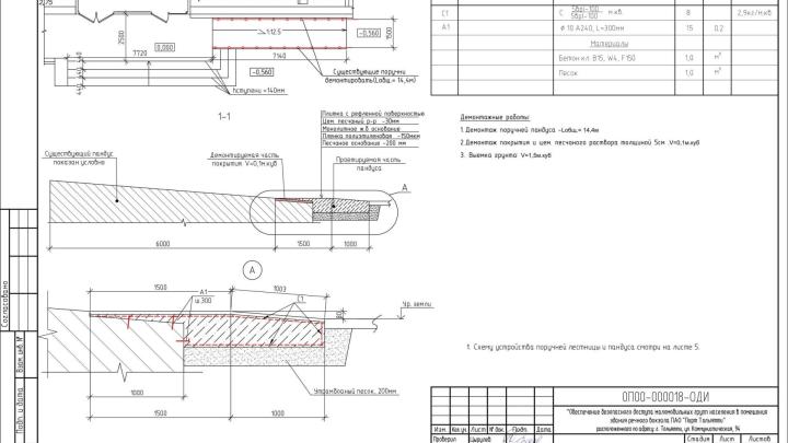
Для посетителей группы мобильности М4 доступ осуществляется по пандусу. Существующий пандус главного входа в здание необходимо удлинить и создать промежуточную площадку. На выход из здания в сторону причала будет поставлен быстровозводимый пандус- конструктор.

Проектом предусмотрен монтаж наружного вызывного устройства персонала для людей, нуждающихся в оказании помощи при подъеме по пандусу. Высота установки должна быть в 0,85-1,1 метра от уровня пешеходной поверхности согласно. Сигнал с вызывного устройства подается через приемное устройство в место постоянного пребывания персонала.

Для людей передвигающихся в креслах-колясках посадка на водный транспорт осуществляется при помощи универсального гусеничного лестничного подъемника. Подъемник предназначен для преодоления лестниц человеком, находящимся в кресле-коляске. Управлении подъемником осуществляется сотрудником речного вокзала.

Все ТНУ, независимо от основного назначения, типа материала и технологии установки, для лучшей видимости слабовидящими людьми должны быть желтого цвета на темной поверхности или черного цвета на светлой поверхности, согласно ГОСТ Р 52875-2018 п. 4.1.4. Краевые ступени лестницы следует выделить контрастной полосой шириной 0,08-0,1 метра в соответствии с п. 6.2.8 СП 59.13330.2020, чтобы обеспечить контрастность тактильной полосы по отношению к цвету ступеней. Монтаж тактильных наземных указателей следует выполнять в соответствии с графической частью проекта.

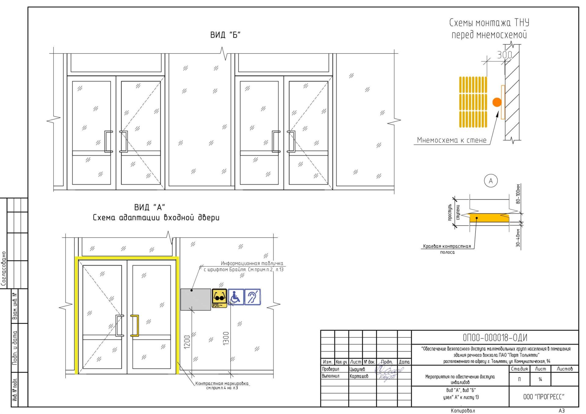
В соответствии с пунктом 6.5.1 СП 59.13330.2020, элементы здания, которые должны быть доступны для маломобильных групп населения, должны быть идентифицированы с помощью технических средств информирования. Для этого необходимо обозначать их соответствующими знаками доступности, такими как пиктограммы "доступность для инвалидов по слуху", "доступность для инвалидов по зрению" и "доступность для инвалидов на креслах-колясках".

Согласно пункту 6.5.9 СП 59.13330.2020, информационные тактильные таблички с указанием названия и режима работы помещений должны быть установлены рядом с входной дверью со стороны дверной ручки на высоте от 1.2 м до 1.6 м для людей с нарушением зрения. Эти таблички должны быть выполнены с использованием рельефных знаков и символов, а также рельефно-точечного шрифта Брайля. Чтобы обеспечить контрастность, информационные тактильные таблички должны быть выполнены на светлом фоне с темными оттенками для текста.

Также при входе в здание и внутри здания для инвалидов по зрению должна быть установлена информационная тактильная мнемосхема, которая будет отображать информацию о помещениях в объекте. На кассе для получения услуги также необходимо разместить портативные индукционные системы, которые будут усиливать восприятие звука для людей с недостатками слуха и использующих слуховой аппарат с режимом "Т".

Перечень использованных нормативных и регламентирующих
документов

1. СП 59.13330.2020 «Доступность зданий и сооружений для маломобильных групп населения». Актуализированная редакция СНиП 35-01-2001.
2. СП 136.13330.2012 «Здания и сооружения. Общие положения проектирования с учетом доступности для маломобильных групп населения» (с Изменениями №1).
3. СП 138.13330.2012 «Общественные здания и сооружения, доступные маломобильным группам населения. Правила проектирования» (с Изменениями №1).
4. ГОСТ Р 50602-93 «Кресла-Коляски. Максимальные габаритные размеры».
5. ГОСТ Р 51261-17 «Устройства опорные стационарные реабилитационные. Типы и технические требования».
6. ГОСТ Р 52131-2019 «Средства отображения информации знаковые для инвалидов. Технические требования».
7. ГОСТ Р 52875-2018 «Указатели тактильные наземные для инвалидов по зрению. Технические требования».

Оставьте свои контакты в полях ниже, и мы с вами свяжемся для обсуждения вашего проекта.

Выделите опечатку и нажмите Ctrl + Enter, чтобы отправить сообщение об ошибке.