Работаем по всей России

Разработанный проект по обеспечению доступа инвалидов к зданиям и территории Московского государственного института культуры

Настоящий проект разработан компанией "Вертикаль" в целях обеспечения беспрепятственного доступа к помещениям Московского государственного института культуры для людей с ограниченными возможностями и маломобильных групп населения (МГН) по принципу «разумного приспособления». Объектами адаптации стали:

  • главный учебный корпус, расположенный по адресу: г. Химки, ул. Библиотечная, д. 7;
  • учебный корпус КПР,расположенный по адресу: г. Химки, ул. Библиотечная;
  • спорткомплекс, расположенный по адресу: г. Химки, ул. Библиотечная, д. 1А;
  • учебный корпус, расположенный по адресу: г. Химки, ул. Библиотечная, д. 7;
  • студенческое общежитие №2, расположенное по адресу: г. Химки, ул. Библиотечная, д. 12;
  • библиотечный корпус, расположенный по адресу: г. Химки, ул. Библиотечная, д. 13;
  • здание котельной, расположенное по адресу: г. Химки, ул. Библиотечная, д. 11;
  • столовая, расположенная по адресу: г. Химки, ул. Библиотечная, д. 7;
  • клуб, расположенный по адресу: г. Химки, ул. Библиотечная, д. 9;
  • учебно-вспомогательный корпус, расположенный по адресу: г. Химки, ул. Библиотечная, д. 5;
  • территория Московского государственного института культуры.

Проектная документация разработана на основании: технического задания на проектирование; исходных данных по каждому объекту, представленных заказчиком; результатах обследования; действующих строительных норм и правил.

В проекте предусматривается комплекс мероприятий по повышению качества архитектурной среды при соблюдении досягаемости мест целевого посещения кратчайшим путем и беспрепятственного перемещения внутри помещений объекта; безопасности путей движения, а также мест обслуживания; своевременного получения МГН полноценной и качественной информации, позволяющей ориентироваться в пространстве, использовать оборудование (в том числе для самообслуживания), получать услуги, и т.д.

Данные проектные решения не ограничивают условия жизнедеятельности и не ущемляют возможности других групп населения, находящихся в помещениях и на территории МГИК. После реализации мероприятий, предусмотренных проектом, будет обеспечиваться возможность безбарьерного следования инвалидов групп мобильности М1-М4 от центрального входа к требуемым внутренним помещениям.

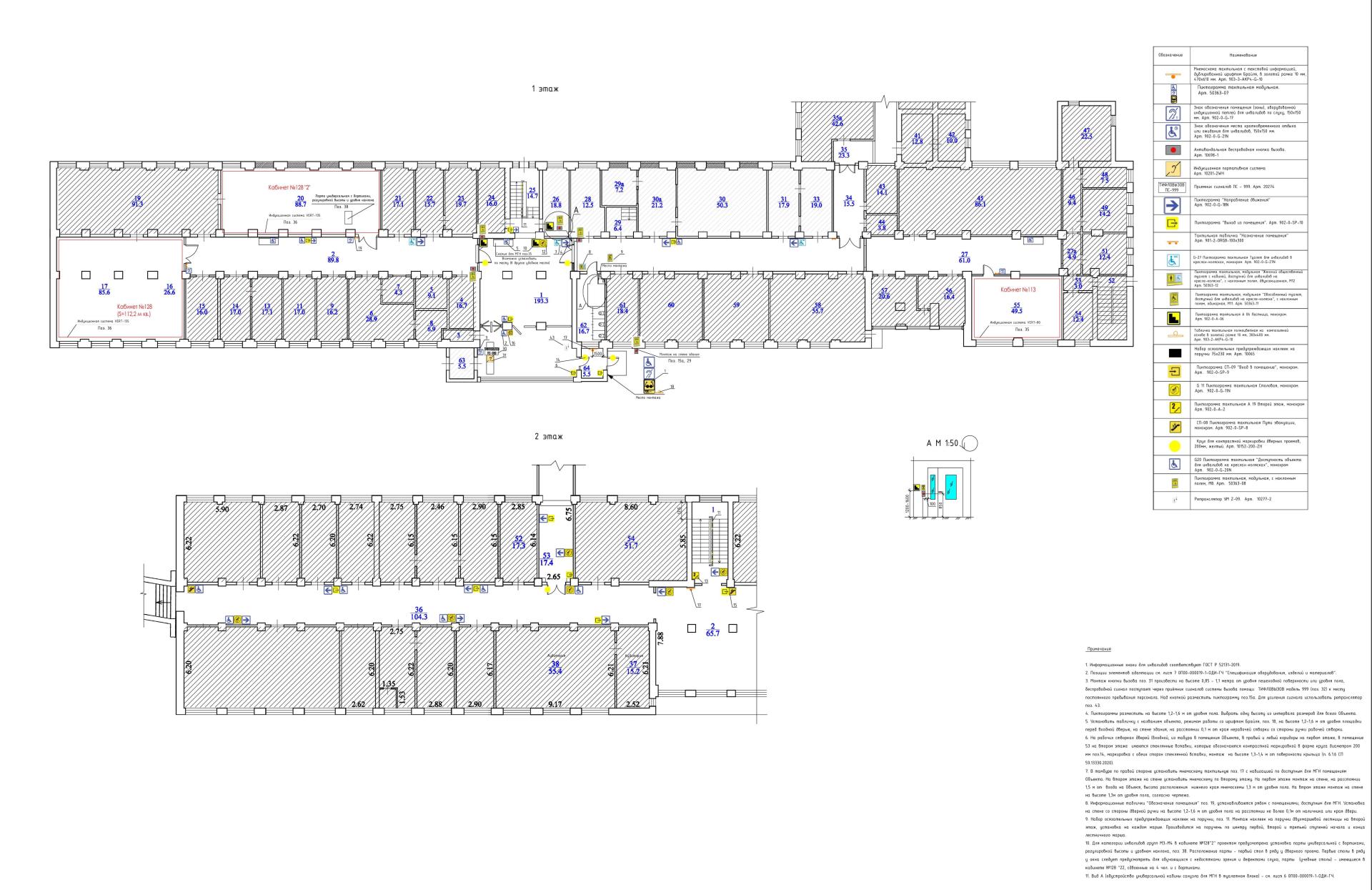
Мероприятия обеспечения доступности инвалидов в помещениях Московского государственного института культуры

Мероприятия по адпатации для людей с нарушением зрения

В проекте предусмотрен самостоятельный путь движения МГН групп М1-М4 от центрального входа к требуемым внутренним помещениям.

В соответствии с СП 59.13330.2020 технические средства информирования, ориентирования и сигнализации в местах массового посещения должны обеспечивать посетителям объекта возможность однозначной информации объектов и мест посещения, получения информации о размещении и назначении функциональных элементов, об ассортименте и характере предоставляемых услуг, надежной ориентации в пространстве.

Необходимо установить табличку с названием объекта, режимом работы со шрифтом Брайля, на высоте 1,2-1,6 м от уровня площадки перед входной дверью, на стене здания, на расстоянии 0,1 м от края нерабочей створки со стороны ручки рабочей створки.

Важно сохранять интервал высоты размещения тактильных и тактильно-визуальных указатлей на всех объектах.

Проектом предусмотрены визуальные и тактильно-визуальные указатели. Их можно увидеть на приложенных эскизах.

Согласно п.6.2.8 СП 59.13330.2020, на проступях краевых ступеней лестницы должны быть нанесены противоскользящие полосы, контрастные к поверхности ступени, общей шириной 0,08-0,1 м.

Проектом рекомендуется монтаж угловой противоскользящей накладки, цвет желтый. Г- образная накладка для ступеней имеет тактильную поверхность и контрастную маркировку. Предназначена для обеспечения безопасного движения людей с нарушением зрения. Наиболее оптимально маркировать ступени контрастной лентой с тактильным эффектом в алюминиевом профиле, так как он рассчитан на высокую проходимость. Желтый цвет наиболее оптимален при выборе цвета для контрастной маркировки, так как является последним цветом спектра, который могут увидеть люди с серьезными нарушениями зрения.

На первом этаже на входе из помещения 34 в помещение 35 имеется уступ на повышение высотой 60 мм, в помещении 35 на повороте в коридоре имеется уступ на повышение высотой 90 мм. Уступы обозначены контрастной самоклеящейся лентой желтого цвета. 

Мероприятия по адаптации для людей с нарушением слуха

Для усиления восприятия информации людьми с нарушениями по слуху (использующих слуховые аппараты) в ограниченном пространстве и при большом скоплении людей, а также при наличии посторонних звуков или преграды между собеседниками используются специальные системы индукционного типа. Производство таких устройств основано на высококачественных комплектующих элементах.

Конструктивно индукционная система представляет собой усилитель звуковой частоты. При работе исходный звук (музыка, речь, информационные сообщения) передаются на вход усилителя, а затем обработанный сигнал направляется в нагрузку. Кабель начинает генерировать магнитное поле, которое способно меняться в зависимости от звуковых колебаний. В приемной катушке прибора образуются токи, копирующие исходный звуковой сигнал (такие колебания могут принимать устройства, работающие по типу индукционной катушки). Полученный сигнал затем воспроизводится с помощью наушников, что увеличивает разнообразие передаваемых звуков даже при наличии существенных акустических преград.

Проектом предусмотрено, в соответствии с техническим заданием, оборудование стационарными индукционными сиcтемами VERT (выбирается, исходя из площади помещения) следующих помещений: кабинеты № 128, 128 «2», 113. Характеристики и ввод устройства в работу описаны подробно в паспортах на изделия.

Также проектом предусмотрена установка индукционной портативной петли VERT-1a на месте постоянного присутствия персонала, которую можно при необходимости переносить в другие помещения.

Портативная индукционная петля VERT-1a предназначена для использования на рабочем столе, чтобы пиктограмма была обращена в сторону слабослышащего. Площадь покрытия: 1,2 м2 в рабочем диапазоне 1кГц. Индукционные системы предназначены для использования только внутри Объекта. Устройства не содержит элементов и деталей, предназначенных для самостоятельного обслуживания. Обслуживание и установку может производить только квалифицированный персонал. Слабослышащему необходимо переключить свой слуховой аппарат в режим индукционной катушки «Т».

Мероприятия по адаптации для людей, передвигающихся на кресле-коляске

На Объекте вход расположен на нулевом уровне. Рядом со входом на Объект на стене здания с правой стороны от входной двери проектом предусматривается установка кнопки вызова ситуационной помощи персонала. Монтаж кнопки вызова произвести на высоте 0,85 - 1,1 метра от уровня пешеходной поверхности, беспроводной сигнал поступает через приёмник сигналов системы вызова помощи ТИФЛОВЫЗОВ модель 999 к месту постоянного пребывания персонала.

Поверхность покрытия площадки перед дверью на Объект должна быть не скользкой, допустимый коэффициент сцепления в условиях сырой погоды и отрицательных температур должен быть не менее 0,4. Согласно п.6.2.4 СП 59.13330.2020, дверные проемы не должны иметь порогов и перепадов пола, или их высота не должна превышать 0,014 м.

На первом этаже объекта правый и левый входы в коридоры оборудованы ступенями. Для МГН М4 на ступени по проекту устанавливаются подставные пандусы индивидуального изготовления. Согласно п.6.2.9 СП 59.13330.2020, продольный уклон инвентарного пандуса должен быть не более 1:12, в данном случае это невозможно, так как расчетные длины пандусов будут мешать открыванию находящихся рядом дверей в помещения 4, 28, 62, 35. Пандусы переносные,устанавливаются при необходимости, постоянно находятся на хранении во вспомогательном помещении. Согласно п. 6.2.10 СП 59.13330.2020, тактильные контрастные напольные указатели перед пандусами не предусматриваются.

Для МГН М4 доступ к локации «Столовая» осуществляется через переход из Учебного корпуса, при этом доступ с первого этажа объекта в данную локацию не предусматривается.

Мероприятия ОДИ на территории МГИК

После реализации мероприятий, предусмотренных проектом, будет обеспечиваться возможность безбарьерного следования инвалидов групп мобильности М1-М4 от центрального входа на территорию (КПП-1) и от альтернативного входа на территорию (КПП2) к требуемым корпусам Объекта.

Корпуса Объекта, к которым, согласно техническому заданию на проектирование, осуществляется доступ МГН:

  • Главный учебный корпус;
  • Учебный корпус КПР;
  • Спорткомплекс;
  • Учебный корпус;
  • Студенческое общежитие №2;
  • Библиотечный корпус;
  • Здание котельной;
  • Столовая;
  • Клуб;
  • Учебно-вспомогательный корпус.

Все вышеперечисленные корпуса территориально находятся на одной стороне по ул. Библиотечной, г. Химки, кроме Студенческого общежития №2. Общежитие расположено на другой стороне автомобильной дороги по ул. Библиотечной. Недалеко от центральной проходной находятся остановки общественного транспорта в одну и другую сторону направления движения.

В рамках МОДИ планируется адаптировать пути движения по территории объекта: адаптация путей движения автотранспорта, адаптация путей движения людей, обустройства мест отдыха для инвалидов и МГН, установка визуальной, тактильно-визуальной, тактильно-звуковой навигации. 

Согласно проекту, необходимо обустроить парковки для МГН по маршруту движения автотранспорта. Количество и месторасположение парковочных мест для автотранспорта МГН согласовано с заказчиком. Необходимо обустроить площадки под парковочные места для МГН: одно парковочное место у клуба; одно парковочное место у студенческого общежития №2; два парковочных места у здания котельной; два парковочных места за спорткомплексом.

Площадка под одно парковочное место имеет размеры 6000х4800 мм.

В проекте заложены работы по обустройству тротуара от Библиотечного корпуса к зданию котельной. Ширина тротуара равна 2,0 м. Примыкания тротуара к имеющемуся тротуару на объекте и проезжей части (предусмотрена вдоль тротуара, проектом не разрабатывается) выполнить в одном уровне, допускается разница отметок не более 14 мм. В местах пересечения тротуара и проезжей части, где перепад составляет более 0,015м., пешеходные пути обустраивают съездами с двух сторон проезжей части, либо выполняют плавным понижением с уклоном не более 1:20 (5%). На переходе через проезжую часть устанавливают бордюрные съезды шириной не менее 1,5м, которые не должны выступать на проезжую часть. Продольный уклон тротуара не должен превышать 5%, поперечный 2%.

Перечень использованных нормативных и регламентирующих документов

  1. СП 59.13330.2020 «Доступность зданий и сооружений для маломобильных групп населения». Актуализированная редакция СНиП 35-01-2001.
  2. СП 136.13330.2012 «Здания и сооружения. Общие положения проектирования с учетом доступности для маломобильных групп населения» (с Изменениями №1).
  3. СП 138.13330.2012 «Общественные здания и сооружения, доступные маломобильным группам населения. Правила проектирования» (с Изменениями №1).
  4. ГОСТ Р 50602-93 «Кресла-Коляски. Максимальные габаритные размеры».
  5. ГОСТ Р 51261-2022 «Устройства опорные стационарные для маломобильных групп населения. Типы и общие технические требования».
  6. ГОСТ Р 52131-2019 «Средства отображения информации знаковые для инвалидов. Технические требования».
  7. ГОСТ Р 52875-2018 «Указатели тактильные наземные для инвалидов по зрению.Технические требования».
  8. ГОСТ Р 55556-2013 «Платформы подъемные для инвалидов и других маломобильных групп населения. Требования безопасности и доступности. Часть 2. Платформы подъемные с наклонным перемещением».
  9. Приказ Минтруда России от 30.07.2015 № 527н "Об утверждении Порядка обеспечения условий доступности для инвалидов объектов и предоставляемых услуг в сфере труда, занятости и социальной защиты населения, а также оказания им при этом необходимой помощи".

Введите данные, и мы свяжемся с вами для обсуждения деталей будущего проекта учебного заведения.

Выделите опечатку и нажмите Ctrl + Enter, чтобы отправить сообщение об ошибке.