Работаем по всей России

Проектирование доступной среды в помещениях офиса ВТБ банка для МГН

Настоящий проект разработан компанией «Вертикаль» в целях обеспечения беспрепятственного доступа инвалидов и других маломобильных групп населения (МГН) согласно принципу «разумного приспособления» к помещениям стоющегося офис Банка «ВТБ» в здании по адресу: Омская обл., г. Омск, пр-кт Карла Маркса, д. 84.

Проектная документация разработана на основании: технического задания на проектирование; представленных заказчиком данных; результатах фактического обследования помещения; действующих строительных норм и правил.

В проекте предусматривается комплекс мероприятий по повышению качества архитектурной среды при соблюдении: обеспечение кратчайшего маршрута до мест целевого посещения; создание песпрепятственных маршрутов; безопасности путей движения; безопасности мест обслуживания; создание информационной среды, предоствляющей МГН своевременно полноценное получение качественной информации об объекте.

После реализации мероприятий, предусмотренных проектом, будет обеспечиваться возможность безбарьерного следования инвалидов групп мобильности М1-М4 от входа здания к внутренним помещениям. Все проектные решения, предпринятые и реализованные в проекте, не ограничивают условия жизнедеятельности других групп населения, находящихся в любом из помещений банка.

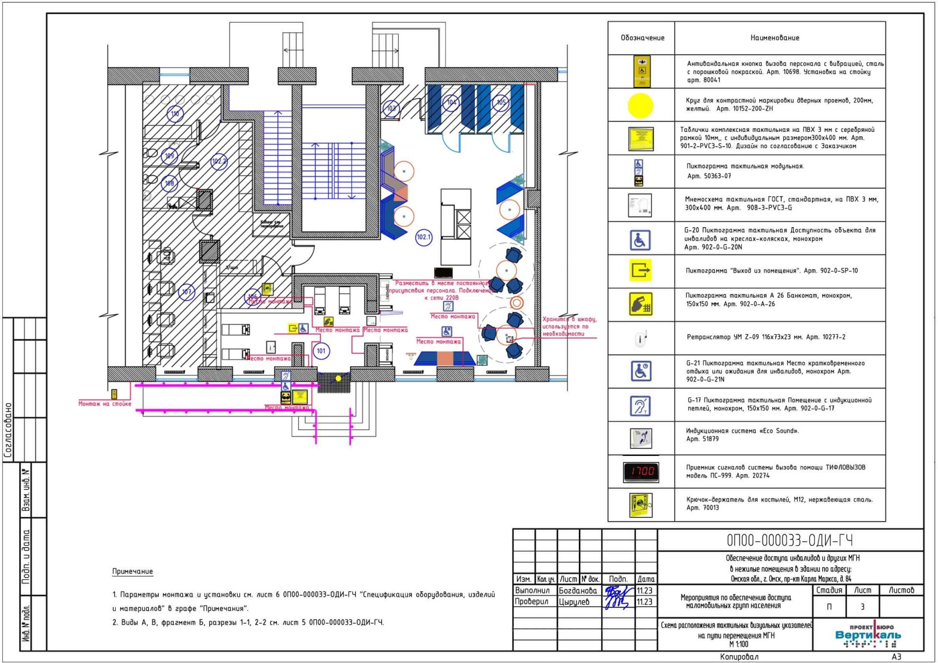
Мероприятия по адаптации для людей с нарушением зрения

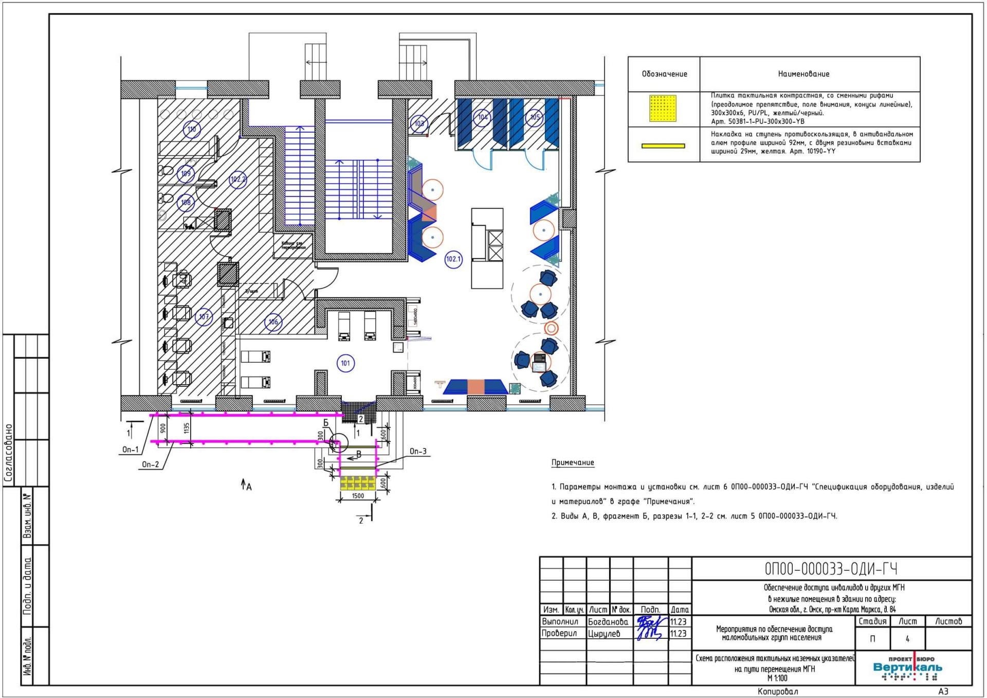
Тактильные настенные указатели на путях перемещения МГН


В соответствии с СП 59.13330.2020 технические средства информирования, ориентирования и сигнализации в местах массового посещения должны обеспечивать посетителям объекта возможность однозначной информации объектов и мест посещения, получения информации о размещении и назначении функциональных элементов, об ассортименте и характере предоставляемых услуг.

Проектом предусмотрены тактильные визуальные указатели на путях перемещения МГН.

Монтаж тактильных визуальных указателей осуществлять на высоте 1,2-1,6 м от уровня пешеходной поверхности. Для размещения всех указателей на объекте выбрать одну высоту из интервала высот.

Согласно п.6.1.6 СП 59.13330.2020 входные двери, доступные для инвалидов и МГН, должны быть хорошо опознаваемы и иметь знак, указывающий на доступность здания. На прозрачной рабочей створке входной двери в проекте заложена контрастная маркировка в форме круга диаметром 0,2 м, расположенная на двух уровнях - 0,9м и 1,4м с обеих сторон стеклянного полотна.

Ручка входной двери из серебристого металла по цвету сливается с окантовкой двери светло-серого цвета, что не соответствует п. 6.4.2 СП 59.13330.29020. В проекте рекомендуется установка ручки контрастного цвета или выделение цветом участка ручки для идентификации ее слабовидящими людьми. Выделение цветом дверного проема входной двери не требуется, так как имеется цветовой контраст полотна двери и прилегающих стен здания.

Тактильные наземные указатели (ТНУ) на путях перемещения МГН


Локальный предупреждающий указатель «внимание, прямо по ходу движения – лестница». Указатель глубиной от 500 до 600 мм и шириной, равной ширине участка лестницы, разрешенного для движения инвалидов. Рифы типа усеченных конусов, усеченных куполов, цилиндров, расположенных в линейном порядке. Располагается на расстоянии 300 мм от кромки проступи первой и последней ступени лестничного марша. Выполняется плиткой тактильной контрастной желтого цвета.

Согласно п.6.2.8 СП 59.13330.2020, на проступи нижней и верхней ступеней крыльца установлена накладка противоскользящая, контрастная с поверхностью ступени, желтого цвета, общей шириной 0,08-0,1 м.

Устройство тактильных напольных указателей в помещениях проектом не предусматривается ввиду их травмоопасности для людей с нарушениями опорно- двигательной системы. Помощь инвалидам по зрению в сопровождении к месту обслуживания оказывает специально обученный сотрудник банка.

Мероприятия для людей с дефектом слуха

Для усиления восприятия информации людьми с нарушениями по слуху (использующих слуховые аппараты) в ограниченном пространстве и при большом скоплении людей, а также при наличии посторонних звуков или преграды между собеседниками используются специальные системы индукционного типа. Конструктивно индукционная система представляет собой усилитель звуковой частоты. При работе исходный звук (музыка, речь, информационные сообщения) передаются на вход усилителя, а затем обработанный сигнал направляется в нагрузку. Кабель начинает генерировать магнитное поле, которое способно меняться в зависимости от звуковых колебаний. В приемной катушке прибора образуются токи, копирующие исходный звуковой сигнал (такие колебания могут принимать устройства, работающие по типу индукционной катушки). Полученный сигнал затем воспроизводится с помощью наушников, что увеличивает разнообразие передаваемых звуков даже при наличии существенных акустических преград.

Проектом предусмотрена установка индукционной портативной системы «UitraSonic» на месте обслуживания МГН. Портативная индукционная петля предназначена для использования на столе, чтобы пиктограмма была обращена в сторону слабослышащего. Площадь покрытия: 1,2 м2 в рабочем диапазоне 1кГц. Слабослышащему необходимо переключить свой слуховой аппарат в режим индукционной катушки «Т».

Мероприятия по адаптации для людей, передвигающихся на креслах-
колясках

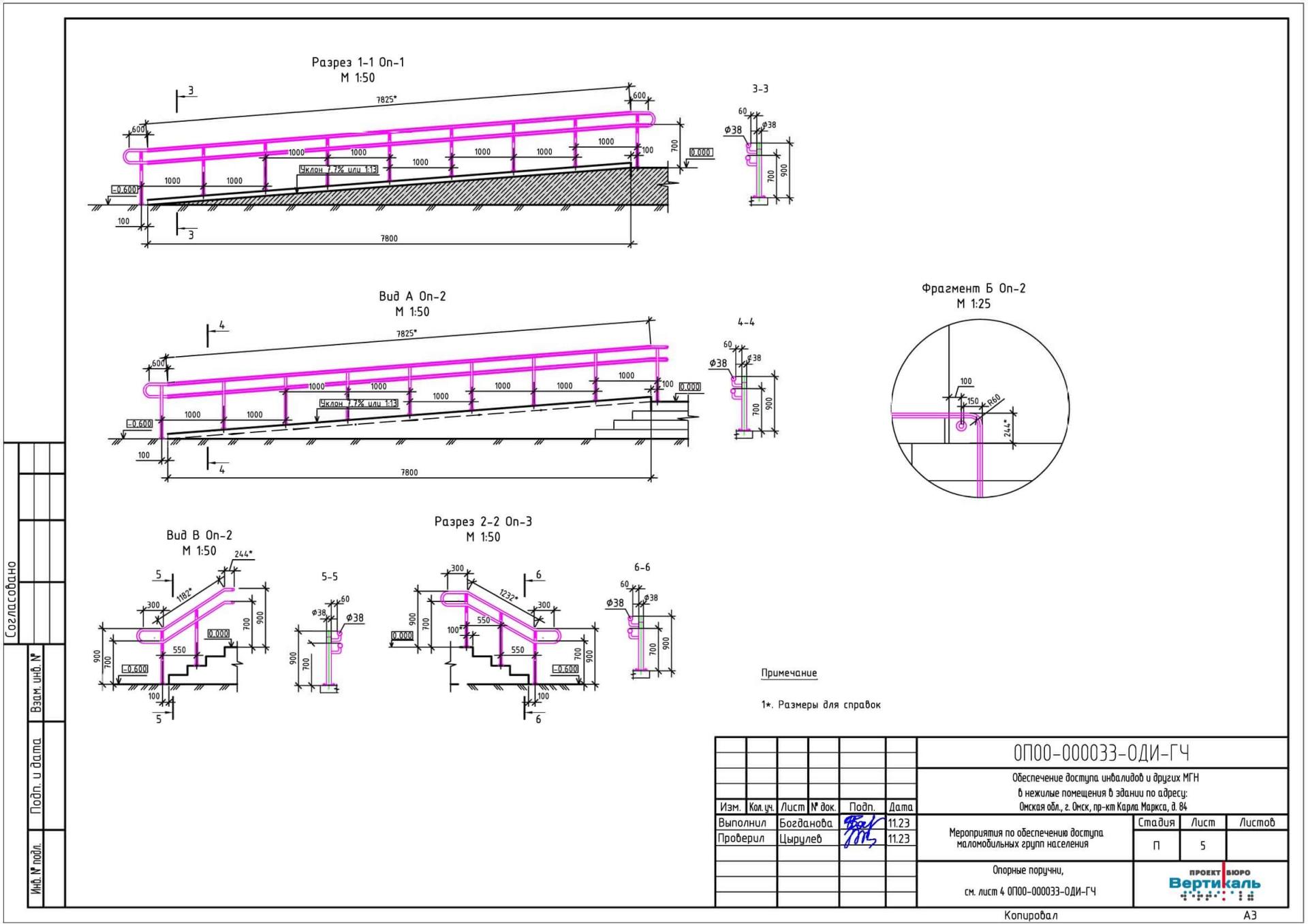
Доступ для инвалидов на креслах–колясках осуществляется по пандусу. Уклон пандуса 1:13. Проектом предусмотрена установка поручней, отвечающих требованиям ГОСТ Р 51261-2022. Перед непосредственно предусматривается установка кнопки вызова персонала. Приемное устройство сигнала предлагается расположить на столе в зоне постоянного пребывания персонала.

Требования к месту получения услуги для МГН: поверхность столов индивидуального пользования, прилавков, низа окон касс, справочных мест обслуживания и других мест, используемых посетителями, необходимо устанавливать на высоте не более 0,80 – 0,85 м над уровнем пола. Ширина и высота проема для ног должны быть не менее 0,75м, глубина – не менее 0,50м (п.8.1.7 СП 59.13330.2020). Дисплей терминала, слот банкомата и другие рабочие дисплеи, которыми могут воспользоваться МГН внутри здания, следует устанавливать на высоте не более 1.1 м и не менее 0,85м от пола, на расстоянии не менее 0,6 м от боковой стены помещения, согласно п. 6.4.2 СП 59.13330.2020.

Поверхность покрытия крылец (входная группа) должна быть не скользкой, допустимый коэффициент сцепления в условиях сырой погоды и отрицательных температур должен быть не менее 0,4.

Данное помещение офиса Банка «ВТБ» не является центром ипотечного кредитования, регламент обслуживания клиентов менее 60 мин., имеющиеся санитарные узлы не адаптируются для обслуживания МГН.

Поверхность покрытия крылец (входная группа) должна быть не скользкой, допустимый коэффициент сцепления в условиях сырой погоды и отрицательных температур должен быть не менее 0,4.

Данное помещение офиса Банка «ВТБ» не является центром ипотечного кредитования, регламент обслуживания клиентов менее 60 мин., имеющиеся санитарные узлы не адаптируются для обслуживания МГН.

Перечень использованных нормативных и регламентирующих документов


1. СП 59.13330.2020 «Доступность зданий и сооружений для маломобильных групп населения». Актуализированная редакция СНиП 35-01-2001.
2. СП 136.13330.2012 «Здания и сооружения. Общие положения проектирования с учетом доступности для маломобильных групп населения» (с Изменениями №1).
3. СП 138.13330.2012 «Общественные здания и сооружения, доступные маломобильным группам населения. Правила проектирования» (с Изменениями №1).
4. ГОСТ Р 50602-93 «Кресла-Коляски. Максимальные габаритные размеры».
5. ГОСТ Р 51261-2022 «Устройства опорные стационарные для маломобильных групп населения. Типы и общие технические требования».
6. ГОСТ Р 52131-2019 «Средства отображения информации знаковые для инвалидов. Технические требования».
7. ГОСТ Р 52875-2018 «Указатели тактильные наземные для инвалидов по зрению. Технические требования».

Заказать проект

Выделите опечатку и нажмите Ctrl + Enter, чтобы отправить сообщение об ошибке.