Работаем по всей России

Проект создания безбарьерной среды для муниципальной дошкольной образовательной организации на 420 мест в г. Владивостоке

Настоящий проект разработан в целях обеспечения беспрепятственного доступа к помещениям объекта для людей с ограниченными возможностями и маломобильных групп населения (МГН) по принципу «разумного приспособления». Разработан том проектной документации «Мероприятия по обеспечению доступной среды для инвалидов (ОДИ)» к объекту капитального строительства муниципальной дошкольной образовательной организации на 420 мест, расположенного по адресу: г. Владивосток, в районе ул. 2я Поселковая, д.1а.

Проектная документация разработана в соответствии с действующей нормативной и технической документацией, включая Федеральные законы №384ФЗ и №123ФЗ, Постановление Правительства РФ №87, СП 59.13330.2020, СП 136.13330.2012, СП 138.13330.2012 и соответствующие ГОСТы.

Комплекс мероприятий по адаптации для людей с нарушением зрения

Тактильные настенные указатели на путях перемещения МГН. Для обеспечения надежной ориентации в пространстве проектом предусмотрена установка системы тактильно-визуальных указателей:

  • Тактильная визуальная табличка с дублированием информации по системе Брайля с указанием наименования учреждения и режима работы
  • Знак доступности объекта для инвалидов, передвигающихся на креслах-колясках, для инвалидов по слуху и для инвалидов по зрению
  • Знак обозначения туалета, доступного для инвалидов всех категорий
  • Знак обозначения помещения (зоны), оборудованной индукционной петлей для инвалидов по слуху, размером 150×150 мм
  • Знак обозначения кнопки вызова экстренной помощи, размещаемый над кнопкой вызова в туалетах, доступных для инвалидов на креслах-колясках

Монтаж тактильных визуальных указателей осуществляется на высоте 1,3 м от уровня пешеходной поверхности до низа табличек.

Парковка и пути движения по территории

Проектом предусмотрены парковочные места для маломобильных групп населения. Общее количество парковочных мест согласно ГПЗУ – 6, в т.ч. 1 машино-место для инвалидов группы М4. Габариты специализированного места для стоянки транспортных средств инвалида на кресле-коляске приняты размерами 6,0×3,6 м.

В соответствии с п.5.1.10 СП 59.13330.2020 проектом предусмотрена установка тактильно-контрастных наземных указателей по ГОСТ Р 52875 на пути следования от парковки до входа в дошкольную образовательную организацию:

  • Предупреждающий указатель «Внимание, прямо по ходу движения – дверь» глубиной 500600 мм
  • Указатель «Поле получения услуги» эффективной глубиной 420510 мм с девятью параллельными продольными рифами
  • Локальный предупреждающий указатель «Внимание, по ходу движения – регулируемый или нерегулируемый наземный пешеходный переход» глубиной 500600 мм

Мероприятия по адаптации для людей с дефектами слуха

Для усиления восприятия информации людьми с нарушениями слуха проектом предусмотрена установка индукционной портативной петли VERT-Альфа на месте обслуживания МГН. Портативная индукционная петля предназначена для использования на рабочей поверхности с площадью покрытия 1,2 м² в рабочем диапазоне 1 кГц.

Мероприятия по адаптации для людей, использующих дополнительные опоры и кресла-коляски

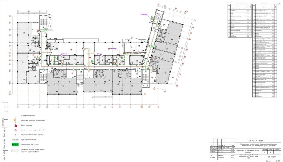
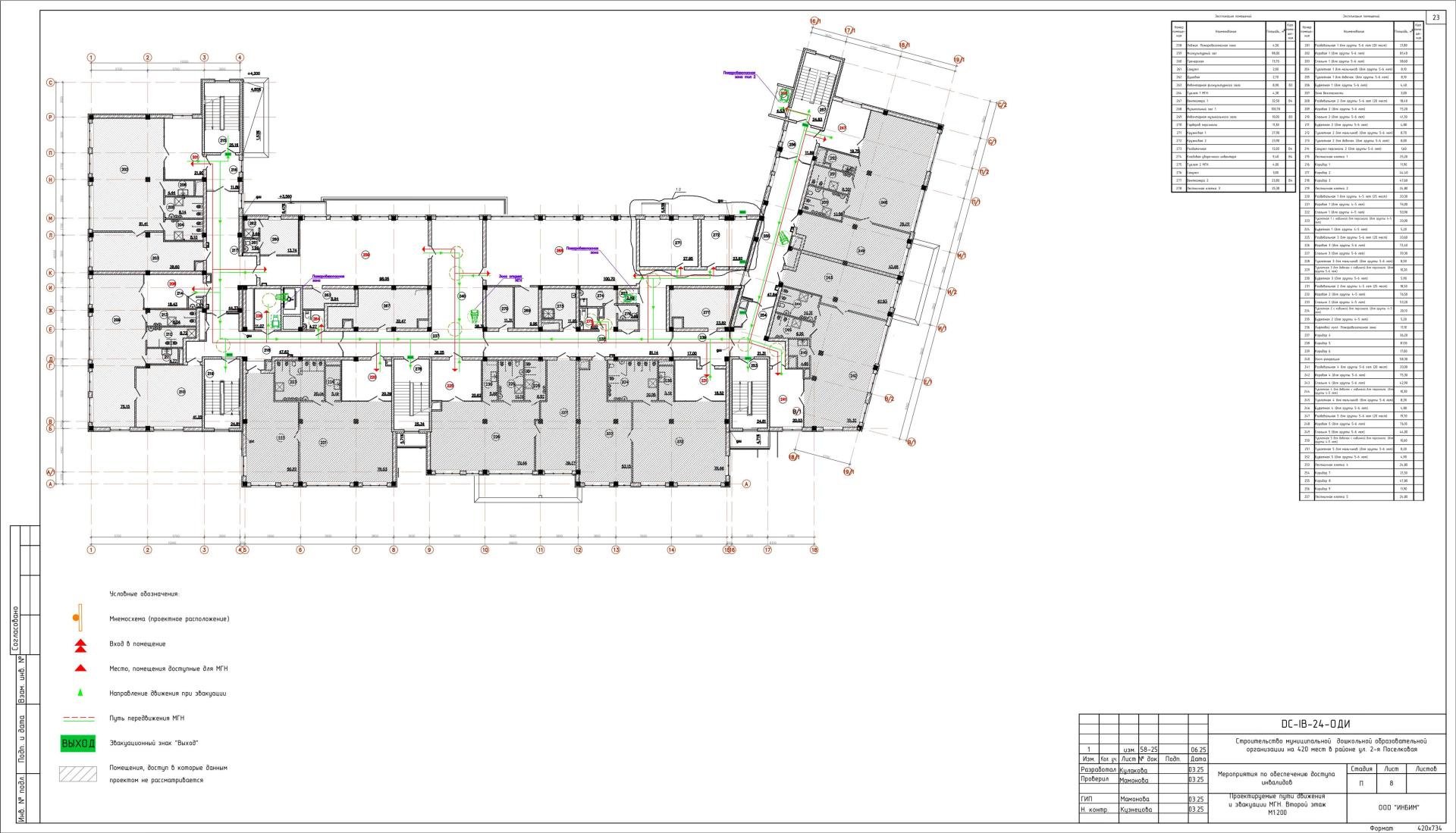
Главный вход на первый этаж выполнен в виде широкой площадки крыльца с габаритными размерами не менее 2,2×2,2 м. Для доступа МГН предусмотрен пандус с продольным уклоном 5% и двухсторонним ограждением из нержавеющей стали с поручнями на высоте 0,9 и 0,7 м.

Турникет для обеспечения контроля на входе принят шириной в свету не менее 0,95 м, приспособленный для пропуска инвалидов на креслах-колясках. Дополнительно предусмотрен боковой проход шириной 1,6 м для обеспечения эвакуации.

Перемещение на верхние этажи осуществляется с помощью грузопассажирского лифта грузоподъемностью 1000 кг с размером кабины 2100×1100 мм. Ширина дверного проема лифта принята не менее 0,9 м. Лифт оборудован речевым оповещателем для инвалидов по зрению и переговорным устройством с отображением визуальной информации для инвалидов по слуху.

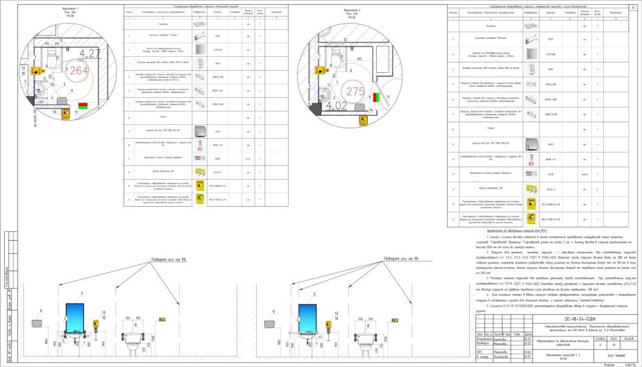
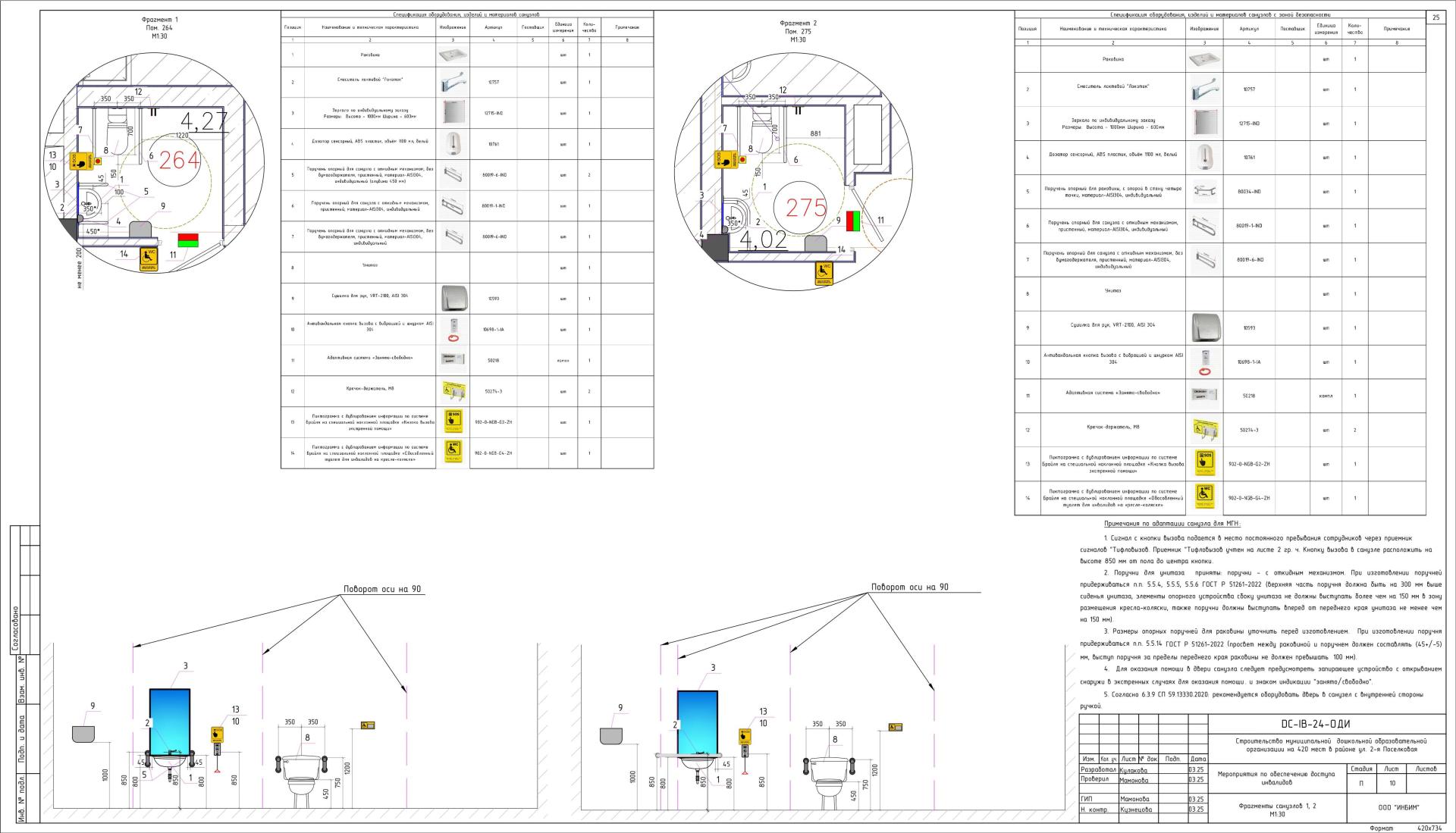
На каждом этаже объекта предусмотрены санузлы для маломобильных групп населения с соблюдением требований п.6.3.7 СП 59.13330.2020:

  • Свободное пространство диаметром 1,4 м для разворота кресла-коляски
  • Пространство шириной не менее 0,8 м сбоку от унитаза для размещения кресла-коляски
  • Установка стационарных и откидных опорных поручней
  • Высота раковины 0,800,85 м над уровнем пола
  • Водопроводные краны с рычажной рукояткой и термостатом

Организация путей эвакуации и пожаробезопасные зоны

Ширина путей эвакуации соответствует нормативным требованиям:

  • Коридоры - не менее 1,8 м
  • Дверные проемы - не менее 0,9 м в свету
  • Лестничные марши - не менее 1,2 м

На объекте приняты три пожаробезопасные зоны на каждом этаже площадью 11,5 м² каждая, что превышает расчетную потребность. Зоны выделены строительными конструкциями с пределами огнестойкости REI 120 и оборудованы системами подпора воздуха при пожаре.

Выполнение полного комплекса запроектированных мероприятий обеспечивает возможность безопасного и независимого передвижения инвалидов всех категорий мобильности (М1-М4) от парковки к входам здания дошкольной образовательной организации и внутренним помещениям. Проектные решения гарантируют не только формальное соответствие нормам, но и создание комфортной инклюзивной образовательной среды для детей и сотрудников с ограниченными возможностями здоровья.

Оставьте свои контакты в полях ниже, и мы с вами свяжемся для обсуждения вашего проекта.

Выделите опечатку и нажмите Ctrl + Enter, чтобы отправить сообщение об ошибке.