Работаем по всей России

Проект обеспечения доступа МГН на придомовую территорию многоквартирного дома №2А г. Смоленск

Настоящий проект разработан в целях обеспечения беспрепятственного доступа людей с ограниченными возможностями и маломобильных групп населения (МГН) на придомовую территорию многоквартирного дома по адресу г. Смоленск, ул. В. Гризодоровой, д. 2А по принципу «разумного приспособления». Проектная документация разработана на основании технического задания, исходных данных Заказчика и в строгом соответствии с актуальными требованиями СП 59.13330.2020, СП 136.13330.2012, ГОСТ Р 51261-2022 и других регламентирующих документов.

Основные проектные решения

1.     В рамках проекта предусмотрен комплекс мероприятий по замене существующих конструкций и созданию новой доступной входной группы:

2.     Демонтаж существующих конструкций. Производится демонтаж существующей лестницы и пандуса для обеспечения монтажа новых конструкций, соответствующих нормативным требованиям.

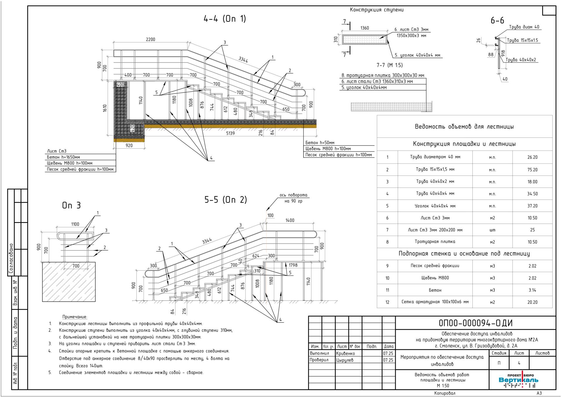
3.     Устройство металлической лестницы. Проектом предусмотрено устройство металлической лестницы шириной 1,36 м. Конструкция ступеней выполняется из стального уголка 40x40x4 мм с последующей укладкой тротуарной плитки. Каркас лестницы изготавливается из профильной трубы 40x40 мм с толщиной стенки 4 мм.

4.     Устройство металлического пандуса. Запроектирован металлический пандус с уклоном 1:12,5, соответствующий требованиям доступности. Покрытие пандуса выполняется из просечно-вытяжного листа (ПВЛ). Несущая рама изготавливается из профильной трубы 40x40 мм с шагом между поперечными перекладинами не более 450 мм.

5.     Устройство входной площадки. Выполняется устройство металлической площадки размерами 2,2x3,03 метра с покрытием из тротуарной плитки. Для обеспечения устойчивости и прочности опорные стойки крепятся к бетонному основанию с помощью анкерного соединения 8/40x90.

6.    Обеспечение безопасности и надежности. Все металлические конструкции выполняются из профильной трубы с толщиной стенки не менее 4 мм. Соединение элементов осуществляется сварным способом. Опорные пятки изготавливаются из стального листа толщиной 3 мм размером 200x200 мм. Анкерное крепление обеспечивает надежную фиксацию конструкции к основанию.

Соответствие нормативным требованиям

Проектные решения обеспечивают:

  • Безопасность путей движения для всех категорий МГН.
  • Соблюдение нормативных уклонов и ширины проходов.
  • Использование материалов, отвечающих требованиям прочности и противоскольжения.

Перечень использованных нормативных и регламентирующих документов

1.  СП 59.13330.2020 «Доступность зданий и сооружений для маломобильных групп населения».

2.  СП 136.13330.2012 «Здания и сооружения. Общие положения проектирования с учетом доступности для маломобильных групп населения».

3.  СП 138.13330.2012 «Общественные здания и сооружения, доступные маломобильным группам населения. Правила проектирования».

4.  ГОСТ Р 50602-93 «Кресла-Коляски. Максимальные габаритные размеры».

5.  ГОСТ Р 51261-2022 «Устройства опорные стационарные для маломобильных групп населения. Типы и общие технические требования».

Оставьте свои контакты в полях ниже, и мы с вами свяжемся для обсуждения вашего проекта.

Выделите опечатку и нажмите Ctrl + Enter, чтобы отправить сообщение об ошибке.