Работаем по всей России

Проект адаптации отделения ПАО «ПСБ» в г. Анапа для маломобильных групп населения

Проект разработан для обеспечения беспрепятственного доступа к помещениям действующего отделения банка для людей с ограниченными возможностями и маломобильных групп населения (МГН).

Основная задача – создать доступную среду по принципу «разумного приспособления», не ограничивая условия жизнедеятельности других посетителей.

Проектные решения базируются на актуальных требованиях СП 59.13330.2020, ГОСТ Р 52131-2019 и методических рекомендациях ЦБ РФ.

Ключевые принципы проекта:

  • Обеспечение кратчайшего и беспрепятственного пути к местам обслуживания.
  • Создание безопасной и понятной навигационной среды для людей с нарушениями зрения и слуха.
  • Оснащение мест обслуживания специализированным оборудованием.

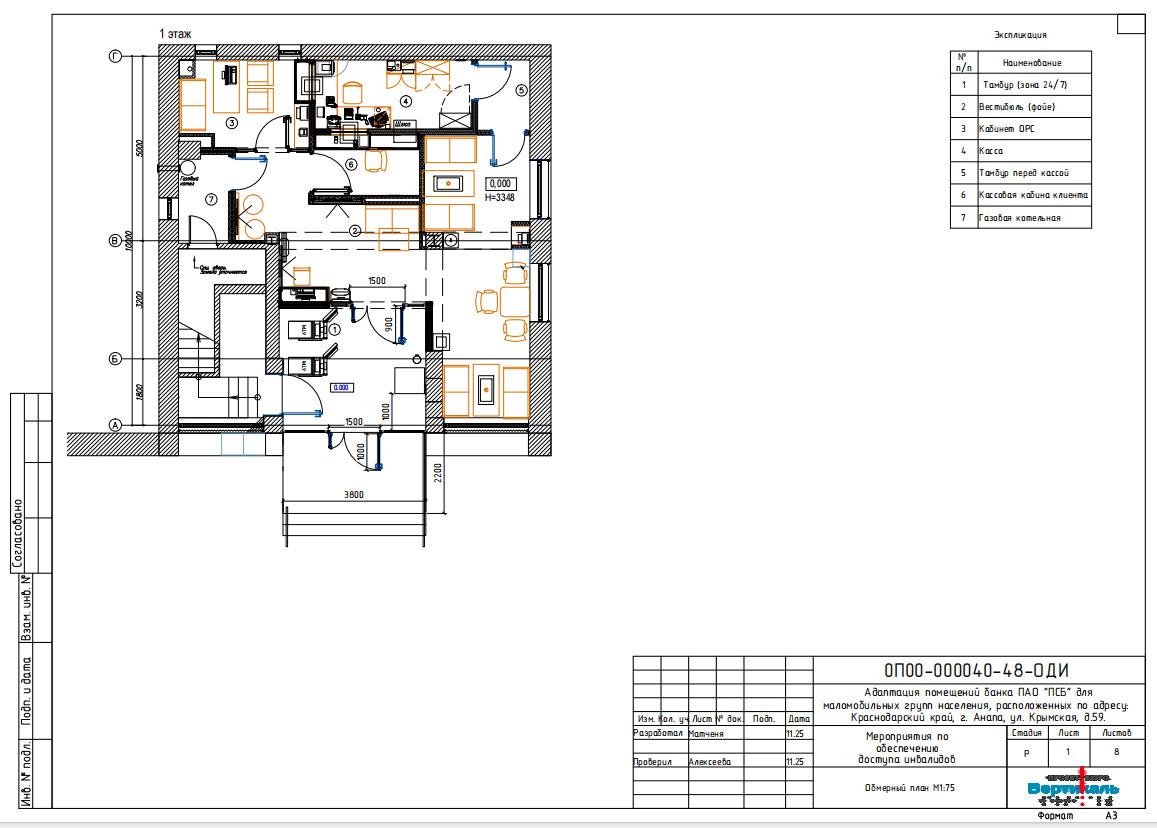
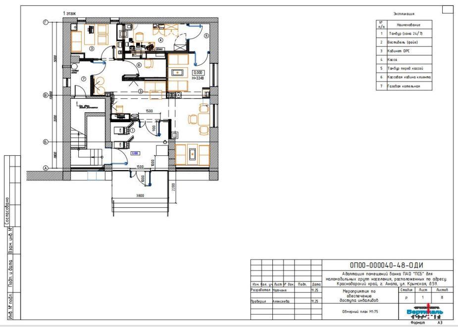
Мероприятия по адаптации входной группы и пути движения

Вход в здание

Рядом с входной дверью устанавливается тактильно-визуальная табличка с названием учреждения и режимом работы, продублированная шрифтом Брайля. На прозрачные полотна дверей наносится яркая контрастная маркировка желтого цвета для их обозначения.

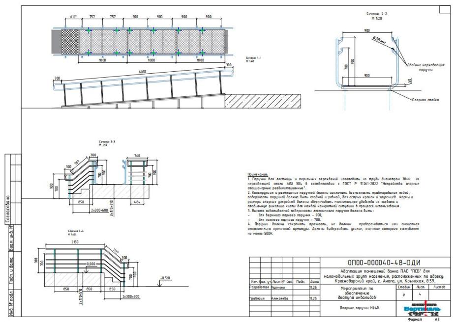
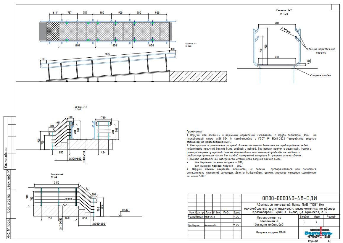
Для преодоления перепада высот предусмотрен пандус-конструктор с уклоном 1:12,5 и двухуровневыми поручнями, а также установлена антивандальная кнопка вызова персонала.

Тактильная навигация внутри помещений

Справа от входа в тамбуре размещается тактильная мнемосхема с планом помещений, выполненная шрифтом Брайля. На путях движения устанавливаются тактильные наземные указатели, предупреждающие о приближении к лестнице, и напольные указатели «Поле получения услуги» перед зонами обслуживания.

Навигационные таблички и пиктограммы (вход, банкомат, зона отдыха) монтируются на стенах на высоте 1,3 метра.

Зоны обслуживания и ожидания

Для посетителей на креслах-колясках предусмотрены параметры стола обслуживания на доступной высоте. Для слабослышащих клиентов проектом предложена установка портативной индукционной системы с функцией субтитрирования «VEGA-1», которая преобразует речь оператора в текст, обеспечивая комфортное общение для людей с полной или частичной потерей слуха.

Адаптация прилегающей территории и эвакуация

Парковочные места

Проект содержит рекомендацию обратиться в администрацию города для выделения на прилегающей парковке не менее 10% мест (минимум одно место) для транспорта инвалидов, включая специализированное расширенное место для людей на креслах-колясках.

Безопасная эвакуация

В качестве эвакуационных выходов для МГН используются основные входы. Ширина дверных проемов на путях эвакуации обеспечивает беспрепятственный проезд кресла-коляски, а пороги не превышают допустимую высоту.

Реализация данного комплекса мероприятий позволит обеспечить в отделении ПАО «ПСБ» в Анапе возможность самостоятельного и безопасного посещения банка для инвалидов всех категорий мобильности (М1-М4), создав комфортные условия для получения финансовых услуг.

Оставьте свои контакты в полях ниже, и мы с вами свяжемся для обсуждения вашего проекта.

Выделите опечатку и нажмите Ctrl + Enter, чтобы отправить сообщение об ошибке.