Работаем по всей России

Проект адаптации отделения ПАО «Банк ПСБ» в пгт. Троицкое для маломобильных групп населения

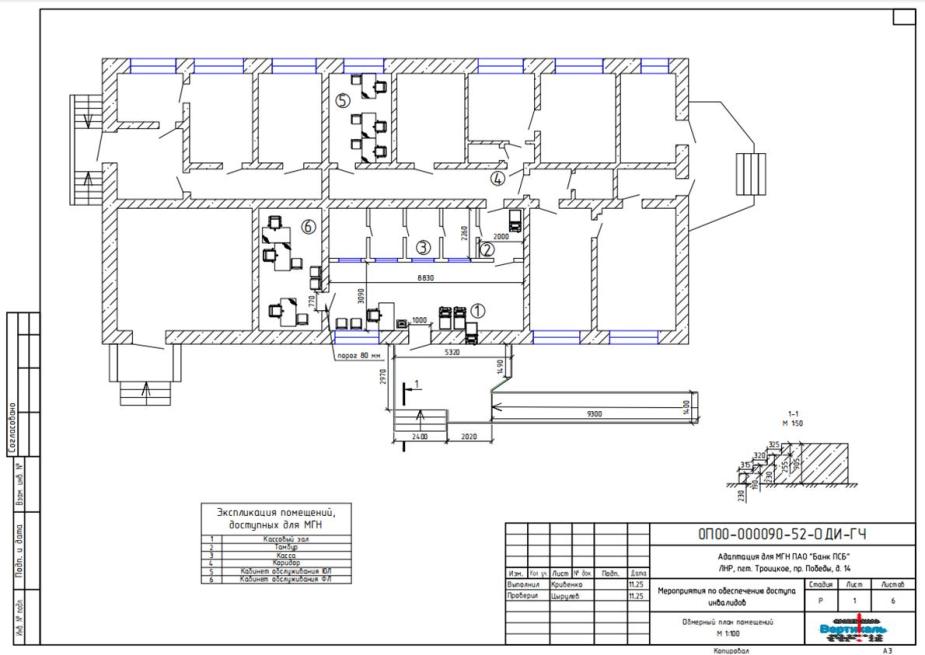
Настоящий проект разработан в целях обеспечения беспрепятственного доступа к помещениям банка для людей с ограниченными возможностями и маломобильных групп населения (МГН) по принципу «разумного приспособления». Адаптации подлежит эксплуатируемое помещение банка, расположенное в поселке городского типа Троицкое.

Проектная документация создана на основании технического задания заказчика, результатов натурного обследования и в строгом соответствии с действующими нормами СП 59.13330.2020, ГОСТ Р 52131-2019 и других регламентирующих документов.

Проектом предусматривается комплекс мероприятий, направленных на повышение качества архитектурной среды и обеспечение беспрепятственного доступа маломобильных групп населения к финансовым услугам. После реализации решений будет обеспечена возможность следования инвалидов групп мобильности М1–М4 от входа в здание до внутренних помещений.

Мероприятия по адаптации входной группы и путей движения

Тактильные визуальные указатели

У входа в здание проектом предусмотрена установка комплексной тактильной таблички с наименованием учреждения и режимом работы, информация на которой дублируется шрифтом Брайля. Справа от входа размещается тактильная мнемосхема (470x610 мм) с планом помещений, выполненная на стойке или стене, что позволяет посетителям с нарушением зрения заранее ознакомиться с планировкой отделения.

Тактильные наземные указатели (ТНУ)

Для обеспечения безопасности и информативности людей с нарушением зрения на путях движения наносятся тактильные наземные указатели из контрастной плитки. Перед входной дверью монтируется предупреждающий указатель «Внимание, по ходу движения – дверь», а перед лестничными маршами – указатели «Внимание, прямо по ходу движения – лестница». На ступенях лестницы наносятся контрастные противоскользящие полосы желтого цвета, что соответствует требованиям п. 6.2.8 СП 59.13330.2020.

Адаптация входных дверей

Для удобства посетителей на креслах-колясках дверные ручки устанавливаются на высоте не более 1,1 м. На стеклянных полотнах входных и тамбурных дверей с обеих сторон размещается контрастная маркировка (желтый круг диаметром 200 мм) на высоте 1,3–1,4 м, делающая двери хорошо заметными для слабовидящих людей.

Система вызова помощи

Учитывая, что существующий пандус имеет уклон 1:10 (изменить конструкцию в стесненных условиях не представляется возможным), проектом предусмотрена установка антивандальной кнопки вызова ситуационной помощи. Приемное устройство сигнала размещается в зоне постоянного нахождения персонала, а для усиления сигнала используется ретранслятор, монтируемый в тамбуре или зале.

Организация путей движения внутри объекта

Горизонтальные коммуникации

На путях движения внутри помещений на высоте 1,3 м от уровня пола устанавливаются тактильные визуальные указатели. Проектом предусмотрены пиктограммы «Доступность входа для инвалидов», обозначения помещений с индукционной петлей, а также знаки мест кратковременного отдыха или ожидания для инвалидов.

Вертикальные коммуникации и безопасность

В качестве эвакуационного выхода для МГН используется главный вход. Места обслуживания инвалидов (кассовый зал, кабинеты обслуживания юридических и физических лиц) располагаются на минимальном расстоянии от эвакуационного выхода. Ширина дверных проемов на путях эвакуации составляет не менее 0,9 м, что соответствует требованиям для людей группы мобильности М4.

Специализированное оборудование

Для слабослышащих посетителей проектом предусмотрена портативная индукционная система. Устройство площадью покрытия 1,2 м² размещается на месте обслуживания и подключается к сети 220В. Слабослышащему достаточно переключить свой слуховой аппарат в режим «Т» для качественного восприятия речи сотрудника банка.

Адаптация зон обслуживания и парковочного пространства

Зона обслуживания инвалидов-колясочников

Для посетителей на креслах-колясках проектом нормируются параметры обслуживания: поверхность стола или нижняя часть окна кассы должна находиться на высоте не более 0,80–0,85 м. Ширина проема для ног составляет не менее 0,75 м, глубина – не менее 0,5 м. В случае невозможности переоборудования существующих касс в регламент работы учреждения вносится пункт об обязательной помощи сотрудника банка при обслуживании инвалидов.

Парковочное пространство

В соответствии с п. 5.2.1 СП 59.13330.2020, на ближайшей автостоянке (не далее 50 м от входа) рекомендуется выделить специализированное машино-место для инвалидов. Количество мест рассчитано как 10% от общего числа парковочных мест, но не менее одного. Разметка и организация такого места выполняются согласно действующим нормативам, что обеспечивает беспрепятственный подход к зданию банка.

После реализации всего комплекса запроектированных мероприятий отделение ПАО «Банк ПСБ» в пгт. Троицкое будет полностью соответствовать требованиям законодательства в части доступности для инвалидов и других маломобильных групп населения. Проектные решения гарантируют безопасное и комфортное получение финансовых услуг, не ограничивая при этом возможности остальных посетителей банка.

Оставьте свои контакты в полях ниже, и мы с вами свяжемся для обсуждения вашего проекта.

Выделите опечатку и нажмите Ctrl + Enter, чтобы отправить сообщение об ошибке.