Работаем по всей России

Проект адаптации отделения ПАО «Банк ПСБ» в пгт. Сартана для маломобильных групп населения

Проектная документация разработана для обеспечения беспрепятственного доступа маломобильных групп населения (МГН) в действующее отделение банка. В основе проекта – принцип «разумного приспособления» существующих помещений к потребностям людей с инвалидностью. Работы выполнены на основании технического задания и в строгом соответствии с СП 59.13330.2020, ГОСТ Р 52131-2019 и методическими рекомендациями ЦБ РФ.

Ключевые принципы проекта:

  • Создание безопасной и понятной навигационной среды для людей с нарушением зрения.
  • Обеспечение беспрепятственного доступа в помещение для посетителей на креслах-колясках.
  • Оснащение мест обслуживания техническими средствами для людей с дефектами слуха.

Мероприятия по адаптации территории и входных групп

На прилегающей территории, на ближайшей общедоступной автостоянке (в радиусе не более 50 м от входа), проектом рекомендуется выделить и обустроить специализированное машино-место для инвалидов. Количество мест (не менее 10% от общего числа) соответствует требованиям п. 5.2.1 СП 59.13330.2020. Разметка и обозначение места выполнены согласно ПДД и ГОСТ Р 52289.

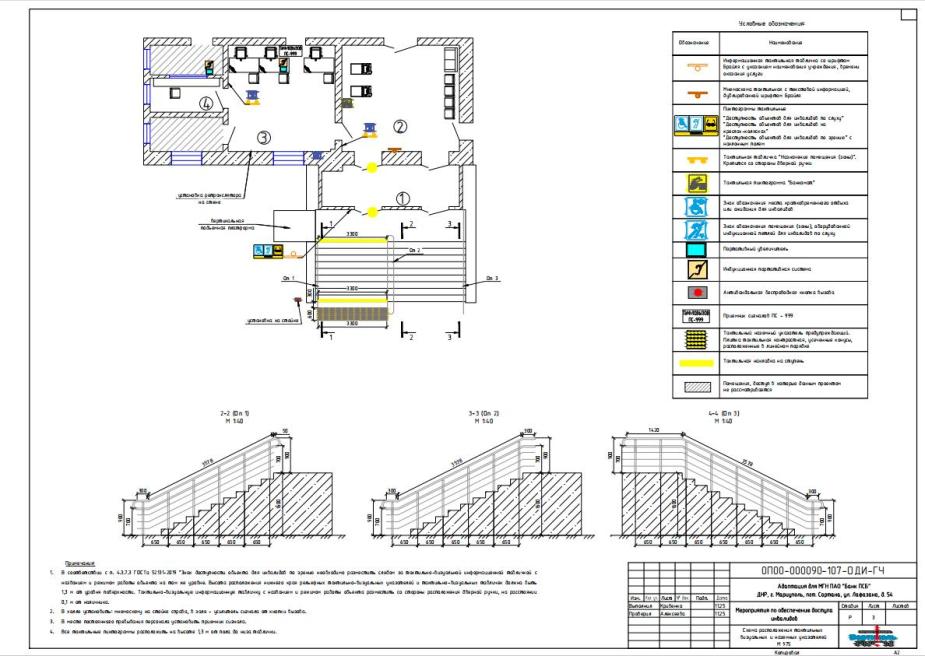
Входная группа здания адаптирована для всех категорий МГН. Для инвалидов-колясочников (категория М4) доступ обеспечивается через главный вход с установленной кнопкой вызова ситуационной помощи. Сигнал от антивандальной кнопки с сенсорной индикацией передается на приемное устройство, размещенное в зоне постоянного присутствия персонала. Для устойчивой связи в тамбуре смонтирован ретранслятор.

На входной двери и тамбурной створке с обеих сторон стеклянного полотна размещена контрастная маркировка (желтый круг диаметром 200 мм) на высоте 1,3-1,4 м. Дверные ручки установлены на доступной высоте (не более 1,1 м) и имеют контрастное цветовое выделение.

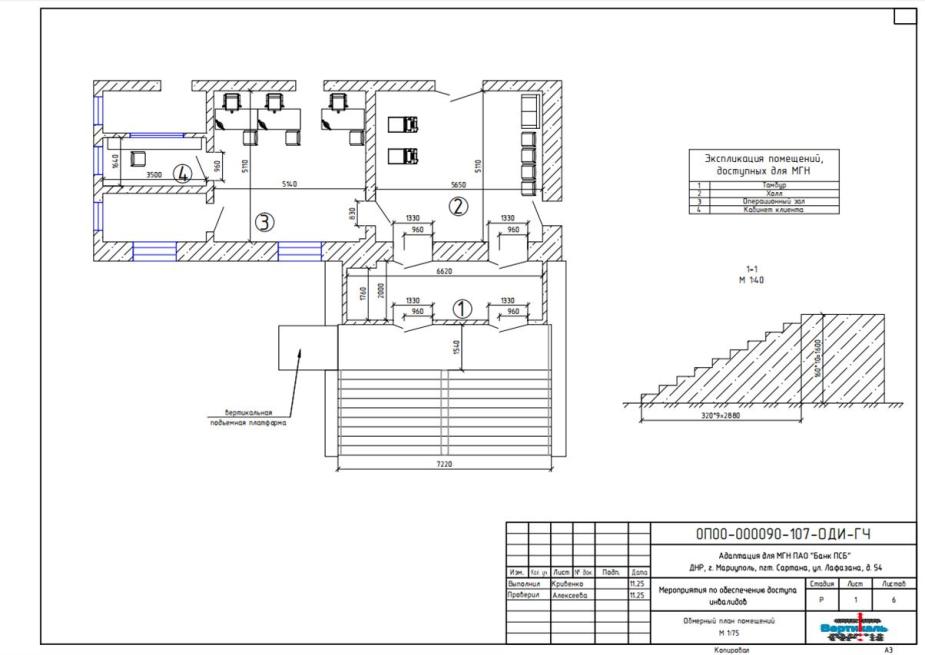
Организация путей движения внутри объекта

Для обеспечения безопасного и независимого перемещения людей с нарушением зрения внутри помещения разработана система тактильной навигации:

Тактильные настенные указатели

У входа, со стороны дверной ручки, на высоте 1,3-1,5 м установлена тактильно-визуальная табличка с названием учреждения и режимом работы, дублированная шрифтом Брайля. В тамбуре размещена тактильная мнемосхема помещений (470x610 мм) с планом этажа и тактильным плоскопечатным текстом. Кабинеты и функциональные зоны обозначены соответствующими пиктограммами, включая знаки доступности, места отдыха и зоны действия индукционной петли.

Тактильные наземные указатели (ТНУ)

В соответствии с ГОСТ Р 52875-2018, перед лестничным маршем уложен предупреждающий указатель «Внимание, лестница». На краевых ступенях смонтированы контрастные противоскользящие полосы желтого цвета.

Внутренние дверные проемы на путях движения МГН не имеют порогов либо перепад высот не превышает допустимые 0,014 м. Ширина проемов обеспечивает комфортный проезд кресла-коляски.

Оснащение мест обслуживания и адаптация помещений

Для людей, передвигающихся на креслах-колясках, предусмотрены параметры зон обслуживания: поверхность стола или низа окна кассы находится на высоте не более 0,85 м от уровня пола, с пространством для ног глубиной не менее 0,5 м и шириной не менее 0,75 м. В регламент работы отделения внесено положение о помощи сотрудника банка при обслуживании инвалидов, если переоборудование рабочего места технически невозможно.

Для посетителей с дефектами слуха проектом предусмотрена установка портативной индукционной петли на месте обслуживания. Покрытие системы составляет 1,2 м?, что позволяет слабослышащему человеку переключить слуховой аппарат в режим «Т» и четко слышать речь оператора без посторонних шумов.

Адаптация санузла для МГН в данном проекте не потребовалась, так как регламент пребывания посетителя в отделении не превышает 45 минут, что соответствует нормативным допущениям.

Обеспечение безопасности и эвакуации

В качестве основного эвакуационного выхода для МГН используется главный вход. Ширина эвакуационного выхода составляет не менее 0,9 м, что достаточно для категории мобильности М4. Места обслуживания инвалидов сознательно расположены на минимальном расстоянии от выхода наружу, чтобы сократить путь эвакуации в экстренной ситуации. На путях движения исключены перепады высот, а двери открываются по направлению движения из здания.

Реализация запроектированных мероприятий обеспечивает беспрепятственный доступ в отделение банка для всех категорий граждан, создавая комфортную и безопасную среду, соответствующую духу и букве действующего законодательства.

Оставьте свои контакты в полях ниже, и мы с вами свяжемся для обсуждения вашего проекта.

Выделите опечатку и нажмите Ctrl + Enter, чтобы отправить сообщение об ошибке.