Работаем по всей России

Проект адаптации отделения ПАО «Банк ПСБ» в г. Амвросиевка для маломобильных групп населения

Настоящий проект разработан в целях обеспечения беспрепятственного доступа к помещениям банка для людей с ограниченными возможностями и маломобильных групп населения (МГН) по принципу «разумного приспособления».

Адаптации подлежит эксплуатируемое помещение банка ПАО «Банк ПСБ», расположенное в городе Амвросиевка. Проектная документация разработана на основании технического задания заказчика, данных натурного обследования и в строгом соответствии с актуальными требованиями СП 59.13330.2020, ГОСТ Р 52131-2019 и других нормативных документов.

Ключевые принципы проекта:

1. Обеспечение досягаемости мест целевого посещения кратчайшим путем.

2. Безопасность путей движения и зон обслуживания.

3. Своевременное получение МГН полноценной и качественной информации для ориентации в пространстве.

Мероприятия по адаптации входной группы и путей движения

Тактильная навигация у входа

Рядом с входной дверью (со стороны дверной ручки) предусмотрена установка тактильной визуальной таблички размером 300x400 мм с наименованием учреждения и режимом работы, дублированным шрифтом Брайля. В тамбуре справа от входа размещается тактильная мнемосхема (470x610 мм) на стойке с планом помещений.

Обустройство входной зоны

Для контрастной маркировки стеклянного полотна на входных и тамбурных дверях на высоте 1,3–1,4 м с обеих сторон наносятся желтые круги диаметром 200 мм. Дверные ручки устанавливаются на высоте от 0,85 до 1,1 м.

Тактильные наземные указатели (ТНУ)

Для обеспечения безопасности и информирования людей с нарушением зрения на путях движения предусмотрена укладка тактильных наземных указателей. Предупреждающий указатель «Внимание, лестница» с рифами в виде усеченных конусов монтируется перед нижней ступенью. На краевых ступенях лестничных маршей наносятся контрастные противоскользящие полосы желтого цвета.

Ситуационная помощь

Перед лестницей устанавливается антивандальная кнопка вызова персонала. Приемное устройство сигнала размещается в месте постоянного нахождения сотрудников, для усиления сигнала применяется ретранслятор.

Пандус и поручни

Для доступа инвалидов на креслах-колясках проектом предусмотрен монтаж пандуса с уклоном 1:12,5. Лестницы и пандус оборудуются поручнями из нержавеющей стали в соответствии с требованиями ГОСТ.

Специализированное оборудование и навигация внутри помещений

Информационные указатели

На путях перемещения МГН размещаются тактильные пиктограммы: знак доступности входа, знак обозначения места кратковременного отдыха, а также знак, указывающий на наличие индукционной петли для слабослышащих посетителей.

Зоны обслуживания

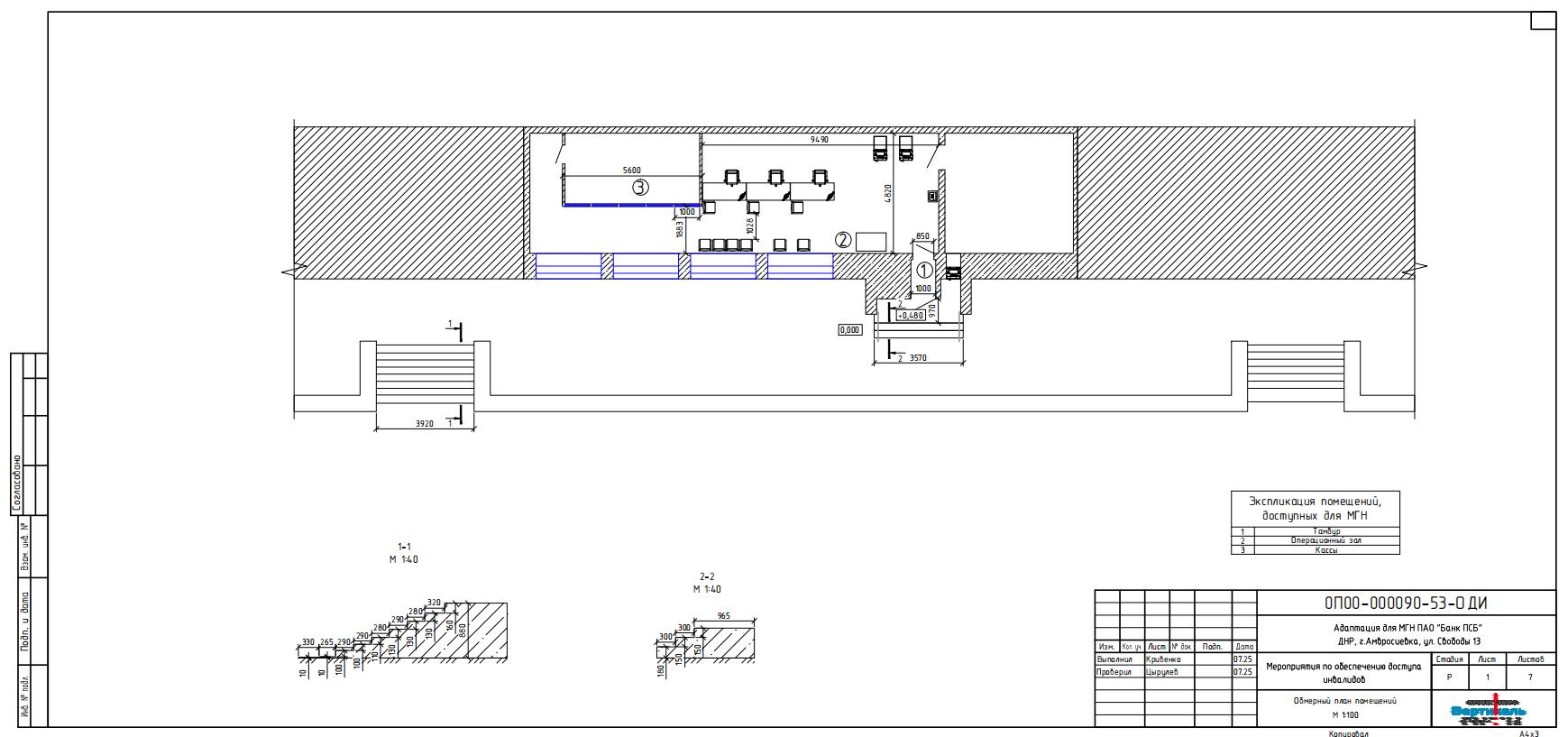
Поверхность стола в операционном зале и зоне касс для обслуживания посетителей на креслах-колясках предусмотрена на высоте 0,8–0,85 м от уровня пола с необходимым пространством для ног.

Оборудование для слабослышащих

Для людей с дефектами слуха на месте обслуживания предусмотрена установка портативной индукционной петли. Слабослышащему посетителю достаточно переключить слуховой аппарат в режим «Т» для качественного восприятия речи.

Парковочное пространство

На ближайшей к отделению автостоянке выделяется специализированное машино-место для инвалидов (не менее 10% от общего количества), расположенное на расстоянии не далее 50 м от входа. Место обозначается соответствующей разметкой и знаками.

Безопасность и эвакуация

В качестве эвакуационного выхода для МГН используется главный вход. Все пути эвакуации запроектированы с учетом требований пожарной безопасности. Ширина эвакуационного выхода составляет не менее 0,9 м, дверные проемы на путях эвакуации не имеют порогов высотой более 1,4 см.

После реализации полного комплекса запроектированных мероприятий отделение ПАО «Банк ПСБ» будет обеспечивать возможность безопасного и независимого передвижения, ориентирования и получения финансовых услуг для инвалидов всех категорий мобильности (М1–М4). Проект гарантирует создание комфортной и доступной среды для всех посетителей банка.

Оставьте свои контакты в полях ниже, и мы с вами свяжемся для обсуждения вашего проекта.

Выделите опечатку и нажмите Ctrl + Enter, чтобы отправить сообщение об ошибке.