Работаем по всей России

Проект адаптации отделения ПАО «Банк ПСБ» в г. Алчевск для маломобильных групп населения

Проект разработан для обеспечения беспрепятственного доступа в действующее отделение банка для людей с ограниченными возможностями и маломобильных групп населения (МГН). Работы выполнялись по принципу «разумного приспособления» на основании технического задания, натурного обследования и действующих норм СП 59.13330.2020, ГОСТ Р 52131-2019 и других регламентирующих документов.

Ключевые принципы проекта:

  • Обеспечение кратчайшей и безопасной досягаемости мест обслуживания.
  • Создание понятной навигационной среды для посетителей с нарушением зрения.
  • Беспрепятственное перемещение людей на креслах-колясках внутри помещений.

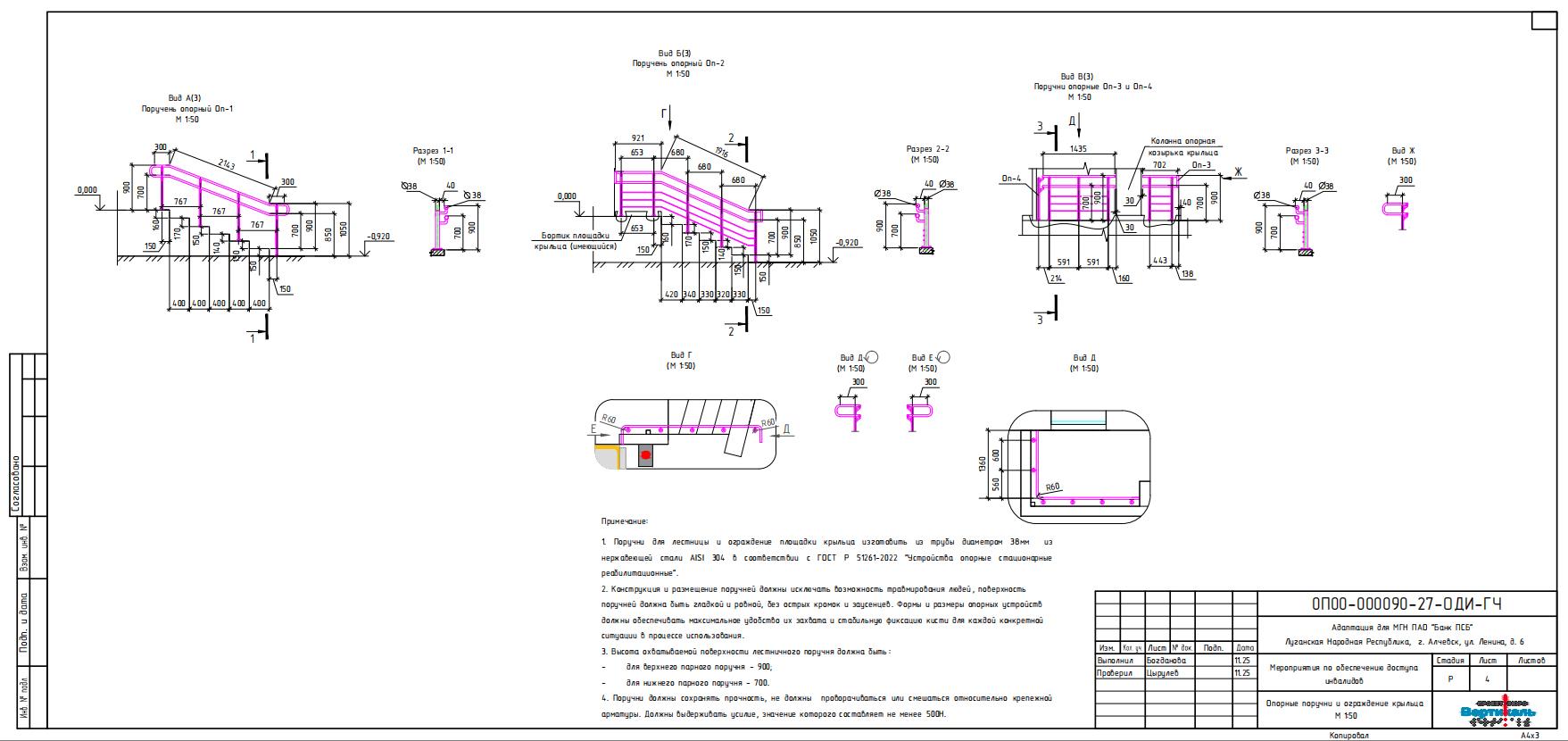
Мероприятия по адаптации входной группы

Вход в здание имеет перепад высот 920 мм. В условиях сложившейся застройки устройство пандуса нормативной длины оказалось технически невозможным. Для обеспечения доступа инвалидов-колясочников проектом предусмотрен монтаж вертикальной подъемной платформы «ЛИФТРОН-1200». Перед заездом на платформу установлена антивандальная кнопка вызова ситуационной помощи персонала.

Существующая входная дверь заменена на новую с шириной рабочей створки в свету не менее 0,9 м. Выполнена контрастная маркировка остекленных дверных полотен в соответствии с требованиями безопасности.

Наружная лестница оборудована контрастными противоскользящими полосами на крайних ступенях, а существующие поручни заменены на двухуровневые непрерывные конструкции (Оп-1, Оп-2, Оп-3), соответствующие ГОСТ Р 51261-2022.

Тактильная навигация и визуальные указатели

Для слабовидящих посетителей на путях перемещения размещен полный комплекс тактильных и визуальных указателей:

  • Тактильная мнемосхема (470x610 мм) с планом помещений и дублированием информации шрифтом Брайля установлена в тамбуре на стойке.
  • Информационная табличка с названием учреждения и режимом работы (300x400 мм) размещена рядом с входной дверью.
  • Пиктограммы «Банкомат», «Место отдыха» и знаки доступности объекта закреплены на высоте 1,3 м.
  • Дверные ручки выделены контрастным цветом для облегчения идентификации входа.

Мероприятия для людей с дефектами слуха

В зоне обслуживания МГН проектом предусмотрена установка портативной индукционной системы «VERT-Альфа». Устройство обеспечивает передачу звука непосредственно в слуховой аппарат, оснащенный телефонной катушкой, и подключается к сети 220В. При необходимости систему можно перемещать в другое помещение. Вход в зону, оборудованную петлей, обозначен соответствующим знаком (150x150 мм).

Организация путей движения и эвакуации

Внутренние пути движения спроектированы с учетом требований досягаемости и безопасности. Кассовое обслуживание в данном отделении отсутствует. Места получения услуг располагаются на минимальном расстоянии от эвакуационного выхода. В качестве эвакуационного выхода для МГН используется главный вход. Ширина эвакуационного проема обеспечивает беспрепятственную эвакуацию людей группы мобильности М4.

Адаптация парковочного пространства

На ближайшей автостоянке (в радиусе не более 50 м от входа) рекомендовано выделить не менее 10% мест для транспорта инвалидов. На чертеже представлена схема организации одного специализированного машино-места размером 6,0×3,6 м с нанесением соответствующей разметки и установкой знаков.

После реализации всех проектных решений отделение банка будет обеспечивать возможность безопасного следования инвалидов групп мобильности М1-М4 от входа в здание до зон обслуживания, а также своевременное получение информации и комфортное пребывание внутри объекта.

Оставьте свои контакты в полях ниже, и мы с вами свяжемся для обсуждения вашего проекта.

Выделите опечатку и нажмите Ctrl + Enter, чтобы отправить сообщение об ошибке.