Работаем по всей России

Проект адаптации ФГБОУ Колледж Росрезерва (г. Торжок) для маломобильных групп населения

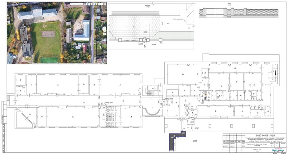
Настоящий проект разработан в целях обеспечения беспрепятственного доступа к помещениям и территории ФГБОУ Колледж Росрезерва для людей с ограниченными возможностями и маломобильных групп населения (МГН) по принципу «разумного приспособления». Адаптации подлежит объект, расположенный по адресу: Тверская область, г. Торжок, ул. Студенческая, д.3. Проектная документация разработана на основании технического задания, исходных данных Заказчика и в строгом соответствии с актуальными требованиями СП 59.13330.2020, ГОСТ Р 52875-2018 и других регламентирующих документов.

Комплекс мероприятий по адаптации для людей с нарушением зрения

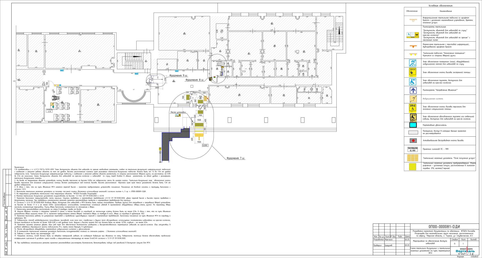
В рамках комплекса мероприятий по адаптации для людей с нарушением зрения предусмотрено создание многоуровневой системы навигации. Для надежной ориентации в пространстве на путях перемещения маломобильных групп населения устанавливаются тактильные настенные указатели. Система включает тактильно-визуальные таблички с дублированием информации шрифтом Брайля, содержащие наименование учреждения и режим работы, а также информационные планы территории и тактильные мнемосхемы с планом и назначением помещений. Дополняют систему знаки доступности объекта для инвалидов различных категорий и тактильные таблички обозначения зоны или помещения с выпуклым текстом и брайлевским дублированием, размещаемые на высоте 1,3 метра от уровня пола.

Параллельно на путях движения по территории и внутри здания организуется система тактильных наземных указателей (ТНУ), соответствующих требованиям ГОСТ Р 52875-2018. В комплекс ТНУ входят предупреждающие указатели «Внимание, прямо по ходу движения – дверь» глубиной 500-600 мм, указатели «Поле внимания» квадратной формы со сторонами 600 мм, а также направляющие указатели в виде отрезков шириной 130-150 мм. Для зон обслуживания предусмотрен указатель «Поле получения услуги» глубиной 420-510 мм с десятью параллельными рифами, а для опасных участков — локальный предупреждающий указатель «Внимание. Прямо по ходу движения – лестница». Все тактильные наземные указатели изготавливаются из полимер-песчаной плитки, обеспечивающей коэффициент сцепления в диапазоне 0,6-0,75 кН/кН.

Мероприятия по адаптации для людей с дефектами слуха

Для усиления восприятия информации слабослышащими посетителями проектом предусмотрена установка индукционной портативной петли «VERT-Alpha» на месте обслуживания МГН. Система предназначена для использования на рабочей поверхности площадью покрытия 1,2 м² в рабочем диапазоне 1 кГц. Перед входом в помещение с индукционной петлей размещается пиктограмма размером 150×150 мм.

Мероприятия по адаптации для людей, использующих дополнительные опоры и кресла-коляски

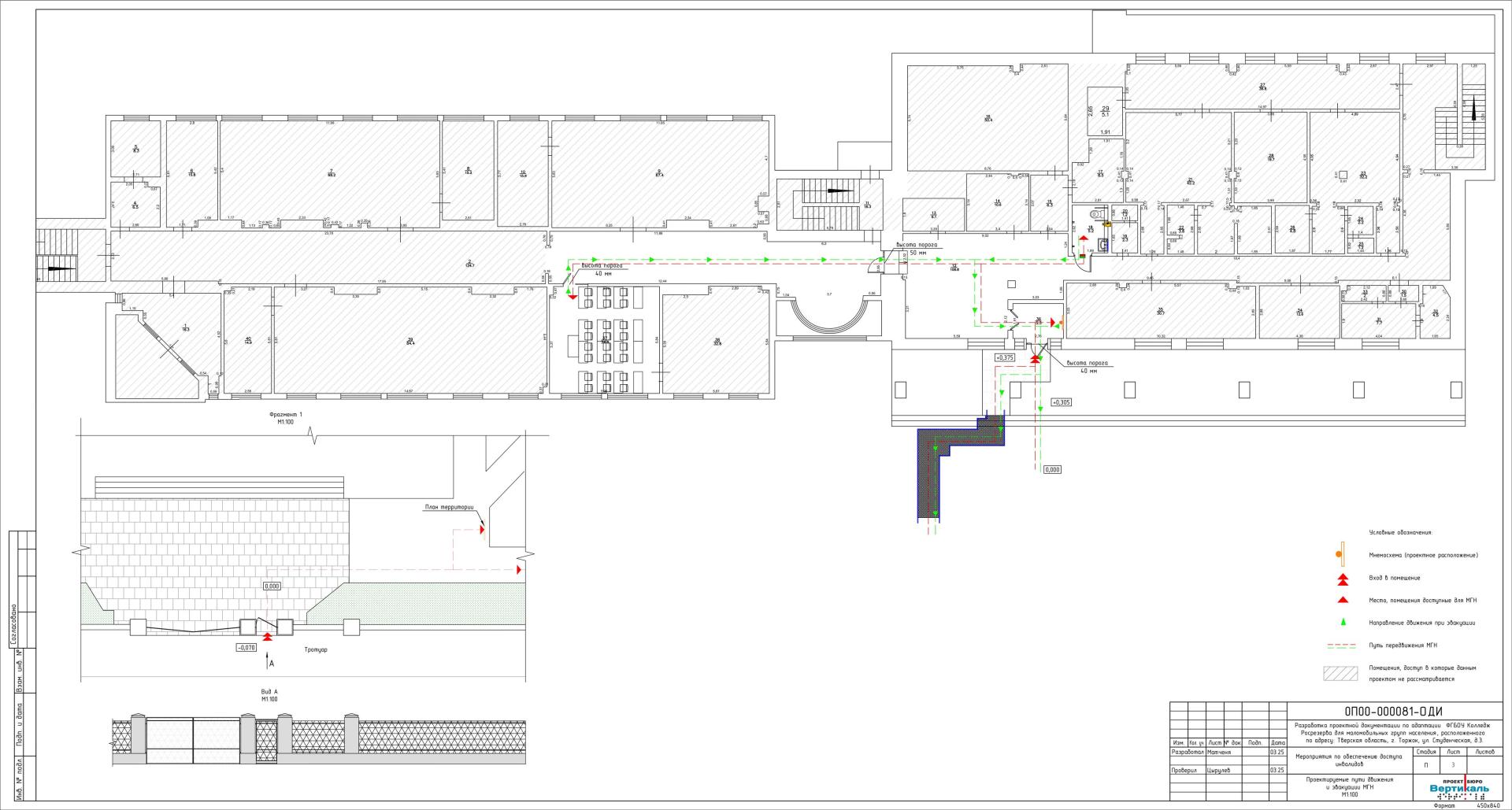
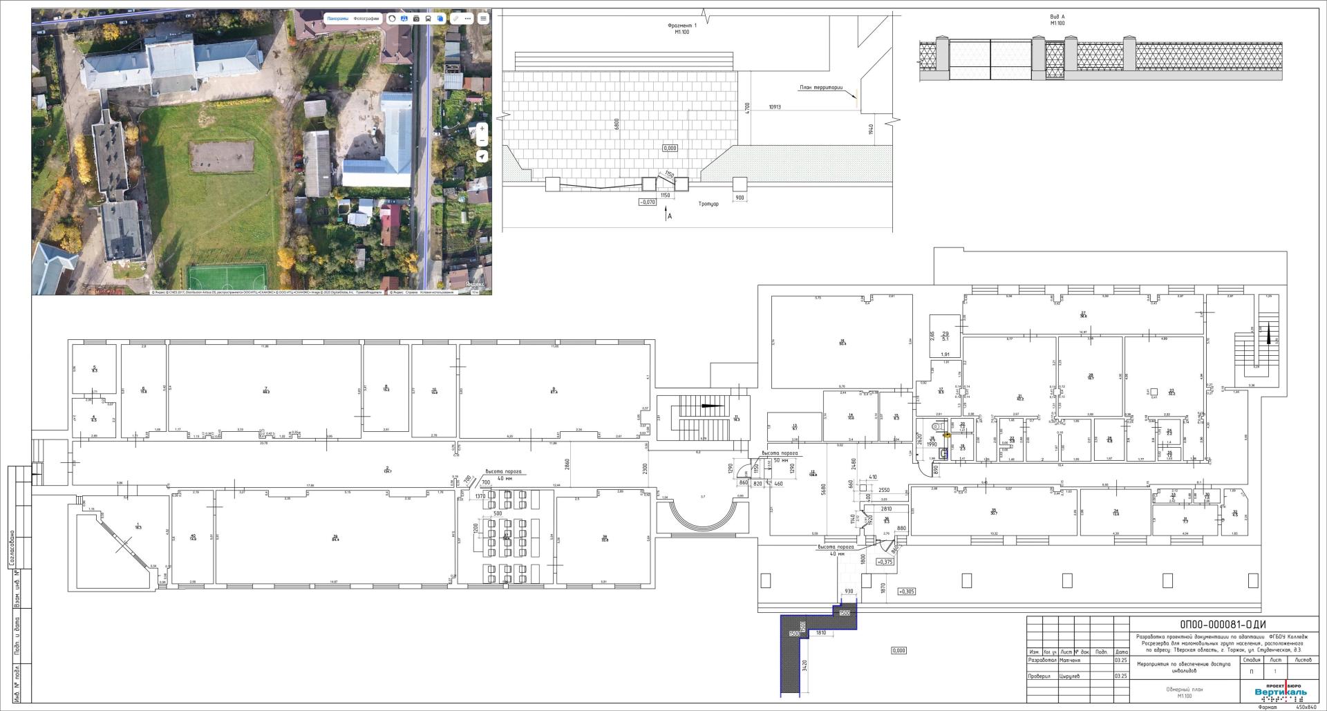
  • Реконструкция входной группы. На входе в здание «Лабораторного корпуса» выполняется реконструкция части крыльца с частичной заливкой и устройством понижения к существующему пандусу. Лестница оборудуется двухуровневыми поручнями из нержавеющей стали AISI 304 с высотой верхнего поручня 900 мм и нижнего - 700 мм.
  • Замена дверных блоков. Проектом предусмотрена замена дверей из пандуса (пом. 36) в холл (пом. 12) и на входе в доступную аудиторию. Устанавливаются двери с шириной рабочей створки в свету не менее 900 мм. Выполняются работы по созданию понижений и сокращению высоты порогов до допустимых требований.
  • Адаптация санитарно-бытового помещения. В лабораторном корпусе оборудуется санузел для маломобильных групп населения с соблюдением требований п.6.3.7 СП 59.13330.2020: свободное пространство диаметром 1,4 м для разворота кресла-коляски; пространство шириной не менее 0,8 м сбоку от унитаза для размещения кресла-коляски; установка стационарных и откидных опорных поручней; высота раковины 0,80-0,85 м над уровнем пола с проемом для ног не менее 0,75×0,5 м; водопроводные краны с рычажной рукояткой и термостатом.

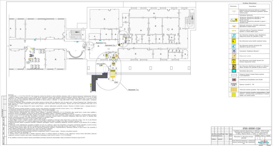
Организация путей эвакуации

Ширина путей эвакуации соответствует нормативным требованиям:

  • Коридоры - не менее 1,5 м
  • Выходы из помещений - не менее 900 мм в свете
  • Лестничные марши - 1,35 м
  • Пороги и перепады высот отсутствуют или не превышают 14 мм

Перечень использованных нормативных и регламентирующих документов

  1. СП 59.13330.2020 «Доступность зданий и сооружений для маломобильных групп населения». Актуализированная редакция СНиП 35-01-2001.
  2. СП 136.13330.2012 «Здания и сооружения. Общие положения проектирования с учетом доступности для маломобильных групп населения» (с Изменениями №1).
  3. СП 138.13330.2012 «Общественные здания и сооружения, доступные маломобильным группам населения. Правила проектирования» (с Изменениями №1).
  4. ГОСТ Р 50602-93 «Кресла-Коляски. Максимальные габаритные размеры».
  5. ГОСТ Р 51261-2022 «Опорные стационарные для маломобильных групп населения. Типы и общие технические требования».
  6. ГОСТ Р 52131-2019 «Средства отображения информации знаковые для инвалидов. Технические требования».
  7. ГОСТ Р 52875-2018 «Указатели тактильные наземные для инвалидов по зрению. Технические требования».
  8. Приказ №338 ПР от 30.08.2017 «Правила устройства и безопасной эксплуатации платформ подъемных для инвалидов».
  9. ОДМ 218.2007-2011 «Методические рекомендации по проектированию мероприятий по обеспечению доступа инвалидов к объектам дорожного хозяйства».

Оставьте свои контакты в полях ниже, и мы с вами свяжемся для обсуждения вашего проекта.

Выделите опечатку и нажмите Ctrl + Enter, чтобы отправить сообщение об ошибке.