Работаем по всей России

Проект адаптации ЧУЗ «Клиническая больница «РЖД-Медицина» в г. Тверь для маломобильных групп населения

Настоящий проект разработан в целях обеспечения беспрепятственного доступа к помещениям медицинского учреждения для людей с ограниченными возможностями и маломобильных групп населения (МГН) по принципу «разумного приспособления». Адаптации подлежат эксплуатируемые помещения ЧУЗ «Клиническая больница «РЖД-Медицина», расположенные по адресу: 170001, г. Тверь, ул. А. Степанова, д. 2А. Проектная документация разработана на основании технического задания Заказчика, представленных исходных данных и в строгом соответствии с актуальными требованиями СП 59.13330.2020, ГОСТ Р 51261-2022 и других нормативных документов.

Ключевые принципы проекта:

  1. Обеспечение досягаемости мест целевого посещения кратчайшим и безопасным путем.
  2. Создание безопасной навигационной среды внутри помещений.
  3. Своевременное предоставление МГН полноценной информации для ориентации в пространстве и использования оборудования.

Мероприятия по адаптации территории и входных групп

  • Специализированные парковочные места. На открытой автостоянке у доступных входов организовано 2 парковочных места для МГН размером 6,0×3,6 м каждое, что соответствует нормам.
  • Тактильная навигация. На пути движения от входа на территорию установлена тактильная мнемосхема (905x1150 мм) с планом корпусов. Перед калиткой и другими ключевыми точками смонтированы тактильные наземные указатели («Внимание, дверь», «Поле получения услуги», направляющие указатели), выполненные из контрастной плитки со сменными рифами.
  • Адаптация входных групп. Больница имеет два корпуса — стационар и поликлинику, — каждый с несколькими входами. Проектом предусмотрен самостоятельный путь для всех категорий мобильности (М1-М4). Для входов, оборудованных лестницами, запроектирован монтаж непрерывных двухуровневых поручней, замена пандусов и установка противоскользящих контрастных полос на ступенях. Для инвалидов-колясочников (М4) организованы маршруты через доступные входы с пологими подъемами.
  • Система вызова помощи. Перед входами, недоступными для самостоятельного преодоления, установлены антивандальные кнопки вызова помощи. Сигнал через систему «Тифловызов» передается на постоянные посты дежурного персонала (приемное отделение, регистратура).

Организация путей движения внутри объекта

  • Вертикальные коммуникации. Произведена замена поручней на всех внутренних лестницах стационара и поликлиники в соответствии с ГОСТ. Для эвакуации МГН с верхних этажей предусмотрены эвакуационные лестничные стулья.
  • Горизонтальные коммуникации. На всех этажах установлены тактильные мнемосхемы (470x610 мм) с планами помещений, тактильные таблички «Обозначение помещения» на высоте 1,3 м от пола, а также пиктограммы, указывающие на доступность лифтов, помещений с индукционными петлями, мест отдыха и эвакуационных выходов.
  • Зоны отдыха и специализированное оборудование. На каждом этаже через каждые 30 м организованы места для кратковременного отдыха МГН. Для слабослышащих пациентов закуплены портативные индукционные системы «Vega-1», для слабовидящих — цифровые увеличители и лупы. В зонах ожидания и регистратуры смонтированы крючки для трости и костылей.

Адаптация санитарно-бытовых помещений и палат

  • Санузел для МГН. В центре профпатологии на первом этаже адаптирован кабинет для забора анализов под санузел для МГН. Выполнена замена сантехники: раковина заменена на модель без пьедестала, унитаз и душевая зона оборудованы откидными поручнями. Установлена кнопка вызова помощи, тактильные пиктограммы и мнемосхема помещения.
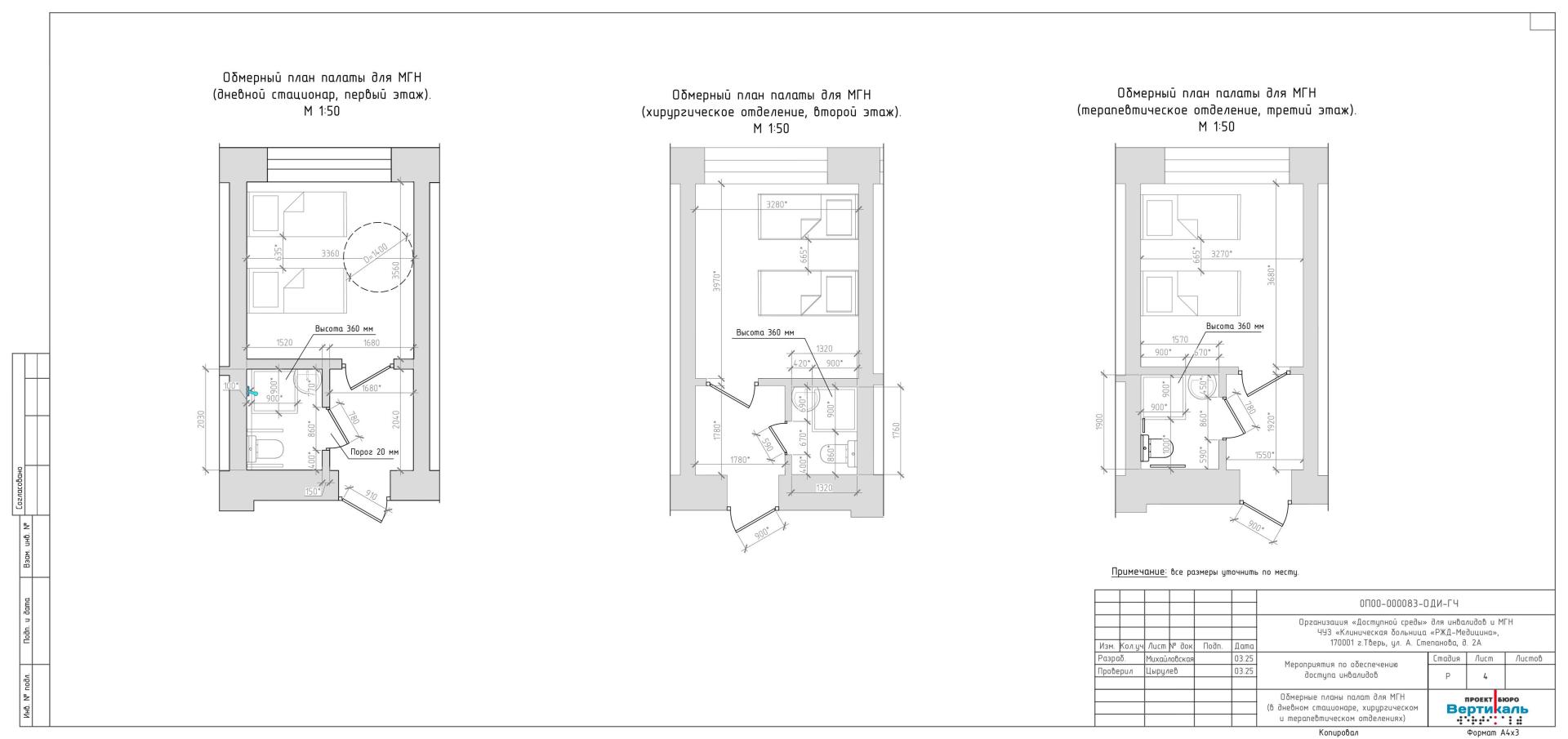
  • Палаты для МГН категории М4. В дневном стационаре, хирургическом и терапевтическом отделениях выделено и адаптировано по одной палате для инвалидов-колясочников. В палатах обеспечен необходимый диаметр для разворота кресла-коляски у спальных мест. Санузлы палат полностью перепланированы: демонтированы пороги, душевые организованы вровень с полом, двери заменены на более широкие (световой проем не менее 0,9 м), установлено автоматическое дверное оборудование с кнопочным управлением.

После реализации полного комплекса запроектированных мероприятий ЧУЗ «Клиническая больница «РЖД-Медицина» будет обеспечивать возможность безопасного и независимого передвижения, ориентирования и получения медицинских услуг для инвалидов всех категорий мобильности (М1-М4). Проект гарантирует не только формальное соответствие законодательным нормам, но и создание комфортной, инклюзивной среды, не ограничивающей условия жизнедеятельности других пациентов и посетителей.

Оставьте свои контакты в полях ниже, и мы с вами свяжемся для обсуждения вашего проекта.

Выделите опечатку и нажмите Ctrl + Enter, чтобы отправить сообщение об ошибке.