Работаем по всей России

Пример проекта по обеспечению доступности для инвалидов помещения медицинского офиса ДНКОМ

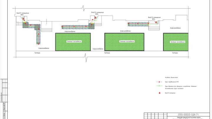
Представляемый проект входной групп разработан компанией "Вертикаль".  В рамках проекта планируется установка пандуса для маломобильных групп населения (МГН). Объект адаптации находится по адресу: Российская Федерация, г. Москва, вн.тер.г. муниципальный округ Митино, ул. Дубравная, д.38.

Проектная документация основана на:
- техническом задании на разработку проектной документации;
- исходных данных, представленных заказчиком;
- действующих ГОСТах, нормах и правилах.

После установки пандуса у инвалидов появится возможность беспрепятственно попадать к дверям входом в помещения лаборатории ДНКОМ.

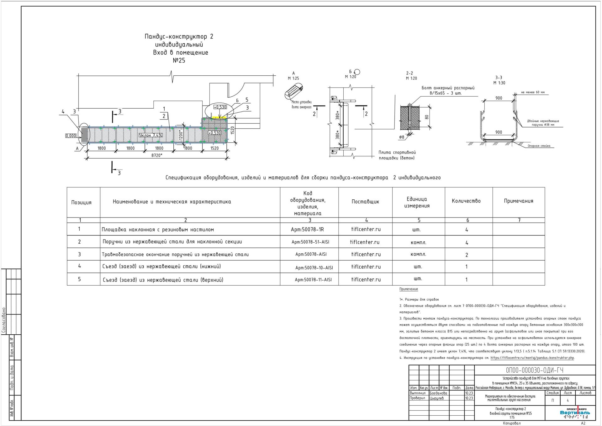
На входной группе имеется крыльцо высотой 530 мм, размеры площадки крыльца перед входной дверью 3600х2200 мм. На входную группу помещения медицинского офиса монтируется пандус-конструктор индивидуального изготовления.

Монтаж пандуса-конструктора производится по технологии производителя.  Установка опорных стоек пандуса может осуществляться двумя способами: на подготовленные под каждую опору бетонные основания 300х300х300 мм, залитые бетоном класса В15 или непосредственно на грунт (асфальтовое или иное покрытие) при его достаточной плотности, ориентируясь на местность. При установке на асфальтобетон используется анкерное соединение через опорные фланцы опор (25 шт.) по 4 болта анкерных распорных на каждую опору, итого 100 шт. Пандус-конструктор имеет уклон 7,4%, что соответствует уклону 1:13,5 ( п.5.1.14 Таблица 5.1 СП 59.13330.2020).

Перед заездом на пандус-конструктор с правой стороны установливается стойка, на которой монтируется кнопка вызова персонала для оказания ситуационной помощи. Монтаж кнопки вызова производится на высоте 0,85-1,1 м (п.6.1.1 СП 59.13330.2020) от уровня пешеходной поверхности. Приемное устройство П-999 размещается в месте постоянного присутствия персонала. Сигнал беспроводной, но для усиления сигнала для лучшего приема в холле или тамбуре необходимо разместить ретранслятор УМ Z-09 с подключением к сети 220В.

Перечень использованных нормативных и регламентирующих документов

1. СП 59.13330.2020 «Доступность зданий и сооружений для маломобильных групп
населения». Актуализированная редакция СНиП 35-01-2001.
2. СП 136.13330.2012 «Здания и сооружения. Общие положения проектирования
с учетом доступности для маломобильных групп населения» (с Изменениями №1).
3. СП 138.13330.2012 «Общественные здания и сооружения, доступные
маломобильным группам населения. Правила проектирования» (с Изменениями №1).
4. ГОСТ Р 50602-93 «Кресла-Коляски. Максимальные габаритные размеры».
5. ГОСТ Р 51261-2022 «Устройства опорные стационарные для маломобильных групп
населения. Типы и общие технические требования».
6. ГОСТ Р 52131-2019 «Средства отображения информации знаковые для инвалидов.
Технические требования».
7. ГОСТ Р 52875-2018 «Указатели тактильные наземные для инвалидов по зрению.
Технические требования».
8. Приказ Минтруда России от 30.07.2015 № 527н "Об утверждении Порядка
обеспечения условий доступности для инвалидов объектов и предоставляемых услуг в сфере
труда, занятости и социальной защиты населения, а также оказания им при этом
необходимой помощи".

Оставьте свои контакты в полях ниже, и мы с вами свяжемся для обсуждения вашего проекта.

Выделите опечатку и нажмите Ctrl + Enter, чтобы отправить сообщение об ошибке.