Работаем по всей России

Обеспечение доступа маломобильных групп населения в плавательный бассейн «Дельфин» в пгт. Свободный

Проектная документация разработана для муниципального бюджетного учреждения «Детско-юношеская спортивная школа» с целью создания универсальной безбарьерной среды в здании плавательного бассейна «Дельфин».

Основная задача проекта – обеспечить комфортный и безопасный доступ ко всем функциональным зонам для людей с инвалидностью, включая нарушения зрения, слуха и опорно-двигательного аппарата.

Проект выполнен в строгом соответствии с требованиями СП 59.13330.2020, ГОСТ Р 51261-2022 и других действующих нормативных документов.

Мероприятия по адаптации территории и входных групп

Анализ объекта выявил ряд критических препятствий для маломобильных групп населения (МГН): крутой пандус с уклоном 1:4, наличие порогов высотой до 50 мм на крыльце и расположение кнопки вызова вне зоны досягаемости.

Проектом предусмотрены следующие решения:

  • Демонтаж существующего бетонного пандуса и установка нового пандус-конструктора с нормативным уклоном 1:12.
  • Ремонт крыльца с поднятием уровня входной площадки для устранения порога перед дверью.
  • Монтаж новой антивандальной кнопки вызова помощи на отдельно стоящей стойке с подключением к системе «Тифловызов» для оповещения персонала.
  • Установка двусторонних поручней на лестнице и тактильной мнемосхемы на входе для ориентации людей с нарушением зрения.

Организация путей движения внутри здания

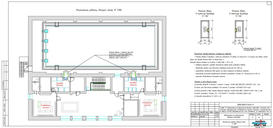
Внутри здания основными препятствиями стали недостаточная ширина дверных проемов (менее 0,8 м), перепады высот пола, пороги и отсутствие адаптированных санитарно-бытовых помещений.

Комплекс проектных решений включает:

  • Замену дверных блоков на беспороговые варианты с шириной полотна «в свету» не менее 0,9 м (в реконструируемых проемах допускается 0,8 м). Для преодоления перепадов предусмотрены перекатные пандусы.
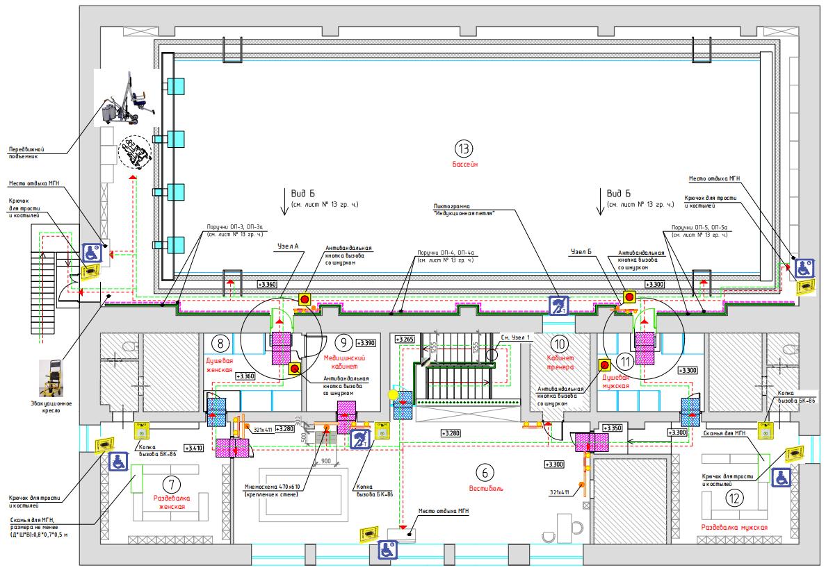
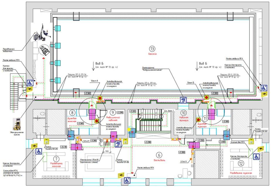
  • Организацию мест отдыха для МГН на каждом этаже через каждые 30 метров пути, оснащенных кнопками вызова помощи и крючками для трости и костылей.
  • Монтаж контрастной маркировки на стеклянных дверях и выделение дверных проемов для слабовидящих посетителей.
  • Установку тактильно-визуальных табличек с шрифтом Брайля, пиктограмм и мнемосхем, указывающих направление к адаптированным зонам.

Адаптация функциональных зон и оснащение специализированным оборудованием

Наибольший объем работ пришелся на адаптацию санитарно-бытовых помещений и зоны самого бассейна.

Ключевые мероприятия по адаптации:

  • Санитарный узел. Комната персонала на первом этаже переоборудована в универсальную кабину санузла для МГН. Выполнено повышение уровня пола, установлен поручни, раковина и унитаз, обеспечивающие свободное пространство для разворота кресла-коляски диаметром 1,4 м.
  • Душевые. Адаптированы существующие кабинки в мужской и женской душевых. Проектом предусмотрено создание пространства для душа не менее 0,9x1,2 м, установка откидных сидений, опорных поручней и регулируемых душевых стоек.
  • Зона бассейна. Для перемещения инвалида-колясочника в чашу бассейна приобретается передвижной электрический подъемник. Вдоль стен смонтированы двухуровневые поручни (на высоте 900 мм для взрослых и 700 мм для детей). Для безопасной эвакуации со второго этажа предусмотрен эвакуационный лестничный стул.

Реализация данного проекта позволит полностью интегрировать плавательный бассейн «Дельфин» в социальную инфраструктуру поселка. Посетители с инвалидностью всех категорий (М1-М4) получат возможность самостоятельного или с минимальной помощью персонала посещения спортивного учреждения, пользования раздевалками, душевыми и непосредственно бассейном, что гарантирует соблюдение их прав и создает по-настоящему инклюзивную среду.

Оставьте свои контакты в полях ниже, и мы с вами свяжемся для обсуждения вашего проекта.

Выделите опечатку и нажмите Ctrl + Enter, чтобы отправить сообщение об ошибке.