Работаем по всей России

Проектирование раздела ОДИ (пандус и входной группы) в школе №5 г. Тольятти

Этот проект разработан для улучшения доступа в помещения МБУ «Школа №5», далее – Объект, для людей с ограниченными возможностями и маломобильных групп населения (МГН) с помощью принципа «разумного приспособления» при обустройстве входной группы. Объект находится по адресу: 445019, Самарская обл., г. Тольятти, ул. Горького, 39.

Проектная документация была разработана на основании следующих основных элементов:

  • Технического задания на проектирование;
  • Исходных данных, предоставленных заказчиком;
  • Результатов обследования;
  • Действующих строительных норм и правил.

В рамках данного проекта предусмотрены мероприятия, направленные на повышение качества архитектурной среды с обеспечением: возможности посещения целевых мест самым коротким путем, безопасности путей движения. Проектные решения не ограничивают условия жизнедеятельности и не влияют на возможности других групп населения, пребывающих в помещениях Объекта. После реализации мероприятий, предусмотренных проектом, инвалиды групп мобильности М1-М4 смогут свободно передвигаться к центральному входу Объекта и далее – по внутренним помещениям.

Также, для обеспечения безопасности и удобства передвижения людей с нарушением зрения, предусмотрено следующее:

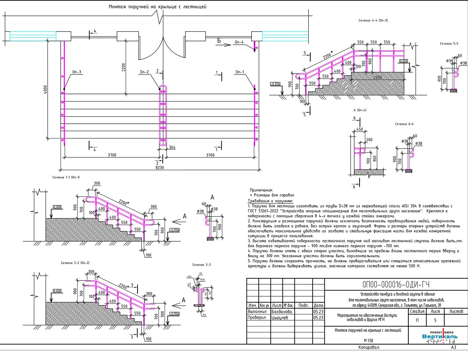
  • На лестничных перилах должны быть заварные резиновые кольца, тактильно ощутимые образы прямоугольной формы, установленные на 1,2-1,6 м от уровня крыльца;
  • На пристенных поверхностях должны быть накладки тактильные прямоугольные, установленные на уровне 1,0-1,2 м от уровня пола;
  • Везде, где есть изменение уровня (бордюр, пандус, поребрик и т. д.), должны быть нанесены тактильные полосы направления в виде полос шириной не менее 0,3 м, с контрастом цвета к основному полу;

Тактильные наземные указатели. На открытой местности или внутри помещений, где возможна потеря ориентации и ухудшение видимости, тактильные наземные указатели должны быть установлены в виде широких полос, имеющих тактильное обозначение, с контрастом цвета к основному полу. Эти указатели должны быть размещены на расстоянии 0,3-0,6 м друг от друга и ведущие к местам посещения (входы, выходы, туалеты, кассы и т. д.);

Внутри помещений на полу запрещается наклеивать тактильные наземные указатели, поскольку они могут быть повреждены или обратить на себя внимания роликовых кресел;

На пандусах должны быть нанесены тактильные полосы направления, указывающие на направление движения и уровень опасности. Также должны быть установлены тактильные указатели на начале и конце пандуса. Уровень опасности может быть обозначен контрастными цветами или текстурой поверхности.

Проектом рекомендуется установить угловую противоскользящую накладку цвета желтого. Накладка имеет Г-образную форму и обладает тактильной поверхностью и контрастной маркировкой. Она предназначена для обеспечения безопасного движения людей с нарушениями зрения.

Оптимальным вариантом для маркировки ступеней является применение контрастной ленты с тактильным эффектом в алюминиевом профиле, так как он обладает высокой проходимостью. В качестве цвета для контрастной маркировки рекомендуется использовать желтый цвет, так как он виден людьми с серьезными нарушениями зрения.
Монтаж может осуществляться с помощью саморезов или клея FIXVERT - S.

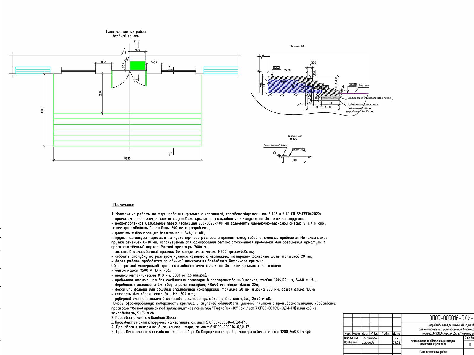
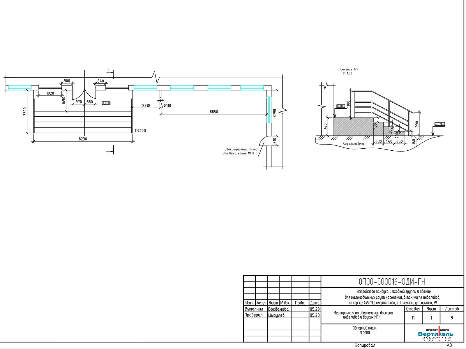
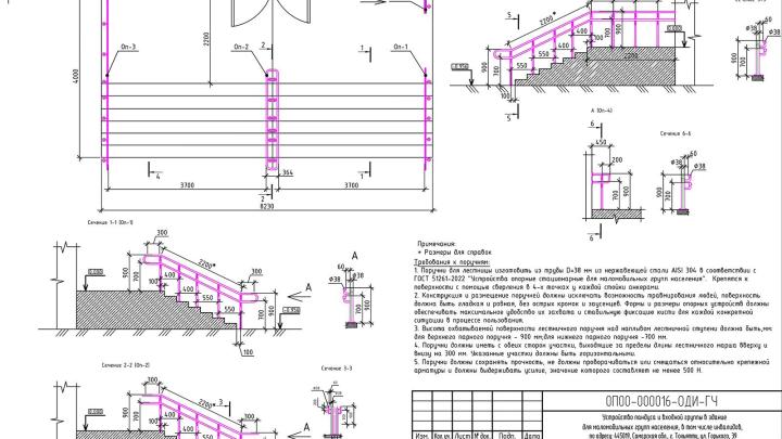
Входная группа на объекте состоит из крыльца шириной 8230 мм и глубиной 1690 мм, четырехступенчатой лестницы, поручней, входной двери и участка коридора за входной дверью. Однако текущая конструкция крыльца с лестницей и поручнями не соответствует требованиям СП 59.13330.2020.

Размеры входной площадки с пандусом должны быть не менее 2,2 х 2,2 м. Высота порогов не должна превышать 0,014 м, но текущий порог крыльца-входной двери составляет 25 мм. Проступи ступеней должны быть горизонтальными шириной 0,3 м, а высота ступеней должна быть 0,15 м. Текущие параметры проступей и поручней также не соответствуют требованиям.

Проектом предлагается использовать существующую конструкцию крыльца в качестве основы для нового крыльца.

Пандус

Доступ инвалида на кресле – коляске на Объект будет осуществляться по пандусу-конструктору.

Произвести монтаж пандуса-конструктора. По технологии производителя установка опорных стоек пандуса может осуществляться двумя способами: на подготовленные под каждую опору бетонные основания 300х300х300 мм, залитые бетоном класса В15 или непосредственно на грунт (асфальтовое или иное покрытие) при его достаточной плотности, ориентируясь на местность. 4.1.2 В соответствии с п. 5.1.14 СП 59.13330.2020, принят уклон каждого участка пандуса 7,6%, на Объекте присутствуют стесненные условия из-за наличия аварийного выхода для людей, не относящимся к МГН и наличия перед ним достаточного свободного пространства.

Требования к пандусу:

  • площадка на горизонтальном участке пандуса при прямом пути движения или на повороте должна иметь размер не менее 1,5 м по ходу движения – требование выполнено;
  • Для ширины марша пандуса (расстояния между поручнями ограждений пандуса) с односторонним движением допускается принимать значения от 0,9 до 1,0 м, и данное требование было выполнено.
  • Уклон пандуса соответствует требованиям, указанным в пункте 5.1.14.

Для предотвращения соскальзывания трости или ног по продольным краям маршей пандусов предусмотрены бортики с высотой не менее 0,05 м, и требование было выполнено.

Поверхность марша пандуса в начале и конце должна контрастировать с горизонтальной поверхностью. В начале пандуса установлен заезд из нержавеющей стали, а покрытие пандуса выполнено из рифленого алюминиевого листа. В конце пандуса также установлен съезд из нержавеющей стали, и визуальный контраст соблюдается.

Вдоль обеих сторон пандуса предусмотрены ограждения с поручнями. Поручни установлены на высоте 0,9 м и 0,7 м. Верхний и нижний края поручней пандуса находятся в одной вертикальной плоскости с границами проходной части пандуса (краем бортика), и требование было выполнено.

Горизонтальные части поручня должны быть безопасными для избежания травм, и требование было выполнено.

Заполните данные и мы свяжемся с вами для обсуждения деталей будущего проекта для учебного заведения!

Выделите опечатку и нажмите Ctrl + Enter, чтобы отправить сообщение об ошибке.