Работаем по всей России

Мероприятие по адаптации Всероссийского общества слепых (г. Москва)

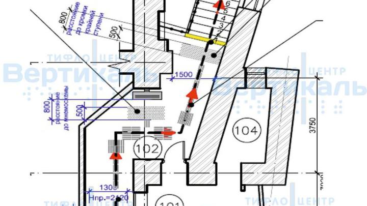
Специалистами Тифлоцентра «Вертикаль» был проведен комплекс работ по организации безбарьерного пространства людей с ограничениями на всех этажах здания ВОС. Для этого был произведен монтаж тактильных пиктограмм (1-4 этаж), тактильно-звуковой мнемосхемы (плана) помещений на первом этаже, а также направляющих металлических тактильных индикаторов. 

Лестницы на всех этажа оснащены прочными тактильными индикаторами перед крайними ступенями лестничного марша, на поручнях имеются информационные наклейки на поручнях обозначения этажей.

Наименование: Мероприятия по созданию безберьерной среды для Всероссийского общества слепых

Адрес объекта: г. Москва, Большой Черкасский пер., д. 13, кор. 4

Виды работ по проекту: Мероприятия по обеспечению доступа инвалидов и МГН

Проектом предусмотрено: Монтаж тактильных пиктограмм 1,2,3,4 этажей;

Адаптация входной группы:

  • монтаж тактильных напольных индикаторов из нержавеющей стали;
  • монтаж тактильных алюминиевых индикаторов перед мнемосхемами;
  • монтаж направляющих тактильных индикаторов;
  • установка тактильно-звуковой мнемосхемы помещения;

Адаптация лестниц 1,2,3,4 этажей:

  • монтаж алюминиевых тактильных индикаторов перед крайними ступеньками лестничного марша;
  • предусмотрены информационные наклейки на поручнях обозначения этажей;
  • предусмотрены тактильные наклейки на поручни об окончании перил;
  • адаптация поручней перил.

Закажите проект прямо сейчас!

Выделите опечатку и нажмите Ctrl + Enter, чтобы отправить сообщение об ошибке.