Работаем по всей России

Проектирование 10-го раздела ОДИ для КУ НАО «МФЦ» Ненецкий автономный округ, г. Нарьян-мар, ул. Ленина, д. 27В

Данный проект был создан с целью обеспечения легкого доступа для людей с ограниченными возможностями и маломобильных групп населения (МГН) к помещениям КУ НАО "МФЦ". Основной принцип разработки - "разумное приспособление". Проект направлен на адаптацию эксплуатируемого помещения КУ НАО "МФЦ", которое находится по адресу: Ненецкий автономный округ, г. Нарьян-Мар, ул. Ленина, д. 27в.

Документация разработана на основании технического задания на проектирование, предоставленных заказчиком исходных данных, результатов обследования и замеров, а также соблюдения действующих строительных норм и правил. В рамках проекта предусмотрены мероприятия по улучшению архитектурной среды с учетом следующих аспектов:

Обеспечение доступности мест назначения с использованием кратчайшего пути, свободного перемещения внутри здания, безопасности маршрутов и обслуживающих зон, а также предоставление МГН полноценной и качественной информации, необходимой для ориентации в пространстве, использования оборудования и получения услуг. Проектные решения не ограничивают условия жизни и возможности других групп населения в здании. После реализации предусмотренных мероприятий маломобильные группы населения смогут свободно перемещаться по зданию.

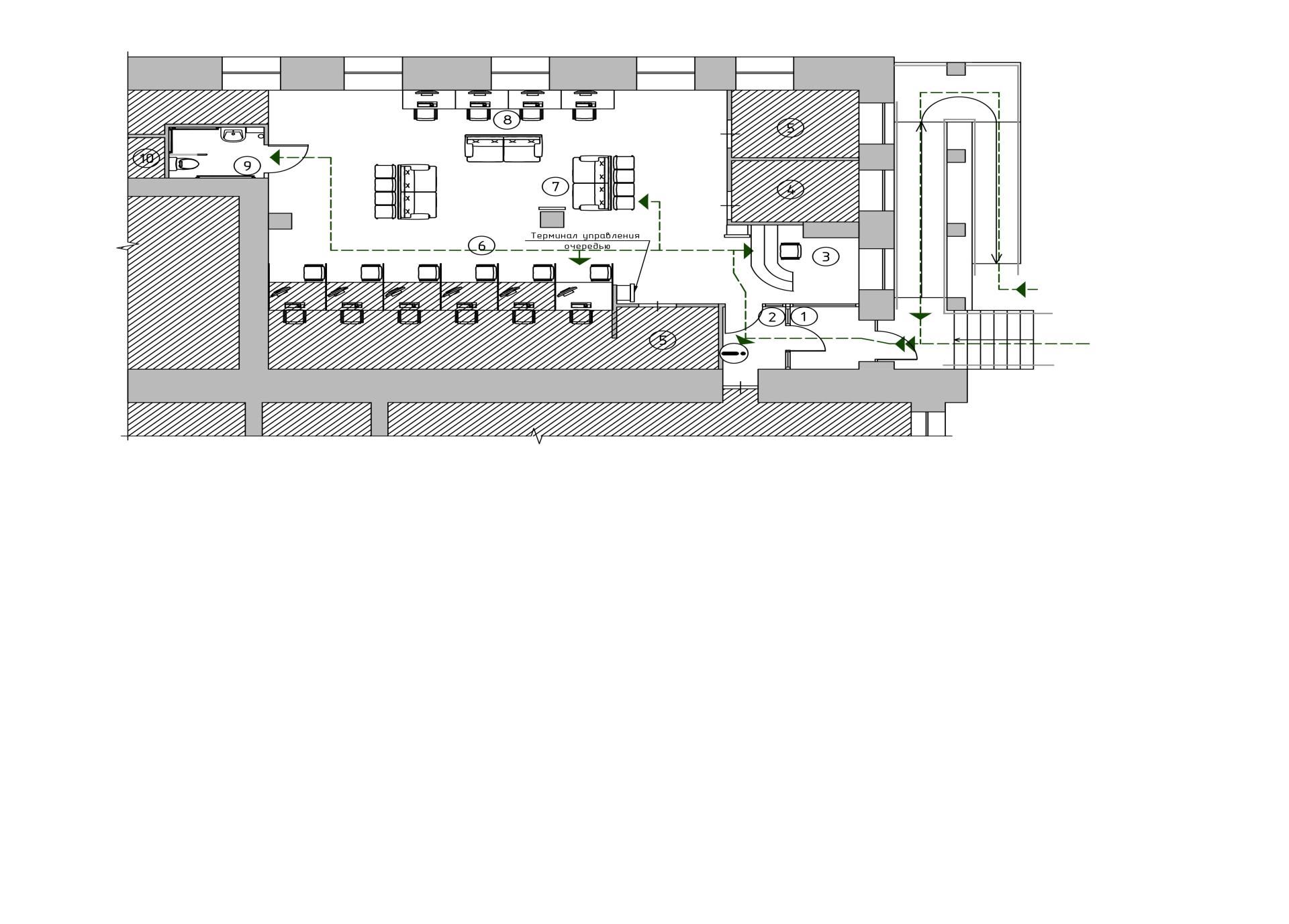
Входная группа

Для адаптации здания КУ НАО "МФЦ" и обеспечения доступа для людей с ограниченными возможностями и маломобильных групп населения (МГН), предусмотрены следующие мероприятия:

  • Входная площадка должна иметь размер не менее 2,2 х 2,2 м, согласно требованиям СП 59.13330-2012. В связи с невозможностью изменения размеров входной площадки из-за наличия несущей колонны, принято решение адаптировать входную группу на основании принципа "разумного приспособления". Для обеспечения безопасности и удобства МГН будет установлена кнопка вызова помощи на пандусе и площадке входной группы. Вход и выход в здание будут осуществляться при сопровождении персоналом КУ НАО "МФЦ". Также будет установлена тактильная кнопка вызова помощи на уровне 0,85-1,1 м от уровня пешеходной поверхности.
  • Ширина дверных проемов тамбура составляет 790 мм, что соответствует габаритам кресла-коляски для взрослых. Расширение дверных проемов до 900 мм не требуется, так как МГН будет сопровождаться персоналом КУ НАО "МФЦ". Это позволит им без проблем пройти в помещение КУ НАО "МФЦ" для получения услуг.
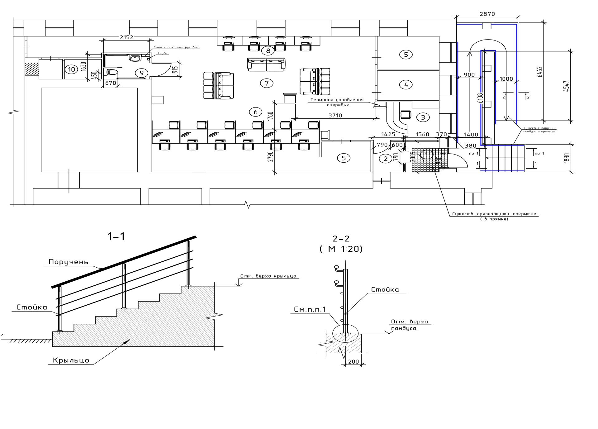
  • Существующие поручни пандуса и крыльца не соответствуют требованиям СП 59.13330.2020 и ГОСТ Р 51261-2017. Для удовлетворения этих требований будет произведен демонтаж заглушек существующего поручня и установка доборных элементов с соответствующими размерами и формой.
  • Пандус должен быть оборудован колесоотбойниками высотой не менее 0,05 м для предотвращения соскальзывания. Колесоотбойники будут выполнены из стальной прямоугольной трубы 50х25х2 согласно СП 59.13330.2020.
  • Горизонтальные части поручня крыльца должны быть длиннее марша лестницы или наклонной части пандуса на 0,3 м (допускается от 0,27 до 0,33 м) и иметь безопасное завершение, согласно СП 59.13330.2020.
  • Для обеспечения доступности для МГН будет выполнена замена плитки на поверхности входной площадки и лестницы на плитку, которая не скользит при намокании.
  • Для облегчения доступа людей на креслах-колясках с дорожки на площадку перед входной группой, необходимо понизить бортовой камень и поднять отметку поверхности площадки для обеспечения водоотвода.

Тактильные настенные указатели на путях перемещения МГН

В соответствии с СП 59.13330.2020 требуется обеспечить посетителям объекта возможность однозначной информации о размещении объектов и мест посещения, а также обеспечить надежную ориентацию в пространстве. Для этого будут установлены тактильные визуальные указатели на путях перемещения МГН:

  • Тактильная визуальная табличка размером 400х500 мм с дублированием информации по системе Брайля, содержащая наименование учреждения и режим работы. Место установки указано на листе 3 графической части.
  • Тактильная мнемосхема с планом помещений и их назначением, также содержащая информацию по системе Брайля. Мнемосхема будет установлена на стойке, место установки указано на листе 4 графической части.
  • Знаки доступности для инвалидов, передвигающихся на креслах-колясках, по слуху и по зрению.
  • Знаки обозначения помещений, оборудованных индукционными петлями для инвалидов по слуху.
  • Знаки обозначения доступных туалетов, кнопок вызова экстренной помощи и кнопок вызова персонала для ситуационной помощи.
  • Знаки указывающие направление движения и указывающие на "Ресепшен" и "Выход из помещения".

Монтаж тактильных визуальных указателей будет осуществлен на высоте 1,2-1,6 м от уровня пешеходной поверхности в соответствии с листом 4 графической части.

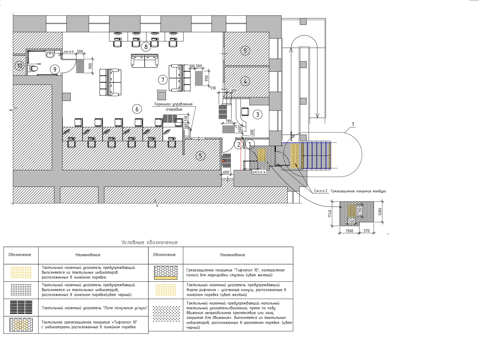
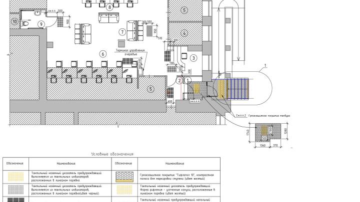
Тактильные наземные указатели (ТНУ) на путях перемещения МГН будут использоваться для предупреждения посетителей о препятствиях и определении мест ожидания. Вот основные характеристики указателей:

  1. Локальный предупреждающий указатель "внимание, прямо по ходу движения – лестница" будет иметь глубину от 500 до 600 мм и ширину, соответствующую ширине участка лестницы для инвалидов. Указатель будет содержать рифы типа усеченных конусов, усеченных куполов или цилиндров, расположенных в линейном порядке. Он будет размещаться на расстоянии 300 мм от кромки проступи первой ступени лестничного марша и выполнен в комбинированных тактильных индикаторах желтого цвета.

  2. Другой локальный предупреждающий указатель "внимание, прямо по ходу движения – лестница" будет иметь глубину от 500 до 600 мм и ширину, соответствующую ширине участка лестницы для инвалидов. Указатель будет содержать рифы типа усеченных конусов, усеченных куполов или цилиндров, расположенных в линейном порядке. Он будет размещаться на расстоянии 300 мм от кромки проступи верхней ступени лестничного марша и выполнен с тактильным грязезащитным покрытием и тактильными индикаторами. Располагаться он будет на крыльце перед ступенями.

  3. Предупреждающий указатель "внимание, прямо по ходу движения дверь" будет иметь глубину от 500 до 600 мм и ширину, равную ширине дверного проема. Указатель будет содержать рифы типа усеченных конусов, усеченных куполов или цилиндров, расположенных в линейном порядке. Место расположения указателя зависит от направления открывания двери: если дверь открывается на себя, то указатель будет размещаться на расстоянии, равном ширине дверного полотна; для раздвижных дверей и дверей, открывающихся от себя, указатель будет располагаться на расстоянии 300 мм от положения двери в закрытом состоянии. В тамбуре указатель будет выполнен с тактильным грязезащитным покрытием и тактильными индикаторами, а в вестибюле - черными тактильными комбинированными индикаторами. Монтаж осуществляется с помощью клея FIXVERT-S и трафарета.

  4. Указатель "Поле получения услуги" будет иметь эффективную глубину от 420 до 510 мм и будет содержать девять параллельных продольных рифов. Он будет выполнен комбинированными тактильными индикаторами черного цвета. Место расположения указателя - стойка информации, зона (стол) обслуживания МГН и место размещения мнемосхемы. Монтаж осуществляется с помощью клея FIXVERT-S, дюбелей-гвоздей и трафарета.

  5. Предупреждающий указатель "Внимание, по ходу движения - непреодолимое препятствие или зона, закрытая для движения" будет иметь глубину от 500 до 600 мм. Он будет содержать рифы типа усеченных конусов, усеченных куполов или цилиндров, расположенных в шахматном порядке. Этот указатель будет использоваться для идентификации "Места ожидания для МГН" и будет выполнен комбинированными тактильными индикаторами черного цвета. Монтаж осуществляется с помощью клея FIXVERT-S и трафарета.

Закажите проект прямо сейчас!

Выделите опечатку и нажмите Ctrl + Enter, чтобы отправить сообщение об ошибке.