Работаем по всей России

Проект раздела МОДИ (входная группа и санузел) в стоматологии г. Мурманск

Этот проект создан с целью обеспечения легкого доступа для людей с ограниченными возможностями и маломобильных групп населения (МГН) в здания ГОАУЗ "МОСП" на проспекте Героев Североморцев, дом 56, с учетом принципа "разумного приспособления". Проект разработан на основе технического задания, предоставленного заказчиком, и соблюдения действующих строительных норм и правил.

В рамках проекта предусмотрено проведение ряда мероприятий для улучшения архитектурной среды, при этом:

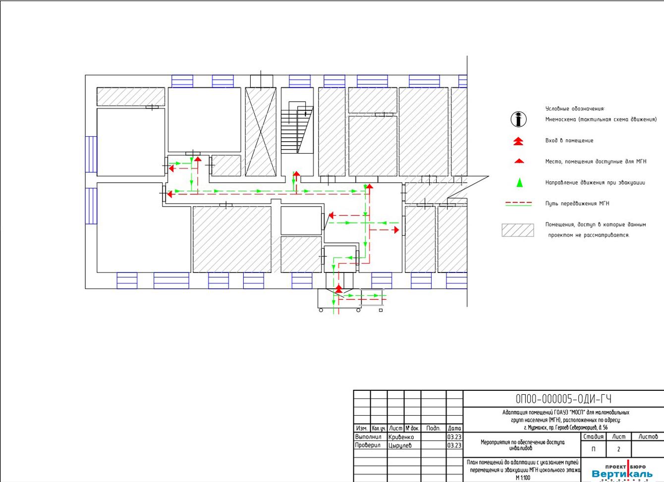
  • Места целевого посещения будут доступны для МГН с наименьшими препятствиями, и внутри здания будет обеспечено беспрепятственное перемещение.
  • Будут обеспечены безопасные маршруты движения и обслуживания, а также безопасность посетителей.
  • МГН будут получать своевременную и полноценную информацию, позволяющую им ориентироваться в пространстве, использовать оборудование и получать услуги.
  • Предусмотрены мероприятия для эвакуации людей из здания в случае опасных ситуаций, чтобы обеспечить их безопасность.

Эти проектные решения не будут ограничивать жизнедеятельность других групп населения в здании и окружающей территории. После реализации мероприятий, предусмотренных проектом, МГН смогут легко получать доступ к помещениям здания без каких-либо барьеров.

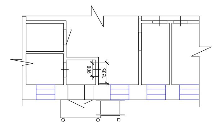
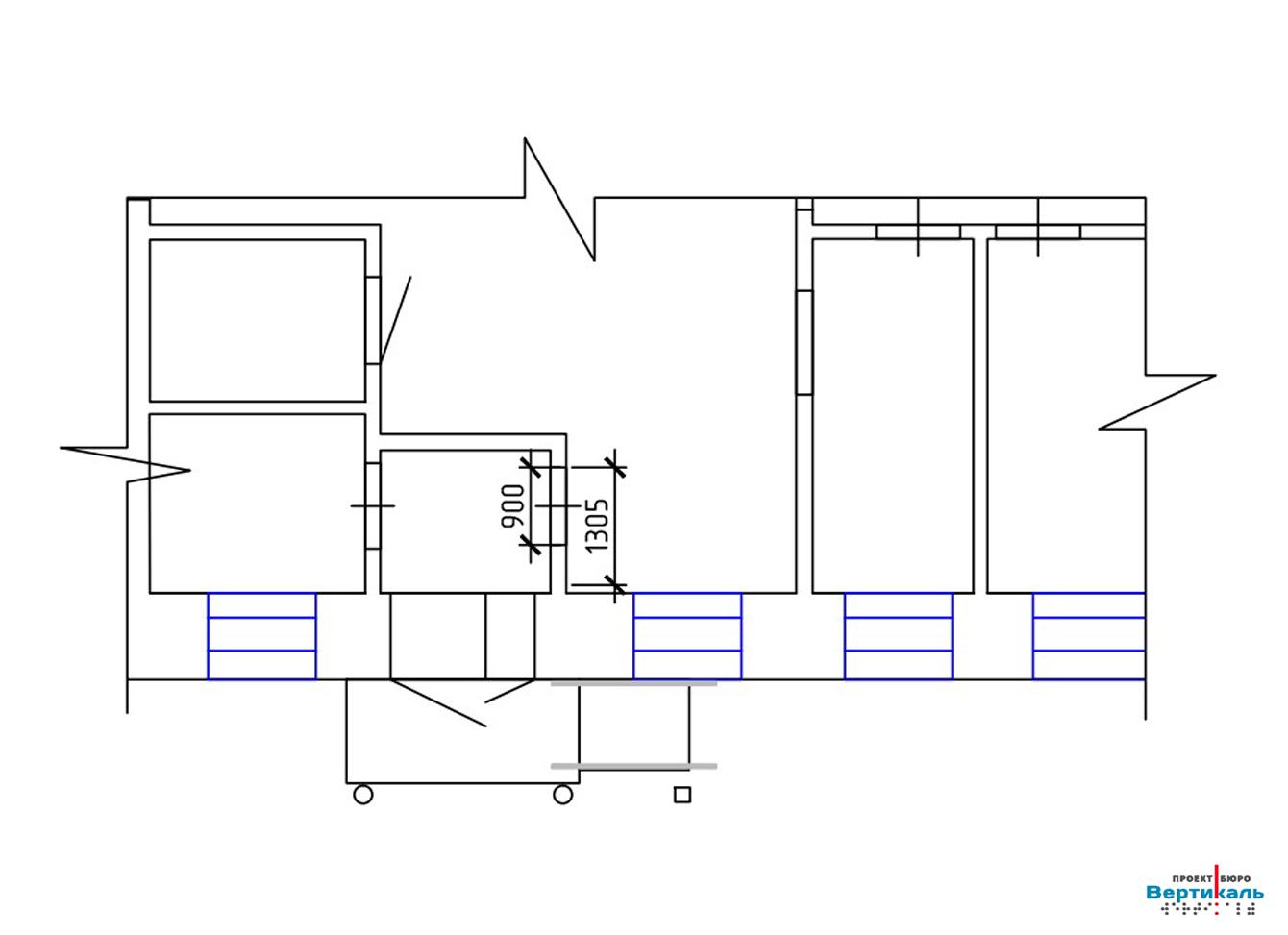
Входная группа:

В данном объекте, элементы входной группы включают в себя следующие компоненты: крыльцо перед центральным входом, тамбур, холл.

Проект предусматривает реализацию следующих действий:

  • Снятие существующих поручней общей длиной 2450 миллиметров.
  • Демонтаж двустворчатой ПВХ двери, соединяющей тамбур и холл, площадью 2610 квадратных метров.
  • Установка новых поручней, соответствующих стандартам ГОСТ Р 51261-2022, с общей длиной 3650 миллиметров.
  • Установка новой двустворчатой ПВХ двери, площадью 2610 квадратных метров.
  • Установка "ТифлоПола-10" размером 1725 х 2095 миллиметров в тамбуре.
  • Размещение тактильно-визуальной таблички перед входом в здание, а также тактильных пиктограмм "Доступность входа для инвалидов" всех категорий. 

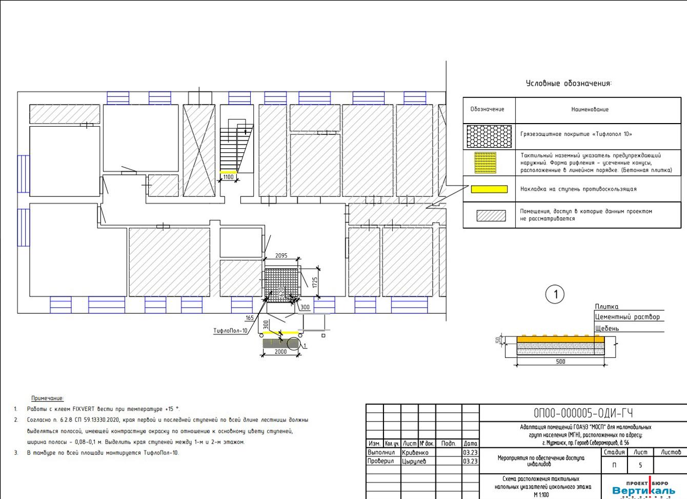
Для обеспечения безопасности и информирования людей с ограниченным зрением, будут устанавливаься тактильно, а также в соответствии с требованиями пункта 5.1.10 из СП 59.13330.2020 "Доступность зданий и сооружений для маломобильных групп населения", необходимо установить тактильные наземные указатели (ТНУ), согласно стандарту ГОСТ Р 52875-2018 "Указатели тактильные наземные для инвалидов по зрению. Технические требования".

Один из таких указателей - это локальный предупреждающий указатель, который сообщает "Внимание, прямо по ходу движения - лестница". Этот указатель должен иметь глубину от 500 до 600 мм и ширину, соответствующую ширине участка лестницы, предназначенной для движения инвалидов. На его поверхности должны быть рифы типа усеченных конусов, усеченных куполов и цилиндров, расположенные в линейном порядке.

Указатель размещается перед нижней ступенью крыльца на расстоянии 300 мм от нее. Перед нижней ступенью следует уложить бетонную плитку желтого цвета, которая будет выполнять функцию предупреждающей полосы. Монтаж этой бетонной плитки должен быть выполнен на подготовленную подоснову с использованием цементно-песчаного раствора.

На ступени лестницы следует нанести контрастные полосы, имеющие общую ширину в пределах от 0,08 до 0,1 метра, и окрашенные в желтый цвет. Монтаж этих полос должен выполняться с использованием клея FIXVERT-S и дюбель-гвоздей.

В рамках проекта предусмотрены тактильные визуальные указатели на путях перемещения МГН, включая:

  • Тактильную визуальную табличку размером 400x500 мм с дублированием информации в системе Брайля, указывающую наименование учреждения и его режим работы.
  • Тактильную мнемосхему размером 470x610 мм с планом и назначением помещений, дублирующую информацию тактильным плоскопечатным способом в системе Брайля
  • Знаки доступности объекта для инвалидов, включая тех, передвигающихся на креслах-колясках, инвалидов по слуху и инвалидов по зрению.
  • Знаки, обозначающие доступные туалеты для инвалидов всех категорий.
  • Тактильные таблички "Назначение помещения (зоны)" с выпуклым текстом на внешней стороне, который дублируется шрифтом по системе Брайля.
  • Знаки, обозначающие помещения (зоны), оборудованные индукционными петлями для инвалидов по слуху.

Монтаж тактильных визуальных указателей должен осуществляться на высоте 1,3 метра от уровня пешеходной поверхности. Кнопки устройств вызова помощи должны располагаться на высоте 1,2 метра от уровня доступной для инвалида поверхности передвижения на расстоянии не менее 0,6 метра от внутреннего угла и за пределами радиуса открывания двери, в соответствии с требованиями ГОСТ Р 51671-2020 пункт 7.2.2.3. Размещение табличек "Назначение помещения (зоны)" должно производиться на стене или нерабочей створке (если дверь двупольная), со стороны расположения дверной ручки, на высоте 1,3 метра от уровня пола.

Мероприятия для людей с дефектом слуха

В рамках проекта предусматривается установка портативной индукционной петли VERT-1a на месте обслуживания маломобильных групп населения. Эта портативная индукционная петля предназначена для использования на рабочей поверхности так, чтобы пиктограмма была направлена в сторону человека с нарушениями слуха. Она обеспечивает покрытие площади в размере 1,2 квадратных метров в рабочем диапазоне частот 1 кГц.

Важно отметить, что индукционная система предназначена для использования только внутри здания и не содержит деталей, которые пользователь может обслуживать самостоятельно. Человеку с нарушениями слуха необходимо переключить свой слуховой аппарат в режим индукционной катушки "Т".

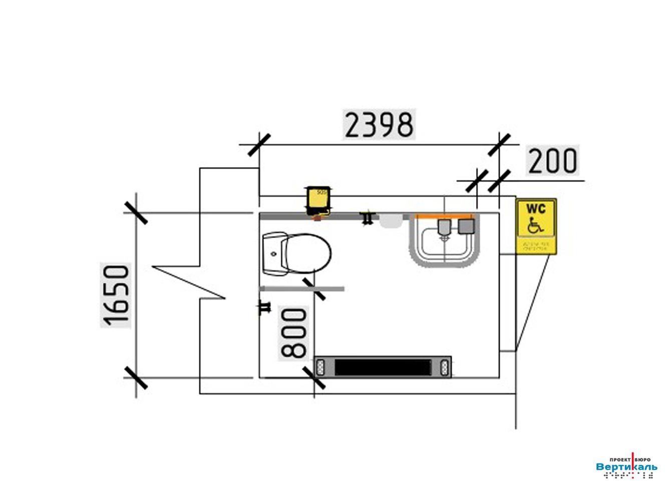
Универсальный санитарный узел (санузел) для МГН

Согласно нормам СП 59.13330.2020, во всех зданиях, где предполагается наличие санитарно-бытовых помещений для посетителей, необходимо включать специально оборудованные кабины, которые будут доступны для инвалидов. Эти кабины могут быть универсальными, предназначенными для использования различными группами посетителей.

Для облегчения доступа и информирования посетителей, над дверью кабин туалета также следует установить систему "Занято-свободно".

Закажите проект прямо сейчас!

Выделите опечатку и нажмите Ctrl + Enter, чтобы отправить сообщение об ошибке.