Работаем по всей России

Капитальный ремонт входной группы главного входа здания ГАУЗ СО «ОСБМР «Липовка» п. Липовка

Настоящий проект разработан в целях обеспечения беспрепятственного доступа к помещениям объекта для людей с ограниченными возможностями и маломобильных групп населения (МГН) по принципу «разумного приспособления». Разработана проектная документация «Капитальный ремонт входной группы главного входа здания (литера А2 и пом. 139 по техпаспорту БТИ) ГАУЗ СО «ОСБМР «Липовка»» по адресу Свердловская область, Режевской район, п. Липовка.

После реализации мероприятий, предусмотренных проектом, будет обеспечиваться возможность безбарьерного следования инвалидов групп мобильности М1-М4 с тротуара в тамбур здания. 

Мероприятия по адаптации для людей, использующих при передвижении дополнительные опоры и для людей, передвигающихся на креслах-колясках

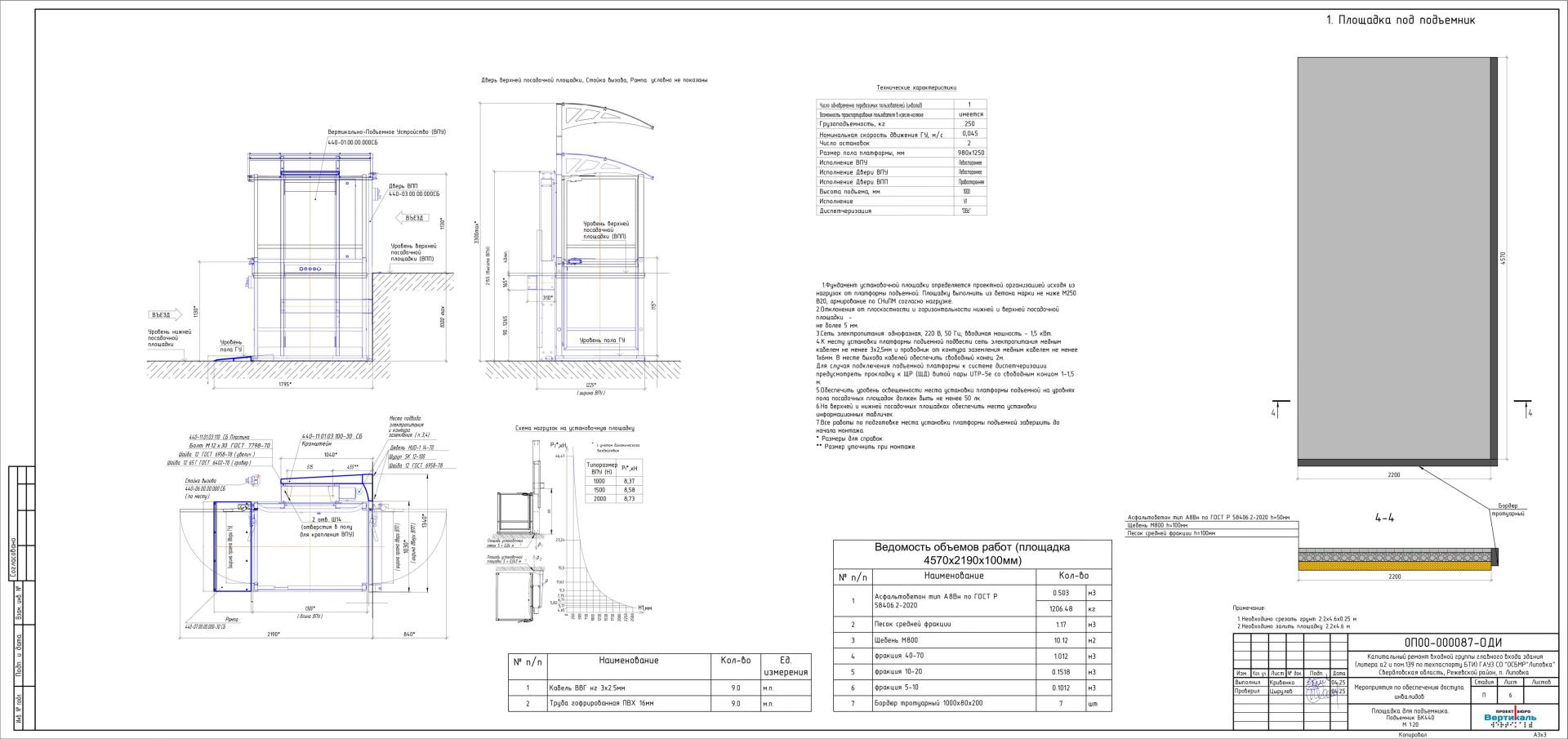
В проекте адаптируется одна входная группа. Производится установка металлического пандуса с уклоном 1:12,5 и вертикального подъемника БК440. На лестнице установлены поручни, соответствующие ГОСТ Р 51261-2022.

Вход в здание на отметке +0,932. Двери входного тамбура с автоматическим открыванием, а также распашные обеспечивают задержку закрывания дверей продолжительностью не менее 5 сек. (п.6.1.5 СП 59.13330.2020). Ширина тамбура составляет 3,93 м. и глубина 4,79 м. (п.6.1.8 СП 59.13330.2020).

Устройство входной площадки следующее:

  1. Устройство площадки в месте последующего монтажа подъемной платформы размерами 2,2х4,6 м. с покрытием из асфальтобетона.
  2. Устройство площадки в месте последующего монтажа пандуса размерами 3,7х8,6 м. и 4,0х3,0 м. с покрытием из асфальтобетона.
  3. Устройство площадки 2,2х5,2х0,932 м. и 4,0х2,2х0,932 м. с покрытием из архитектурного бетона повышенной прочности.
  4. Устройство лестницы шириной 4,0 м. с покрытием из архитектурного бетона повышенной прочности. 

Мероприятия по адаптации для людей с нарушением зрения

В соответствии с СП 59.13330.2020 «Доступность зданий и сооружений для маломобильных групп населения» технические средства информирования, ориентирования и сигнализации в местах массового посещения обеспечивают посетителям объекта возможности получения однозначной информации об объектах и местах посещения, получения информации о размещении и назначении функциональных элементов, об ассортименте и характере предоставляемых услуг, надежной ориентации в пространстве.

Проектом предусмотрены тактильные визуальные указатели на путях перемещения МГН:

  • Тактильная визуальная табличка с дублированием информации по системе Брайля с указанием наименования учреждения и режима работы.
  • Тактильные мнемосхемы с планом и назначением помещений с дублированием информации тактильным плоско-печатным способом по системе Брайля. Тактильную мнемосхема установлена в тамбуре справа.
  • Знак доступности объекта для инвалидов, передвигающихся на креслах-колясках, для инвалидов по слуху и для инвалидов по зрению.
  • Знак обозначения кнопки вызова персонала для оказания ситуационной помощи. Расположен над кнопкой вызова, установленной перед лестницей.
  • Монтаж тактильных визуальных указателей осуществляется на высоте 1,3 м. от уровня пешеходной поверхности до низа табличек. Кнопки устройства вызова помощи расположены на высоте 1,0 м. от уровня пола до низа кнопки.

Также проектом предусмотрен вход для МГН категорий М1-М4 в здание, инвалиды на кресле-коляске поднимаются по проектируемому пандусу или подъемнику БК440.

В проекте предусмотрены тактильные наземные указатели согласно ГОСТ Р 52875-2018:

  • Предупреждающий указатель «Внимание, прямо по ходу движения дверь» глубиной 600 мм., шириной равной ширине дверного проема. Тип рифления – усеченные конуса, расположенные в линейном порядке. Место расположения: если дверь открывается на себя – на расстоянии, равном ширине полотна двери 1000 мм.
  • Предупреждающий указатель «Внимание, прямо по ходу движения лестничный марш» глубиной 600 мм., шириной равной ширине лестничного марша. Место расположения: на расстоянии 300 мм. от кромки проступи первой ступени лестницы.
  • На проступи краевых ступеней лестницы расположены полосы черного цвета, имеющие общую ширину в пределах 0,1 м. Расстояние между контрастной полосой и краем проступи – 0,04 м.

Перечень использованных нормативных и регламентирующих документов

  1. СП 59.13330.2020 «Доступность зданий и сооружений для маломобильных групп населения».
  2. СП 136.13330.2012 «Здания и сооружения. Общие положения проектирования с учетом доступности для маломобильных групп населения».
  3. СП 138.13330.2012 «Общественные здания и сооружения, доступные маломобильным группам населения. Правила проектирования».
  4. ГОСТ Р 50602-93 «Кресла-Коляски. Максимальные габаритные размеры»
  5. ГОСТ Р 51261-2022 «Устройства опорные стационарные для маломобильных групп населения. Типы и общие технические требования»
  6. ГОСТ Р 52131-2019 «Средства отображения информации знаковые для инвалидов. Технические требования».
  7. ГОСТ Р 52875-2018 «Указатели тактильные наземные для инвалидов по зрению. Технические требования».

Оставьте свои контакты в полях ниже, и мы с вами свяжемся для обсуждения вашего проекта.

Выделите опечатку и нажмите Ctrl + Enter, чтобы отправить сообщение об ошибке.