Работаем по всей России

Мероприятия обеспечения доступности инвалидов (МОДИ) для МГН и детей-инвалидов на территории центра социальной помощи семье и детям (ЦСПСиД)

Настоящий проект разработан в целях формирования доступной среды, обеспечения безопасного доступа и беспрепятственного перемещения инвалидов (в том числе детей инвалидов) и других маломобильных групп населения на территории и в здании государственного автономного учреждения социального обслуживания Свердловской области (ГАУСО СО) "Центр социальной помощи семье и детям (ЦСПСиД) Артемовского района", расположенного по адресу: Свердловская область, Артемовский район, п. Буланаш, ул. Кутузова, д.23А.

Проектная документация проекта основывается на:
- техническом задании на проектирование;
- исходных данных, представленных заказчиком;
- результатах обследования объекта;
- действующих строительных нормах и правилах.

В проекте предусматривается комплекс мероприятий по повышению качества архитектурной среды при соблюдении:
1) досягаемости мест целевого посещения кратчайшим путем и беспрепятственного перемещения внутри помещений;
2) безопасности путей движения, а также мест обслуживания;
3) своевременного получения МГН полноценной и качественной информации, позволяющей ориентироваться в пространстве, использовать оборудование (в том числе для самообслуживания), получать услуги, и т.д.;

После реализации мероприятий, предусмотренных проектом «Центр социальной помощи семье и детям» будет предоставлять услуги инвалидам на кресле-коляске и всем группам мобильных граждан. Проектные решения не ограничат возможности и не ущемят другие группы населения как внутри, так и снаружи объекта проектирования.

Мероприятия по адаптации объекта

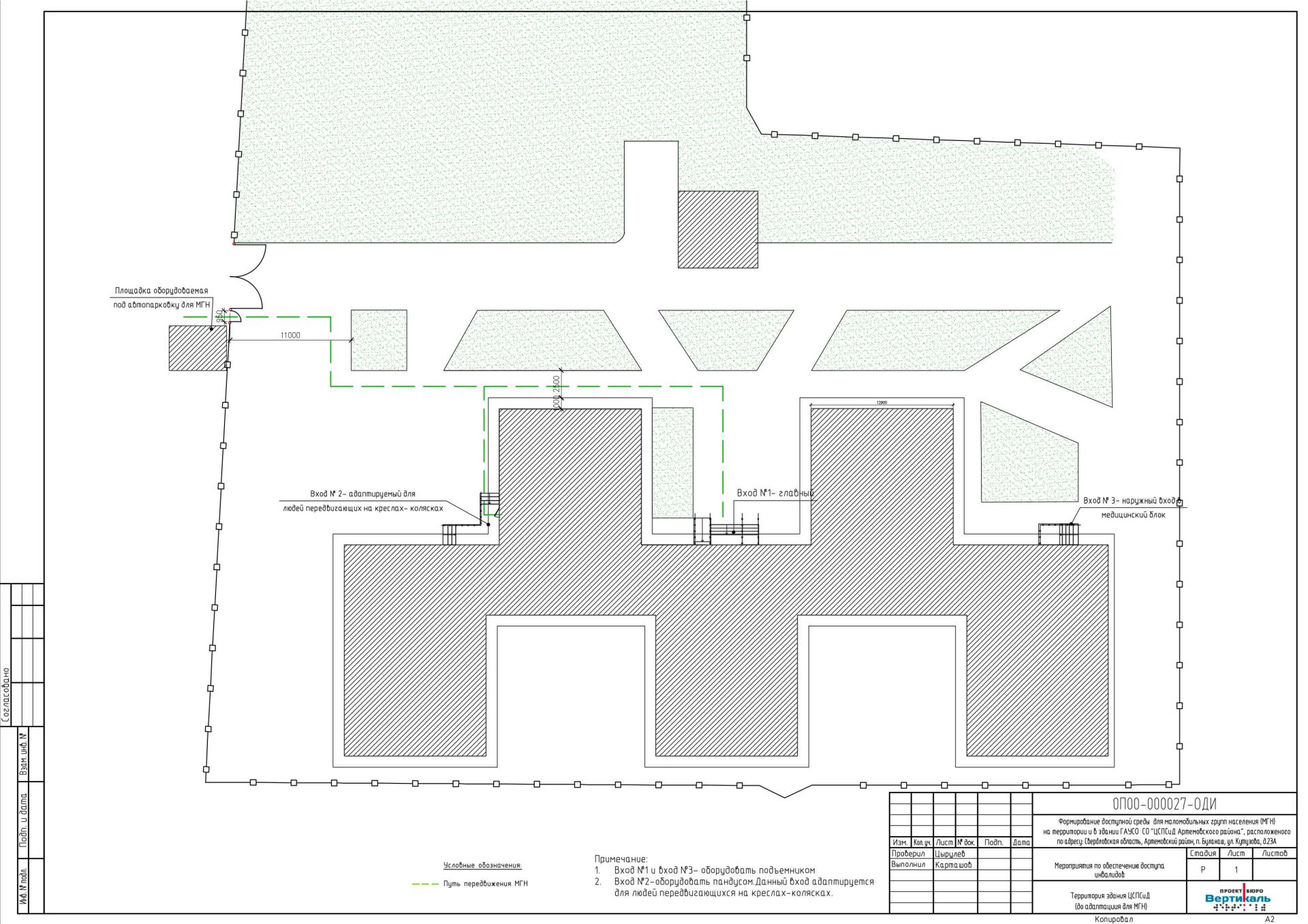
Разработанный комплекс мероприятий, направленных на создание безопасного, информативного и комфортного пути на объекте для получения услуг, позволит инвалидам и маломобильным группам населения (МГН) свободно передвигаться на территории и внутри ЦСПСиД.

В проекте предусмотрен самостоятельный путь движения от входа в помещения 1-го этажа, при необходимости в сопровождении сотрудников. Запланированные мероприятия адаптации:

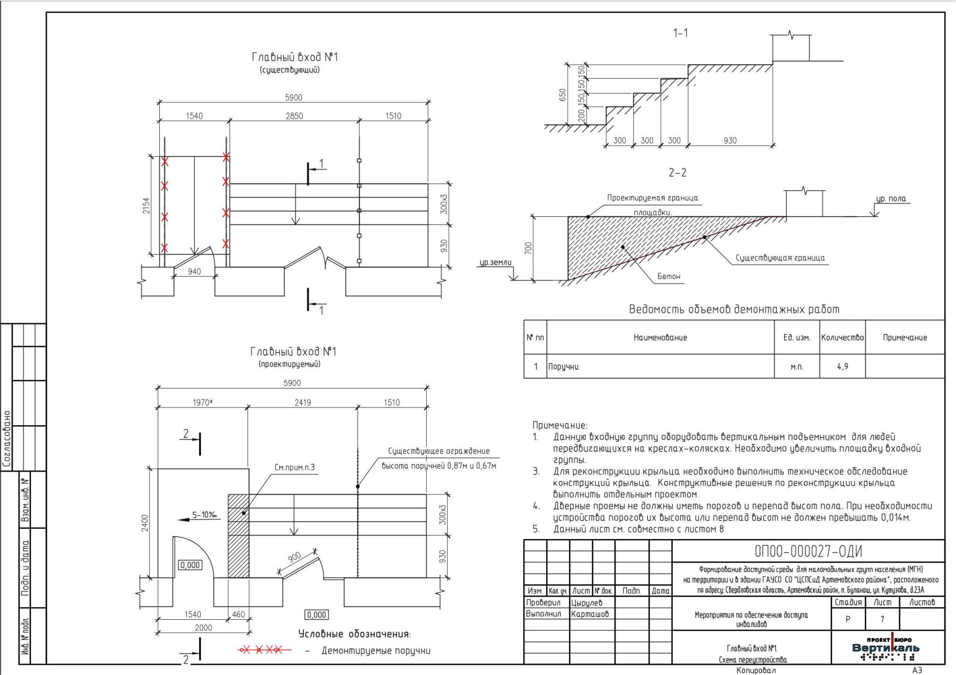
  • Установка пандуса на вход в физ. кабинет. Центральный вход и вход в мед. блок оборудуются вертикальным подъемником, согласно пожеланиям заказчика;
  • Установка универсального гусеничного лестничного подъемника для обеспечения доступа на 2-й этаж людей, передвигающихся в креслах-колясках. Управлении подъемником будет осуществляться сотрудником центра социальной помощи.
  • Устройство мест для стоянки (парковки) транспортных средств, управляемых инвалидами или перевозящих инвалидов;
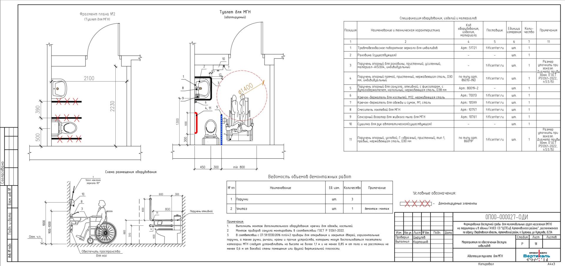
  • Адаптация санузла для МГН с группой мобильности М1-М3. Санузел находится на 2-м этаже в группе дневного пребывания «Росинка».
  • Адаптация туалета на 2-м этаже для людей передвигающихся в креслах- колясках.

Пандус для входной группы физ. кабинета будет устанавливаться согласно действующим требованиям: ширина марша пандуса (расстояние между поручнями ограждений пандуса) с односторонним движением следует принимать в пределах от 0,9 до 1,0 м (СП 59.133300.2020 п.6.2.9). Согласно п. 5.1.16 СП 59.13330.2020 по продольным краям марша пандуса устраиваются бортики высотой 0,05м. Пандусы должны быть оборудованы поручнями с учетом требований к опорным стационарным устройствам по ГОСТ Р 51261- 2017. Пандусы должны иметь двухстороннее ограждение с поручнями на высоте 0,9 и 0,7 м и иметь завершающие горизонтальные части длиннее наклонной части пандуса на 0,3 метра.; верхний и нижний поручни пандуса должны находиться в одной вертикальной плоскости с границами прохожей части пандуса (краем бортика). Покрытие пандуса, а также крыльца, должно быть из твердых материалов, ровным, не создающим вибрацию при движении по нему, обеспечивающее продольный коэффициент сцепления 0,4 кН/кН в условиях сырой погоды и отрицательных температур.

В проект заложен монтаж наружного вызывного устройства связи с персоналом. Высота установки должна быть в 0,85-1,1 метра от уровня пешеходной поверхности (п. 6.4.2 СП 59.13330.2020). Сигнал с вызывного устройства подается через приемное устройство в место постоянного пребывания персонала. Монтаж вызывного устройства предусматривается у главного входа.

Для обеспечения безопасности и информативности для людей с нарушением зрения, а также в соответствии с п. 5.1.10 СП 59.13330.2020 необходимо нанести на горизонтальной поверхности тактильные наземные указатели (ТНУ) согласно ГОСТ Р 52875-2018:

  • Перед верхней и нижней ступенями выполнить монтаж локального предупреждающего указателя «Внимание, прямо по ходу движения – лестница», глубиной 600 мм на расстоянии 300 мм от кромки ступени на всю ширину участка лестницы, разрешенного для движения.
  • Предупреждающий указатель «внимание, прямо по ходу движения дверь». Размеры: глубина от 500 до 600 мм, ширина равна ширине дверного проема. Тип рифления – усеченные конуса, расположенные в линейном порядке. Место расположения: если дверь открывается на себя – на расстоянии, равном ширине полотна двери. При наличии на входе раздвижных дверей - на расстоянии 300 мм от полотна двери.

Все тактильно наземные указатели, независимо от назначения, используемого материала и технологии обустройства, для обеспечения возможности их идентификации слабовидящими людьми должны быть желтого цвета при обустройстве на темной поверхности или черного цвета при обустройстве на светлой поверхности. (ГОСТ Р 52875-2018 п. 4.1.4).

Входные двери, доступные для инвалидов и МГН, должны быть хорошо опознаваемы. Также учитывая требования п.6.4.1 СП 59.13330.2020 целесообразно использовать контрастные сочетания цветов в применяемом оборудовании (дверь-стена, ручка). Этим проектом рекомендовано выполнить ручку двери – в желтом цвете, дверные проемы входных дверей обозначить контрастной полосой шириной не менее 50мм расположенную по периметру дверных полотен.

В соответствии с п. 6.5.1 СП 59.13330.2020 элементы здания, доступные для маломобильных групп населения, должны идентифицироваться с помощью технических средств информирования, а именно обозначаться пиктограммами «доступность для инвалидов по слуху», «доступность для инвалидов по зрению», «доступность для инвалидов на креслах-колясках».

Информирующие тактильные таблички с указанием названия и режимом работы помещения согласно п. 6.5.9 СП 59.13330.2020 для людей с нарушением зрения с использованием рельефных знаков и символов, а также рельефно-точечного шрифта Брайля должны размещаться рядом с входной дверью со стороны дверной ручки на высоте от 1.2м до 1.6м. При входе в здание и в самом здании для инвалидов по зрению должна быть установлена информационная тактильная мнемосхема, отображающая информацию о помещениях объекта. На стойке администратора для получения услуги необходимо разместить портативные индукционные системы для усиления восприятия звука для людей с недостатками слуха, использующих слуховой аппарат с режимом «Т».

Перечень использованных нормативных и регламентирующих документов

  1. СП 59.13330.2020 «Доступность зданий и сооружений для маломобильных групп населения». Актуализированная редакция СНиП 35-01-2001.
  2. СП 136.13330.2012 «Здания и сооружения. Общие положения проектирования с учетом доступности для маломобильных групп населения» (с Изменениями №1).
  3. СП 138.13330.2012 «Общественные здания и сооружения, доступные маломобильным группам населения. Правила проектирования» (с Изменениями №1).
  4. ГОСТ Р 50602-93 «Кресла-Коляски. Максимальные габаритные размеры».
  5. ГОСТ Р 51261-2022 «Устройства опорные стационарные реабилитационные. Типы и технические требования».
  6. ГОСТ Р 52131-2019 «Средства отображения информации знаковые для инвалидов. Технические требования».
  7. ГОСТ Р 52875-2018 «Указатели тактильные наземные для инвалидов по зрению.Технические требования».

Для обсуждения проекта адаптации вашего учреждения оставьте свои контакты, и мы свяжемся с вами.

Выделите опечатку и нажмите Ctrl + Enter, чтобы отправить сообщение об ошибке.