Работаем по всей России

Обеспечение доступности для инвалидов в ГДК г. Уфа

Данный проект создан для обеспечения доступности здания людям с инвалидностью и категории МГН. В частности, это касается городского дворца культуры по адресу: г.Уфа, проспект Октября, д. 137. Разработанная проектная документация основывается на: техническом задании на проектирование, исходных данных, предоставленных заказчиком, действующих строительных нормах и правилах.

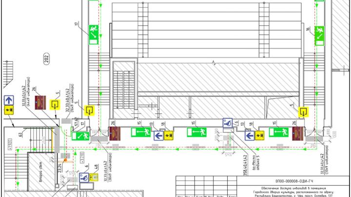
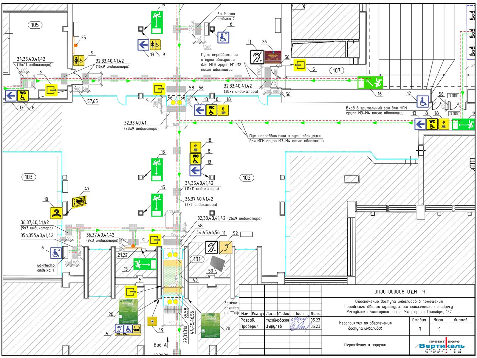
Проект предусматривает отдельный маршрут для людей с ограничениями в движении. Для людей с более серьезными ограничениями, относящихся к категориям М3-М4, предлагается преодолевать лестницу только с левой стороны здания через плавный спуск. Также в проекте отсутствуют разметка парковочных мест и визуальные указатели с направлениями движения от парковки до входа в здание.
Входная группа состоит из двух дверей. Однако, из-за их недостаточной ширины невозможно их использовать, (рабочая ширина створки должна быть не менее 0,8 метра).

Проектом предусмотрены:

1. Тактильные настенные указатели на путях перемещения МГН групп М1-М4:

  • Тактильная пиктограмма «Доступность объектов для инвалидов по зрению и по слуху, а также в креслах-колясках» (219х466 мм);
  • Тактильные пиктограммы «Выход из помещения» (150х150мм);
  • Тактильные таблички на композитной основе, 300x400 мм (с указанием наименования учреждения и режимом работы, на двух языках, дублированная шрифтом Брайля);
  • Мнемосхема тактильная 600x800 мм с планом и назначением помещений (первый этаж);
  • Контрастная маркировка в форме круга диаметром 0,2 м стеклянных полотен дверей. Маркировку нанести на двух уровнях (0,9 и 1,4 м до центра) с обеих сторон дверных полотен;
  • Маркировка дверных проемов тамбура контрастной лентой.

2. Тактильные наземные указатели на путях перемещения МГН групп М1-М2:

  • На проступях краевых ступеней лестницы нанести полосы жёлтого цвета, контрастные с поверхностью ступени, имеющие общую ширину в пределах 0,08 – 0,1 м. Расстояние между контрастной полосой и краем проступи – от 0,03 до 0,04 м..
  • Предупреждающий указатель «Внимание, прямо по ходу движения – лестница». Тактильный указатель глубиной от 500 до 600 мм, шириной, равной ширине участка лестницы, разрешенного для движения инвалидов.
  • Предупреждающий указатель «Поле внимания». Тактильный указатель не менее 600х600 мм. Рифы типа усеченных конусов, усеченных куполов, цилиндров, расположенных в линейном порядке.
  • Направляющий указатель для прямолинейного движения – эффективная ширина указателя от 130 до 150мм, длина отрезка от 300 до 600 мм, три параллельных продольных рифа.
  • Предупреждающий указатель «Внимание, прямо по ходу движения – дверь». Тактильный указатель глубиной от 500 до 600 мм, шириной, равной ширине рабочей створки.
  • Указатель «Поле получения услуги». Эффективная глубина указателя – от 420 до 510 мм. Тип рифления – девять параллельных продольных рифов. Поле выполняется тактильными индикаторами с монтажным штифтом через сверление и приклеивание.

Санитарно-бытовое помещение

Имеется женский и мужской санузлы, отсутствует санитарно-бытовое помещение, которое возможно адаптировать для МГН.

Проектом предусмотрен демонтаж крайних двух кабинок в санузлах с дальнейшим монтажом кабинок для МГН, тогда размер кабинок составит: в женском санузле – 3,19х1,79 м, в мужском – 2,20х1,7 м, что соответствует условиям п.п. 6.3.7 СП 59.13330.2020: универсальные кабины уборных с правым или левым расположением унитаза должны иметь размеры не менее 1.7х2,2 м.

По обеим сторонам от унитаза в мужском санузле установить откидные опорные поручни с возможностью пересадки на унитаз с обеих сторон, в женском санузле – откидной и стационарный. Рядом с унитазами предусмотрены кнопки вызова персонала с вибрацией и дополнительным шнурком, сигнал с кнопок передается на место постоянного пребывания персонала.

Умывальники для МГН предусмотрены в общей зоне умывальных с дополни-тельным монтажом крючков для трости и костылей, зеркал, поручней для умывальников, дозаторов, сенсорных смесителей, сушилок автоматических для рук (питание 220 Вт, провод проложить в кабель-канале). На пути движения к кабинкам для МГН установить тактильно-визуальные таблички с указанием направления. Рядом с входными дверями в кабинки произвести монтаж пиктограмм «Туалет для инвалидов на кресле-коляске» (150х150 мм).

Заполните данные и мы свяжемся с вами для обсуждения деталей будущего проекта для культурного учреждения!

Выделите опечатку и нажмите Ctrl + Enter, чтобы отправить сообщение об ошибке.