Работаем по всей России

Проект доступной среды для инвалидов в ДК «Красный перекоп» г. Ярославль

Настоящий проект разработан компанией «Вертикаль» в целях обеспечение безопасного доступа людей с ограниченными возможностями по состоянию здоровью в помещения Дома культуры "Красный перекоп", расположенного по адресу: Ярославская область, г. Ярославль, ул. Стачек, д.53.

Проектная документация разработана на основании:

  • технического задания на проектирование;
  • исходных данных, представленных Заказчиком;
  • результатах обследования;
  • действующих строительных норм и правил.

В проекте предусматривается комплекс мероприятий по повышению качества архитектурной среды: досягаемость мест целевого посещения кратчайшим путем и беспрепятственное перемещения внутри помещений; безопасность путей движения, а также мест обслуживания; своевременное получения МГН и инвалидами полноценной и качественной информации, позволяющей ориентироваться в пространстве, использовать оборудование (в том числе для самообслуживания), получать услуги, и т.д.

Данные проектные решения не ограничивают условия жизнедеятельности и не ущемляют возможности других групп населения, находящихся в помещении.

После реализации мероприятий, предусмотренных проектом, "Красный перекоп" будет предоставлять услуги инвалидам на кресле-коляске, людям с ограниченными возможностями по здоровью и остальным группам граждан.

Мероприятия по адаптации для людей, передвигающихся на креслах – колясках.

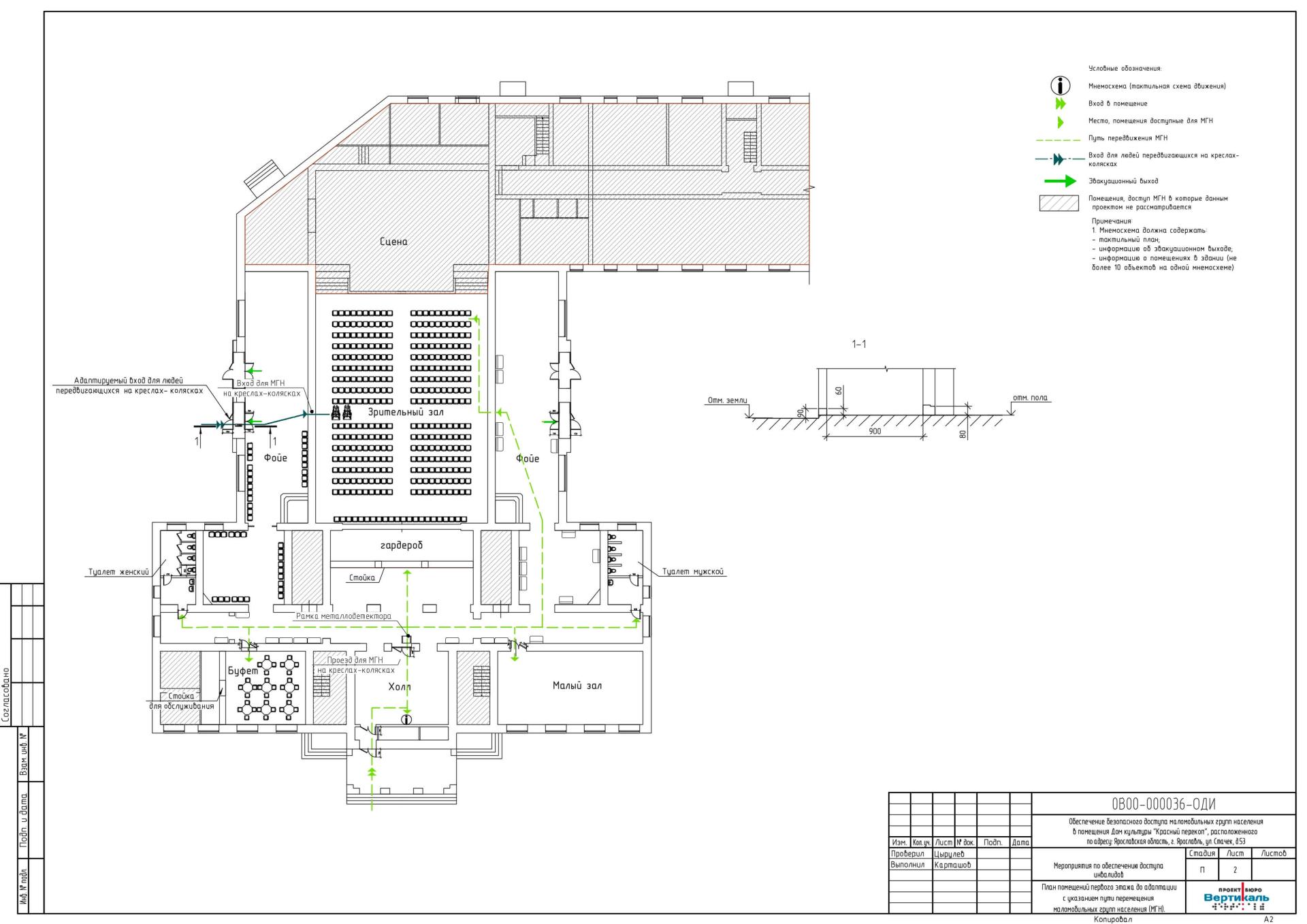
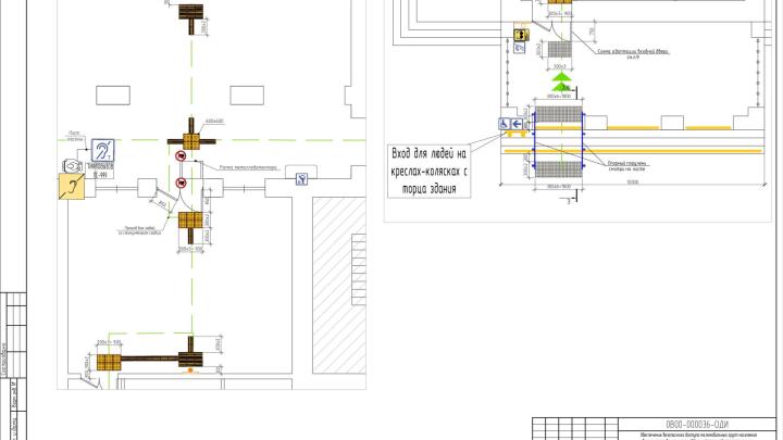
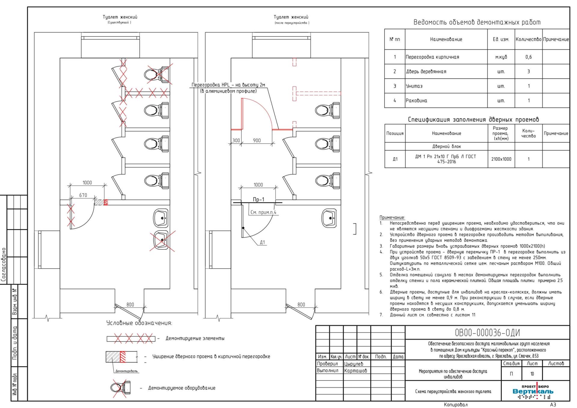
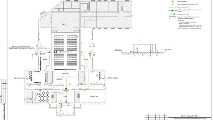
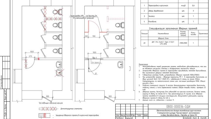
В проекте предусмотрен самостоятельный путь движения от входа в помещения 1-го этажа, при необходимости в сопровождении сотрудников. Вход людей на креслах-колясках осуществляется с торца здания. Для обеспечения доступа на 1-й этаж один из входов проходит адаптацию входной группы. Для людей, передвигающихся в креслах-колясках, предусматривается адаптация существующих туалетов (женский и мужской) на 1-м этаже. На приложенных из проектной документации листах можно увидеть маршрут движения МГН и инвалидов, а также схему адаптации уборной зоны для инвалидов-колясочников.

Проектом предусмотрен монтаж наружного вызывного устройства связи с персоналом для людей, нуждающихся в оказании помощи при въезде в здание. Высота установки должна быть в 0,85-1,1 метра от уровня пешеходной поверхности согласно (п. 6.4.2 СП 59.13330.2020). Сигнал с вызывного устройства подается через приемное устройство в место постоянного пребывания персонала. Монтаж вызывного устройства предусматривается у входа с торца здания адаптируемый для людей передвигающихся в креслах- колясках

Мероприятия для людей, использующие дополнительные опоры для движения.

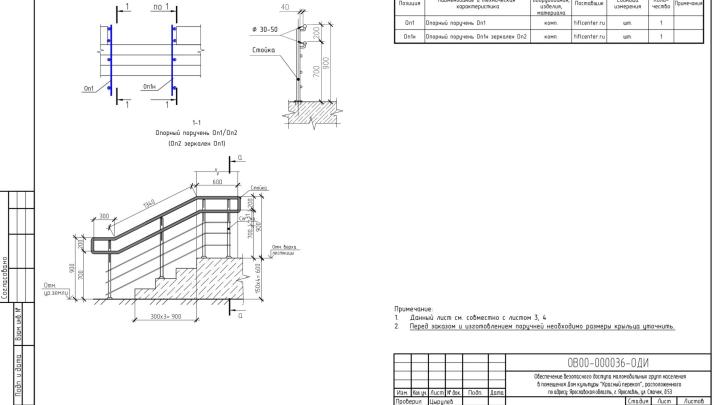
Для людей, использующие дополнительные опоры для движения проектом предусмотрена установка поручней на лестнице центральной входной группы.

В соответствии с ГОСТ Р 51261-2017: "Завершающие горизонтальные части поручня должны быть длиннее марша лестницы или наклонной части пандуса на 0,3 м и иметь не травмирующее завершение". Поручни лестницы выполняются в двух уровнях: 900мм и 700мм.

На приведенных ниже листах из проектной документации показан план адаптации главного входа (установка поручная), а также план план по адаптации уборных зон.

Конструкция и размещение поручней должны исключать возможность травмирования людей, поверхность должна быть гладкая и ровна без острых кромок и заусенцев. Формы и размеры опорных устройств должны обеспечивать максимальное  удобство их захвата и стабильную фиксацию кисти для каждой конкретной ситуации в процессе пользования.

Мероприятия по адаптации для людей с нарушением зрения

Для обеспечения безопасности и информативности помещений пребывания и путей движения для людей с нарушением зрения в соответствии с п. 5.1.10 СП 59.13330.2020 необходимо нанести на горизонтальной поверхности тактильные наземные указатели (ТНУ).

п. 5.1.10 СП 59.13330.2020 «Информацию для инвалидов с нарушениями зрения о приближении их к зонам повышенной опасности (отдельно стоящим опорам, стойкам и другим препятствиям, лестницам, пешеходным переходам и т. д.) следует обеспечивать устройством тактильно-контрастных наземных указателей по ГОСТ Р 52875 или изменением фактуры поверхности пешеходного пути с подобными характеристиками.»

Проектом предусмотрена установка ТНУ (с учетом ГОСТ Р 52875-2018):

- перед верхней и нижней ступенями выполнить монтаж локального предупреждающего указателя «Внимание, прямо по ходу движения – лестница», глубиной 600 мм на расстоянии 300 мм от кромки ступени на всю ширину участка лестницы.

- предупреждающий указатель «Внимание, прямо по ходу движения дверь». Размеры: глубина от 500 до 600 мм, ширина равна размерам дверного проема. Тип рифления – усеченные конуса, расположенные в линейном порядке. Место расположения: на расстоянии, равном ширине полотна двери.

- отрезок направляющего указателя, задающий направление движения от указателя "Поле внимания" в сторону какого-либо значимого объекта. Эффективная ширина указателя - от 130 до 150 мм, длина отрезка - от 300 до 600 мм, три параллельных продольных рифа. Выполняется комбинированными тактильными индикаторами.

п. 4.1.4 ГОСТ Р 52875-2018 «Все ТНУ, независимо от назначения, используемого материала и технологии обустройства, для обеспечения возможности их идентификации слабовидящими людьми должны быть желтого цвета при обустройстве на темной поверхности или черного цвета при обустройстве на светлой поверхности.»

Краевые ступени лестницы нужно выделить контрастной полосой желтого цвета общей шириной 0,08-0,1м. согласно п. 6.2.8 СП 59.13330.2020. Цвет определен из условий контрастности тактильной полосы к цвету материала ступеней. Монтаж тактильных наземных указателей вести в соответствии с графической части.

Поверхность покрытия крыльца должна быть не скользкой, допустимый коэффициент сцепления в условиях сырой погоды и отрицательных температур должен быть не менее 0.4кН/кН.

Информирующие тактильные таблички с указанием названия и режимом работы помещения согласно п. 6.5.9 СП 59.13330.2020 для людей с нарушением зрения с использованием рельефных знаков и символов, а также рельефно-точечного шрифта Брайля должны размещаться рядом с входной дверью со стороны дверной ручки на высоте от 1.2м до 1.6м. Информирующие тактильные таблички выполнить на светлом фоне с применением текста темных оттенков, для обеспечения контрастности.

Мероприятия для людей с дефектом слуха

На стойке поста охраны, для получения услуги, разместить портативные индукционные системы для усиления восприятия звука для людей с недостатками слуха, использующих слуховой аппарат с режимом «Т».

Перечень использованных нормативных и регламентирующих документов


1. СП 59.13330.2020 «Доступность зданий и сооружений для маломобильных групп населения». Актуализированная редакция СНиП 35-01-2001.
2. СП 136.13330.2012 «Здания и сооружения. Общие положения проектирования с учетом доступности для маломобильных групп населения» (с Изменениями №1).
3. СП 138.13330.2012 «Общественные здания и сооружения, доступные маломобильным группам населения. Правила проектирования» (с Изменениями №1).
4. ГОСТ Р 50602-93 «Кресла-Коляски. Максимальные габаритные размеры».
5. ГОСТ Р 51261-2022 «Устройства опорные стационарные для маломобильных групп населения. Типы и общие технические требования».
6. ГОСТ Р 52131-2019 «Средства отображения информации знаковые для инвалидов. Технические требования».
7. ГОСТ Р 52875-2018 «Указатели тактильные наземные для инвалидов по зрению. Технические требования».

          Закажите проект доступного объекта культуры прямо сейчас.

          Выделите опечатку и нажмите Ctrl + Enter, чтобы отправить сообщение об ошибке.