Работаем по всей России

Адаптация здания Приморского многопрофильного колледжа в г. Партизанске для маломобильных групп населения

Настоящий проект разработан в целях обеспечения беспрепятственного доступа к помещениям колледжа для людей с ограниченными возможностями и маломобильных групп населения (МГН) по принципу «разумного приспособления». Адаптации подлежат помещения Краевого государственного автономного профессионального образовательного учреждения «Приморский многопрофильный колледж» (КГА ПОУ «ПМК»), расположенного по адресу: Приморский край, г. Партизанск, ул. Техникумовская, д. 2а. Проектная документация разработана на основании технического задания, исходных данных Заказчика и в строгом соответствии с актуальными требованиями СП 59.13330.2020, ГОСТ Р 51261-2022 и других регламентирующих документов.

Мероприятия по адаптации территории и входных групп

  • Обустройство тротуаров и парковки. Проектом предусмотрен монтаж тротуара шириной не менее 2,0 м на пути движения МГН из асфальтобетонного покрытия. На существующей автостоянке будет нанесена разметка специализированного парковочного места для инвалидов, соответствующая ГОСТ Р 52289-2019.
  • Тактильно-визуальная навигация. На территории устанавливается тактильная мнемосхема (905x1150 мм) с планом учреждения. На путях движения монтируются тактильные наземные указатели: предупреждающие («Внимание, лестница», «Внимание, дверь»), направляющие и указатели «Поле получения услуги», выполненные из контрастной плитки со сменными рифами.
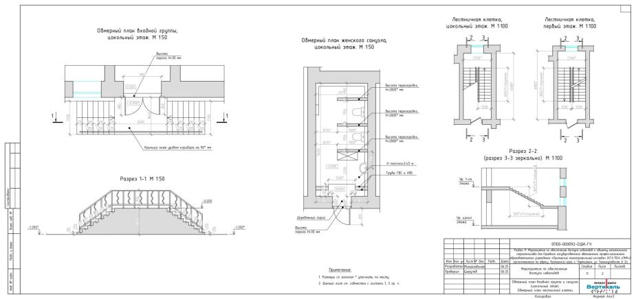
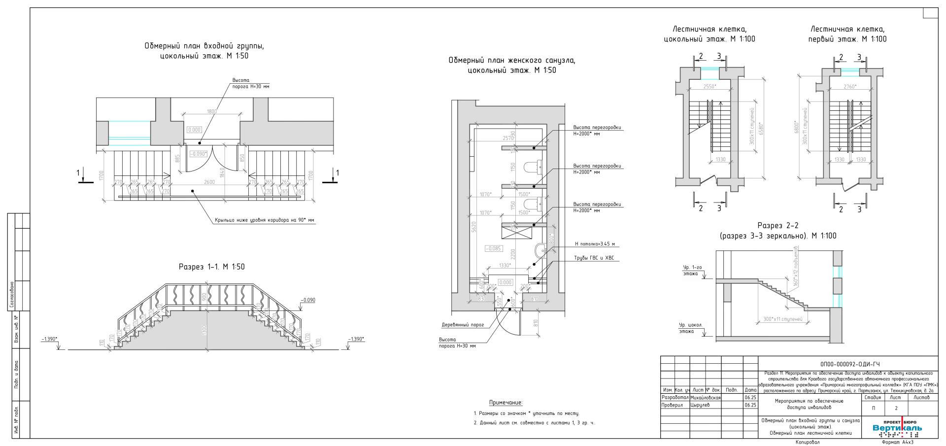
  • Адаптация входов. Для доступа в цокольный этаж (категории М1-М4) запроектированы: выравнивание ступеней, монтаж двухсторонних поручней, установка вертикальной подъемной платформы «Vertical-1» и приобретение перекатного пандуса для преодоления порога. Вход на первый этаж (для М1-М3) будет оборудован дополнительными поручнями и кнопкой вызова помощи.

Организация путей движения внутри здания

  • Вертикальные коммуникации. На внутренней лестнице между цокольным и первым этажами, а также на лестнице в вестибюле первого этажа устанавливаются дополнительные пристенные и разделительные поручни, соответствующие ГОСТ Р 51261-2022. Производится замена ограждения с калиткой в вестибюле для обеспечения безопасной эвакуации.
  • Горизонтальные коммуникации. На цокольном и первом этажах организуются места для кратковременного отдыха МГН. Для инвалидов по слуху (категория М1) предусмотрены переносные индукционные петли «VEGA-1», а для слабовидящих (М2) — портативные цифровые увеличители и лупы. Дверные проемы оснащаются контрастной маркировкой стекол и табличками «Обозначение помещения», устанавливаемыми на высоте 1,3 м от уровня пола.

Адаптация функциональных зон и оснащение специализированным оборудованием

  • Санитарно-бытовые помещения. В цокольном этаже выполняется ремонт женского санузла с выделением и оснащением универсальной кабины для МГН всех категорий размером 1,75x2,57 м. Устраняется перепад уровней пола, производится замена двери на беспороговую.
  • Учебные аудитории. В библиотеке, мастерской и аудиториях цокольного этажа устанавливаются парты с регулируемой высотой для студентов на креслах-колясках (категория М4). Первые столы в ряду у окон резервируются для обучающихся с недостатками зрения и слуха.
  • Система вызова помощи. На всей территории здания размещаются антивандальные кнопки вызова помощи (БК-86), сигнал от которых поступает на приемные устройства «Тифловызов» на постах постоянного нахождения персонала.

После выполнения полного комплекса запроектированных мероприятий здание «Приморского многопрофильного колледжа» будет обеспечивать возможность безопасного и независимого передвижения, ориентирования и получения образовательных услуг для инвалидов всех категорий мобильности (М1-М4). Проект гарантирует не только формальное соответствие законодательным нормам, но и создание комфортной, инклюзивной среды, не ограничивающей условия жизнедеятельности других студентов и сотрудников.

Оставьте свои контакты в полях ниже, и мы с вами свяжемся для обсуждения вашего проекта.

Выделите опечатку и нажмите Ctrl + Enter, чтобы отправить сообщение об ошибке.