Работаем по всей России

Адаптация помещений складского комплекса АПД-Маркет в городе Красногорск

Настоящий проект разработан с целью обеспечения удобного доступа для людей с ограниченными возможностями и маломобильных групп населения (МГН) в Складской комплекс АПД-Маркет, далее именуемый Объект. Принцип "разумного приспособления" применяется при обустройстве путей движения для МГН. Объект расположен по адресу: Московская область, г. Красногорск, д. Гольево, ул. Центральная, д. 3.

Проектная документация разработана на основе следующих источников: технического задания на проектирование; предоставленных заказчиком исходных данных; результатов проведенного обследования; соблюдения действующих строительных норм и правил.

В рамках проекта предусмотрены комплексные мероприятия, направленные на улучшение качества архитектурной среды с соблюдением следующих принципов:

  1. Обеспечение доступности мест назначения по кратчайшему пути и свободного перемещения внутри помещений комплекса.
  2. Обеспечение безопасности путей движения и обслуживаемых зон.
  3. Обеспечение своевременного предоставления МГН полноценной и качественной информации, позволяющей ориентироваться в пространстве, использовать оборудование (в том числе для самообслуживания), получать услуги и т.д.

Проектные решения не ограничивают условия для других групп населения, находящихся в помещениях Объекта, и не ограничивают их возможности.

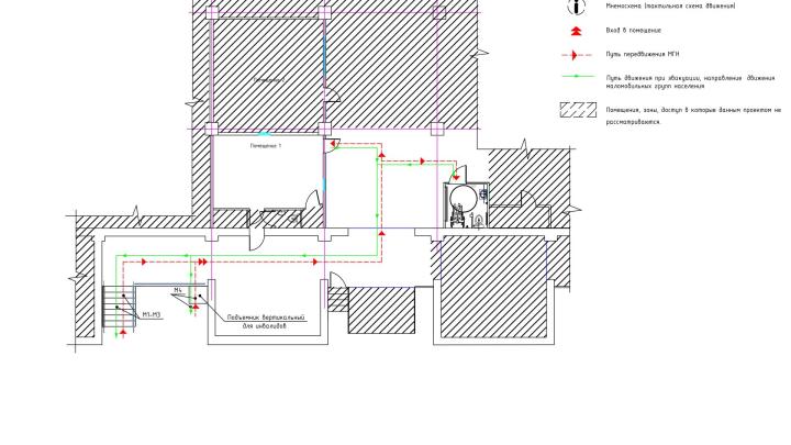
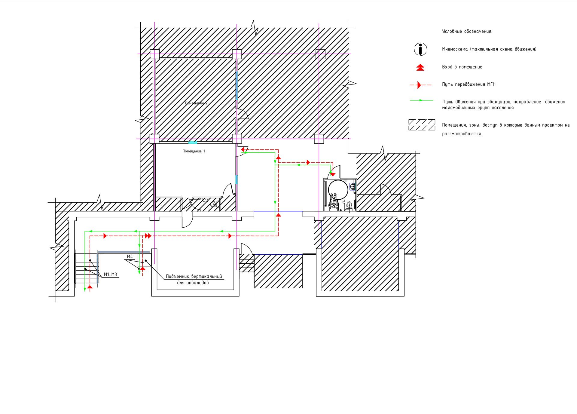
После реализации предусмотренных проектом мероприятий будет обеспечена возможность беспрепятственного перемещения инвалидов с различными уровнями подвижности (группы мобильности М1-М4) от центрального входа к внутренним помещениям Объекта.

Адаптация для людей с нарушением зрения на мероприятиях

Тактильные и визуальные указатели

В рамках проекта предусмотрен самостоятельный маршрут для людей с нарушением зрения (МГН группы М1-М4) от центрального входа к внутренним помещениям объекта. Для доступа МГН групп М1-М4 используется центральная входная дверь с нулевого уровня.

Согласно требованиям СП 59.13330.2020, технические средства информирования, ориентирования и сигнализации на местах массового посещения должны обеспечивать посетителям однозначную информацию о объектах и местах посещения, а также помогать получить информацию о размещении и назначении функциональных элементов, ассортименте и характере предоставляемых услуг, а также обеспечивать надежную ориентацию в пространстве.

Адаптация мероприятий для людей с нарушениями слуха

Для обеспечения лучшего восприятия информации людьми с нарушениями слуха, особенно в ограниченных пространствах с большим скоплением людей или при наличии посторонних шумов, используются специальные системы индукционного типа. Эти системы работают на основе высококачественных комплектующих элементов и представляют собой усилители звуковой частоты. Они принимают исходный звук и передают его обработанный сигнал в нагрузку. Кабель системы генерирует магнитное поле, которое меняется в соответствии с звуковыми колебаниями. Приемная катушка устройства создает токи, воспроизводящие исходный звуковой сигнал, который затем передается через наушники. Это позволяет увеличить разнообразие передаваемых звуков даже при наличии акустических преград.

В рамках проекта предусмотрена установка индукционной портативной петли VERT-1a на месте обслуживания людей с нарушениями слуха. Портативная индукционная петля VERT-1a предназначена для использования на рабочем столе таким образом, чтобы пиктограмма была обращена к слабослышащему человеку. Площадь покрытия петли составляет 1,2 м² в рабочем диапазоне 1 кГц.

Важно отметить, что индукционная система предназначена только для использования внутри помещений и не требует самостоятельного обслуживания. Установку и обслуживание должен проводить только квалифицированный персонал. Человеку с нарушениями слуха необходимо перевести свой слуховой аппарат в режим индукционной катушки "Т".

Мероприятия по адаптации для людей, передвигающихся на кресле-коляске

Для обеспечения доступа инвалидов, передвигающихся на кресле-коляске, используется платформа подъемного вертикального перемещения, соответствующая требованиям СП 59.13330.2020. Рядом с лестницей для инвалидов предусматривается установка кнопки вызова персонала, а приемное устройство сигнала размещается на столе в зоне пребывания персонала.

В местах оказания услуг для инвалидов на креслах-колясках должны быть соблюдены определенные требования. Поверхности столов, прилавков, нижних частей окон касс, справочных и других обслуживающих мест, используемых посетителями-инвалидами на креслах-колясках, должны находиться на высоте не более 0,80-0,85 м над уровнем пола. Проемы для ног должны иметь ширину и высоту не менее 0,75 м и глубину не менее 0,50 м в соответствии с требованиями п.8.1.7 СП 59.13330.2020. Дисплеи терминалов, банкоматов и других рабочих дисплеев, используемых инвалидами внутри зданий, следует устанавливать на высоте не более 1,1 м и не менее 0,85 м от пола, на расстоянии не менее 0,6 м от боковой стены помещения в соответствии с требованиями п.6.4.2 СП 59.13330.2020. Поверхность входной группы должна быть не скользкой, а коэффициент сцепления должен составлять не менее 0,4 даже в условиях сырой погоды и низких температур.

Перечень использованных нормативных и регламентирующих документов:

  1. СП 59.13330.2020 "Доступность зданий и сооружений для маломобильных групп населения". Актуализированная редакция СНиП 35-01-2001.
  2. СП 136.13330.2012 "Здания и сооружения. Общие положения проектирования с учетом доступности для маломобильных групп населения" (с Изменениями №1).
  3. СП 138.13330.2012 "Общественные здания и сооружения, доступные маломобильным группам населения. Правила проектирования" (с Изменениями №1).
  4. ГОСТ Р 50602-93 "Кресла-Коляски. Максимальные габаритные размеры".
  5. ГОСТ Р 51261-2022 "Устройства опорные стационарные для маломобильных групп населения. Типы и общие технические требования".
  6. ГОСТ Р 52131-2019 "Средства отображения информации знаковые для инвалидов. Технические требования".
  7. ГОСТ Р 52875-2018 "Указатели тактильные наземные для инвалидов по зрению. Технические требования".
  8. ГОСТ Р 55556-2013 "Платформы подъемные для инвалидов и других маломобильных групп населения. Требования безопасности и доступности. Часть 2. Платформы подъемные с наклонным перемещением".
  9. Приказ Минтруда России от 30.07.2015 № 527н "Об утверждении Порядка обеспечения условий доступности для инвалидов объектов и предоставляемых услуг в сфере труда, занятости и социальной защиты населения, а также оказания им при этом необходимой помощи".

Закажите проект прямо сейчас!

Выделите опечатку и нажмите Ctrl + Enter, чтобы отправить сообщение об ошибке.