Работаем по всей России

Адаптация помещений Омского аэропорта для маломобильных групп населения

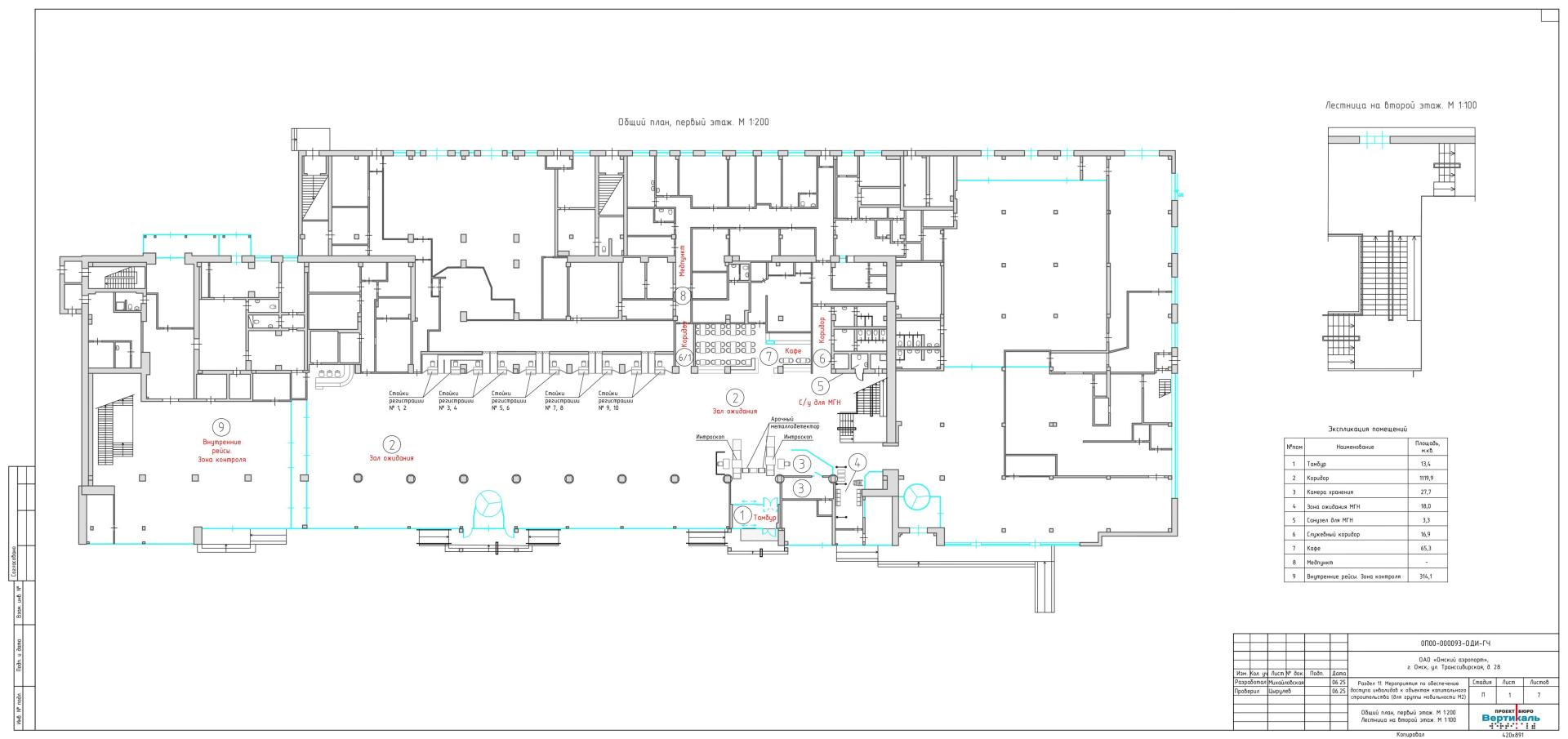
Настоящий проект разработан в целях обеспечения беспрепятственного доступа к помещениям ОАО «Омский аэропорт» для людей с ограниченными возможностями, относящихся к группе мобильности М2 (с нарушениями зрения), по принципу «разумного приспособления». Адаптации подлежат эксплуатируемые помещения аэропорта, расположенного по адресу: г. Омск, ул. Транссибирская, д. 28. Проектная документация разработана на основании технического задания на проектирование, исходных данных Заказчика и в строгом соответствии с актуальными требованиями СП 59.13330.2020, ГОСТ Р 52131-2019, ГОСТ Р 52875-2018 и других регламентирующих документов.

Мероприятия по адаптации входной группы

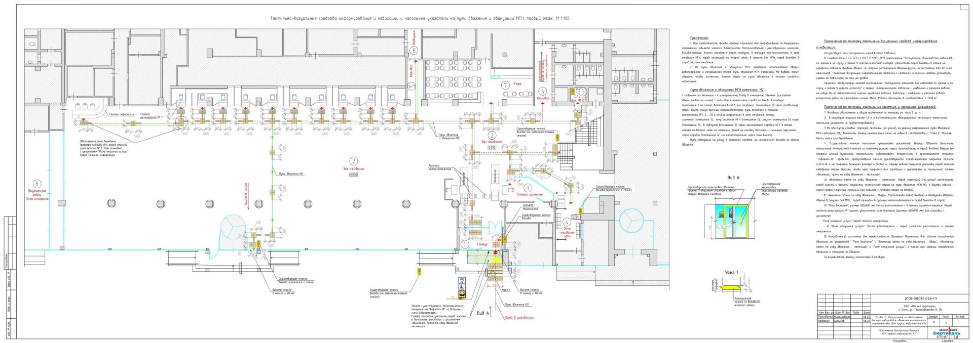
Входная группа является ключевым узлом для обеспечения ориентации и безопасного движения. В рамках проекта предусмотрен комплекс решений, направленных на устранение выявленных барьеров и создание интуитивно понятной навигационной среды.

  • Тактильно-визуальные средства информирования. Перед входом в здание на нерабочей створке входной двери будет установлена тактильная пиктограмма «Доступность объектов для инвалидов по зрению и по слуху, а также в креслах-колясках». Существующая табличка с режимом работы подлежит замене на новую, соответствующую нормам. В тамбуре производится замена существующей мнемосхемы на новую, размером 600x800 мм., с нанесением актуальных путей движения по объекту.
  • Тактильные наземные указатели. На путях движения к входу обустраиваются предупреждающие тактильные указатели. Перед лестницей монтируется указатель «Внимание, прямо по ходу движения — лестница» глубиной 500–600 мм. из контрастной плитки. Перед входными дверями размещается указатель «Внимание, прямо по ходу движения — дверь». Со стороны улицы данный указатель интегрируется в новое грязезащитное покрытие «Тифлопол-10», заменяющее существующее.
  • Модернизация маркировки лестницы. Производится замена контрастных полос на краевых ступенях лестницы на новые, общей шириной 0,08–0,1 м. желтого цвета, с соблюдением нормативных расстояний от края проступи.

Организация путей движения внутри объекта

Проектом обеспечено формирование логичного и безопасного маршрута для пассажиров с нарушениями зрения от входа до ключевых точек обслуживания и эвакуационных выходов.

  • Безопасный маршрут и эвакуация. Основной путь движения и эвакуации проложен через распашные двери, что позволяет исключить использование дверей револьверного и качающегося типов, затрудняющих самостоятельное перемещение МГН.
  • Напольная навигационная система. На всем пути следования монтируются тактильные напольные указатели:
  • Предупреждающие указатели «Внимание, прямо по ходу движения — дверь» перед проходом в зону металлодетектора и входом в санузел.
  • Указатели «Поле получения услуги» перед стойками регистрации и информационной стойкой.
  • Указатели «Поле внимания» размером 600x600 мм. и 600x900 мм. в зонах ожидания и перед стойкой регистрации.
  • Направляющие указатели для прямолинейного движения, связывающие ключеные узлы.
  • Обозначение зоны лестницы. В зоне ожидания на первом этаже, вблизи лестницы на второй этаж, адаптация которого не предусмотрена, устанавливается предупреждающий тактильный указатель «Внимание, прямо по ходу движения — лестница» для обеспечения безопасности.

Адаптация функциональных зон

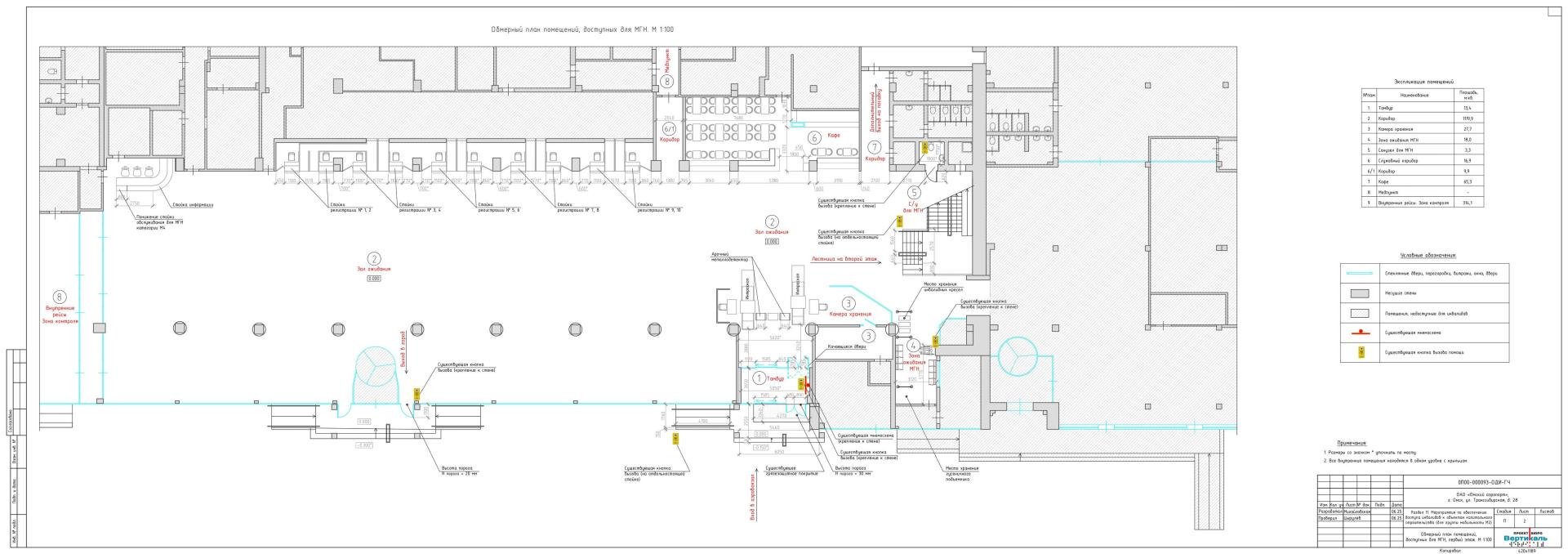
Существующее санитарно-бытовое помещение (санузел для МГН) обследовано на соответствие требованиям. Ширина дверного проема 0,82 м, порог отсутствует, помещение оснащено поручнями и кнопкой вызова помощи. В связи с соответствием нормам СП 59.13330.2020, дополнительные мероприятия по адаптации санузла для категории М2 не предусмотрены.

После реализации полного комплекса запроектированных мероприятий здание Омского аэропорта будет обеспечивать возможность безопасного и независимого передвижения, ориентации в пространстве и получения услуг для пассажиров с нарушениями зрения (категория мобильности М2). Проект гарантирует создание комфортной и доступной среды, соответствующей требованиям безбарьерного пространства, без ущемления возможностей других групп населения.

Оставьте свои контакты в полях ниже, и мы с вами свяжемся для обсуждения вашего проекта.

Выделите опечатку и нажмите Ctrl + Enter, чтобы отправить сообщение об ошибке.