Работаем по всей России

Пример разработанного проекта ОДИ для «Самойловской РБ» для обеспечение условий доступности МГН в г. Самойловка

Данный проект разрабатывался с целью обеспечения удобного доступа к помещениям ГУЗ СО «Самойловская РБ» для лиц с ограниченными возможностями и маломобильных групп населения (МГН), придерживаясь принципа "разумной адаптации". В рамках проекта будли модернизированы помещения ГУЗ СО «Самойловская РБ», которые находятся по адресу: Саратовская область, Самойловский район, р.п. Самойловка, ул. Пролетарская, д. 2.

Проектная документация разрабатывается с учетом следующих основных исходных данных:

  • Технического задания на проектирование;
  • Информации, предоставленной заказчиком;
  • Соблюдения действующих строительных норм и правил.

В рамках проекта предусмотрены разнообразные мероприятия, направленные на повышение качества архитектурной среды, с учетом следующих аспектов:

  1. Обеспечение удобства доступа до целевых мест по кратчайшему маршруту и создание беспрепятственных условий для передвижения внутри здания.
  2. Гарантирование безопасности маршрутов движения и областей обслуживания.
  3. Обеспечение своевременного предоставления МГН полноценной и качественной информации, позволяющей ориентироваться в пространстве, использовать оборудование (включая самообслуживание), а также получать разнообразные услуги.
  4. Разработка системы эвакуации из здания для обеспечения безопасного покидания здания в случае возникновения опасных ситуаций, которые могут угрожать жизни и здоровью людей.

 Мероприятия по адаптации здания для МГН. Входная группа

В данном объекте компонентами входной группы являются следующие элементы:

  • Крыльцо перед центральным входом;
  • Тамбур;
  • Холл.

Центральная входная дверь имеет ширину 900 миллиметров и оснащена П-образной дверной ручкой, а также оборудована доводчиком.

Проект предусматривает следующие мероприятия:

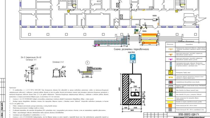
  • Установку новых поручней, соответствующих стандарту ГОСТ Р 51261-2022, длиной 3650 миллиметров.
  • Монтаж пандуса с наклоном 1:12,5.
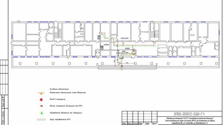
  • Размещение тактильно-визуальной таблички о назначении здания и тактильных пиктограмм "Доступность входа для инвалидов" всех категорий перед входом в здание. Монтаж был проведен в соответствии с листом 2 группы части 0П00-000012-ОДИ.
  • Установку тактильных мнемосхем в соответствии с листом 2 группы части 0П00-000005-1-ОДИ.

Тактильные наземные указатели (ТНУ) на путях перемещения МГН

Для гарантирования безопасности и информативности для лиц с нарушениями зрения, а также согласно пункту 5.1.10 СП 59.13330.2020 "Доступность зданий и сооружений для маломобильных групп населения", требовалось установить тактильные наземные указатели (ТНУ) в соответствии с требованиями, изложенными в ГОСТ Р 52875-2018 "Указатели тактильные наземные для инвалидов по зрению. Технические требования".

Один из таких указателей – локальный предупреждающий указатель "Внимание, прямо по ходу движения – лестница". Этот указатель имеет глубину от 500 до 600 мм и ширину, соответствующую ширине участка лестницы, разрешенного для движения инвалидов. На его поверхности располагаются рифы типа усеченных конусов, усеченных куполов и цилиндров, размещенные в линейном порядке. Указатель устанавливается перед нижней ступенью крыльца на расстоянии 300 мм от нее. Перед этой нижней ступенью плитка окрашивается в желтый цвет. Для монтажа бетонной плитки следует использовать цементно-песчаный раствор, нанося его на заранее подготовленное основание.

 Тактильные настенные указатели на путях перемещения МГН 

Согласно требованиям СП 59.13330.2020 "Доступность зданий и сооружений для маломобильных групп населения", технические средства информирования, ориентирования и сигнализации в местах массового посещения должны обеспечивать посетителям объекта возможность получения четкой информации о местоположении объектов и мест посещения, а также предоставлять информацию о расположении и назначении функциональных элементов, ассортименте и характере предоставляемых услуг, обеспечивая надежную ориентацию в пространстве.

 В проекте предусмотрены тактильные визуальные указатели на путях перемещения маломобильных групп населения (МГН): 

  • тактильная визуальная табличка с дублированием информации по системе Брайля (400х500 мм) с указанием наименования учреждения и режимом работы.
  • тактильная мнемосхема с планом и назначением помещений с дублированием информации тактильным плоскопечатным способом по системе Брайля (470 х 610 мм). 
  • уличная тактильная мнемосхема с планом и назначением помещений с дублированием информации тактильным плоскопечатным способом по системе Брайля (470 х 610 мм). 
  • знак доступности объекта для инвалидов, передвигающихся на креслах-колясках, для инвалидов по слуху и для инвалидов по зрению; 

  Универсальный санитарный узел (санузел) для МГН

Согласно стандарту СП 59.13330.2020, во всех зданиях, где предусмотрены санитарно-бытовые помещения для посетителей, необходимо включать специальные доступные кабины для инвалидов в общественных туалетах, либо оборудовать универсальные кабины.

Для обеспечения свободного доступа лиц с ограниченными возможностями в универсальные туалетные кабины, требуется:

  • Установить систему тревожной сигнализации в зоне, которая доступна рядом с унитазом и находится на высоте 800 мм.
  • Разместить универсальный держатель для трости на высоте 1,2 мм.
  • Установить опорные поручни для унитазов и раковины на высоте 800 мм.

Для обеспечения свободного доступа маломобильных групп населения в душевые помещения, следует:

  • Установить специальное сиденье для ванны и душа.
  • Установить настенные поручни для душевой.
  • Установить систему тревожной сигнализации в зоне, которая доступна рядом с унитазом и находится на высоте 800 мм.
  • Разместить универсальный держатель для трости на высоте 1,2 мм.

Закажите проект прямо сейчас!

Выделите опечатку и нажмите Ctrl + Enter, чтобы отправить сообщение об ошибке.