Работаем по всей России

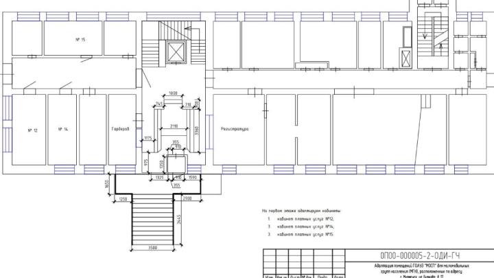
Проектирование доступной среды ГОАУЗ «МОСП» г. Мурманск

Целью настоящего проекта является обеспечение незатруднительного доступа людей с ограниченными возможностями и маломобильных групп населения к помещениям ГОАУЗ "МОСП" по принципу "разумного приспособления". Проект предусматривает адаптацию помещений ГОАУЗ "МОСП", расположенных по адресу: г. Мурманск, ул. Буркова, д. 17. Разработка проектной документации основывается на следующих документах: техническое задание на проектирование, предоставленные заказчиком, а также действующие строительные нормы и правила.

Основные принципы проекта. Проект включает комплекс мероприятий, направленных на повышение качества архитектурной среды при соблюдении следующих принципов:

  • Обеспечение наиболее удобного доступа к целевым местам с использованием самого короткого пути и возможности свободного передвижения внутри здания;
  • Обеспечение безопасности путей движения и обслуживающих пространств;
  • Предоставление полноценной информации, необходимой для ориентации в пространстве, использования оборудования (включая самообслуживание), получения услуг и других необходимых ресурсов;
  • Гарантирование возможности эвакуации людей из здания в случае возникновения угрозы для их жизни и здоровья из-за опасных факторов.

Условия реализации проектных решений Реализация данных проектных решений не повлияет на условия проживания и возможности других групп населения, находящихся в здании и прилегающей городской территории. После реализации предусмотренных проектом мероприятий, группы маломобильных граждан категорий М1-М3 смогут свободно посещать помещения здания. Инвалиды категории М4 обслуживаются по адресу: пр. Героев Североморцев, д. 56.

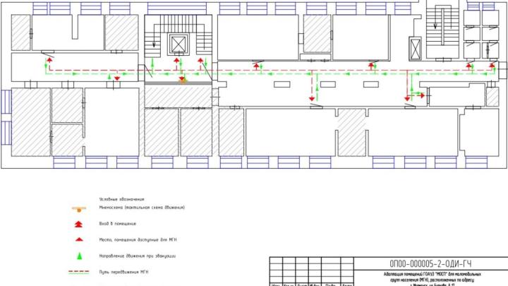
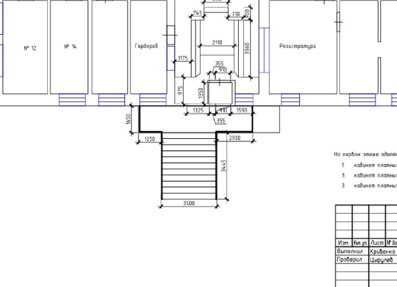
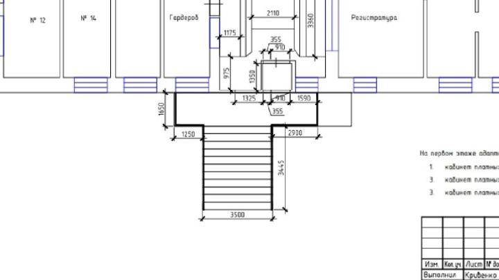
Входная группа в данном объекте включает следующие элементы: крыльцо перед центральным входом, тамбур и холл.

Проект предусматривает следующие мероприятия:

  • Демонтаж существующих поручней в длиной 14340 мм;
  • Установка новых поручней, соответствующих ГОСТ Р 51261-2022, в длиной 14940 мм;
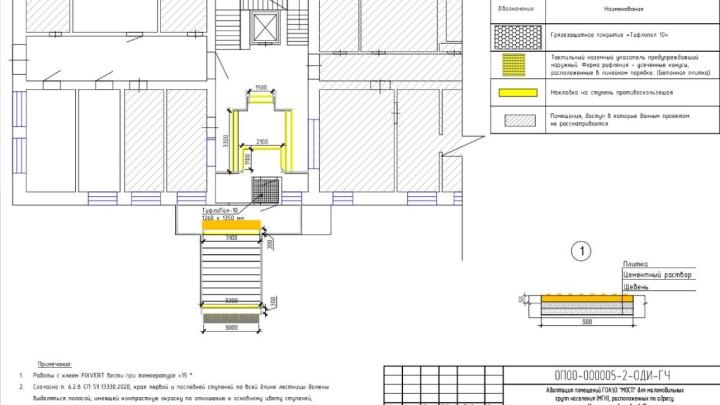
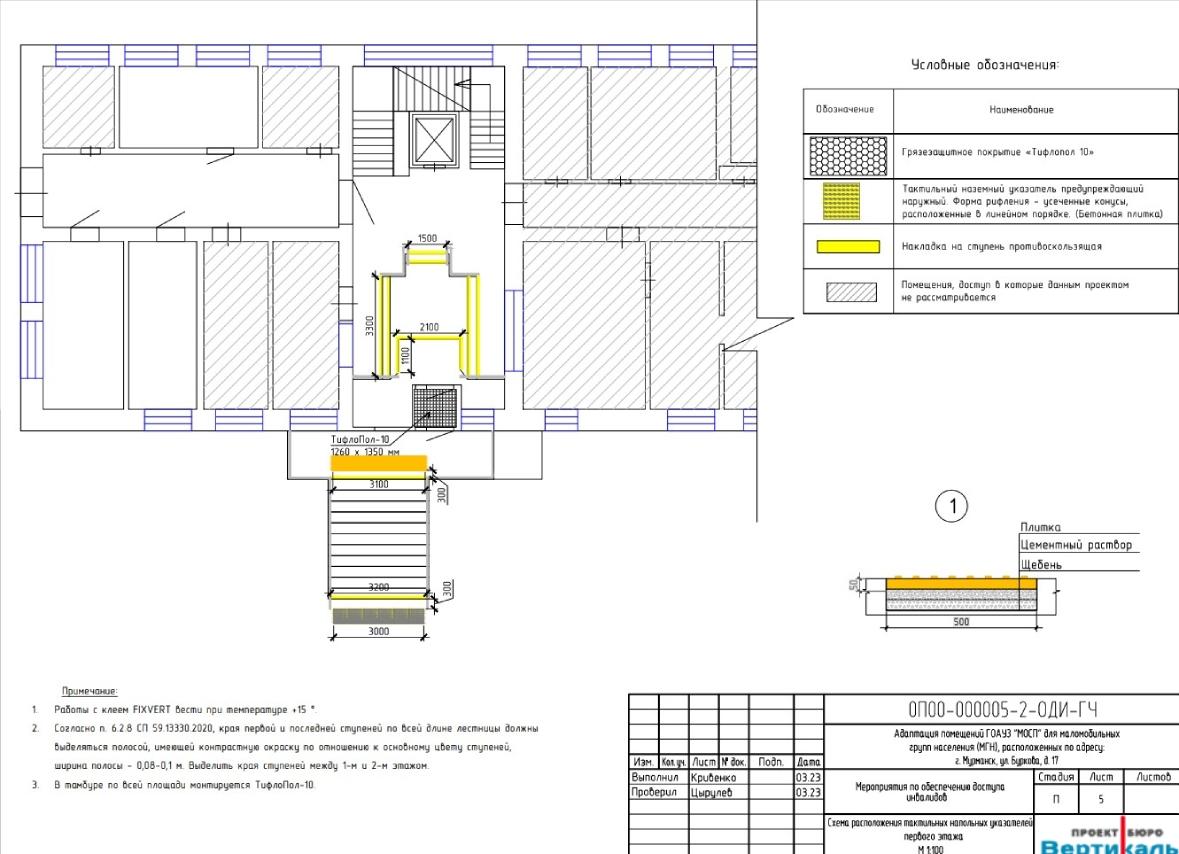
  • Установка "ТифлоПола-10" размером 1260 х 1350 мм в тамбуре;
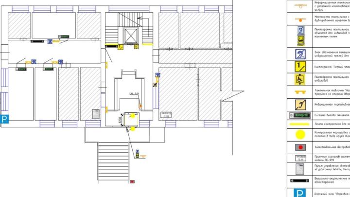
  • Размещение тактильно-визуальной таблички о назначении здания и тактильных пиктограмм "Доступность входа для инвалидов" всех категорий перед входом в здание.

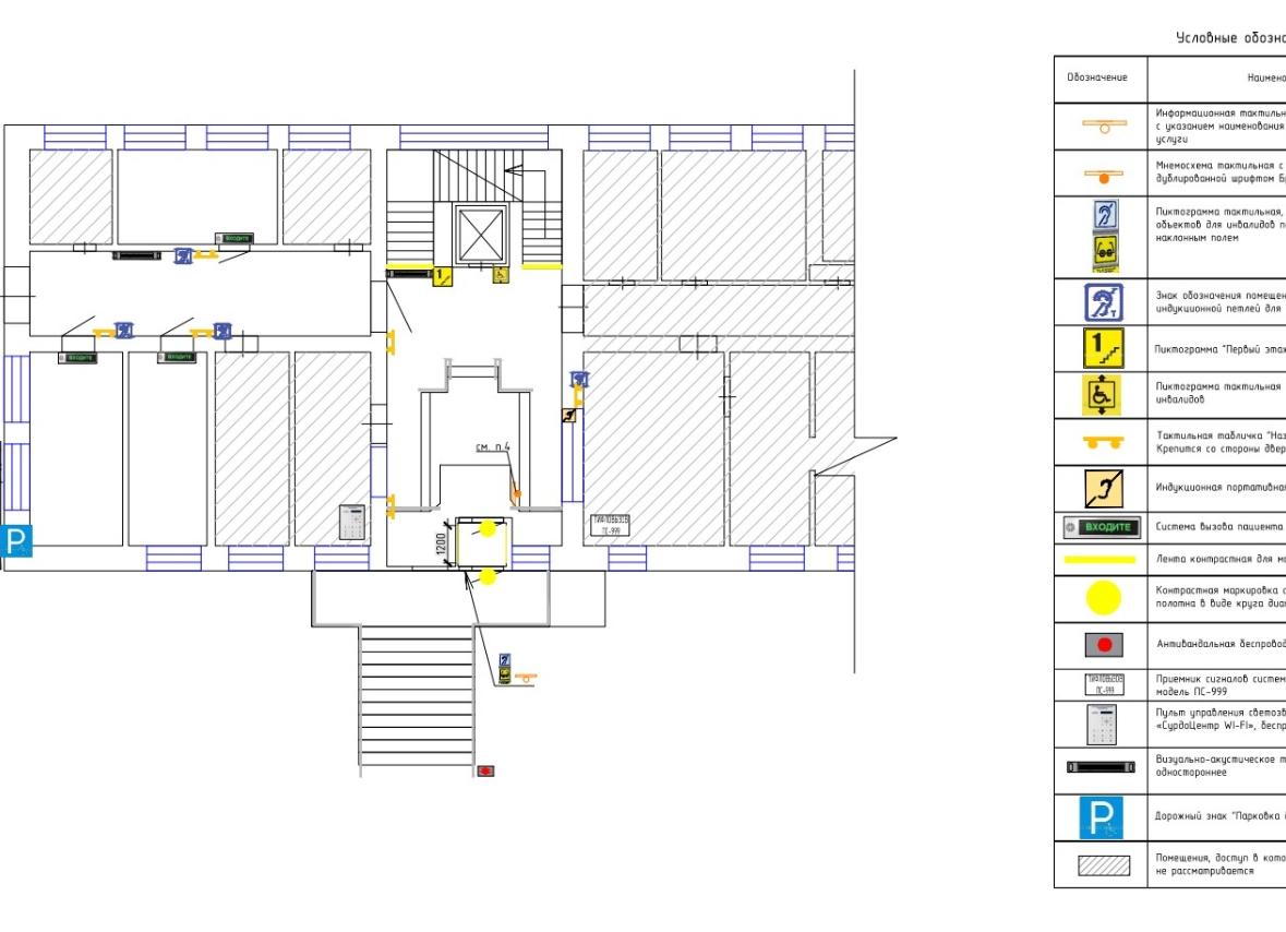
Тактильные наземные указатели (ТНУ) на путях перемещения МГН необходимо применять для обеспечения безопасности и информирования людей с нарушением зрения, а также согласно пункту 5.1.10 СП 59.13330.2020 "Доступность зданий и сооружений для маломобильных групп населения". Эти указатели должны быть выполнены в соответствии с ГОСТ Р 52875-2018 "Указатели тактильные наземные для инвалидов по зрению. Технические требования".

Один из таких указателей – локальный предупреждающий указатель "Внимание, прямо по ходу движения – лестница". Он должен иметь глубину от 500 до 600 мм и ширину, равную ширине участка лестницы, на котором разрешено движение инвалидов. Указатель должен содержать рифы типа усеченных конусов, усеченных куполов и цилиндров, расположенных в линейном порядке.

Установка указателей должна быть выполнена перед верхней и нижней ступенью крыльца на расстоянии 300 мм. Перед нижней ступенью должна быть уложена бетонная плитка желтого цвета, а перед верхней ступенью - комбинированные индикаторы. Монтаж бетонной плитки необходимо выполнить на подготовленную основу при помощи цементно-песчаного раствора. На ступеньках следует нанести полосы, контрастные с поверхностью ступени, общей шириною от 0,08 до 0,1 м. Цвет полос - желтый. Монтаж должен выполняться при помощи клея FIXVERT-S и дюбель-гвоздей. На ступеньках в холле также должны быть нанесены полосы вдоль существующей алюминиевой накладки.

Согласно требованиям из СП 59.13330.2020 "Доступность зданий и сооружений для маломобильных групп населения", на путях перемещения МГН (Маломобильные Группы Населения) необходимо установить тактильные настенные указатели. Эти указатели должны предоставлять посетителям ясную информацию об объектах и местах посещения, а также помогать ориентироваться в пространстве и получать информацию о размещении и функциональном назначении элементов, ассортименте и характере предоставляемых услуг.

Предусмотрены следующие элементы:

  • Тактильная визуальная табличка размером 400х500 мм с дублированием информации по системе Брайля (название учреждения и режим работы).
  • Тактильная мнемосхема размером 470х610 мм с планом и назначением помещений, также дублированная информацией по системе Брайля.
  • Знак доступности для инвалидов, передвигающихся на креслах-колясках, для инвалидов со слуховыми проблемами и для инвалидов со зрительными проблемами.
  • Знак, обозначающий доступный для инвалидов туалет категорий М1-М3.
  • Тактильная табличка "Назначение помещения (зоны)" с выпуклым текстом на внешней стороне, дублируемым шрифтом по системе Брайля.
  • Знак, обозначающий помещение (зону), оборудованную индукционной петлей для инвалидов со слуховыми проблемами.
  • Тактильные визуальные указатели должны быть установлены на высоте 1,3 м от уровня пешеходной поверхности.
  • Кнопки для вызова помощи должны быть размещены на высоте 1,2 м от уровня доступной для инвалидов поверхности передвижения, на расстоянии не менее 0,6 м от внутреннего угла и за пределами радиуса открывания двери, в соответствии с ГОСТ Р 51671-2020 пунктом 7.2.2.3.
  • Таблички "Назначение помещения (зоны)" должны быть размещены на стене или нерабочей створке (если дверь двупольная), со стороны, где находится дверная ручка, на высоте 1,3 м от уровня пола.

Универсальный туалет для МГН В соответствии с нормами СП 59.13330.2020 необходимо устанавливать специально оборудованные кабины для инвалидов в общественных туалетах или оборудовать универсальные кабины в зданиях, где требуются санитарно-бытовые помещения для посетителей. Также следует установить систему "Занято-свободно" над дверью туалета.

Приемы для лиц со слуховыми нарушениями в ограниченном пространстве и при большом скоплении людей, а также при наличии посторонних звуков или преграды между собеседниками, для совершенствования восприятия информации людьми со слуховыми нарушениями (использующими слуховые аппараты), применяются специальные индукционные системы. В рамках проекта предусматривается установка портативной индукционной петли VERT-1a в зоне обслуживания МГН. Индукционная петля VERT-1А создана для использования на рабочей поверхности с пиктограммой, обращенной к слабослышащему. Ее покрытие составляет 1,2 м2 в диапазоне 1 кГц. Индукционная система предназначена только для использования внутри здания и не содержит деталей, предназначенных для самообслуживания. Слабослышащему необходимо переключить свой слуховой аппарат в режим индукционной катушки «Т». Также следует адаптировать все кабинеты системой вызова пациента.

Система Wi-Fi Сурдоцентр Адаптивная система оповещения «СурдоЦентр Wi-Fi» включает пульт управления, каскадный коммутатор и табло. Визуальная информация на табло должна размещаться на контрастном фоне с размерами знаков, соответствующими расстоянию для распознавания, и быть визуально связана с художественным оформлением интерьера, при этом находиться на высоте от 1,5 м до 4,5 м от пола. При размещении элементов визуальной информации над путями движения МГН важно обеспечить свободное пространство от поверхности пути до нижнего края навесного элемента визуальной информации высотой не менее 2,2 м. Система «СурдоЦентр Wi-Fi» используется для информационного оповещения всех пациентов, в том числе с категории инвалидности «глухие», «слабослышащие», «слабовидящие» и «тотально незрячие».

Заказать проект

Выделите опечатку и нажмите Ctrl + Enter, чтобы отправить сообщение об ошибке.