Работаем по всей России

Проектирование раздела ОДИ (пандус и входной группы) в стоматологии г. Севереморск

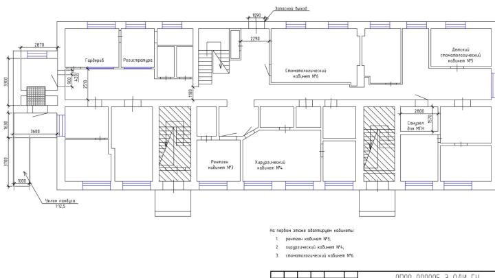
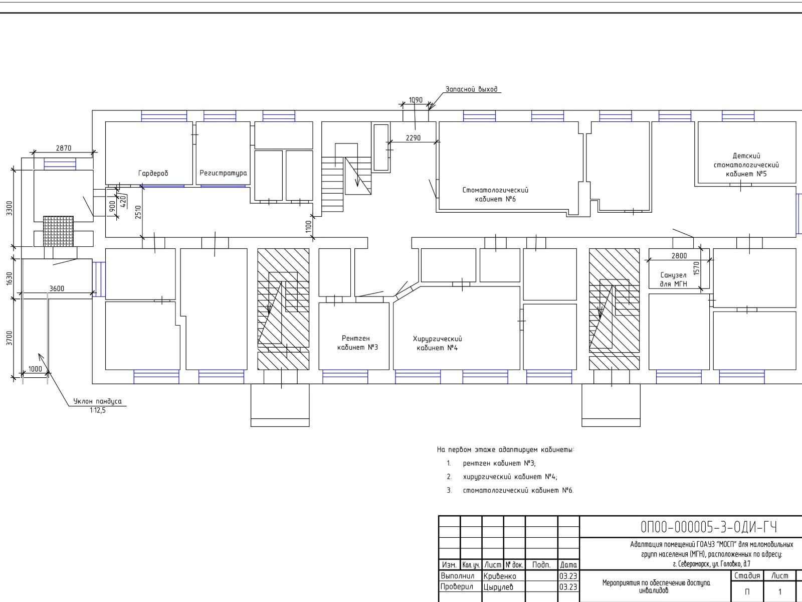
Данный проект разрабатывается с целью обеспечения удобного доступа для людей с ограниченными возможностями и маломобильных групп населения (МГН) в помещения ГОАУЗ «МОСП» по принципу «разумного приспособления». Привлекаемые помещения ГОАУЗ «МОСП» находятся по адресу: г. Североморск, ул. Головко, д. 7.

Разработка проектной документации основывается на следующих основаниях: техническом задании на проектирование, предоставленных Заказчиком исходных данных, соблюдение действующих строительных норм и правил.

Проект включает комплекс мероприятий по улучшению архитектурной среды с соблюдением следующих принципов:

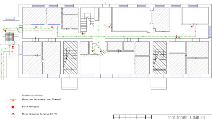
  • Обеспечение возможности доступа к местам назначения кратчайшим путем и удобного перемещения внутри здания;
  • Обеспечение безопасности при движении и обслуживании группы МГН;
  • Предоставление своевременной и полной информации, позволяющей ориентироваться в пространстве, использовать оборудование (включая самообслуживание), получать услуги и т. д.;
  • Обеспечение эвакуации людей из здания в случае возникновения опасных ситуаций, представляющих угрозу для их жизни и здоровья. 

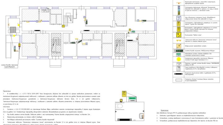
Входная группа

В данном объекте входная группа включает следующие элементы: крыльцо перед центральным входом, тамбур и холл.

Согласно проекту, планируются следующие действия:

Установка тактильно-визуальной таблички перед входом в здание для информирования о его назначении и тактильных пиктограмм "Доступность входа для инвалидов" всех категорий.

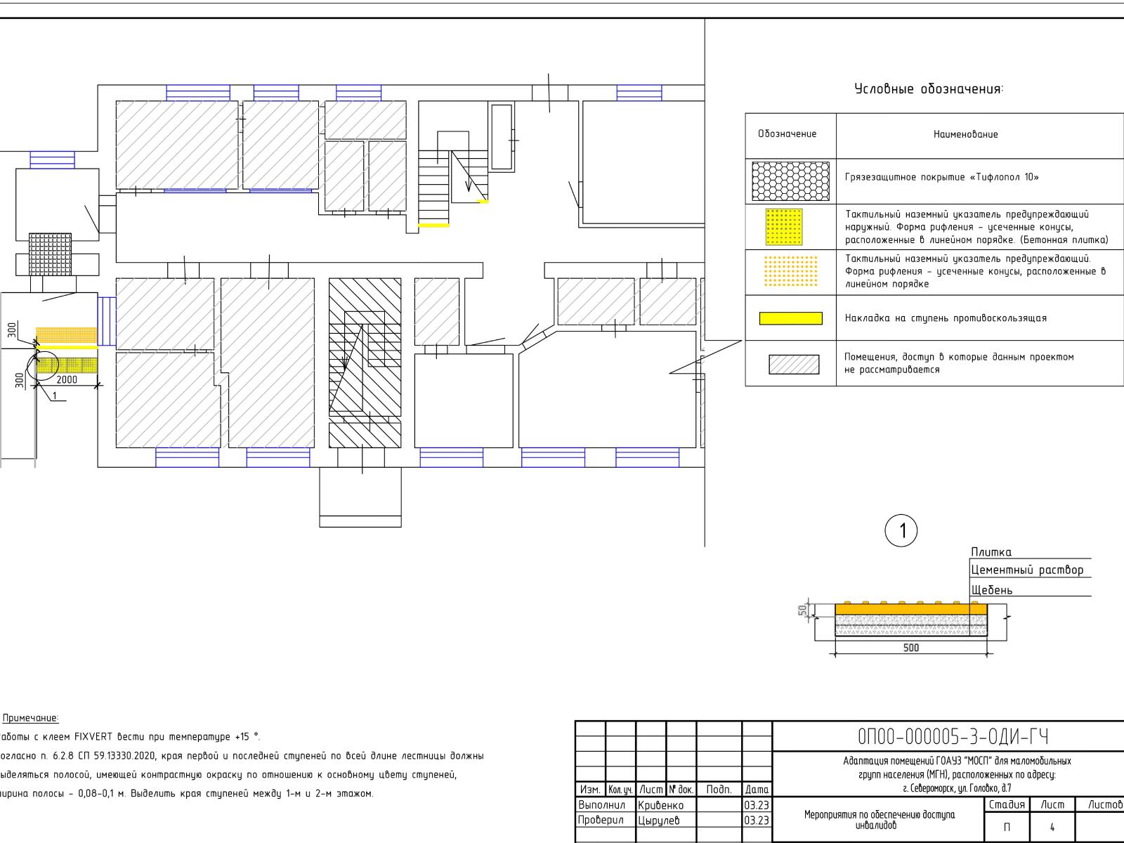
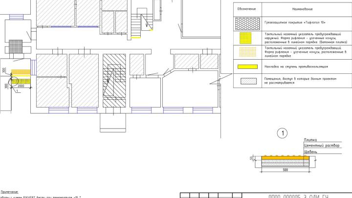
Тактильные наземные указатели (ТНУ) на путях перемещения МГН для обеспечения безопасности и информирования людей с нарушениями зрения, а также в соответствии с требованиями пункта 5.1.10 СП 59.13330.2020 "Доступность зданий и сооружений для маломобильных групп населения", необходимо установить тактильные наземные указатели (ТНУ) в соответствии с ГОСТ Р 52875-2018 "Указатели тактильные наземные для инвалидов по зрению. Технические требования".

Следующие виды указателей должны быть учтены:

Локальный предупреждающий указатель "Внимание, прямо по ходу движения – лестница". Знак должен иметь глубину от 500 до 600 мм и ширину, равную ширине участка лестницы, доступного для движения инвалидов. Рифы тактильных указателей должны иметь формы усеченных конусов, усеченных куполов и цилиндров, расположенных в линейном порядке. Тактильный указатель должен быть размещен перед нижней ступенью крыльца на расстоянии 300 мм. Подстилка из желтой бетонной плитки должна быть выполнена перед нижней ступенью, а на самой ступени должны быть установлены тактильные индикаторы.

Монтаж бетонной плитки должен выполняться на подготовленную основу при помощи цементно-песчаного раствора. На ступени следует нанести полосы, контрастные с поверхностью ступени, с общей шириной от 0,08 до 0,1 м. Цвет полос - желтый. Монтаж должен выполняться при помощи клея FIXVERT-S и дюбеля-гвоздей.

Тактильные настенные указатели на путях перемещения МГН

В соответствии с СП 59.13330.2020 "Доступность зданий и сооружений для маломобильных групп населения", технические средства информирования, ориентирования и сигнализации в местах массового посещения обязаны обеспечивать посетителям объекта понятную информацию об объектах и местах посещения, размещении и функциональных элементах, а также о товарах и услугах, и помочь им ориентироваться в пространстве.

В рамках проекта предусмотрено использование тактильных визуальных указателей на путях перемещения МГН:

  • Тактильная визуальная табличка с использованием системы Брайля (400х500 мм), на которой указано название учреждения и его рабочие часы;
  • Тактильная мнемосхема с планом помещений и их назначением, также с использованием тактильного плоскопечатного способа по системе Брайля (470 х 610 мм). Тактильную мнемосхему следует разместить на стойке;
  • Знак доступности объекта для инвалидов, передвигающихся на креслах-колясках, для инвалидов по слуху и для инвалидов по зрению;
  • Знак, указывающий на туалет, доступный для инвалидов всех категорий.
  • Тактильная табличка "Назначение помещения (зоны)". Надпись на внешней стороне таблички представлена выпуклым текстом и дублируется шрифтом по системе Брайля;
  • Знак, обозначающий помещение (зону), оборудованное индукционной петлей для инвалидов по слуху.

Монтаж тактильных визуальных указателей должен проводиться на высоте 1,3 м от уровня пешеходной поверхности. Кнопки устройств вызова помощи следует размещать на высоте 1,2 м от уровня доступной для инвалида поверхности передвижения, на расстоянии не менее 0,6 м от внутреннего угла и за пределами радиуса открывания двери.

Таблички "Назначение помещения (зоны)" должны размещаться на стене или нерабочей створке (если дверь двупольная) со стороны расположения дверной ручки, на расстоянии 0,1 м от наличника и на высоте 1,3 м от уровня пола.

В соответствии с СП 59.13330.2020 во всех зданиях, где предусмотрены санитарные помещения для посетителей, должны быть специально оборудованные кабины для инвалидов или универсальные кабины. Над дверью в туалете следует установить систему «Занято-свободно».

Для улучшения восприятия информации людьми, имеющими проблемы со слухом (использующими слуховые аппараты) в ограниченном пространстве и при наличии шумов или преград между собеседниками используются специальные системы индукционного типа. В проекте предусмотрена установка портативной индукционной петли VERT-1a на месте обслуживания МГН. Петля VERT-1a предназначена для использования на рабочей поверхности с пиктограммой, обращенной к слабослышащему. Площадь покрытия составляет 1,2 м2 в рабочем диапазоне 1кГц. Индукционная система предназначена для использования только внутри помещения. Устройство не содержит элементов, требующих самостоятельного обслуживания. Слабослышащему необходимо переключить свой слуховой аппарат в режим «Т» (индукционной катушки). Все кабинеты должны быть адаптированы системой вызова пациента.

Сурдоцентр Wi-Fi - адаптивная система оповещения, состоящая из пульта управления, каскадного коммутатора и табло. Визуальная информация (табло) должна располагаться на контрастном фоне с размерами знаков, соответствующими расстоянию распознавания, и быть вписанной в интерьер на высоте от 1,5 м до 4,5 м от пола.

При установке элементов визуальной информации над проходами МГН следует обеспечить свободное пространство от поверхности прохода до нижнего края элемента визуальной информации не менее 2,2 м. Сурдоцентр применяется для информационного оповещения всех пациентов, включая лиц с инвалидностью в категориях «глухие», «слабослышащие», «слабовидящие» и «тотально незрячие». Система предоставляет информацию в визуальной, речевой и звуковой форме, доступной для всех категорий пациентов. Пульт управления располагается на первом этаже у регистратуры. Усилители сигнала установлены на втором этаже.

Заказать проект

Выделите опечатку и нажмите Ctrl + Enter, чтобы отправить сообщение об ошибке.