Адаптация помещений ФОК'а для МГН и инвалидов
Данный проект разработан для того, чтобы обеспечить людям с ограниченными возможностями и маломобильным группам населения безпрепятственный доступ к физкультурно-оздоровительному комплексу с плавательным бассейном и универсальным залом. Мы стремимся создать комфортное пространство, используя принцип «разумного приспособления». Проект адаптации затрагивает помещение ФОК, расположенное в г. Всеволожск, Ленинградская область, 4-я линия.
Разработка проектной документации основана на следующих основаниях: техническое задание на проектирование; предоставленные заказчиком исходных данных; соблюдение действующих строительных норм и правил.
В рамках проекта предусмотрены различные мероприятия, направленные на улучшение качества архитектурной среды с соблюдением следующих принципов: кратчайшего и беспрепятственного пути к местам, которые люди хотят посетить, и свободного перемещения внутри помещений ФОК; безопасности передвижения и обслуживания; предоставления полноценной и качественной информации для МГН, которая позволит им ориентироваться в пространстве, использовать оборудование и получать услуги.
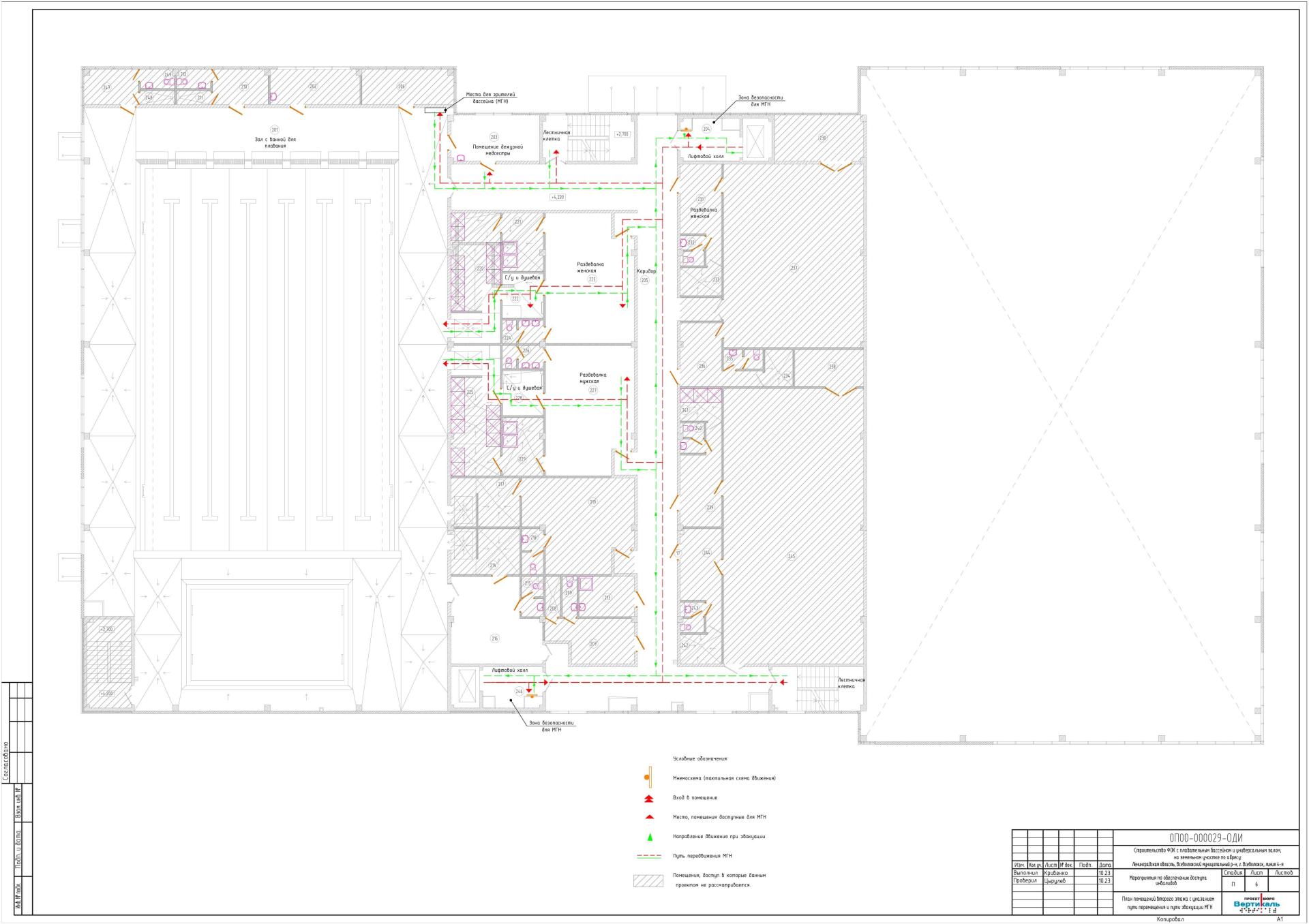
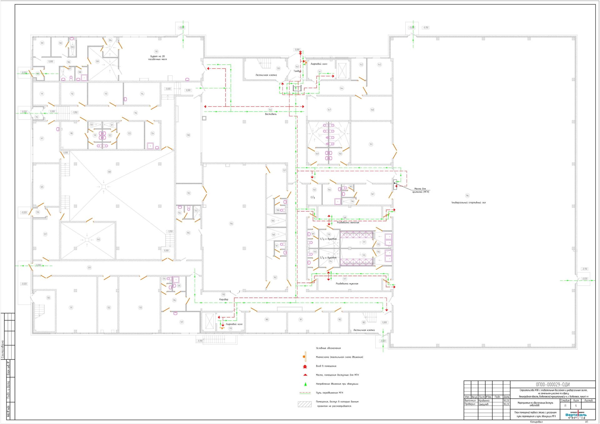
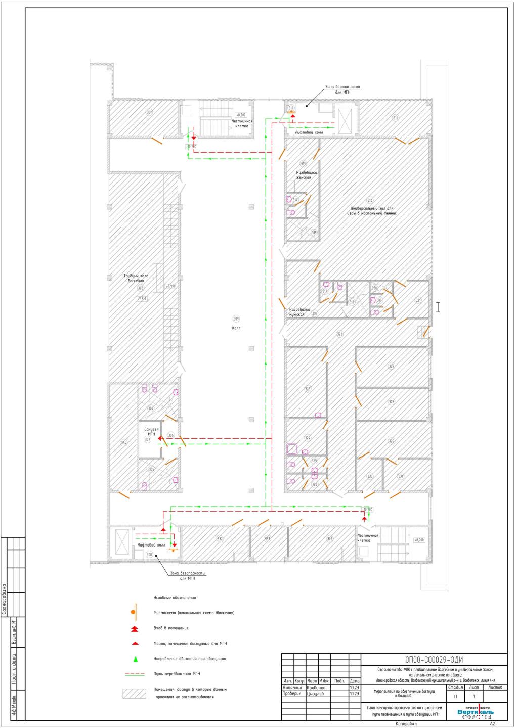
После реализации мероприятий, предусмотренных в нашем проекте, инвалиды групп мобильности М1-М4 смогут безбарьерно перемещаться от входа здания к внутренним помещениям комплекса.
Мероприятия по адаптации для людей с нарушением зрения
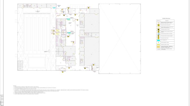
Тактильные настенные указатели на путях перемещения МГН
В соответствии с последними нормами и стандартами, технические средства информирования, ориентирования и сигнализации в местах массового посещения должны обладать определенными характеристиками. Они должны обеспечивать посетителям объекта возможность получить однозначную информацию о местах посещения, размещении и назначении функциональных элементов, а также о предоставляемых услугах и ориентации в пространстве.
В рамках проекта, предусмотрены различные тактильные визуальные указатели для обеспечения этих требований. Например, на путях перемещения в местах массового посещения будет установлена тактильная визуальная табличка размером 400х600 мм, которая будет дублировать информацию по системе Брайля. Табличка будет содержать наименование учреждения и режим работы, и будет расположена на стене справа на высоте 1,3 м от пола.
Также, на стенах будут размещены тактильные мнемосхемы с планами помещений и их назначением. Информация на этих мнемосхемах будет также дублироваться тактильным плоскопечатным способом по системе Брайля. Мнемосхемы будут установлены на высоте 1 м от пола.
Кроме того, будут предусмотрены тактильные пиктограммы различных категорий, которые будут указывать на доступность объекта для инвалидов, наличие индукционных петель для слабослышащих и другое. Эти пиктограммы будут расположены на высоте 1,3 м от пола и будут следовать за тактильной табличкой с наименованием объекта.
В соответствии с другими нормами, прозрачные полотна дверей и ограждений должны иметь яркую контрастную маркировку в форме круга диаметром 0,2 м. Контрастная маркировка будет находиться на двух уровнях: 0,9-1,0 м и 1,3-1,4 м от пола. Эту маркировку можно заменить декоративными рисунками или фирменными знаками, но яркости они должны соответствовать контрастной маркировке. В нашем проекте будет предусмотрена контрастная маркировка в форме круга диаметром 0,2 м на входной двери и двери тамбура на двух уровнях. Расположение маркировки будет соответствовать указанным требованиям.
Тактильные наземные указатели (ТНУ) на путях перемещения МГН
В здании установлен локальный предупреждающий указатель, который предупреждает о наличии двери во время движения. Указатель выполнен в виде тактильного указателя, который имеет глубину от 500 до 600 мм и ширину, соответствующую ширине дверного проема. Он размещается на расстоянии равном ширине открывающегося полотна двери в закрытом состоянии. Если на входе установлены раздвижные двери, то указатель должен быть размещен на расстоянии 300 мм от полотна двери.
Также в зоне движения пешеходов устанавливается локальный предупреждающий указатель, который предупреждает о наличии отдельно стоящей опоры (светофора, столба, несущей конструкции) или дерева. Указатель имеет глубину от 500 до 600 мм и может быть размещен перед одиночным вертикальным препятствием или вокруг него, в зависимости от условий движения пешеходов. Указатель перед препятствием должен иметь ширину не менее 60 см. Перед опорами указатель размещается на расстоянии 300 мм от их внешней границы. Тактильный указатель должен выступать за пределы препятствия со стороны основного потока движения по тротуару на 300 мм.
В соответствии с пунктом 6.2.8 СП 59.13330.2020, на проступях краевых ступеней лестничных маршей должны быть нанесены противоскользящие полосы, которые контрастируют с поверхностью ступени, обычно желтого цвета. Ширина таких полос составляет от 0,08 до 0,1 м. Если лестница состоит из нескольких маршей, то предупреждающая тактильная полоса размещается только перед верхней ступенью верхнего марша и нижней ступенью нижнего марша.
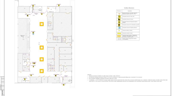
Мероприятия для людей с дефектом слуха.
В рамках проекта планируется установка портативной индукционной петли в гардеробных комнатах (помещения 138 и 147) и кабинете дежурной медсестры (помещение 203). Также будет установлена стационарная портативная система в буфете (помещение 110).
Портативная индукционная петля предназначена для использования на рабочем столе с тем, чтобы пиктограмма была направлена к слабослышащему. Площадь покрытия составляет 1,2 квадратных метра в рабочем диапазоне 1 кГц.
Следует отметить, что индукционная система предназначена только для использования внутри помещения. Устройство не имеет элементов или деталей, которые могут быть обслужены самостоятельно. Пользователю со слабым слухом необходимо переключить свой слуховой аппарат в режим индукционной катушки "Т".
Мероприятия по адаптации для людей, передвигающихся на креслах-колясках.
Для беспрепятственного доступа в помещении необходимо в раздевалке адаптировать место для переодевания МГН: шкаф с широкой скамейкой, пиктограмма доступности для МГН; ножные чаши при выходе из раздевалок в бассейн оборудовать откидными пандусами для инвалидов-колясочников; в зале для плавания установить мобильный подъемник для спуска инвалида-колясочника в чашу бассейна.
Перечень использованных нормативных и регламентирующих
документов
1. СП 59.13330.2020 «Доступность зданий и сооружений для маломобильных групп населения». Актуализированная редакция СНиП 35-01-2001.
2. СП 136.13330.2012 «Здания и сооружения. Общие положения проектирования с учетом доступности для маломобильных групп населения» (с Изменениями №1).
3. СП 138.13330.2012 «Общественные здания и сооружения, доступные маломобильным группам населения. Правила проектирования» (с Изменениями №1).
4. ГОСТ Р 50602-93 «Кресла-Коляски. Максимальные габаритные размеры».
5. ГОСТ Р 51261-17 «Устройства опорные стационарные реабилитационные. Типы и технические требования».
6. ГОСТ Р 52131-2019 «Средства отображения информации знаковые для инвалидов. Технические требования».
7. ГОСТ Р 52875-2018 «Указатели тактильные наземные для инвалидов по зрению. Технические требования».
8. Методические рекомендации ЦБ РФ от 26.04.2019 № 12.
 
 
 
 
 
 
 
 
