Работаем по всей России

Адаптация помещений автовокзала в Чкаловском районе г. Екатеринбурга для маломобильных групп населения

Данный проект разработан в целях обеспечения беспрепятственного доступа к помещениям объекта для людей с ограниченными возможностями и маломобильных групп населения (МГН) по принципу «разумного приспособления». Производится разработка проектной документации для автовокзала объекта «Комплекс зданий и сооружений многофункционального торгово-развлекательного центра с автовокзалом в Чкаловском районе г. Екатеринбурга», расположенного по адресу: г. Екатеринбург, ул. Шварца-Белинского.

После реализации мероприятий, предусмотренных проектом, будет обеспечиваться возможность безбарьерного следования инвалидов групп мобильности М1-М4 от парковки и остановки общественного транспорта к входам здания автовокзала и внутренним помещениям. 

Мероприятия по адаптации для людей с нарушением зрения

В соответствии с СП 59.13330.2020 «Доступность зданий и сооружений для маломобильных групп населения» технические средства информирования, ориентирования и сигнализации в местах массового посещения обеспечивают посетителям объекта возможности получения однозначной информации об объектах и местах посещения, получения информации о размещении и назначении функциональных элементов, об ассортименте и характере предоставляемых услуг, надежной ориентации в пространстве.

Проектом предусмотрены тактильные визуальные указатели на путях перемещения МГН:

  • Тактильная визуальная табличка с дублированием информации по системе Брайля с указанием наименования учреждения и режима работы
  • Тактильные мнемосхемы с планом и назначением помещений с дублированием информации тактильным плоско-печатным способом по системе Брайля
  • Знак доступности объекта для инвалидов, передвигающихся на креслах-колясках, для инвалидов по слуху и для инвалидов по зрению
  • Знак обозначения кнопки вызова персонала для оказания ситуационной помощи
  • Знак обозначения места кратковременного отдыха или ожидания для инвалидов
  • Знак обозначения туалета, доступного для инвалидов на креслах-колясках
  • Знак обозначения обособленного туалета или отдельной кабины, доступных для инвалидов на креслах-колясках
  • Знак обозначения кнопки вызова экстренной помощи

Мероприятия по адаптации для людей с дефектами слуха

Для усиления восприятия информации людьми с нарушениями по слуху (использующих слуховые аппараты) в ограниченном пространстве и при большом скоплении людей, а также при наличии посторонних звуков или преграды между собеседниками установить специальные системы индукционного типа.

Проектом предусмотрена установка индукционной портативной петли VERT-1a на месте обслуживания МГН. Портативная индукционная петля VERT-1a предназначена для использования на рабочей поверхности, чтобы пиктограмма была обращена в сторону слабослышащего. Площадь покрытия: 1,2 м² в рабочем диапазоне 1 кГц. 

Мероприятия по адаптации для людей, использующих при передвижении дополнительные опоры и для людей, передвигающихся на креслах-колясках

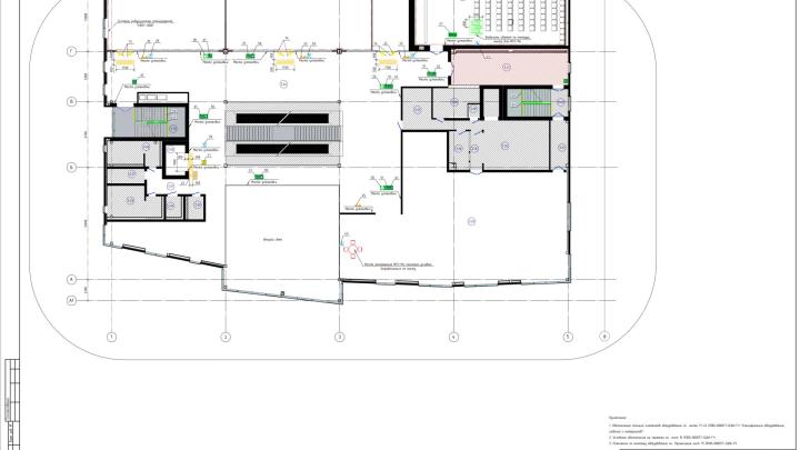
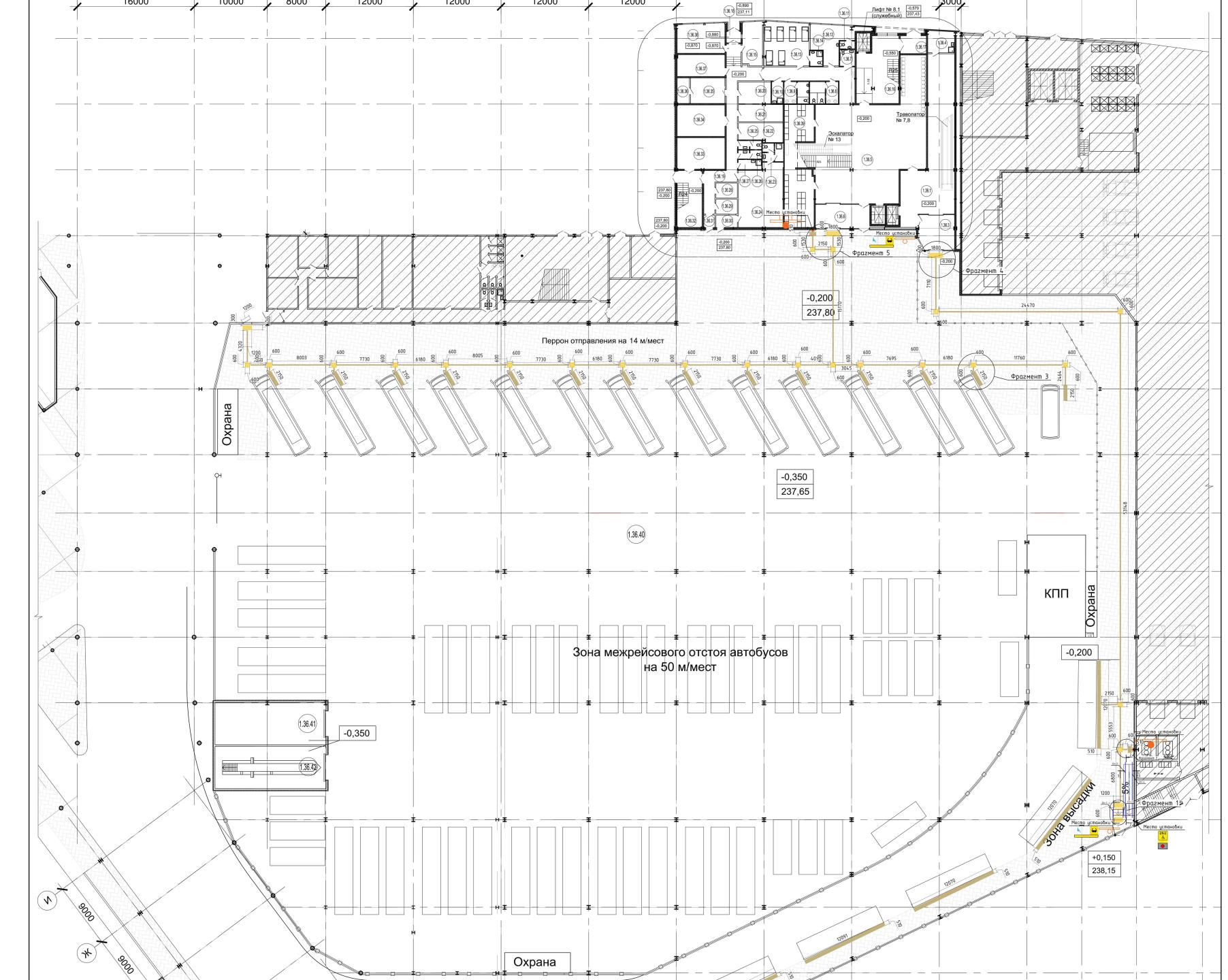
Вход в здание на отметке ур. -0,200 расположен со стороны парковки, уклон не превышает 5% (п.5.17 СП 59.13330.2020). Двери входного тамбура с автоматическим открыванием, а также распашные обеспечивают задержку закрывания дверей продолжительностью не менее 5 сек. (п.6.15 СП 59.13330.2020). Ширина тамбура составляет 5,0 м. и глубина 4,8 м. (п.6.18 СП 59.13330.2020).

В проекте адаптируются два этажа здания автовокзала, предназначенных для обслуживания пассажиров. Подъем на второй этаж осуществляется с помощью лифтов.

Необходимые параметры низа окон касс, используемых посетителями-инвалидами на креслах-колясках, должны находиться на высоте 0,85 м над уровнем пола. Ширина и высота проема для ног 0,75 м., глубиной 0,5 м. Ширина рабочего стола у места получения услуги 2,0 м.

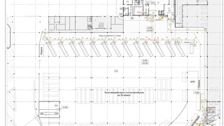
Парковка. Пути движения по территории

Проектом предусмотрена установка тактильных наземных указателей по ГОСТу Р 52875 на пути следования от входа на территорию автовокзала до входа в здание:

  • Локальный предупреждающий указатель «Внимание, прямо по ходу движения - лестницы» глубиной 600 мм и шириной, равной ширине участка лестницы
  • Отрезок направляющего указателя, задающий направление движения от указателя «Поле внимания» в сторону направления движения шириной 150 мм.
  • Указатель «Поле внимания» в форме квадрата со сторонами 600 мм
  • Указатель «Поле посадки в маршрутное транспортное средство» глубиной 510 мм. и шириной 2 м.
  • Указатель «Поле получения услуги» глубиной 510 мм., шириной 910 мм.
  • Предупреждающий указатель «Внимание, по ходу движения - дверь в здание, сооружение» глубиной 600 мм., шириной равной ширине дверного проема 

Санитарно-бытовое помещение

На каждом этаже автовокзала расположены санузлы для маломобильных групп населения. Габариты данных помещений соответствуют п.6.3.7 СП 59.13330.2020.

В кабине на первом этаже по обе стороны от унитаза предусмотрено пространство шириной 0,93-0,99 м. для размещения кресла-коляски, на втором этаже - 1,34 м., а также крючки для одежды, костылей и других принадлежностей.

В кабинах обеспечено свободное пространство диаметром 1,4 м. для разворота кресла-коляски. Двери открываются наружу.

В универсальной кабине, предназначенной для пользования всеми категориями граждан, в том числе инвалидами, установить стационарные и откидные опорные поручни.

Входы. Пути движения

Проектом предусмотрены два входа для МГН категорий М1-М4 в здание автовокзала: один с улицы на 1-м этаже, второй – из торгового центра на 2-м этаже. Проектом предусмотрен доступ для МГН к двум этажам здания автовокзала.

Пути эвакуации. Пожаробезопасные зоны

Ширина путей эвакуации составляет:

  • коридоры - 1,5 м;
  • выходы из помещений - 0,9 м. (в свете);
  • лестничные марши - 1,5 м. (Л23) и 1,6 м. (Л24, Л25).

Эвакуация людей групп мобильности М1-М3 с этажа выше первого осуществляется по лестницам. Для М4 на 2-м этаже запроектирована пожаробезопасная зона.

На проступях верхней и нижней ступеней каждого марша эвакуационных лестниц, доступных для МГН, нанесены черные полосы в соответствии с требованиями п. 6.2.8 СП 59.13330.2020.

Оставьте свои контакты в полях ниже, и мы с вами свяжемся для обсуждения вашего проекта.

Выделите опечатку и нажмите Ctrl + Enter, чтобы отправить сообщение об ошибке.