Работаем по всей России

Проектирование раздела ОДИ (архитектурной среды) в аэропорте “Жуковский”

Для обеспечения удобства пассажиров аэропорта "Жуковский" АО "РАМПОР АЭРО" в Московской области (г. Жуковский, ул. Наркомвод, д. 3) адаптируются окружающая территория и само здание. Этот проект разработан с целью обеспечить маломобильным группам населения (МГН) равные возможности и учтены принципы "разумного приспособления".

В рамках проекта предусмотрены мероприятия, направленные на повышение качества архитектурной среды, включая:

  1. Обеспечение кратчайшего доступа к местам назначения и комфортное перемещение внутри здания.
  2. Гарантирование безопасности путей движения, мест для отдыха и парковки.
  3. Предоставление МГН информации для навигации и использования оборудования, включая самообслуживание.
  4. Создание комфортных условий для всех групп населения.

При разработке документации использовались исходные данные, включая планы 1-го и 2-го этажа здания для обслуживания пассажиров и технический паспорт здания, действующий с 2008 года. Проектные решения не ограничивают условия жизни других групп населения и обеспечивают доступ МГН как на прилегающей территории, так и внутри здания. Однако следует учитывать, что людям с кардиостимулятором и инвалидам на кресле-коляске не рекомендуется проходить через металлоискатель в соответствии с СП 59.13330.2020 (п. 6.1.9, 8.4.14).

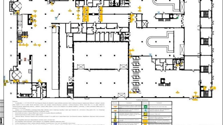
Адаптация прилегающей территории 

На парковке на территории аэропорта должно быть оборудовано 18 специализированных мест для парковки транспортных средств инвалидов, в соответствии с документом 0П00-000015-ОДИ-ГЧ. Места пересечения пешеходных и транспортных дорог, где есть перепад высоты более 0,015 м, должны быть оборудованы съездами с обеих сторон проезжей части, в соответствии с требованиями пункта 5.1.9 СП 59.13330.2020.

Пути движения, по которым могут двигаться инвалиды на креслах-колясках, должны иметь продольный уклон не более 5% и поперечный уклон не более 2%.

На территории парковки следует установить следующие виды разметки:

  • Тактильную предупредительную разметку в виде рельефной тактильной полосы, ширина которой равна ширине пешеходного перехода, а глубина поля составляет 50 или 60 см. Эта разметка должна находиться на расстоянии 30 см от края проезжей части.
  • Тактильную направляющую разметку, представляющую собой полосу из трех тактильных индикаторов в два ряда шириной 0,15-0,2 м.
  • Тактильную предупредительную разметку перед дверью, которая должна быть шириной дверного проема и находиться на расстоянии открытия дверного полотна. Она должна быть контрастной по отношению к полу и может быть выполнена в форме конусов диаметром 25 мм, расположенных в линейном порядке, либо из тактильных индикаторов или плитки, в соответствии с требованиями пункта 5.1.10 СП 59.13330.2020.
  • Тактильную предупредительную разметку в виде зоны внимания, представляющую собой тактильные конусы, расположенные в линейном порядке в поле размером 60 x 60 см.

Доступность для людей с ограниченной функцией зрения

В соответствии с СП 59.13330.2020 «Доступность зданий и сооружений для маломобильных групп населения» технические средства информирования, ориентирования и сигнализации в местах массового посещения должны обеспечивать посетителям объекта возможность однозначной информации объектов и мест посещения, получения информации о размещении и назначении функциональных элементов, об ассортименте и характере предоставляемых услуг, надежной ориентации в пространстве.

Проект включает специальные тактильные визуальные указатели для людей с ограниченным зрением:

  • Тактильные визуальные таблички по системе Брайля с информацией о наименовании учреждения и его режиме работы.
  • Тактильные мнемосхемы с планами и назначением помещений по системе Брайля, расположенные на каждом этаже.
  • Знаки доступности для инвалидов, включая кресла-коляски, инвалидов по слуху и по зрению.
  • Знаки туалетов для всех категорий инвалидов.
  • Тактильные таблички с информацией о назначении помещения по системе Брайля, с возможностью воспроизведения записанной информации.

Установка указателей производится на высоте 1,3 м от уровня пешеходной поверхности, и кнопки для вызова помощи размещаются на высоте 1,1 м. Согласно ГОСТ Р 51671-2020, таблички "Назначение помещения (зоны)" размещаются на стене или нерабочей створке двери на высоте 1,3 м от уровня пола, со стороны расположения дверной ручки, на расстоянии 0,1 м от наличника.

Также предусмотрена тактильная и контрастная маркировка для обеспечения безопасного движения людей с ограниченным зрением, включая слабовидящих и полностью слепых.

В рамках проекта предусмотрены тактильно-наземные указатели в соответствии с ГОСТ Р 52875-2018 "Указатели тактильные наземные для инвалидов по зрению. Технические требования", включая:

  • Предупреждающий указатель с текстом "внимание, прямо по ходу движения дверь". Размеры: глубина от 500 до 600 мм, ширина равна ширине дверного проема. Рельеф состоит из усеченных конусов, усеченных куполов и цилиндров, расположенных в линейном порядке. Местоположение указателя зависит от того, открывается ли дверь на себя (расстояние равно ширине дверного полотна) или от себя (расстояние 300 мм от положения двери в закрытом состоянии).
  • Локальный предупреждающий указатель с надписью "внимание, прямо по ходу движения – лестница". Его размеры также варьируются: глубина от 500 до 600 мм, и ширина соответствует ширине участка лестницы, доступного для движения инвалидов. Рельеф состоит из усеченных конусов, усеченных куполов и цилиндров, расположенных в линейном порядке. Указатель размещается на расстоянии 300 мм от края верхних и нижних ступеней лестницы.
  • Указатель "Поле получения услуги" с эффективной глубиной от 420 до 510 мм. Рельеф включает девять параллельных продольных рифов в ширину зоны получения услуги.
  • Указатель "Направление движения" с рельефом, состоящим из трех параллельных продольных рифов.

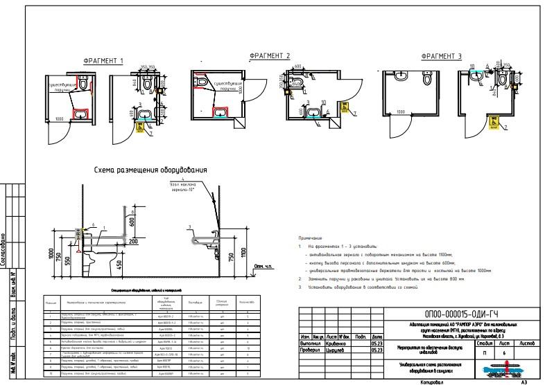
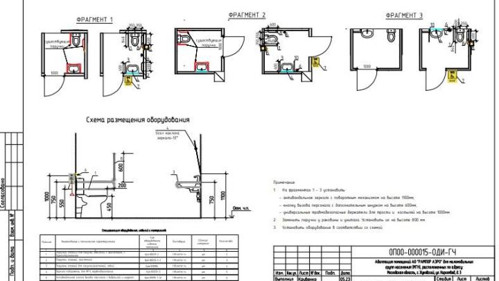
Адаптация санитарных узлов

Согласно СП 59.13330.2020 во всех зданиях, где должны быть санитарно-бытовые помещения для посетителей, следует предусматривать специально оборудованные для инвалидов доступные кабины в общественных санитарных узлах или оборудовать универсальные кабины.

Все санитарные узлы были ранее адаптированы для МГН. Требовалась доработка в соответствии с л.6 г.ч. 0П00-000015-ГЧ.

Закажите проект прямо сейчас!

Выделите опечатку и нажмите Ctrl + Enter, чтобы отправить сообщение об ошибке.