Работаем по всей России

Адаптация медицинского центра «Клиника доказательной медицины» в г. Зеленограде для маломобильных групп населения

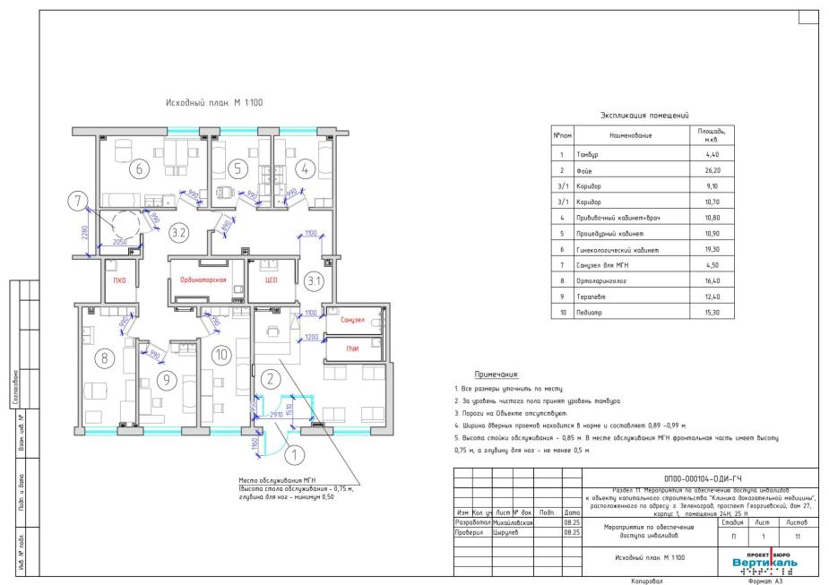
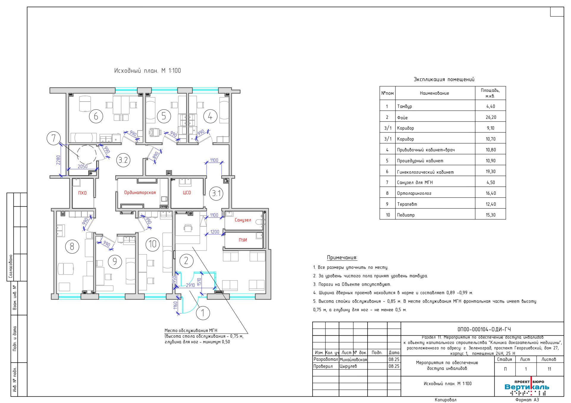
Настоящий проект разработан в целях обеспечения беспрепятственного доступа к помещениям медицинского центра «Клиника доказательной медицины» для людей с ограниченными возможностями и маломобильных групп населения (МГН) по принципу «разумного приспособления». Адаптации подлежат помещения объекта, расположенного по адресу: г. Зеленоград, проспект Георгиевский, дом 27, корпус 1, помещения 24Н, 25Н. Проектная документация разработана на основании технического задания на проектирование, исходных данных Заказчика и в строгом соответствии с актуальными требованиями СП 59.13330.2020, ГОСТ Р 51261-2022, ГОСТ Р 52875-2018 и других регламентирующих документов.

Мероприятия по адаптации входной группы

Входная группа является ключевым элементом для формирования доступной среды. Проектом предусмотрен комплекс решений, направленных на обеспечение комфортного и безопасного входа для всех категорий пациентов.

  • Тактильно-визуальная навигация. Перед входной дверью устанавливается тактильная пиктограмма «Доступность объектов для инвалидов по зрению и по слуху, а также в креслах-колясках». Рядом размещается информационная табличка с названием учреждения и режимом работы, дублированная шрифтом Брайля. В тамбуре монтируется тактильная мнемосхема с планом и назначением помещений клиники.
  • Контрастная маркировка. Для обеспечения безопасности и лучшей ориентации рабочие створки стеклянных дверей маркируются контрастными кругами диаметром 200 мм желтого цвета на двух уровнях (0,9 м и 1,4 м от пола). Дверные проемы выделяются П-образной контрастной лентой.
  • Система вызова помощи. Перед входом в объект устанавливается антивандальная кнопка вызова помощи. Сигнал от кнопки передается на приемное устройство «Тифловызов», расположенное на стойке ресепшн, что обеспечивает своевременное сопровождение пациентов с ограниченной мобильностью.
  • Тактильные указатели. Непосредственно перед входной дверью на улице монтируется предупреждающий тактильный указатель «Внимание, прямо по ходу движения - дверь», выполненный из контрастной плитки со сменными рифами.

Организация путей движения внутри объекта

Для создания беспрепятственной навигационной среды во внутренних помещениях медицинского центра проектом предусмотрены следующие мероприятия:

  • Зона обслуживания и отдыха МГН. В фойе клиники организуется место обслуживания МГН с пониженной стойкой для пациентов на креслах-колясках (категория М4) и место для кратковременного отдыха.
  • Тактильно-визуальное информирование. На путях движения устанавливаются таблички «Обозначение помещения» перед входами в кабинеты, а также тактильные пиктограммы: «Доступность объекта для инвалидов на креслах-колясках» в зоне обслуживания, «Место кратковременного отдыха» и «Помещение с индукционной петлей». На путях эвакуации размещаются указатели «Направление к эвакуационному выходу направо».
  • Вспомогательное оборудование. В зонах отдыха, обслуживания и в кабинетах монтируются крючки для трости и костылей на высоте 1,6 м от уровня пола.
  • Технические средства реабилитации. Для пациентов с нарушениями слуха (категория М1) предусмотрена портативная индукционная система «Vega-1». Для слабовидящих пациентов (категория М2) закупается портативный цифровой увеличитель и лупа. Оборудование является переносным и может использоваться в любом помещении клиники.

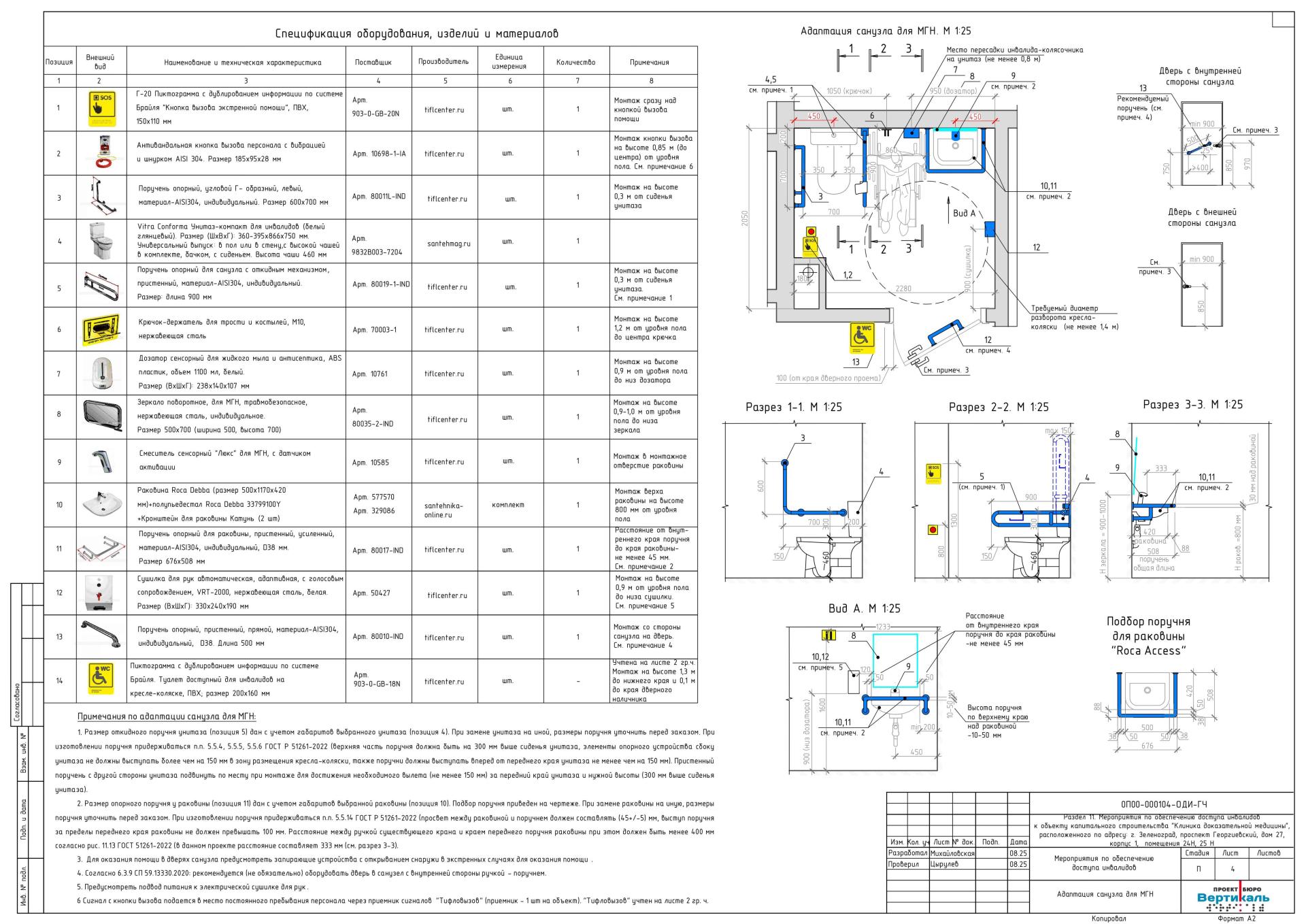
Адаптация санитарно-бытового помещения

Существующее помещение санузла имеет достаточные габариты для адаптации под универсальную кабину, доступную для всех категорий МГН.

  • Оснащение системой сигнализации. Устанавливается кнопка вызова помощи с пиктограммой, сигнал от которой поступает на приемник «Тифловызов» на стойке ресепшн.
  • Монтаж специализированного сантехнического оборудования. Производится установка унитаза-компакта с увеличенной высотой и опорных поручней к нему, раковины с поручнями и сенсорным смесителем, сенсорного дозатора для мыла и автоматической сушилки для рук. Монтируется откидное зеркало, доступное для пациентов на креслах-колясках.
  • Дополнительное оснащение. В кабине устанавливается крючок для костылей, а на дверь с внутренней стороны рекомендуется монтаж ручки-поручня.
  • Навигация к санузлу. Путь следования к санузлу обозначается с помощью комбинации тактильных пиктограмм «Туалет для инвалидов в креслах-колясках» и «Направление движения, поворот».

После реализации полного комплекса запроектированных мероприятий медицинский центр «Клиника доказательной медицины» будет полностью соответствовать требованиям безбарьерной среды, обеспечивая возможность комфортного и независимого получения медицинских услуг для пациентов всех категорий мобильности (М1-М4). Проект гарантирует создание современной, инклюзивной и безопасной среды для всех посетителей.

Оставьте свои контакты в полях ниже, и мы с вами свяжемся для обсуждения вашего проекта.

Выделите опечатку и нажмите Ctrl + Enter, чтобы отправить сообщение об ошибке.