Работаем по всей России

Адаптация центра занятости населения в г. Уварово для МГН

Выполнение полного комплекса запроектированных мероприятий обеспечивает возможность безопасного и независимого передвижения инвалидов всех категорий мобильности (М1-М4) от парковки к входам здания дошкольной образовательной организации и внутренним помещениям. Проектные решения гарантируют не только формальное соответствие нормам, но и создание комфортной инклюзивной образовательной среды для детей и сотрудников с ограниченными возможностями здоровья.

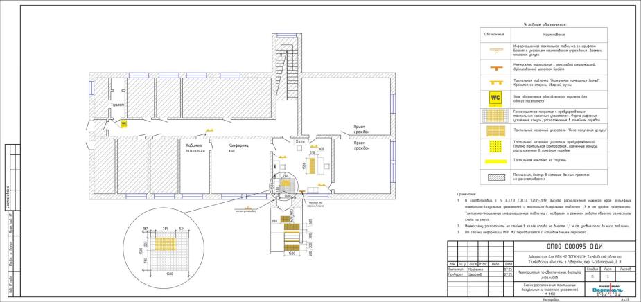
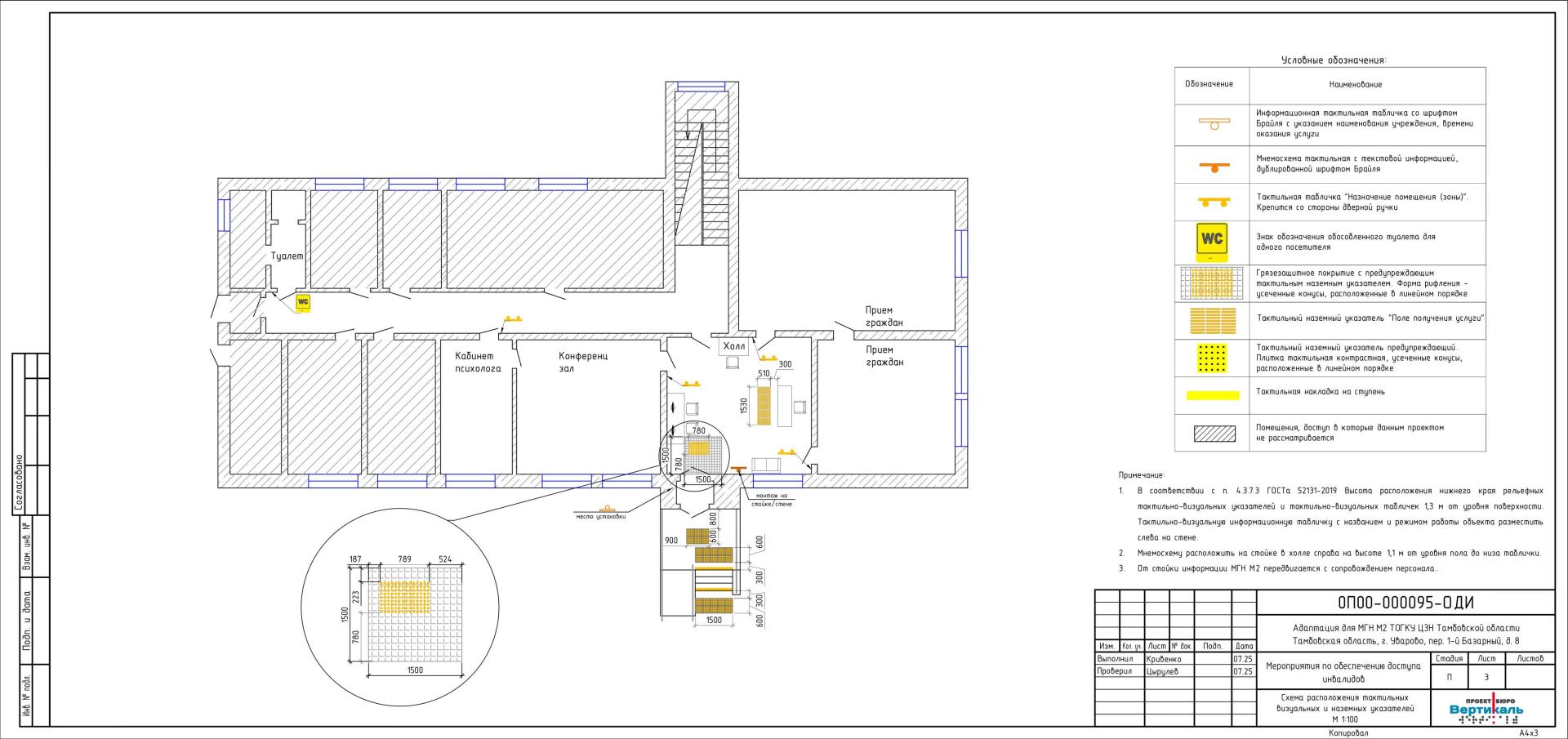
Настоящий проект разработан в целях обеспечения беспрепятственного доступа к помещениям ТОГКУ ЦЗН Тамбовской области для людей с нарушением зрения по принципу «разумного приспособления». Адаптируется эксплуатируемое помещение ТОГКУ ЦЗН Тамбовской области, расположенное по адресу: Тамбовская область, г. Уварово, пер. 1-й Базарный, д. 8.

В проекте предусматривается комплекс мероприятий по повышению качества архитектурной среды при соблюдении:

  1. досягаемости мест целевого посещения кратчайшим путем и беспрепятственного перемещения внутри помещений;
  2. безопасности путей движения, а также мест обслуживания;
  3. своевременного получения МГН полноценной и качественной информации, позволяющей ориентироваться в пространстве, использовать оборудование (в том числе для самообслуживания), получать услуги и т.д.

Данные проектные решения не ограничивают условия жизнедеятельности и не ущемляют возможности других групп населения, находящихся в помещении.

После реализации мероприятий, предусмотренных проектом, будет обеспечиваться возможность безбарьерного следования инвалидов групп мобильности М2 от входа здания к внутренним помещениям.

Мероприятия по адаптации для людей с нарушением зрения

В соответствии с СП 59.13330.2020 технические средства информирования, ориентирования и сигнализации в местах массового посещения должны обеспечивать посетителям объекта возможности получения однозначной информации об объектах и местах посещения, получения сведений о размещении и назначении функциональных элементов, об ассортименте и характере предоставляемых услуг, надежной ориентации в пространстве.

Проектом предусмотрены тактильные визуальные указатели на путях перемещения МГН:

  • Тактильная визуальная табличка с аудированием информации по системе Брайля (300x400 мм) с указанием наименования учреждения и режима работы. Табличка устанавливается рядом с входной дверью со стороны дверной ручки (рабочей створки).
  • Тактильная мнемосхема с планом и назначением помещений с аудированием информации тактильным плоско-печатным способом по системе Брайля (470 x 610 мм). Тактильную мнемосхему на стойке разместить в тамбуре справа от входа.
  • Тактильная табличка «Назначение помещения (зоны)». На внешней стороне таблички информация представлена выпуклым текстом, который ниже аудируется шрифтом по системе Брайля. Согласно ГОСТ Р 51671-2020 п. 7.2.2.3. Размещение табличек «Назначение помещения (зоны)»: на стене или нерабочей створке (если дверь остекленная) со стороны расположения дверной ручки, 0,1 м от наличника, на высоте 1,3 м от уровня пола.

Для обеспечения безопасности и информативности для людей с нарушением зрения, а также в соответствии с п. 5.1.10 СП 59.13330.2020 «Доступность зданий и сооружений для маломобильных групп населения» необходимо нанести на поверхности тактильные наземные указатели (ТНУ) согласно ГОСТ Р 52875-2018 «Указатели тактильные наземные для инвалидов по зрению. Технические требования»:

  • Локальный предупреждающий указатель «Внимание, прямо по ходу движения – лестницы». Указатель глубиной 600 мм и шириной, равной ширине участка лестницы, разрешенного для движения инвалидов. Рифы типа усеченных конусов, расположенных в линейном порядке. Располагается перед нижней ступенью на расстоянии 300 мм между поручными.
  • Предупреждающий указатель «Внимание, прямо по ходу движения дверь». Размеры: глубина 600 мм, ширина равна ширине дверного проема. Тип рифления – усеченные конуса, расположенные в линейном порядке. Место расположения: если дверь открывается на себя – на расстоянии, равном ширине полотна двери 1000 мм. Для раздвижных дверей – на расстоянии 300 мм от положения двери в закрытом состоянии.
  • Указатель «поле получения услуги». Размеры: глубина 420–510 мм, ширина должна соответствовать ширине места предоставления услуги. Тип рифления – девять параллельных продольных рифов. Место расположения: перед местом предоставления услуги на расстоянии 300 мм от него.
  • В соответствии с п. 6.2.8 СП 59.13330.2020 «На проступи краевых ступеней лестничных маршей должны быть нанесены одна или несколько противоскользящих полос, контрастных с поверхностью ступени, как правило, желтого цвета, общей шириной 0,08–0,1 м».
  • Монтаж тактильных наземных и напольных указателей вести в соответствии с проектной документацией.

Пути эвакуации

В качестве эвакуационного выхода для МГН используется главный вход в помещения объекта. Места обслуживания инвалидов располагаются на минимально возможных расстояниях от эвакуационного выхода из помещения наружу.

Перечень использованных нормативных и регламентирующих документов

  1. СП 59.13330.2020 «Доступность зданий и сооружений для маломобильных групп населения». Актуализированная редакция СНиП 35-01-2001.
  2. СП 136.13330.2012 «Здания и сооружения. Общие положения проектирования с учетом доступности для маломобильных групп населения» (с Изменениями №1).
  3. СП 138.13330.2012 «Общественные здания и сооружения, доступные маломобильным группам населения. Правила проектирования» (с Изменениями №1).
  4. ГОСТ Р 52131-2019 «Средства отображения информации знаковые для инвалидов. Технические требования».
  5. ГОСТ Р 52875-2018 «Указатели тактильные наземные для инвалидов по зрению. Технические требования».

Оставьте свои контакты в полях ниже, и мы с вами свяжемся для обсуждения вашего проекта.

Выделите опечатку и нажмите Ctrl + Enter, чтобы отправить сообщение об ошибке.