Работаем по всей России

Адаптация Центра слуха «Радуга звуков» в г. Смоленске для МГН

Настоящий проект разработан в целях обеспечения беспрепятственного доступа к помещениям Центра слуха «Радуга звуков» для людей с ограниченными возможностями и маломобильных групп населения (МГН) по принципу «разумного приспособления». Адаптации подлежат эксплуатируемые помещения центра, расположенного по адресу: г. Смоленск, ул. Николаева, д. 15. Проектная документация разработана на основании технического задания на проектирование, исходных данных Заказчика и в строгом соответствии с актуальными требованиями СП 59.13330.2020, ГОСТ Р 51261-2022, ГОСТ Р 52875-2018 и других регламентирующих документов.

Мероприятия по адаптации входной группы

Входная группа является критически важным узлом для обеспечения доступности объекта для всех категорий мобильности (М1-М4). В рамках проекта предусмотрен комплекс архитектурных и информационных решений.

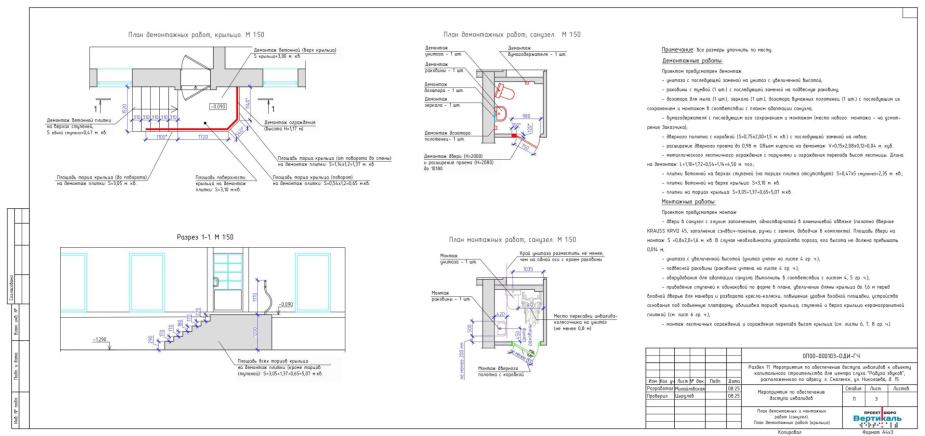
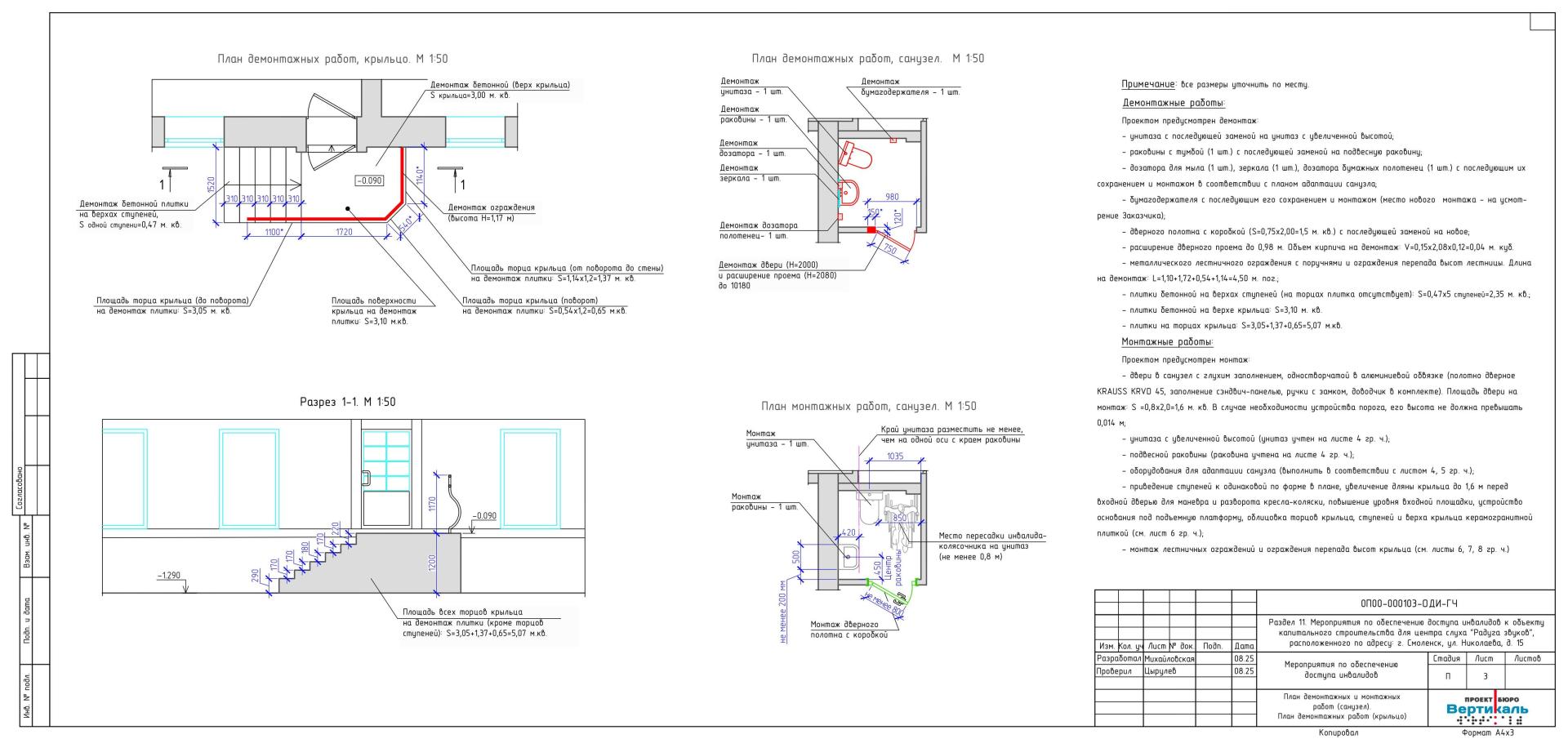
  • Реконструкция крыльца и лестницы. Существующие ступени лестницы будут приведены к одинаковой форме и высоте. Длина крыльца увеличивается до 1,6 м для обеспечения пространства, необходимого для маневра и разворота кресла-коляски. Производится замена существующих лестничных ограждений и монтаж поручней с второй стороны марша, соответствующих требованиям ГОСТ Р 51261-2022.
  • Устройство вертикальной подъемной платформы. Для обеспечения доступа инвалидов на креслах-колясках (категория М4) запроектирован монтаж подъемной платформы «Vertical-1» с кнопкой вызова помощи. Сигнал от кнопки передается на приемное устройство «Тифловызов» на пост постоянного нахождения персонала.
  • Тактильно-визуальная навигация. Перед входной дверью устанавливается тактильная пиктограмма «Доступность объектов для инвалидов по зрению и по слуху, а также в креслах-колясках» и информационная табличка с названием учреждения и режимом работы, дублированная шрифтом Брайля. В распределительном холле размещается тактильная мнемосхема с планом помещений. Для безопасности движения на краевых ступенях лестницы наносятся контрастные противоскользящие полосы, а перед маршем монтируется тактильный указатель «Внимание, прямо по ходу движения – лестница».

Организация путей движения внутри объекта

Для обеспечения безопасного и комфортного перемещения по внутренним помещениям Центра проектом предусмотрены следующие мероприятия:

  • Выравнивание уровней пола. Перепад высот между тамбуром и распределительным холлом будет устранен за счет монтажа грязезащитного покрытия «Тифлопол-10», что обеспечит беспрепятственное движение для колясочников.
  • Навигация и оснащение. На путях движения МГН предусмотрена установка крючка для трости и костылей в зоне отдыха. Дверная коробка в тамбур выделяется контрастной маркировкой для улучшения визуального ориентира.

Адаптация санитарно-бытового помещения

Существующее санитарно-бытовое помещение не соответствует нормативным требованиям. Проектом предусмотрена его комплексная перепланировка и оснащение для создания универсальной кабины, доступной для МГН всех категорий.

  • Переустройство дверного проема и замена двери. Производится расширение дверного проема и установка новой двери с порогом высотой не более 0,014 м.
  • Замена сантехнического оборудования. Устанавливается подвесная раковина, не создающая препятствий для подъезда на кресле-коляске, и унитаз регламентированной высоты (0,45–0,5 м) со смещением для обеспечения зоны пересадки шириной не менее 0,8 м.
  • Монтаж опорного и информационного оборудования. Кабина оснащается стационарными и откидными поручнями, кнопкой вызова помощи с пиктограммой, крючком для костылей. На дверь с внешней стороны устанавливается тактильная табличка «Туалет для инвалидов на кресле-коляске», продублированная шрифтом Брайля. Зеркало и дозаторы переносятся на высоту, доступную для всех категорий МГН.

После реализации полного комплекса запроектированных мероприятий Центр слуха «Радуга звуков» будет обеспечивать возможность безопасного, независимого и комфортного получения услуг для посетителей всех категорий мобильности (М1-М4). Проект гарантирует создание современной инклюзивной среды, полностью соответствующей требованиям безбарьерного пространства.

Оставьте свои контакты в полях ниже, и мы с вами свяжемся для обсуждения вашего проекта.

Выделите опечатку и нажмите Ctrl + Enter, чтобы отправить сообщение об ошибке.