Работаем по всей России

Адаптация медицинского центра «Инвитро» для инвалидов и МГН в г. Москва

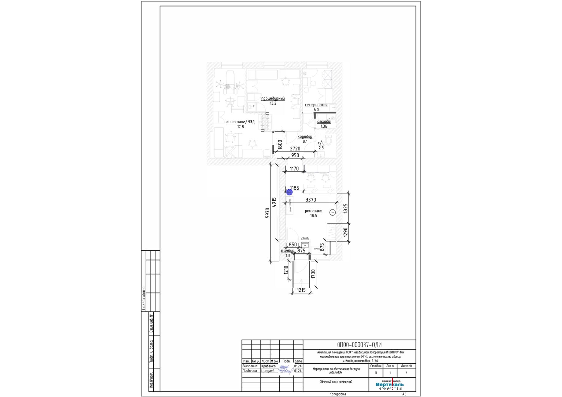
Настоящий проект разработан в целях обеспечения беспрепятственного доступа к помещениям независимой лаборатории ИНВИТРО для людей с ограниченными возможностями и маломобильных групп населения (МГН) по принципу «разумного приспособления». Адаптируется эксплуатируемое помещение, расположенное по адресу: г. Москва, проспект Мира, д. 146.

Проектная документация разработана на основании:

  • технического задания на проектирование;
  • исходных данных, представленных заказчиком;
  • результатах обследования;
  • действующих строительных норм и правил.

В проекте предусматривается комплекс мероприятий по повышению качества архитектурной среды: досягаемость мест целевого посещения кратчайшим путем и беспрепятственное перемещения внутри помещений; безопасность путей движения, а также мест обслуживания; своевременного получения МГН полноценной и качественной информации, позволяющей ориентироваться в пространстве, использовать оборудование (в том числе для самообслуживания), получать услуги, и т.д.

Данные проектные решения не ограничивают условия жизнедеятельности и не ущемляют возможности других групп населения, находящихся в помещении.

После реализации мероприятий, предусмотренных проектом, будет обеспечиваться возможность безбарьерного следования инвалидов групп мобильности М1-М4 от входа в здание к внутренним помещениям.

Тактильные настенные указатели на путях перемещения МГН

В соответствии с СП 59.13330.2020 технические средства информирования, ориентирования и сигнализации в местах массового посещения должны обеспечивать посетителям объектов возможность получения однозначной информации объектов и мест посещения, получения информации о размещении и назначении функциональных элементов, об ассортименте и характере предоставляемых услуг.

 Проектом предусмотрены тактильные визуальные указатели на путях перемещения МГН:  

  • тактильная визуальная табличка с дублированием информации по системе Брайля (300х400 мм) с указанием наименования учреждения и режимом работы. Табличка устанавливается на входной двери;
  • тактильная мнемосхема с планом и назначением помещений с дублированием информации тактильным плоскопечатным способом по системе Брайля (321 х 411 мм).  Тактильную мнемосхему разместить на стене;
  • знак «Доступность входа для инвалидов» категорий М1-М4;
  • знак обозначения помещения (зоны), оборудованной индукционной петлей для инвалидов по слуху, 150х150 мм. Располагается перед входом в помещение или рядом с зоной, в которых установлена индукционная петля для инвалидов по слуху; 
  • знак обозначения места кратковременного отдыха или ожидания для инвалидов, 150х150 мм. Располагается рядом со специально выделенными зонами общественных пространств и помещениями, оборудованными для кратковременного отдыха инвалидов;
  • тактильная табличка «назначение помещения (зоны)». Располагается со стороны дверной ручки. 

В соответствии с п.п. 4.3.7.3 ГОСТ Р 52131-2019:

знак доступности объекта для инвалидов по зрению должен быть тактильно-визуальным. Он должен размещаться перед входом в здание или помещение рядом с входной дверью, на стене, со стороны расположения дверной ручки, на расстоянии 0,1 м от наличника. При наличии тактильно-визуальной информационной таблички с названием и режимом работы объекта знак устанавливается следом за табличкой на том же уровне. Высота расположения нижнего края рельефных тактильно-визуальных указателей и тактильно-визуальных табличек должна быть 1,3 м от уровня поверхности.  

В соответствии с п.п 6.1.5 СП 59.13330.2020:

на прозрачных полотнах дверей и ограждениях (перегородках) следует предусматривать яркую контрастную маркировку в форме круга диаметром 0,2 м. Расположение контрастной маркировки предусматривается на двух уровнях: 0,9–1,0 м и 1,3–1,4 м (контрастную маркировку допускается заменять декоративными рисунками или фирменными знаками, узорами и т. п. той же яркости). На объекте имеется маркировка входных дверей на одном уровне.

Проектом предусмотреть контрастную маркировку двери в тамбуре.

Монтаж тактильных визуальных указателей осуществлять на высоте 1,3 м от уровня пешеходной поверхности в соответствии.

Тактильные наземные указатели (ТНУ) на путях перемещения МГН

Для обеспечения безопасности и информативности для людей с нарушением зрения, а также в соответствии с п. 5.1.10 СП 59.13330.2020 «Доступность зданий и сооружений для маломобильных групп населения» необходимо нанести на поверхности тактильные наземные указатели (ТНУ) согласно ГОСТ Р 52875-2018:

Локальный предупреждающий указатель «Внимание, прямо по ходу движения – лестница». Указатель глубиной от 500 до 600 мм и шириной, равной ширине участка лестницы, разрешенного для движения инвалидов. Рифы типа усеченных конусов, усеченных куполов, цилиндров, расположенных в линейном порядке. Располагается перед ступенью на расстоянии 300 мм.

Локальный предупреждающий указатель «Внимание, по ходу движения — дверь в здание или сооружение». Тактильный указатель глубиной от 500 до 600 мм, шириной, равной ширине дверного проема. На расстоянии ширины открывающегося полотна двери от положения двери в закрытом состоянии.

Указатель "Поле получения услуги". Эффективная глубина указателя - от 420 до 510 мм. Тип рифления - девять параллельных продольных рифов на ширину зоны получения услуги.

В соответствии с п. 6.2.8 СП 59.13330.2020 "На проступях краевых ступеней лестничных маршей должны быть нанесены одна или несколько противоскользящих полос, контрастных с поверхностью ступени, как правило, желтого цвета, общей шириной 0,08–0,1 м. В том случае, если лестница включает в себя несколько маршей, предупреждающая тактильная полоса обустраивается только перед верхней ступенью верхнего марша и нижней ступенью нижнего марша."

Мероприятия для людей с дефектом слуха

Проектом предусмотрена установка индукционной системы с субтитрированием на месте обслуживания МГН.

Портативная индукционная система предназначена для использования на рабочем столе, чтобы пиктограмма была обращена в сторону слабослышащего. Площадь покрытия: 1,2 м2 в рабочем диапазоне 1кГц.

Индукционная система предназначена для использования только внутри объекта. Устройство не содержит элементов и деталей, предназначенных для самостоятельного обслуживания. Слабослышащему необходимо переключить свой слуховой аппарат в режим индукционной катушки «Т».

Мероприятия по адаптации для людей, передвигающихся на креслах-колясках

Необходимые параметры стола для обслуживания посетителей на креслах-колясках: поверхность стола должна находиться на высоте не более 0,80 - 0,85 м над уровнем пола. Ширина и высота проема для ног должна быть не менее 0,75 м, глубиной не менее 0,49 м. Ширина рабочего стола у места получения услуги должна быть не менее 1,0 м.

Дверные проемы не должны иметь порогов и перепадов высот пола. При необходимости устройства порогов их высота или перепад высот не должны превышать 0,014 м.

Доступ инвалидов-колясочников в помещение осуществляется через проектируемый пандус.

Перечень использованных нормативных и регламентирующих документов


1. СП 59.13330.2020 «Доступность зданий и сооружений для маломобильных групп населения». Актуализированная редакция СНиП 35-01-2001.
2. СП 136.13330.2012 «Здания и сооружения. Общие положения проектирования с учетом доступности для маломобильных групп населения» (с Изменениями №1).
3. СП 138.13330.2012 «Общественные здания и сооружения, доступные маломобильным группам населения. Правила проектирования» (с Изменениями №1).
4. ГОСТ Р 50602-93 «Кресла-Коляски. Максимальные габаритные размеры».
5. ГОСТ Р 51261-2022 «Устройства опорные стационарные для маломобильных групп населения. Типы и общие технические требования».
6. ГОСТ Р 52131-2019 «Средства отображения информации знаковые для инвалидов. Технические требования».
7. ГОСТ Р 52875-2018 «Указатели тактильные наземные для инвалидов по зрению. Технические требования».

              Заполните форму нижы и мы свяжемся с Вами для обсуждения адаптации вашего медицинского учреждения

              Выделите опечатку и нажмите Ctrl + Enter, чтобы отправить сообщение об ошибке.