Работаем по всей России

Проект адаптации ДРЦ г. Донецк

Настоящий проект разработан в целях обеспечения доступа инвалидов в здание стационара на 120 коек с реабилитационный блоком, объекта капитального строительства Детского реабилитационного центра им. Св. Луки (ДРЦ), расположенного по адресу: ДНР, г. Донецк, участок в районе проспекта 75-летия футбольного клуба «Шахтер».

Проектная документация разработана на основании:

  • технического задания на проектирование;
  • исходных данных, представленных Заказчиком;
  • действующих строительных норм и правил.

В проекте предусматривается комплекс мероприятий по повышению качества архитектурной среды при соблюдении:

  1. Досягаемости мест целевого посещения кратчайшим путем и беспрепятственного перемещения внутри помещений.
  2. Безопасности путей движения, а также мест обслуживания.
  3. Своевременного получения МГН полноценной и качественной информации, позволяющей ориентироваться в пространстве, использовать оборудование (в том числе для самообслуживания), получать услуги, и т.д.

Мероприятия по адаптации объекта

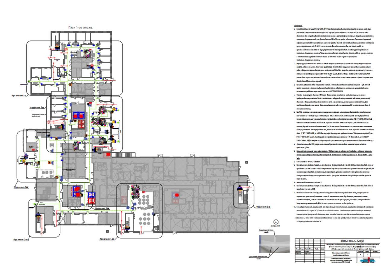
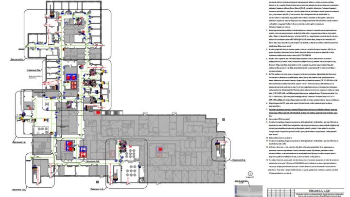
Проектом разработан комплекс мероприятий, направленных на создание безопасного, информативного и комфортного пути на объекте для получения услуги маломобильных групп населения. Вход в здание осуществляется через центральный вход и через приемное отделение. Для посетителей группы мобильности М4 в проекте предусмотрен самостоятельный путь движения от главного входа и входа приемного отделения в вестибюль первого этажа. При необходимости в сопровождение сотрудников стационара. 

Все ТНУ, независимо от назначения, используемого материала и технологии обустройства, для обеспечения возможности их идентификации слабовидящими людьми должны быть желтого цвета при обустройстве на темной поверхности или черного цвета при обустройстве на светлой поверхности.

На первом этаже в вестибюле (при входе через центральный вход) для инвалидов по зрению установлена информационная тактильная мнемосхема, отображающая информацию о помещениях объекта. В вестибюле приемного отделения для людей с нарушением зрения установлена мнемосхема звуковая тактильная с текстовым таблом. Также в вестибюле проектом предусмотрена установка тактильного информационного терминала «Tactile-VERT-1(43)V» с интегрированным комплексом видеокамер.

Согласно ГОСТ Р 51261-2017 опорные поручни, устанавливаемые в помещении уборной, а также в коридорах должны обеспечить максимальное удобство их захвата и стабильную фиксацию кисти руки для каждой конкретной ситуации. Поручни должны быть круглого сечения диаметром для детей 30 мм. Опорные поручни должны иметь травмобезопасные окончания Поручни должны быть плотно прикреплены к стене и фиксироваться в нужном положении. 

Перечень использованных нормативных и регламентирующих документов

  1. СП 59.13330.2020 «Доступность зданий и сооружений для маломобильных групп населения».
  2. СП 136.13330.2012 «Здания и сооружения. Общие положения проектирования с учетом доступности для маломобильных групп населения».
  3. СП 138.13330.2012 «Общественные здания и сооружения, доступные маломобильным группам населения. Правила проектирования».
  4. ГОСТ Р 50602-93 «Кресла-Коляски. Максимальные габаритные размеры».
  5. ГОСТ Р 51261-22 «Устройства опорные стационарные реабилитационные. Типы и технические требования».
  6. ГОСТ Р 52131-2019 «Средства отображения информации знаковые для инвалидов. Технические требования».
  7. ГОСТ Р 52875-2018 «Указатели тактильные наземные для инвалидов по зрению. Технические требования».
  8. ГОСТ Р 51671-2020 «Средства связи и информации технические общего пользования, доступные для инвалидов».

Оставьте свои контакты в полях ниже, и мы с вами свяжемся для обсуждения вашего проекта.

Выделите опечатку и нажмите Ctrl + Enter, чтобы отправить сообщение об ошибке.