Работаем по всей России

Проект адаптации Детская деревня «SOS – Томилино»

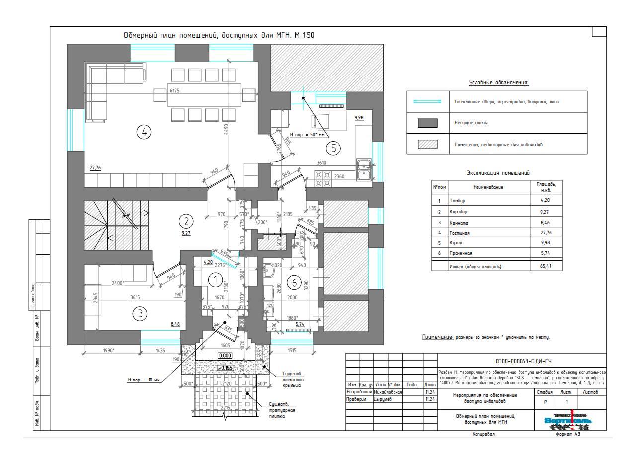
Настоящий проект разработан в целях обеспечения беспрепятственного доступа к помещениям Объекта для людей с ограниченными возможностями и маломобильных групп населения (МГН) по принципу «разумного приспособления». Адаптируются помещения Объекта: Детская деревня «SOS – Томилино», расположенного по адресу: 140070, Московская область, городской округ Люберцы, рабочий поселок Томилино, ул. Птехина, д. 1 Д, стр. 7.

Проектная документация разработана на основании:

  • технического задания на проектирование;
  • исходных данных, представленных заказчиком;
  • действующих строительных норм и правил.

В проекте предусматривается комплекс мероприятий по повышению качества архитектурной среды при соблюдении:

  1. Досягаемости мест целевого посещения кратчайшим путем и беспрепятственного перемещения внутри помещений Объекта.
  2. Безопасности путей движения.
  3. Своевременного получения МГН полноценной и качественной информации, позволяющей ориентироваться в пространстве, использовать оборудование (в том числе для самообслуживания), получать услуги, и т.д.

Данные проектные решения не ограничивают условия жизнедеятельности и не ущемляют возможности других групп населения, находящихся в помещениях Объекта.

После реализации мероприятий, предусмотренных проектом, будет обеспечиваться возможность безбарьерного следования инвалидов групп мобильности М1-М4 от входа здание к внутренним помещениям Объекта.

Проектом предусмотрена адаптация первого этажа для категорий М1-4 с выделе-нием комнаты для МГН (помещение номер 3 на плане) и санитарно-гигиенического помещения для МГН (в помещении прачечной, номер 6 на плане). Площадь санузла при этом составит 5.74 м. кв.

На основных путях движения МГН от центрального входа к местам целевого назначения имеются одностворчатые двери, контрастные по отношению к прилегающим поверхностям (двери - коричневые, стены - желтые) с шириной рабочих полотен в свету не менее 0.8, пороги отсутствуют. Исключение составляет дверь в прачечную (санузел) с шириной рабочего полотна в свету 0.685 м, также ширина проема в кори-доре на пути движения от входа к кухне и прачечной (санузлу) имеет недостаточную ширину в свету - 0.775 м.

Проектом предусмотрены следующие мероприятия:

  • расширение проема в стене (с 0.775 до 1.05 м) в коридоре на пути движения от входа в Объект к кухне и санузлу, замена двери в санузел (ширину рабочего полотна принять в свету не менее 0.8 м) с предварительным расширением проема (с 0.685 до 0.94 м);
  • для категории М1 (слабослышащих) проектом предусмотрена индукционная портативная система VEGA-1 (одна на Объект). В непосредственной близости от постоян-ного месторасположения системы разместить пиктограмму 150х150 мм  «Помещение с индукционной петлей». Петля является переносной и может быть использована в любом помещении. Необходимое условие для использования - наличие розетки 220 Вт. Проектом не учтен подвод питания 220 Вт к портативной петле (работает от розетки 220 Вт);
  • для категории М2 (людей с недостатками зрения) проектом предусмотрено при-обретение увеличителя портативного цифрового и лупы (по одной штуке на Объект). Увеличитель и лупа являются переносными и могут использоваться во всех помеще-ниях;
  • для категории М3 осуществить монтаж крючков для трости и костылей в тамбуре, гостиной и кухне. Высота размещения крючков 1.2 м от уровня пола. Месторас-положение крючков определить по месту.

Перечень использованных нормативных и регламентирующих документов

  1. СП 59.13330.2020 «Доступность зданий и сооружений для маломобильных групп населения». Актуализированная редакция СНиП 35-01-2001.
  2. СП 136.13330.2012 «Здания и сооружения. Общие положения проектирования с учетом доступности для маломобильных групп населения» (с Изменениями №1).
  3. СП 138.13330.2012 «Общественные здания и сооружения, доступные маломобильным группам населения. Правила проектирования» (с Изменениями №1).
  4. ГОСТ Р 50602-93 «Кресла-Коляски. Максимальные габаритные размеры».
  5. ГОСТ Р 51261-2022 «Устройства опорные стационарные для маломобильных групп населения. Типы и общие технические требования».
  6. ГОСТ Р 52131-2019 «Средства отображения информации знаковые для инвалидов. Технические требования».
  7. ГОСТ Р 52875-2018 «Указатели тактильные наземные для инвалидов по зрению. Технические требования».

Оставьте свои контакты в полях ниже, и мы с вами свяжемся для обсуждения вашего проекта.

Выделите опечатку и нажмите Ctrl + Enter, чтобы отправить сообщение об ошибке.