Работаем по всей России

Проект адаптации банковского отделения г. Нижний Новгород

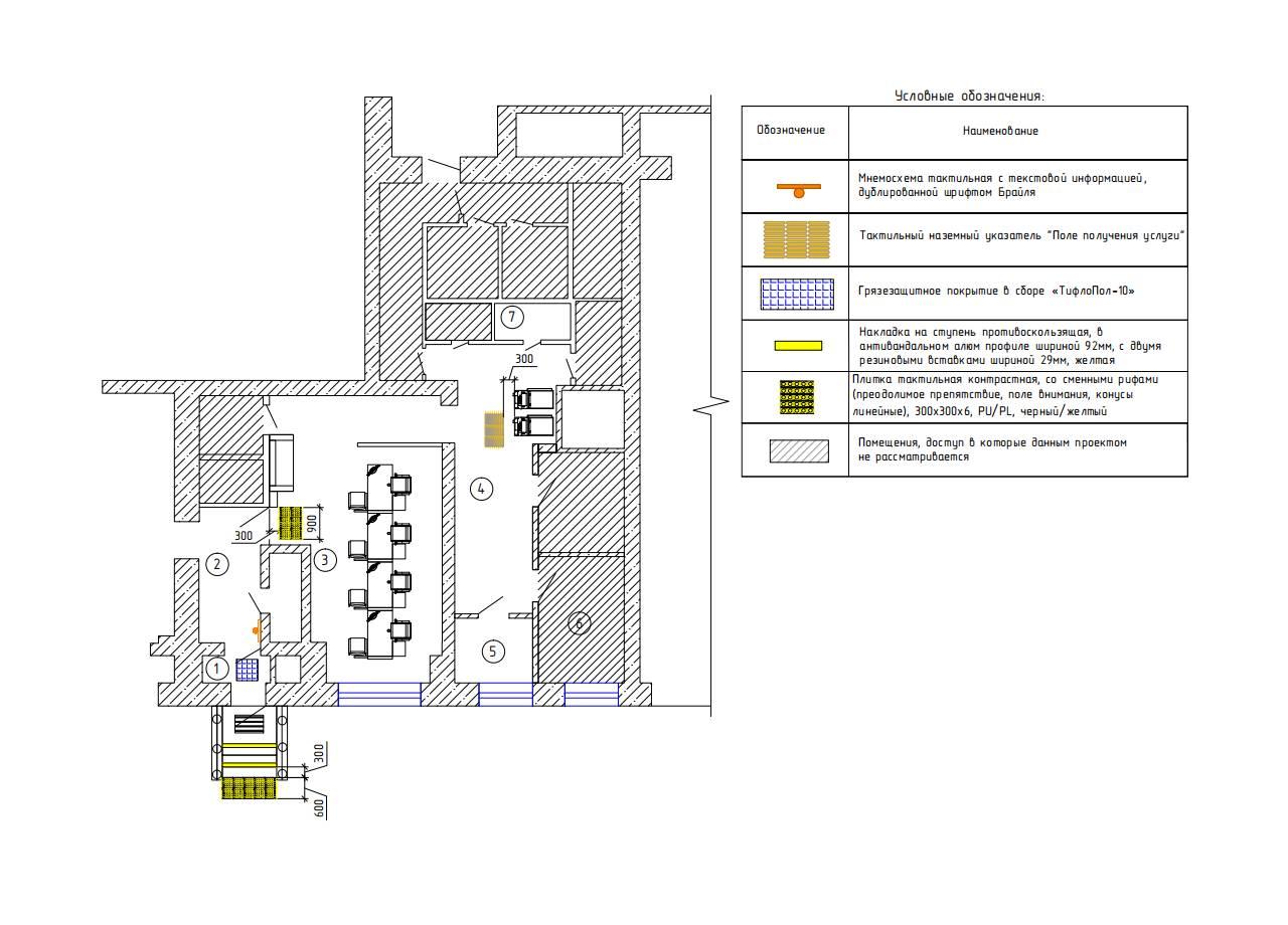
Настоящий проект разработан в целях обеспечения беспрепятственного доступа к помещениям банка для людей с ограниченными возможностями здоровья и маломобильных групп населения (МГН) по принципу «разумного приспособления». Адаптируется эксплуатируемое помещение банка ПАО «ПСБ», расположенное по адресу: г. Нижний Новгород, пл. Гагарина, д. 109.

Проектная документация разработана на основании:

  • технического задания на проектирование;
  • исходных данных, представленных заказчиком;
  • результатах обследования;
  • действующих строительных норм и правил.

В проекте предусматривается комплекс мероприятий по повышению качества архитектурной среды при соблюдении:

  1. Досягаемости мест целевого посещения кратчайшим путем и беспрепятственного перемещения внутри помещений банка.
  2. Безопасности путей движения, а также мест обслуживания.
  3. Своевременного получения МГН полноценной и качественной информации, позволяющей ориентироваться в пространстве, использовать оборудование (в том числе для самообслуживания), получать услуги, и т.д.

Мероприятия по адаптации для людей с нарушением зрения

В соответствии с СП 59.13330.2020 технические средства информирования, ориентирования и сигнализации в местах массового посещения должны обеспечивать посетителям объекта возможность однозначной информации объектов и мест посещения, получения информации о размещении и назначении функциональных элементов, об ассортименте и характере предоставляемых услуг, надежной ориентации в пространстве.

 Проектом предусмотрены тактильные визуальные указатели на путях перемещения МГН:  

  • тактильная визуальная табличка с дублированием информации по системе Брайля (400х600 мм) с указанием наименования учреждения и режимом работы. Табличка устанавливается рядом с входной дверью со стороны дверной ручки (рабочей створки);
  • тактильная мнемосхема с планом и назначением помещений с дублированием информации тактильным плоскопечатным способом по системе Брайля (470 х 610 мм).  Тактильную мнемосхему разместить на стене;
  • пиктограмма тактильная модульная «Доступность объектов для инвалидов по зрению и слуху»;
  • знак обозначения помещения (зоны), оборудованной индукционной петлей для инвалидов по слуху, 150х150 мм. Располагается перед входом в помещение или рядом с зоной, в которых установлена индукционная петля для инвалидов по слуху;
  • тактильная пиктограмма «Банкомат» (150 х 150 мм). Располагается в непосредственной близости с доступным банкоматом или на самом банкомате;
  • знак обозначения места кратковременного отдыха или ожидания для инвалидов, 150х150 мм. Располагается рядом со специально выделенными зонами общественных пространств и помещениями, оборудованными для кратковременного отдыха инвалидов;
  • тактильная табличка «Назначение помещения (зоны)». Располагается со стороны дверной ручки.

Мероприятия для людей с дефектом слуха

Проектом предусмотрена установка индукционной портативной петли «VEGA-1»  на месте обслуживания МГН. Проектом предусмотрено расположение оборудования на месте обслуживания МГН в операционном зале. При необходимости, оборудование переносится к другим местам обслуживания МГН.

          Данная модель системы обладает наличием интегрированного экрана в корпус изделия, таким образом устройство не только улучшает качество звука для слабослышащих людей, но и ПРЕОБРАЗУЕТ РЕЧЬ В ТЕКСТОВУЮ ИНФОРМАЦИЮ, что позволяет оператору без каких либо затруднений общаться и с тотально глухими посетителями. В комплект изделия входит индукционная система с субтитрированием "VEGA-1" и планшет. Для работы устройства в режиме текстофона необходима точка доступа к Wi-Fi и приложение (устройство поставляется с установленным приложением).

         Устройство выполнено в цельнолитом пластиковом корпусе с интегрированным сенсорным экраном для отображения визуальной информации. Бесперебойную работу системы обеспечивает возможность её подключения к сети 220V. Система не требует дополнительных настроек и поставляется сразу готовая к работе.

Мероприятия по адаптации для людей, передвигающихся на креслах-колясках

       В рамках реконструкции для адаптации Объекта в целях доступности для маломобильных граждан, проектом рекомендуется использовать мобильный лестничный подъемник. Для обеспечения доступности на Объект всех категорий МГН необходимо в рамках ближайшего капитального ремонта здания предусмотреть необходимые мероприятия, указанные в п.6 0П00-000040-44-ОДИ-ТЧ.

       Проектом рекомендуется разместить информационную табличку перед входом на Объект с контактами для вызова сотрудника Объекта на дом для обслуживания инвалида-колясочника. Необходимо внести данный вид обслуживания в регламент работы Объекта с внесением информации на официальный сайт.

Рекомендуемые мероприятия

Дверные проемы не должны иметь порогов и перепадов высот пола. При необходимости устройства порогов их высота или перепад высот не должны превышать 0,014 м.

В соответствии с п. 5.2.1 СП 59.13330.2020, на всех стоянках (парковках) общего пользования рядом с общественными учреждениями необходимо выделять не менее 10% машино-мест (но не менее одного места) для людей с инвалидностью, в том числе для инвалидов, передвигающихся на кресле-коляске.

Перечень использованных нормативных и регламентирующих документов

  1. СП 59.13330.2020 «Доступность зданий и сооружений для маломобильных групп населения». Актуализированная редакция СНиП 35-01-2001.
  2. СП 136.13330.2012 «Здания и сооружения. Общие положения проектирования с учетом доступности для маломобильных групп населения» (с Изменениями №1).
  3. СП 138.13330.2012 «Общественные здания и сооружения, доступные маломобильным группам населения. Правила проектирования» (с Изменениями №1).
  4. ГОСТ Р 50602-93 «Кресла-Коляски. Максимальные габаритные размеры».
  5. ГОСТ Р 51261-22 «Устройства опорные стационарные для маломобильных групп населения. Типы и общие технические требования».
  6. ГОСТ Р 52131-2019 «Средства отображения информации знаковые для инвалидов. Технические требования».
  7. ГОСТ Р 52875-2018 «Указатели тактильные наземные для инвалидов по зрению. Технические требования».
  8. Методические рекомендации ЦБ РФ от 26.04.2019 № 12.

Оставьте свои контакты в полях ниже, и мы с вами свяжемся для обсуждения вашего проекта.

Выделите опечатку и нажмите Ctrl + Enter, чтобы отправить сообщение об ошибке.