Проект адаптации отделения ПАО «ПСБ» г. Макеевка
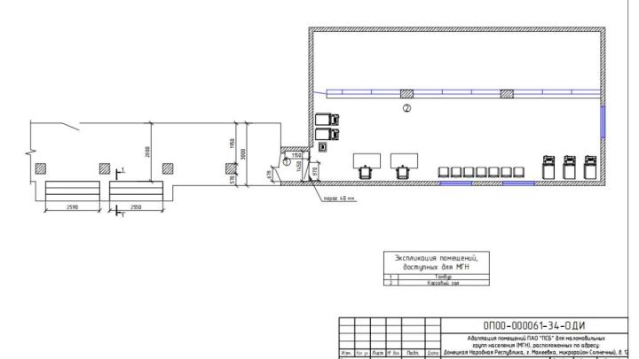
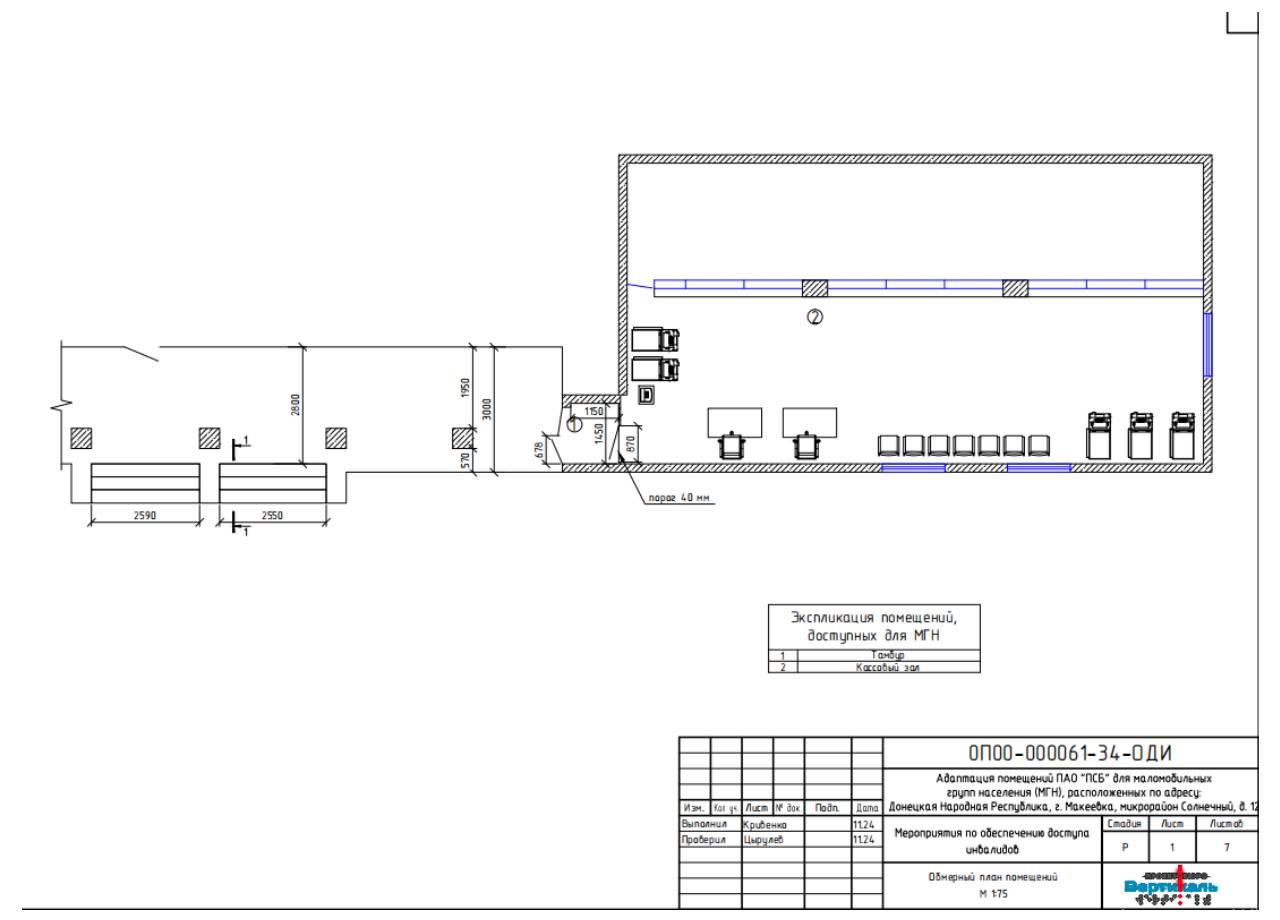
Настоящий проект разработан в целях обеспечения беспрепятственного доступа к помещениям банка для людей с ограниченными возможностями здоровья и маломобильных групп населения (МГН) по принципу «разумного приспособления». Адаптируется эксплуатируемое помещение банка ПАО «ПСБ», расположенное по адресу: Российская, Федерация, Донецкая область, г. Макеевка, микрорайон Солнечный, д. 12.
Проектная документация разработана на основании:
- технического задания на проектирование;
- исходных данных, представленных заказчиком;
- результатах обследования;
- действующих строительных норм и правил.
В проекте предусматривается комплекс мероприятий по повышению качества архитектурной среды при соблюдении:
- Досягаемости мест целевого посещения кратчайшим путем и беспрепятственного перемещения внутри помещений банка.
- Безопасности путей движения, а также мест обслуживания.
- Своевременного получения МГН полноценной и качественной информации, позволяющей ориентироваться в пространстве, использовать оборудование (в том числе для самообслуживания), получать услуги, и т.д.
Мероприятия по адаптации для людей с нарушением зрения
В соответствии с СП 59.13330.2020 технические средства информирования, ориентирования и сигнализации в местах массового посещения должны обеспечивать посетителям объекта возможность однозначной информации объектов и мест посещения, получения информации о размещении и назначении функциональных элементов, об ассортименте и характере предоставляемых услуг, надежной ориентации в пространстве.
Мероприятия для людей с дефектом слуха
Проектом предусмотрена установка индукционной портативной петли на месте обслуживания МГН.
Портативная индукционная петля предназначена для использования на рабочем столе, чтобы пиктограмма была обращена в сторону слабослышащего. Площадь покрытия: 1,2 м2 в рабочем диапазоне 1кГц.
Индукционная система предназначена для использования только внутри объекта. Устройство не содержит элементов и деталей, предназначенных для самостоятельного обслуживания. Слабослышащему необходимо переключить свой слуховой аппарат в режим индукционной катушки «Т».
Мероприятия по адаптации для людей, передвигающихся на креслах-колясках
Необходимые параметры стола для обслуживания посетителей на креслах-колясках: поверхность стола должна находиться на высоте не более 0,80 - 0,85 м над уровнем пола. Ширина и высота проема для ног должна быть не менее 0,75 м, глубиной не менее 0,49 м. Ширина рабочего стола у места получения услуги должна быть не менее 1,0 м.
Дверные проемы не должны иметь порогов и перепадов высот пола. При необходимости устройства порогов их высота или перепад высот не должны превышать 0,014 м.
Доступ инвалидов на кресле-коляске осуществляется при помощи вертикального подъемника и персонала. Вызов персонала осуществляется при помощи кнопки вызова ситуационной помощи.
Перечень использованных нормативных и регламентирующих документов
- СП 59.13330.2020 «Доступность зданий и сооружений для маломобильных групп населения». Актуализированная редакция СНиП 35-01-2001.
- СП 136.13330.2012 «Здания и сооружения. Общие положения проектирования с учетом доступности для маломобильных групп населения» (с Изменениями №1).
- СП 138.13330.2012 «Общественные здания и сооружения, доступные маломобиль-ным группам населения. Правила проектирования» (с Изменениями №1).
- ГОСТ Р 50602-93 «Кресла-Коляски. Максимальные габаритные размеры».
- ГОСТ Р 51261-2022 «Устройства опорные стационарные для маломобильных групп населения. Типы и общие технические требования».
- ГОСТ Р 52131-2019 «Средства отображения информации знаковые для инвалидов. Технические требования».
- ГОСТ Р 52875-2018 «Указатели тактильные наземные для инвалидов по зрению. Технические требования».
- 
Методические рекомендации ЦБ РФ от 26.04.2019 № 12 
