Работаем по всей России

Адаптация банка г. Йошкар-Ола

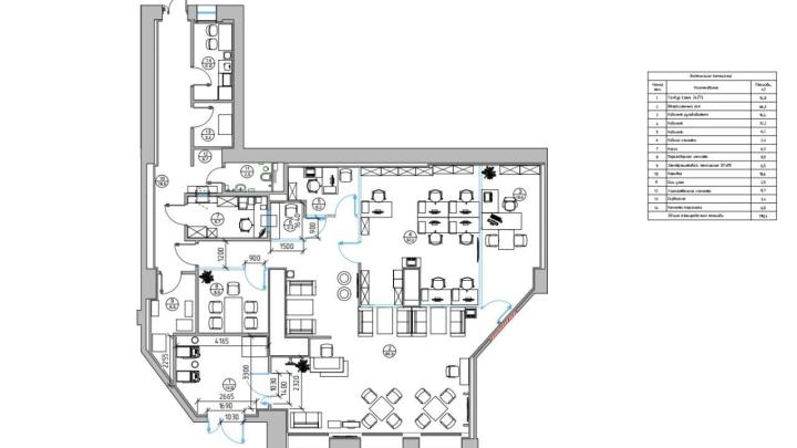
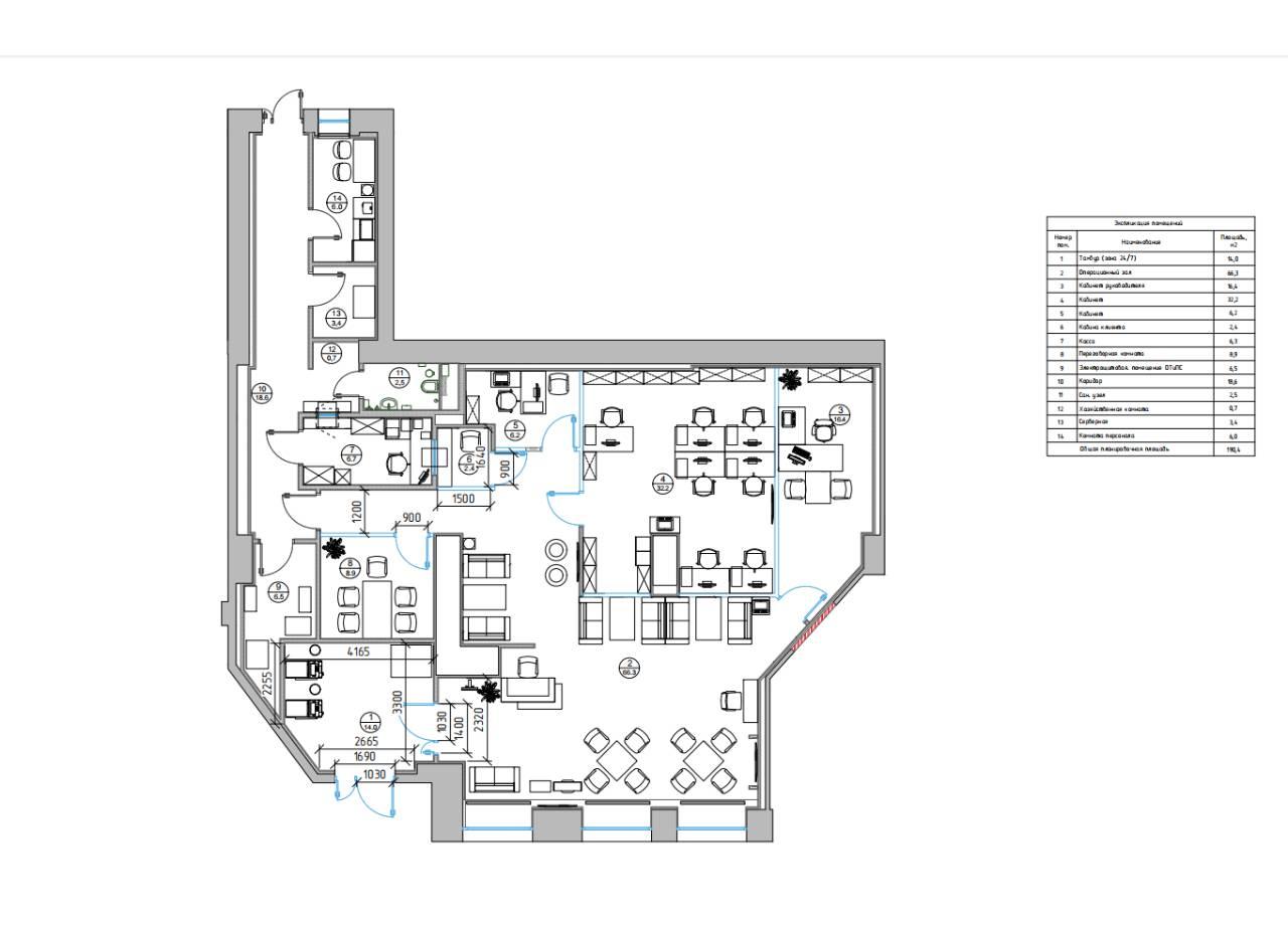
Настоящий проект разработан в целях обеспечения беспрепятственного доступа к помещениям банка для людей с ограниченными возможностями здоровья и маломобильных групп населения (МГН) по принципу «разумного приспособления». Адаптируется эксплуатируемое помещение банка ПАО «ПСБ», расположенное по адресу: г. Йошкар-Ола, ул. Первомайская, д. 164.

Проектная документация разработана на основании:

  • технического задания на проектирование;
  • исходных данных, представленных заказчиком;
  • результатах обследования;
  • действующих строительных норм и правил.

В проекте предусматривается комплекс мероприятий по повышению качества архитектурной среды при соблюдении:

  1. Досягаемости мест целевого посещения кратчайшим путем и беспрепятственного перемещения внутри помещений банка.
  2. Безопасности путей движения, а также мест обслуживания.
  3. Своевременного получения МГН полноценной и качественной информации, позволяющей ориентироваться в пространстве, использовать оборудование (в том числе для самообслуживания), получать услуги, и т.д.

Мероприятия по адаптации для людей с нарушением зрения

В соответствии с СП 59.13330.2020 технические средства информирования, ориентирования и сигнализации в местах массового посещения должны обеспечивать посетителям объекта возможность однозначной информации объектов и мест посещения, получения информации о размещении и назначении функциональных элементов, об ассортименте и характере предоставляемых услуг, надежной ориентации в пространстве.

Проектом предусмотрены тактильные визуальные указатели на путях перемещения МГН:  

  • тактильная визуальная табличка с дублированием информации по системе Брайля (400х600 мм) с указанием наименования учреждения и режимом работы. Табличка устанавливается рядом с входной дверью со стороны дверной ручки (рабочей створки);
  • тактильная мнемосхема с планом и назначением помещений с дублированием информации тактильным плоскопечатным способом по системе Брайля (470 х 610 мм). Тактильную мнемосхему разместить на стене;
  • знак «Доступность входа для инвалидов» категорий М1-М4;
  • знак обозначения помещения (зоны), оборудованной индукционной петлей для инвалидов по слуху, 150х150 мм. Располагается перед входом в помещение или рядом с зоной, в которых установлена индукционная петля для инвалидов по слуху;
  • тактильная пиктограмма «Банкомат» (150 х 150 мм). Располагается в непосредственной близости с доступным банкоматом;
  • знак обозначения места кратковременного отдыха или ожидания для инвалидов, 150х150 мм. Располагается рядом со специально выделенными зонами общественных пространств и помещениями, оборудованными для кратковременного отдыха инвалидов;
  • тактильная табличка «назначение помещения (зоны)». Располагается со стороны дверной ручки.

Для обеспечения безопасности и информативности для людей с нарушением зрения, а также в соответствии с п. 5.1.10 СП 59.13330.2020 «Доступность зданий и сооружений для маломобильных групп населения» необходимо нанести на поверхности тактильные наземные указатели (ТНУ) согласно ГОСТ Р 52875-2018 «Указатели тактильные наземные для инвалидов по зрению. Технические требования»:

Локальный предупреждающий указатель «Внимание, по ходу движения — дверь в здание или сооружение». Тактильный указатель глубиной от 500 до 600 мм, шириной, равной ширине дверного проема. На расстоянии ширины открывающегося полотна двери от положения двери в закрытом состоянии. При наличии раздвижных дверей — на расстоянии 300 мм от полотна двери.

Мероприятия для людей с дефектом слуха

Проектом предусмотрена установка индукционной портативной петли на месте обслуживания МГН.

Портативная индукционная петля предназначена для использования на рабочем столе, чтобы пиктограмма была обращена в сторону слабослышащего. Площадь покрытия: 1,2 м2 в рабочем диапазоне 1кГц.

Индукционная система предназначена для использования только внутри объекта. Устройство не содержит элементов и деталей, предназначенных для самостоятельного обслуживания. Слабослышащему необходимо переключить свой слуховой аппарат в режим индукционной катушки «Т».

Мероприятия по адаптации для людей, передвигающихся на креслах-колясках

Необходимые параметры стола для обслуживания посетителей на креслах-колясках: поверхность стола должна находиться на высоте не более 0,80 - 0,85 м над уровнем пола. Ширина и высота проема для ног должна быть не менее 0,75 м, глубиной не менее 0,49 м. Ширина рабочего стола у места получения услуги должна быть не менее 1,0 м.

Дверные проемы не должны иметь порогов и перепадов высот пола. При необходимости устройства порогов их высота или перепад высот не должны превышать 0,014 м.

Пути эвакуации

Ширина путей эвакуации составляет:

  • коридоры – 1,5 м (минимум);
  • выходы из помещений – 900 мм (в свету).

Перечень использованных нормативных и регламентирующих документов

  1. СП 59.13330.2020 «Доступность зданий и сооружений для маломобильных групп населения». Актуализированная редакция СНиП 35-01-2001.
  2. СП 136.13330.2012 «Здания и сооружения. Общие положения проектирования с учетом доступности для маломобильных групп населения» (с Изменениями №1).
  3. СП 138.13330.2012 «Общественные здания и сооружения, доступные маломобильным группам населения. Правила проектирования» (с Изменениями №1).
  4. ГОСТ Р 50602-93 «Кресла-Коляски. Максимальные габаритные размеры».
  5. ГОСТ Р 51261-22 «Устройства опорные стационарные для маломобильных групп населения. Типы и общие технические требования».
  6. ГОСТ Р 52131-2019 «Средства отображения информации знаковые для инвалидов. Технические требования».
  7. ГОСТ Р 52875-2018 «Указатели тактильные наземные для инвалидов по зрению. Технические требования».
  8. Методические рекомендации ЦБ РФ от 26.04.2019 № 12.

Оставьте свои контакты в полях ниже, и мы с вами свяжемся для обсуждения вашего проекта.

Выделите опечатку и нажмите Ctrl + Enter, чтобы отправить сообщение об ошибке.