Работаем по всей России

Проект адаптации отделения ПАО «ПСБ» г. Харцызск

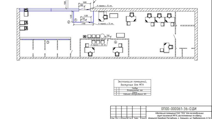
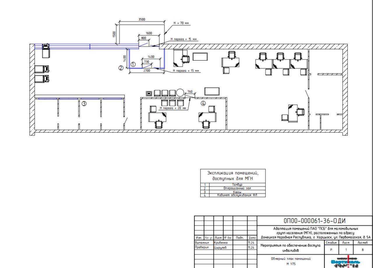
Настоящий проект разработан в целях обеспечения беспрепятственного доступа к помещениям банка для людей с ограниченными возможностями здоровья и маломобильных групп населения (МГН) по принципу «разумного приспособления». Адаптируется эксплуатируемое помещение банка ПАО «ПСБ», расположенное по адресу: Донецкая Народная Республика, г. Харцызск, ул. Первомайская, д. 5А.

Проектная документация разработана на основании:

  • технического задания на проектирование;
  • исходных данных, представленных заказчиком;
  • результатах обследования;
  • действующих строительных норм и правил.

В проекте предусматривается комплекс мероприятий по повышению качества архитектурной среды при соблюдении:

  1. Досягаемости мест целевого посещения кратчайшим путем и беспрепятственного перемещения внутри помещений банка.
  2. Безопасности путей движения, а также мест обслуживания.
  3. Своевременного получения МГН полноценной и качественной информации, позволяющей ориентироваться в пространстве, использовать оборудование (в том числе для самообслуживания), получать услуги, и т.д.

Мероприятия по адаптации для людей с нарушением зрения

В соответствии с СП 59.13330.2020 технические средства информирования, ориентирования и сигнализации в местах массового посещения должны обеспечивать посетителям объекта возможность однозначной информации объектов и мест посещения, получения информации о размещении и назначении функциональных элементов, об ассортименте и характере предоставляемых услуг, надежной ориентации в пространстве.

Для обеспечения безопасности и информативности для людей с нарушением зрения, а также в соответствии с п. 5.1.10 СП 59.13330.2020 «Доступность зданий и сооружений для маломобильных групп населения» необходимо нанести на поверхности тактильные наземные указатели (ТНУ) согласно ГОСТ Р 52875-2018 «Указатели тактильные наземные для инвалидов по зрению. Технические требования»:

Указатель "Поле получения услуги". Эффективная глубина указателя - от 420 до 510 мм. Тип рифления - девять параллельных продольных рифов на ширину зоны получения услуги.


Мероприятия для людей с дефектом слуха

Проектом предусмотрена установка индукционной портативной петли на месте обслуживания МГН.

Портативная индукционная петля предназначена для использования на рабочем столе, чтобы пиктограмма была обращена в сторону слабослышащего. Площадь покрытия: 1,2 м2 в рабочем диапазоне 1кГц.

Индукционная система предназначена для использования только внутри объекта. Устройство не содержит элементов и деталей, предназначенных для самостоятельного обслуживания. Слабослышащему необходимо переключить свой слуховой аппарат в режим индукционной катушки «Т».

Мероприятия по адаптации для людей, передвигающихся на креслах-колясках

Необходимые параметры стола для обслуживания посетителей на креслах-колясках: поверхность стола должна находиться на высоте не более 0,80 - 0,85 м над уровнем пола. Ширина и высота проема для ног должна быть не менее 0,75 м, глубиной не менее 0,49 м. Ширина рабочего стола у места получения услуги должна быть не менее 1,0 м.

Дверные проемы не должны иметь порогов и перепадов высот пола. При необходимости устройства порогов их высота или перепад высот не должны превышать 0,014 м.

Перечень использованных нормативных и регламентирующих документов

  1. СП 59.13330.2020 «Доступность зданий и сооружений для маломобильных групп населения». Актуализированная редакция СНиП 35-01-2001.
  2. СП 136.13330.2012 «Здания и сооружения. Общие положения проектирования с учетом доступности для маломобильных групп населения» (с Изменениями №1).
  3. СП 138.13330.2012 «Общественные здания и сооружения, доступные маломобильным группам населения. Правила проектирования» (с Изменениями №1).
  4. ГОСТ Р 50602-93 «Кресла-Коляски. Максимальные габаритные размеры».
  5. ГОСТ Р 51261-22 «Устройства опорные стационарные для маломобильных групп населения. Типы и общие технические требования».
  6. ГОСТ Р 52131-2019 «Средства отображения информации знаковые для инвалидов. Технические требования».
  7. ГОСТ Р 52875-2018 «Указатели тактильные наземные для инвалидов по зрению. Технические требования».
  8. Методические рекомендации ЦБ РФ от 26.04.2019 № 12.

 

 

 

 

Оставьте свои контакты в полях ниже, и мы с вами свяжемся для обсуждения вашего проекта.

Выделите опечатку и нажмите Ctrl + Enter, чтобы отправить сообщение об ошибке.