Работаем по всей России

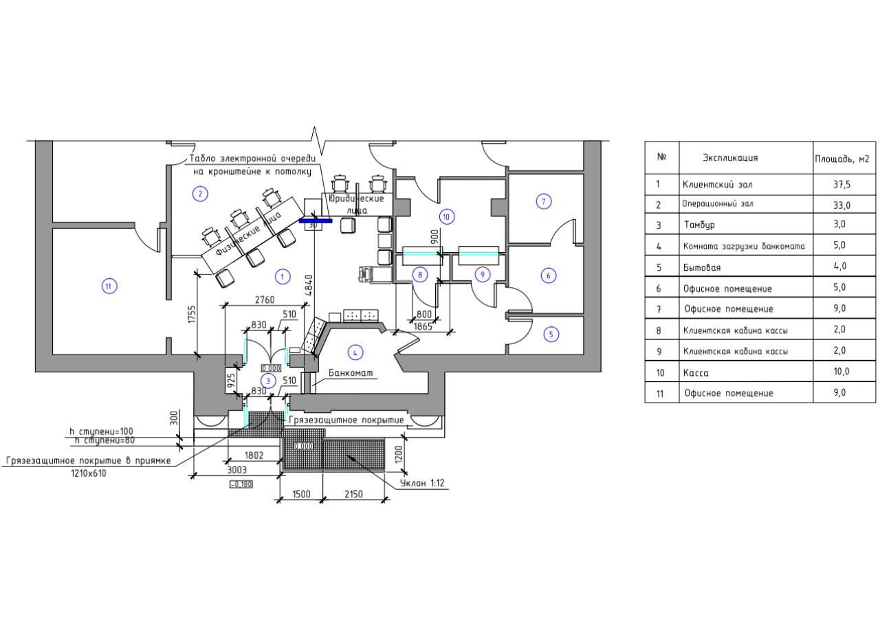
Проектное решение по адаптации помещения банка ПАО «ПСБ», расположенное по адресу: Московская область, г. Серпухов, ул. Советская, д. 78

Настоящий проект разработан в целях обеспечения беспрепятственного доступа к помещениям банка для людей с ограниченными возможностями здоровья и маломобильных групп населения (МГН) по принципу «разумного приспособления». Адаптируется эксплуатируемое помещение банка ПАО «ПСБ», расположенное по адресу: Московская область, г. Серпухов, ул. Советская, д. 78.

Проектная документация разработана на основании:

  • технического задания на проектирование;
  • исходных данных, представленных заказчиком;
  • результатах обследования;
  • действующих строительных норм и правил.

В проекте предусматривается комплекс мероприятий по повышению качества архитектурной среды при соблюдении:

  1. Досягаемости мест целевого посещения кратчайшим путем и беспрепятственного перемещения внутри помещений банка.
  2. Безопасности путей движения, а также мест обслуживания.
  3. Своевременного получения МГН полноценной и качественной информации, позволяющей ориентироваться в пространстве, использовать оборудование (в том числе для самообслуживания), получать услуги, и т.д.

Мероприятия по адаптации для людей с нарушением зрения

В соответствии с СП 59.13330.2020 технические средства информирования, ориентирования и сигнализации в местах массового посещения должны обеспечивать посетителям объекта возможность однозначной информации объектов и мест посещения, получения информации о размещении и назначении функциональных элементов, об ассортименте и характере предоставляемых услуг, надежной ориентации в пространстве.      

Локальный предупреждающий указатель «Внимание, прямо по ходу движения - лестница». Указатель глубиной от 500 до 600 мм и шириной, равной ширине участка лестницы, разрешенного для движения инвалидов. Рифы типа усеченных конусов, усеченных куполов, цилиндров, расположенных в линейном порядке. Располагается перед  нижней ступенью на расстоянии 300мм, перед верхней ступенью невозможно расположить из-за недостаточности места (табл.3 ГОСТ Р 52875-2018).

Локальный предупреждающий указатель «Внимание, по ходу движения - дверь в здание или сооружение». Тактильный указатель глубиной от 500 до 600 мм, шириной, равной ширине дверного проема. Место расположения: на расстоянии ширины открывающегося полотна двери от положения двери в закрытом положении. При наличии раздвижных дверей - на расстоянии 300 мм от полотна двери. На Объекте на крыльце перед входной дверью  имеется грязезащитное покрытие в приямке. Зона размещается перед дверью в тамбур пом. 3 из клиентского зала пом.1.

Указатель "Поле получения услуги". Эффективная глубина указателя - от 420 до 510 мм. Тип рифления - девять параллельных продольных рифов на ширину зоны получения услуги. Монтировать перед банкоматом в пом.1 и перед терминалом электронной очереди.

Мероприятия для людей с дефектом слуха

Проектом предусмотрена установка индукционной портативной петли «VEGA-1»  на месте обслуживания МГН.. При необходимости, оборудование переносится к местам обслуживания МГН.

Данная модель системы обладает наличием интегрированного экрана в корпус изделия, таким образом устройство не только улучшает качество звука для слабослышащих людей, но и ПРЕОБРАЗУЕТ РЕЧЬ В ТЕКСТОВУЮ ИНФОРМАЦИЮ, что позволяет оператору без каких либо затруднений общаться и с тотально глухими посетителями. В комплект изделия входит индукционная система с субтитрированием "VEGA-1" и планшет. Для работы устройства в режиме текстофона необходима точка доступа к Wi-Fi и приложение (устройство поставляется с установленным приложением).

Устройство выполнено в цельнолитом пластиковом корпусе с интегрированным сенсорным экраном для отображения визуальной информации. Бесперебойную работу системы обеспечивает возможность её подключения к сети 220V. Система не требует дополнительных настроек и поставляется сразу готовая к работе.

Устройство имеет встроенный индукционный контур, расположенный по периметру панели, и обеспечивающий зону покрытия не менее 0,8 м2.

Планшет, поставляемый в комплекте с индукционной системой, работает на платформе Android, имеет удобный интерфейс. Устройство поставляется с установленным приложением текстофона (мессенджера), посредством которого происходит передача сообщения от планшета в системе "VEGA-1" к внешнему планшету, и также наоборот.

Мероприятия по адаптации для людей, передвигающихся на креслах-колясках

Доступность Объекта для инвалидов на креслах-колясках обеспечивается стационарным пандусом с уклоном 1:12. Пандус соответствует СП59.133330.2020, исключая имеющиеся на нем поручни, не соответствующие ГОСТ Р 51261-2022 и СП59.13330.2020. Проектом рекомендуется замена поручней.

Перед заездом на пандус монтировать кнопку вызова на стойке, приемное устройство сигналов кнопки вызова разместить в месте постоянного присутствия персонала Объекта (подключение к электросети на 220В через розетку). Для усиления сигнала от кнопки вызова в тамбуре пом.3 монтировать ретранслятор на любой удобной высоте, обеспечив подключение его к электрической сети на 220В.

Необходимые параметры стола для обслуживания посетителей на креслах-колясках: поверхность стола должна находиться на высоте не более 0,80 - 0,85 м над уровнем пола. Ширина и высота проема для ног должна быть не менее 0,75 м, глубиной не менее 0,49 м. Ширина рабочего стола у места получения услуги должна быть не менее 1,0 м.

В операционном зале выделить  одно место для обслуживания посетителей с инвалидностью. Обеспечить высоту стойки не более 0,85м и высоту проема для ног не менее 0,75м, глубину проема для ног возле места операциониста, выделенного для обслуживания клиентов с инвалидностью (со стороны клиента), не менее 0,5м или поставить дополнительный стол около места операциониста, выделенного для обслуживания людей с инвалидностью (п.8.1.7 СП 59.13330.2020).

Дверные проемы не должны иметь порогов и перепадов высот пола. При необходимости устройства порогов их высота или перепад высот не должны превышать 0,014 м.

Рекомендуемые мероприятия

В соответствии с п. 5.2.1 СП 59.13330.2020, на всех стоянках (парковках) общего пользования рядом с общественными учреждениями необходимо выделять не менее 10% машино-мест (но не менее одного места) для людей с инвалидностью, в том числе для инвалидов, передвигающихся на кресле-коляске.

В местах высадки инвалидов из транспортного средства следует предусматривать продольный и поперечный уклоны поверхности не более 1:50 и ровное нескользкое покрытие. Машино-место для инвалидов должно иметь хотя бы один доступный пешеходный подход к основным пешеходным путям (тротуару, пешеходной дорожке и др.) Пандус бордюрный (при наличии) должен иметь нескользкое покрытие, обеспечивающее нескользкий переход с площадки для стоянки на тротуар.

Необходимо провести работы по изменению размеров тамбура в части длины. В соответствии с п.6.1.8 СП 59.13330.2020: «При реконструкции необходимо обеспечить в тамбуре минимальное свободное пространство для разворота кресла-коляски между дверями». Для разворота инвалида на кресле-коляске на 180 град. это 1,4 м.

Перечень использованных нормативных и регламентирующих документов

 

  1. СП 59.13330.2020 «Доступность зданий и сооружений для маломобильных групп населения». Актуализированная редакция СНиП 35-01-2001.
  2. СП 136.13330.2012 «Здания и сооружения. Общие положения проектирования с учетом доступности для маломобильных групп населения» (с Изменениями №1).
  3. СП 138.13330.2012 «Общественные здания и сооружения, доступные маломобильным группам населения. Правила проектирования» (с Изменениями №1).
  4. ГОСТ Р 50602-93 «Кресла-Коляски. Максимальные габаритные размеры».
  5. ГОСТ Р 51261-22 «Устройства опорные стационарные для маломобильных групп населения. Типы и общие технические требования».
  6. ГОСТ Р 52131-2019 «Средства отображения информации знаковые для инвалидов. Технические требования».
  7. ГОСТ Р 52875-2018 «Указатели тактильные наземные для инвалидов по зрению. Технические требования».
  8. Методические рекомендации ЦБ РФ от 26.04.2019 № 12.

Оставьте свои контакты в полях ниже, и мы с вами свяжемся для обсуждения вашего проекта.

Выделите опечатку и нажмите Ctrl + Enter, чтобы отправить сообщение об ошибке.