Работаем по всей России

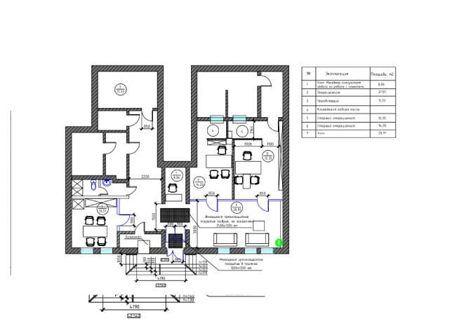
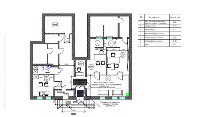
Проектное решение по адаптации помещения банка ПАО «ПСБ», расположенное по адресу: г. Oмcк, ул. Ивана Алeкceeва, д. 6

Настоящий проект разработан в целях обеспечения беспрепятственного доступа к помещениям банка для людей с ограниченными возможностями здоровья и маломобильных групп населения (МГН) по принципу «разумного приспособления». Адаптируется эксплуатируемое помещение банка ПАО «ПСБ», расположенное по адресу: г. Омск, ул. Ивана Алексеева, д. 6.

Проектная документация разработана на основании:

  • технического задания на проектирование;
  • исходных данных, представленных заказчиком;
  • результатах обследования;
  • действующих строительных норм и правил.

В проекте предусматривается комплекс мероприятий по повышению качества архитектурной среды при соблюдении:

  1. Досягаемости мест целевого посещения кратчайшим путем и беспрепятственного перемещения внутри помещений банка.
  2. Безопасности путей движения, а также мест обслуживания.
  3. Своевременного получения МГН полноценной и качественной информации, позволяющей ориентироваться в пространстве, использовать оборудование (в том числе для самообслуживания), получать услуги, и т.д.

Мероприятия по адаптации для людей с нарушением зрения 

В соответствии с СП 59.13330.2020 технические средства информирования, ориентирования и сигнализации в местах массового посещения должны обеспечивать посетителям объекта возможность однозначной информации объектов и мест посещения, получения информации о размещении и назначении функциональных элементов, об ассортименте и характере предоставляемых услуг, надежной ориентации в пространстве.

Для обеспечения безопасности и информативности для людей с нарушением зрения, а также в соответствии с п. 5.1.10 СП 59.13330.2020 «Доступность зданий и сооружений для маломобильных групп населения» необходимо нанести на поверхности тактильные наземные указатели (ТНУ) согласно ГОСТ Р 52875-2018 «Указатели тактильные наземные для инвалидов по зрению. Технические требования»: локальный предупреждающий указатель «Внимание, прямо по ходу движения – лестница». Указатель глубиной от 500 до 600 мм и шириной, равной ширине участка лестницы, разрешенного для движения инвалидов. Рифы типа усеченных конусов, усеченных куполов, цилиндров, расположенных в линейном порядке.

Мероприятия для людей с дефектом слуха

Проектом рекомендуется установка индукционной портативной петли «VEGA-1» на месте обслуживания МГН. Предусмотрено расположение оборудования на ресепшен в холле. При необходимости, оборудование переносится к местам обслуживания МГН.

Данная модель системы обладает наличием интегрированного экрана в корпус изделия, таким образом устройство не только улучшает качество звука для слабослышащих людей, но и преобразуеттекстовую речь в информацию, что позволяет оператору без каких либо затруднений общаться и с тотально глухими посетителями. В комплект изделия входит индукционная система с субтитрированием "VEGA-1" и планшет. Для работы устройства в режиме текстофона необходима точка доступа к Wi-Fi и приложение (устройство поставляется с установленным приложением).

Устройство выполнено в цельнолитом пластиковом корпусе с интегрированным сенсорным экраном для отображения визуальной информации. Бесперебойную работу системы обеспечивает возможность её подключения к сети 220V. Система не требует дополнительных настроек и поставляется сразу готовая к работе.

Мероприятия по адаптации для людей, передвигающихся на креслах-колясках

Необходимые параметры стола для обслуживания посетителей на креслах-колясках: поверхность стола должна находиться на высоте не более 0,80 - 0,85 м над уровнем пола. Ширина и высота проема для ног должна быть не менее 0,75 м, глубиной не менее 0,49 м. Ширина рабочего стола у места получения услуги должна быть не менее 1,0 м.

Необходимо обеспечить понижение участка стойки ресепшен в холле на высоте не более 0,85м от уровня пола (п.8.1.7 СП 59.13330.2020) или в регламенте обслуживания посетителей предусмотреть, что в случае использования стойки, представитель банка должен выходить из-за стойки для общения с посетителем на кресле-коляске.

Рекомендуемые мероприятия

Рекомендуется выделить на автостоянке перед входом в здание, не далее, чем за 50 м от входа, одно специализированное машино-место для инвалидов (10% от машино-мест на автостоянке).

Перечень использованных нормативных и регламентирующих документов

  1. СП 59 13330.2020 «Доступность зданий и сооружений для маломобильных групп населения». Актуализированная редакция СНиП 35-01-2001.
  2. СП 136 13330.2012 «Здания и сооружения. Общие положения проектирования с учетом доступности для маломобильных групп населения» (с Изменениями №1).
  3. СП 138 13330.2012 «Общественные здания и сооружения, доступныемаломобильным группам населения. Правила проектирования» (с Изменениями №1).
  4. ГОСТ Р 50602-93 «Кресла-Коляски. Максимальные габаритные размеры».
  5. ГОСТ Р 51261-22 «Устройства опорные стационарные для маломобильных групп населения. Типы и общие технические требования».
  6. ГОСТ Р 52131-2019 «Средства отображения информации знаковые для инвалидов. Техническиетребования».
  7. ГОСТ Р 52875-2018 «Указатели тактильные наземные для инвалидов по зрению. Технические требования».
  8. Методические рекомендации ЦБ РФ от 26.04.2019 № 12.

Оставьте свои контакты в полях ниже, и мы с вами свяжемся для обсуждения вашего проекта.

Выделите опечатку и нажмите Ctrl + Enter, чтобы отправить сообщение об ошибке.